ᐅ Unser Grundriss - Zur Beurteilung freigegeben
Erstellt am: 01.04.18 23:04
Hallo an alle,
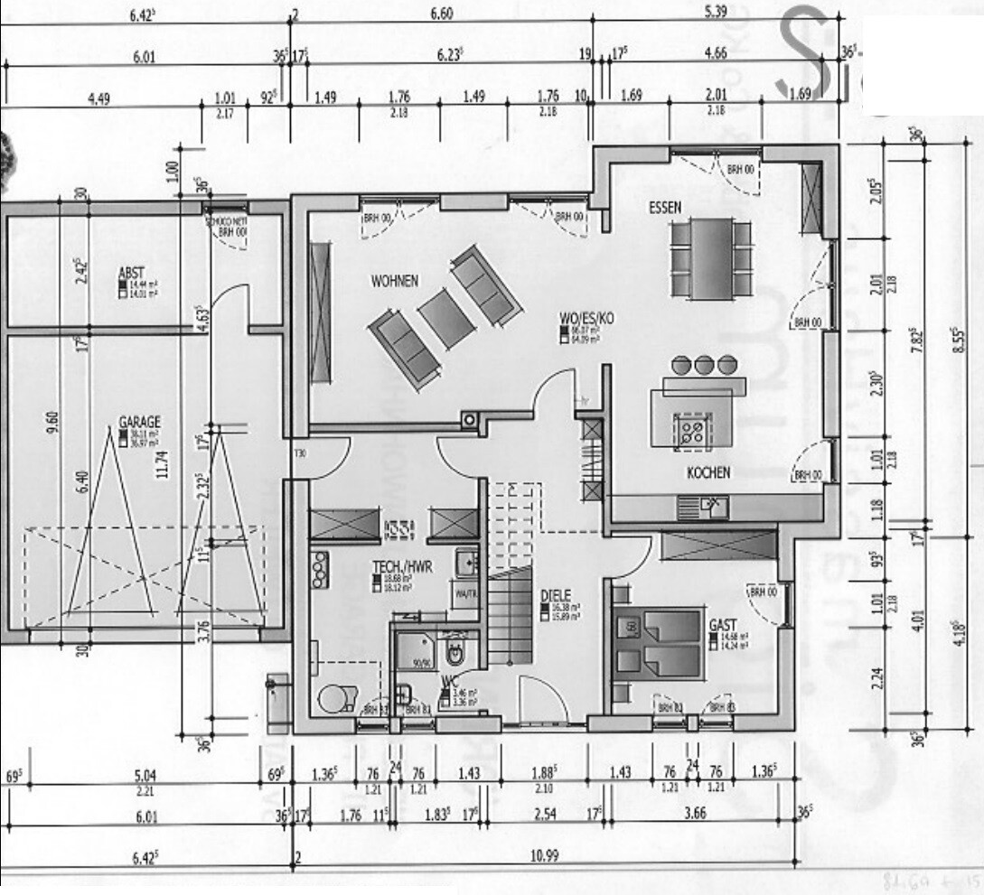
wir bauen eine Stadtvilla mit ca. 200qm. Der Entwurf stammt zunächst aus meiner Feder und wurde dann nach und nach den Bedürfnissen angepasst. Wir wissen, dass wir mit diesem Entwurf das Haus wahrlich nicht neu erfunden haben. In unserem aktuellen Entwurf, den wir noch zugesendet bekommen, haben wir im EG keine Dusche mehr, sondern den Raum auf ein kleines Gäste-WC reduziert. Was haltet ihr generell von dem Entwurf?
Grundstück Nr. 28
Bebauungsplan/Einschränkungen: Garage muss 5,50 m von der Straße entfernt sein.
Größe des Grundstücks: 694qm
Kein Hang, sondern flaches Grundstück
Grundflächenzahl 0,4
Baufenster, Baulinie und -grenze: siehe Bild
Anzahl Stellplatz: Doppelgarage
Geschossigkeit: 2 Vollgeschosse
Dachform: Zeltdach
Stilrichtung: Stadtvilla
Ausrichtung: Süd/Süd-Ost
Anforderungen der Bauherren
Stilrichtung, Dachform, Gebäudetyp:
Keller, Geschosse
Anzahl der Personen, Alter: 3 (Mama,Papa,Kind + ggf. 2.Kind)
Raumbedarf im EG, OG
Büro: Familiennutzung
Schlafgäste pro Jahr
offene oder geschlossene Architektur: sowohl als auch. Offen in Kü./EZ./WZ.
konservativ oder moderne Bauweise: konservativ
offene Küche, Kochinsel: ja und ja
Anzahl Essplätze: mind. 6
Kamin: ja
Garage, Carport: Doppelgarage
Hausentwurf
Von wem stammt die Planung: Ursprünglich von mir, dann weiterentwickelt mit den Bauträgern
Was gefällt besonders? Warum?
Was gefällt nicht? Warum?
Preisschätzung lt Architekt/Planer: ca. 350 TEuro
favorisierte Heiztechnik: siehe meinen anderen Thread
Wenn Ihr verzichten müsst, auf welche Details/Ausbauten
-könnt Ihr nicht verzichten: Bereich Schlafzimmer/Ankleide/Bad. Das gefällt uns sehr gut so.
Warum ist der Entwurf so geworden, wie er jetzt ist? Zunächst Bedarf aufgelistet: Offener Wohnbereich, Schleuse, Anzahl Ki.Zi. Dann bei Freunden nachgeschaut, wie groß die einzelnen Bereiche sind. Erfahrungswerte gesammelt und mit Grundrissen verglichen.
Was ist die wichtigste/grundlegende Frage zum Grundriss in 130 Zeichen zusammengefasst?
Gibt es grundlegende Fehler oder was würdet ihr verbessern?



wir bauen eine Stadtvilla mit ca. 200qm. Der Entwurf stammt zunächst aus meiner Feder und wurde dann nach und nach den Bedürfnissen angepasst. Wir wissen, dass wir mit diesem Entwurf das Haus wahrlich nicht neu erfunden haben. In unserem aktuellen Entwurf, den wir noch zugesendet bekommen, haben wir im EG keine Dusche mehr, sondern den Raum auf ein kleines Gäste-WC reduziert. Was haltet ihr generell von dem Entwurf?
Grundstück Nr. 28
Bebauungsplan/Einschränkungen: Garage muss 5,50 m von der Straße entfernt sein.
Größe des Grundstücks: 694qm
Kein Hang, sondern flaches Grundstück
Grundflächenzahl 0,4
Baufenster, Baulinie und -grenze: siehe Bild
Anzahl Stellplatz: Doppelgarage
Geschossigkeit: 2 Vollgeschosse
Dachform: Zeltdach
Stilrichtung: Stadtvilla
Ausrichtung: Süd/Süd-Ost
Anforderungen der Bauherren
Stilrichtung, Dachform, Gebäudetyp:
Keller, Geschosse
Anzahl der Personen, Alter: 3 (Mama,Papa,Kind + ggf. 2.Kind)
Raumbedarf im EG, OG
Büro: Familiennutzung
Schlafgäste pro Jahr
offene oder geschlossene Architektur: sowohl als auch. Offen in Kü./EZ./WZ.
konservativ oder moderne Bauweise: konservativ
offene Küche, Kochinsel: ja und ja
Anzahl Essplätze: mind. 6
Kamin: ja
Garage, Carport: Doppelgarage
Hausentwurf
Von wem stammt die Planung: Ursprünglich von mir, dann weiterentwickelt mit den Bauträgern
Was gefällt besonders? Warum?
Was gefällt nicht? Warum?
Preisschätzung lt Architekt/Planer: ca. 350 TEuro
favorisierte Heiztechnik: siehe meinen anderen Thread
Wenn Ihr verzichten müsst, auf welche Details/Ausbauten
-könnt Ihr nicht verzichten: Bereich Schlafzimmer/Ankleide/Bad. Das gefällt uns sehr gut so.
Warum ist der Entwurf so geworden, wie er jetzt ist? Zunächst Bedarf aufgelistet: Offener Wohnbereich, Schleuse, Anzahl Ki.Zi. Dann bei Freunden nachgeschaut, wie groß die einzelnen Bereiche sind. Erfahrungswerte gesammelt und mit Grundrissen verglichen.
Was ist die wichtigste/grundlegende Frage zum Grundriss in 130 Zeichen zusammengefasst?
Gibt es grundlegende Fehler oder was würdet ihr verbessern?
Riesenhütte.
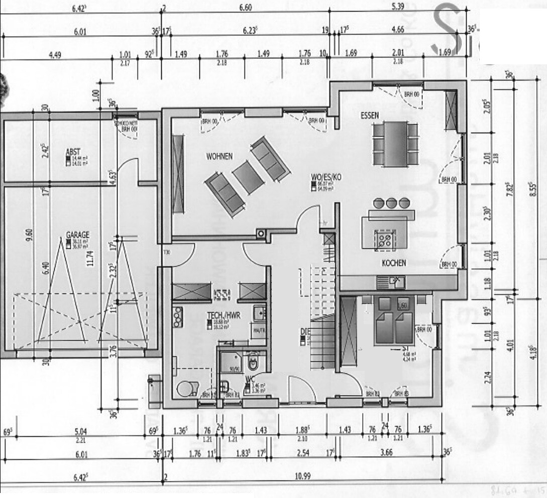
Kann man auf jeden Fall so bauen. Was mich etwas nerven würde: Die Garderobe ist so weit vom Eingang entfernt. Ebenso die Küche.
Die Aufteilung oben halte ich für unglücklich. Kind im Norden und Schlafzimmer im Süden - ist exakt falsch rum. Arbeitszimmer hat einen schöneren Platz als Kind 2. Die Frage, ob man hier nochmal neu plant. Ansonsten würde ich wenigstens das Westfenster von Kind 2 vergrößern.
Ankleide ohne Fenster würde ich nicht machen. Für immer im Dunkeln in den Schränken zu wühlen ist ein Horror. Da hilft auch keine Lampe. Allerdings verliert Ihr Stellfläche, wenn da ein Fenster rein soll. Ohne Maße schwer zu sagen. Eventuell auch ein Grund für eine Neuplanung des OG.
Wenn es so bleibt würde ich noch die Kinderzimmertür von Kind 2 nach planunten verschieben.
Galerie bei 2 Kindern ist auch sehr fraglich. So verteilt ihr den Lärm im ganzen Haus.

Kann man auf jeden Fall so bauen. Was mich etwas nerven würde: Die Garderobe ist so weit vom Eingang entfernt. Ebenso die Küche.
Die Aufteilung oben halte ich für unglücklich. Kind im Norden und Schlafzimmer im Süden - ist exakt falsch rum. Arbeitszimmer hat einen schöneren Platz als Kind 2. Die Frage, ob man hier nochmal neu plant. Ansonsten würde ich wenigstens das Westfenster von Kind 2 vergrößern.
Ankleide ohne Fenster würde ich nicht machen. Für immer im Dunkeln in den Schränken zu wühlen ist ein Horror. Da hilft auch keine Lampe. Allerdings verliert Ihr Stellfläche, wenn da ein Fenster rein soll. Ohne Maße schwer zu sagen. Eventuell auch ein Grund für eine Neuplanung des OG.
Wenn es so bleibt würde ich noch die Kinderzimmertür von Kind 2 nach planunten verschieben.
Galerie bei 2 Kindern ist auch sehr fraglich. So verteilt ihr den Lärm im ganzen Haus.
T
toxicmolotof02.04.18 08:40Leider kann ich in TT den Bauort nicht sehen.
Aber in Mittel- oder Süddeutschland sehe da locker die 4xx + Baunebenkosten fallen. Und zwar nicht nur leicht, sondern ziemlich deutlich.
Verabschiede dich von der 3 vorne.
Aber in Mittel- oder Süddeutschland sehe da locker die 4xx + Baunebenkosten fallen. Und zwar nicht nur leicht, sondern ziemlich deutlich.
Verabschiede dich von der 3 vorne.
kaho674 schrieb:
Die Aufteilung oben halte ich für unglücklich. Kind im Norden und Schlafzimmer im Süden - ist exakt falsch rum. Arbeitszimmer hat einen schöneren Platz als Kind 2. Die Frage, ob man hier nochmal neu plant. Ansonsten würde ich wenigstens das Westfenster von Kind 2 vergrößern.Die Außenecke von Kind 1 ist Süden. Schlafzimmer ist Südost, Kind 2 Südwest ausgerichtet. kaho674 schrieb:
Ankleide ohne Fenster würde ich nicht machen. Für immer im Dunkeln in den Schränken zu wühlen ist ein Horror. Da hilft auch keine Lampe. Allerdings verliert Ihr Stellfläche, wenn da ein Fenster rein soll. Ohne Maße schwer zu sagen. Eventuell auch ein Grund für eine Neuplanung des OG.Wir hatten bereits ein Fenster geplant und sind davon weggekommen. Wollen das Ganze mit Beleuchtung machen.
kaho674 schrieb:
Wenn es so bleibt würde ich noch die Kinderzimmertür von Kind 2 nach planunten verschieben.Sieht so wirklich besser aus. Natürlich wird dann Kind2 etwas kleiner.
kaho674 schrieb:
Galerie bei 2 Kindern ist auch sehr fraglich. So verteilt ihr den Lärm im ganzen Haus.
Deshalb hatten wir das im Eingangsbereich vorgesehen, damit dieser größer und einladender wirkt.
Vielen Dank für die Verbesserungsvorschläge
Baraja schrieb:
Die Außenecke von Kind 1 ist Süden. Schlafzimmer ist Südost, Kind 2 Südwest ausgerichtet.Das hab ich schon erkannt. Kind 2 ist im Norden und das Schlafzimmer im Süden. während also Kind 2 im Dunkeln spielen muss, erstrahlt Euer ungenutztes Schlafzimmer tagsüber in der Sonne.Ähnliche Themen