ᐅ Neubau Einfamilienhaus ca. 190m² mit Doppelgarage ohne Keller - Entwurf Nr. 3
Erstellt am: 19.02.20 20:20
T
Thorsten78T
Thorsten7819.02.20 20:20Hallo zusammen,
wir haben gerade ein Grundstück erworben und sind nun bei der Hausplanung angelangt.
Nachdem die ersten beiden Eigenversuche bei der Planung nicht so erfolgreich waren, haben wir uns nun mit einem Bauingenieur getroffen und einen Grundriss nach unseren Bedürfnissen entworfen.
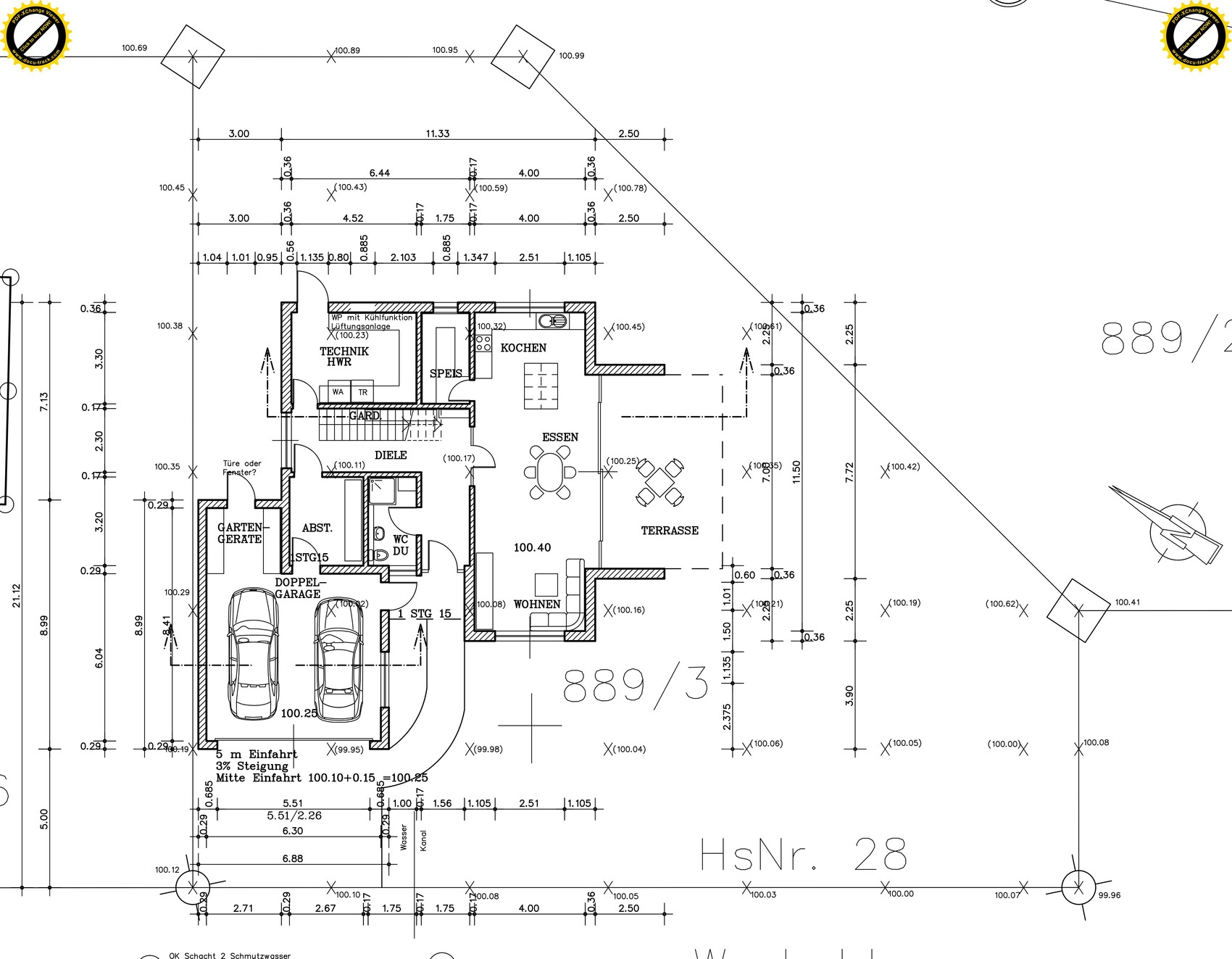
Diesen Entwurf würde ich nun gerne zur Diskussion stellen.
Wir haben uns bereits für einen regionalen Bauträger entschieden. Geplant ist ein Holzständerhaus mit Massivholzwänden innen und einer Holzständerwand mit eingeblasener Holzfaserdämmung außen.
Das ganze Haus soll am Ende den Kfw 40+ Standard erreichen.
Bebauungsplan/Einschränkungen
Größe des Grundstücks 760m²
Hang nein, Höhenunterschied Max. 90cm
Grundflächenzahl 0,3 (wurde aber durch vorherige Bauten nicht eingehalten)
Geschossflächenzahl 0,6 (wurde aber durch vorherige Bauten nicht eingehalten)
Baufenster, Baulinie und -grenze siehe Anhang
Randbebauung ja, Garage
Anzahl Stellplatz zwei pro Grundstück, min. 5m vor der Garage
Geschossigkeit Kniestock Max. 0,50m (wurde aber durch vorherige Bauten nicht eingehalten)
Dachform Satteldach 30-38°, Walmdach, Pult-/Flachdach 25%
Stilrichtung ---
Ausrichtung ---
Maximale Höhen/Begrenzungen ---
weitere Vorgaben naturrote Ziegeln
Anforderungen der Bauherren
Wir sind eine kleine Familie, zwei Erwachsene 41 Jahre und ein Kind 6 Jahre. Die Familienplanung ist abgeschlossen.
Wir hätten gerne ein Einfamilienhaus mit zwei Vollgeschossen, ohne Keller, mit Doppelgarage und Abstellraum als Kellerersatz.
Die Architektur sollte modern, hell und mit offenen Wohn-/ Ess-/ Küchenbereich sein.
Stilrichtung, Dachform, Gebäudetyp
- Modern
- als Dachform favorisieren wir im Moment ein Satteldach mit 22° Dachneigung.
- Ebenso würde uns ein Zeltdach gefallen, aber diese Dachform ist leider für eine Photovoltaikanlage nicht so Ideal.
- große Fenster für viel Licht im Haus, inkl. Raffstores für die Beschattung
Keller, Geschosse
nein, zwei Vollgeschosse
Anzahl der Personen, Alter
2 Erwachsene 41 Jahre und ein Kind 6 Jahre
Raumbedarf im EG, OG
Gesamtwohnfläche 180-200m²
Büro: Familiennutzung oder Homeoffice?
Büro im EG oder OG
Schlafgäste pro Jahr
keine geplant
offene oder geschlossene Architektur
offen
konservativ oder moderne Bauweise
modern
offene Küche, Kochinsel
ja, ja
Anzahl Essplätze
esstisch mit Platz für 6-8 Personen
Kamin
Nein
Musik/Stereowand
wenn möglich Multiroom Audio
Balkon, Dachterrasse
Nein
Garage, Carport
Doppelgarage + Abstellraum als Kellerersatz
Nutzgarten, Treibhaus
pflegeleichter Garten, Rasen mit Bewässerungsanlage und evtl. Hochbeete
weitere Wünsche/Besonderheiten:
Photovoltaik inkl. Batteriespeicher, KNX Smarthome
Hausentwurf
Von wem stammt die Planung:
-Planer eines Bauunternehmens
Bauingenieur
-Architekt
nein
-Do-it-Yourself
Was gefällt besonders? Warum?
trockener Zugang von Garage zum Haus,
geräumiger Wohnbereich mit schöner Terrasse
Was gefällt nicht? Warum?
Trotz kleiner Kompromisse alles in Ordnung
Preisschätzung lt Architekt/Planer:
440.000 Euro (Haus KFW 40+ inkl. Doppelgarage
Persönliches Preislimit komplett:
580.000 Euro inkl. Grundstück (65.000 Euro), Außenanlage, Küche, Einrichtung
favorisierte Heiztechnik:
Wärmepumpe und zentrale Wohnraumbelüftung
Wenn Ihr verzichten müsst, auf welche Details/Ausbauten
-könnt Ihr verzichten:
auf SmartHome und Batteriespeicher
-könnt Ihr nicht verzichten:
zwei Vollgeschosse, Doppelgarage, offene moderne Bauweise
Warum ist der Entwurf so geworden, wie er jetzt ist?
Wir wollten das bestmögliche aus dem Grundstück herausholen.
Grundsätzlich wollten wir die Terrasse gerne Richtung SW ausrichten, doch da ist leider die Straße und ich möchte nicht direkt auf dem Präsentierteller sitzen.
Zudem ist der Westen die Wetterseite mit viel Wind.
Was macht ihn in Euren Augen besonders gut oder schlecht?
???
Was ist die wichtigste/grundlegende Frage zum Grundriss in 130 Zeichen zusammengefasst?
Was haltet Ihr von dem Entwurf bzw. was könnte man anders machen?
Das Bad würden wir evtl. gerne noch umgestalten. T-Mauer?
Würdet ihr von der Fensteranordnung etwas anders machen?
Wir wären euch für jede Idee bzw. konstruktive Kritik sehr dankbar.




wir haben gerade ein Grundstück erworben und sind nun bei der Hausplanung angelangt.
Nachdem die ersten beiden Eigenversuche bei der Planung nicht so erfolgreich waren, haben wir uns nun mit einem Bauingenieur getroffen und einen Grundriss nach unseren Bedürfnissen entworfen.
Diesen Entwurf würde ich nun gerne zur Diskussion stellen.
Wir haben uns bereits für einen regionalen Bauträger entschieden. Geplant ist ein Holzständerhaus mit Massivholzwänden innen und einer Holzständerwand mit eingeblasener Holzfaserdämmung außen.
Das ganze Haus soll am Ende den Kfw 40+ Standard erreichen.
Bebauungsplan/Einschränkungen
Größe des Grundstücks 760m²
Hang nein, Höhenunterschied Max. 90cm
Grundflächenzahl 0,3 (wurde aber durch vorherige Bauten nicht eingehalten)
Geschossflächenzahl 0,6 (wurde aber durch vorherige Bauten nicht eingehalten)
Baufenster, Baulinie und -grenze siehe Anhang
Randbebauung ja, Garage
Anzahl Stellplatz zwei pro Grundstück, min. 5m vor der Garage
Geschossigkeit Kniestock Max. 0,50m (wurde aber durch vorherige Bauten nicht eingehalten)
Dachform Satteldach 30-38°, Walmdach, Pult-/Flachdach 25%
Stilrichtung ---
Ausrichtung ---
Maximale Höhen/Begrenzungen ---
weitere Vorgaben naturrote Ziegeln
Anforderungen der Bauherren
Wir sind eine kleine Familie, zwei Erwachsene 41 Jahre und ein Kind 6 Jahre. Die Familienplanung ist abgeschlossen.
Wir hätten gerne ein Einfamilienhaus mit zwei Vollgeschossen, ohne Keller, mit Doppelgarage und Abstellraum als Kellerersatz.
Die Architektur sollte modern, hell und mit offenen Wohn-/ Ess-/ Küchenbereich sein.
Stilrichtung, Dachform, Gebäudetyp
- Modern
- als Dachform favorisieren wir im Moment ein Satteldach mit 22° Dachneigung.
- Ebenso würde uns ein Zeltdach gefallen, aber diese Dachform ist leider für eine Photovoltaikanlage nicht so Ideal.
- große Fenster für viel Licht im Haus, inkl. Raffstores für die Beschattung
Keller, Geschosse
nein, zwei Vollgeschosse
Anzahl der Personen, Alter
2 Erwachsene 41 Jahre und ein Kind 6 Jahre
Raumbedarf im EG, OG
Gesamtwohnfläche 180-200m²
Büro: Familiennutzung oder Homeoffice?
Büro im EG oder OG
Schlafgäste pro Jahr
keine geplant
offene oder geschlossene Architektur
offen
konservativ oder moderne Bauweise
modern
offene Küche, Kochinsel
ja, ja
Anzahl Essplätze
esstisch mit Platz für 6-8 Personen
Kamin
Nein
Musik/Stereowand
wenn möglich Multiroom Audio
Balkon, Dachterrasse
Nein
Garage, Carport
Doppelgarage + Abstellraum als Kellerersatz
Nutzgarten, Treibhaus
pflegeleichter Garten, Rasen mit Bewässerungsanlage und evtl. Hochbeete
weitere Wünsche/Besonderheiten:
Photovoltaik inkl. Batteriespeicher, KNX Smarthome
Hausentwurf
Von wem stammt die Planung:
-Planer eines Bauunternehmens
Bauingenieur
-Architekt
nein
-Do-it-Yourself
Was gefällt besonders? Warum?
trockener Zugang von Garage zum Haus,
geräumiger Wohnbereich mit schöner Terrasse
Was gefällt nicht? Warum?
Trotz kleiner Kompromisse alles in Ordnung
Preisschätzung lt Architekt/Planer:
440.000 Euro (Haus KFW 40+ inkl. Doppelgarage
Persönliches Preislimit komplett:
580.000 Euro inkl. Grundstück (65.000 Euro), Außenanlage, Küche, Einrichtung
favorisierte Heiztechnik:
Wärmepumpe und zentrale Wohnraumbelüftung
Wenn Ihr verzichten müsst, auf welche Details/Ausbauten
-könnt Ihr verzichten:
auf SmartHome und Batteriespeicher
-könnt Ihr nicht verzichten:
zwei Vollgeschosse, Doppelgarage, offene moderne Bauweise
Warum ist der Entwurf so geworden, wie er jetzt ist?
Wir wollten das bestmögliche aus dem Grundstück herausholen.
Grundsätzlich wollten wir die Terrasse gerne Richtung SW ausrichten, doch da ist leider die Straße und ich möchte nicht direkt auf dem Präsentierteller sitzen.
Zudem ist der Westen die Wetterseite mit viel Wind.
Was macht ihn in Euren Augen besonders gut oder schlecht?
???
Was ist die wichtigste/grundlegende Frage zum Grundriss in 130 Zeichen zusammengefasst?
Was haltet Ihr von dem Entwurf bzw. was könnte man anders machen?
Das Bad würden wir evtl. gerne noch umgestalten. T-Mauer?
Würdet ihr von der Fensteranordnung etwas anders machen?
Wir wären euch für jede Idee bzw. konstruktive Kritik sehr dankbar.
Thorsten78 schrieb:
Grundflächenzahl 0,3 (wurde aber durch vorherige Bauten nicht eingehalten)
Geschossflächenzahl 0,6 (wurde aber durch vorherige Bauten nicht eingehalten)
....
Geschossigkeit Kniestock Max. 0,50m (wurde aber durch vorherige Bauten nicht eingehalten)
Dachform Satteldach 30-38°, Walmdach, Pult-/Flachdach 25%Welche vorherige Bauten?
Ihr plant ein Satteldach mit 22 Grad...
T
Thorsten7819.02.20 21:30Ich meinte die Häuser die in den letzten drei Jahren im Baugebiet gebaut wurden.
Der Bebauungsplan wurde von den Behörden nicht so genau genommen.
Unsere geplante Bauart sollte also keine Probleme bereiten.
Der Bebauungsplan wurde von den Behörden nicht so genau genommen.
Unsere geplante Bauart sollte also keine Probleme bereiten.
Wir haben hier in den letzten 3/4 Wochen mind. 2 Grundrissdiskussionen, wo der TE gleiches vermutete.
Leider konnte man in mind. einem der beiden Threads den Fehler schon bei GoogleMaps erkennen. Was heißt man. Wir! Der TE hat sich ganz einfach geirrt, indem er bei einem Zeltdach von einer 2-Geschossigkeit ausgegangen ist, aber schon viel Zeit mit seinen Plänen verbracht hat.
Ich weiß: Du möchtest jetzt eine ganz normale Diskussion, aber ich würde an Deiner Stelle erst einmal die Fakten prüfen, da eine Grundrissdiskussion viel Zeit und Brain verbraucht.
Zum Entwurf EG: Abstellraum und WC tauschen erwirkt, dass nicht der ganze Flur missbraucht wird, wenn man seine Garderobe los werden möchte.
4 Meter Breite über 11 Meter ist jetzt zwar durch das schöne große Panoramafenster einengend, dennoch könnte der reale Platz in der Breite fehlen.
Kinderbereich wäre schon schön, wenn da mal etwas Sonne hinkommt.
Bad wäre ich ganz anders anordnen. Das sieht etwas kümmerlich aus.
Für meinen Geschmack viel zu viel verschiedene Brüstungsvarianten und Fensterarten.
Leider konnte man in mind. einem der beiden Threads den Fehler schon bei GoogleMaps erkennen. Was heißt man. Wir! Der TE hat sich ganz einfach geirrt, indem er bei einem Zeltdach von einer 2-Geschossigkeit ausgegangen ist, aber schon viel Zeit mit seinen Plänen verbracht hat.
Ich weiß: Du möchtest jetzt eine ganz normale Diskussion, aber ich würde an Deiner Stelle erst einmal die Fakten prüfen, da eine Grundrissdiskussion viel Zeit und Brain verbraucht.
Zum Entwurf EG: Abstellraum und WC tauschen erwirkt, dass nicht der ganze Flur missbraucht wird, wenn man seine Garderobe los werden möchte.
4 Meter Breite über 11 Meter ist jetzt zwar durch das schöne große Panoramafenster einengend, dennoch könnte der reale Platz in der Breite fehlen.
Kinderbereich wäre schon schön, wenn da mal etwas Sonne hinkommt.
Bad wäre ich ganz anders anordnen. Das sieht etwas kümmerlich aus.
Für meinen Geschmack viel zu viel verschiedene Brüstungsvarianten und Fensterarten.
Schließe mich Yvonne an und möchte auch anregen, erst die exakten Möglichkeiten zum Bebauungsplan auszuloten. Wie sicher ist es, dass Ihr im OG 2,50m "Kniestock" bauen dürft? Für unsereins kaum nachvollziehbar, dass der Bebauungsplan hier völlig ausgehebelt werden darf. Wo sind wir denn hier?
kaho674 schrieb:
Schließe mich Yvonne an und möchte auch anregen, erst die exakten Möglichkeiten zum Bebauungsplan auszuloten. Wie sicher ist es, dass Ihr im OG 2,50m "Kniestock" bauen dürft? Für unsereins kaum nachvollziehbar, dass der Bebauungsplan hier völlig ausgehebelt werden darf. Wo sind wir denn hier? Naja, dazu muss man die Geschossflächenzahl auch wieder in Relation setzen. Anscheinend ist die 2-Geschossigkeit gesetzt und nur das DG darf Max 0,5 haben.
Aber es ist halt so, dass wenn man denkt, dass man ein Freibrief hat, dann werden die Fakten an den Haaren herbeigezogen und nichts wird richtig eingestellt.
Wer weiß also, was hier stimmt.
Ähnliche Themen