ᐅ Grundriss-Optimierung: schmales 148 m2 Einfamilienhaus auf 504 m2 Grundstück
Erstellt am: 10.12.25 22:58
D
DrummerAus eigener Erfahrung: wie bereits geschrieben ist es im Alltag absolut nervig so aus der Küche in das Esszimmer zu gehen.
Der Schmutzbereich ist exakt beim Gäste-WC.
Unten Hobby ist ja mega verschachtelt. Oben die Ecke für Gäste auch. Kommen nur einzelne Gäste, oder auch mal ein Pärchen?
Den Rest können die Könner ansprechen :-)
Der Schmutzbereich ist exakt beim Gäste-WC.
Unten Hobby ist ja mega verschachtelt. Oben die Ecke für Gäste auch. Kommen nur einzelne Gäste, oder auch mal ein Pärchen?
Den Rest können die Könner ansprechen :-)
Vielen Dank bis hierhin für die Rückmeldungen! 🙂
Im Folgenden der Versuch, auf alles einzugehen:
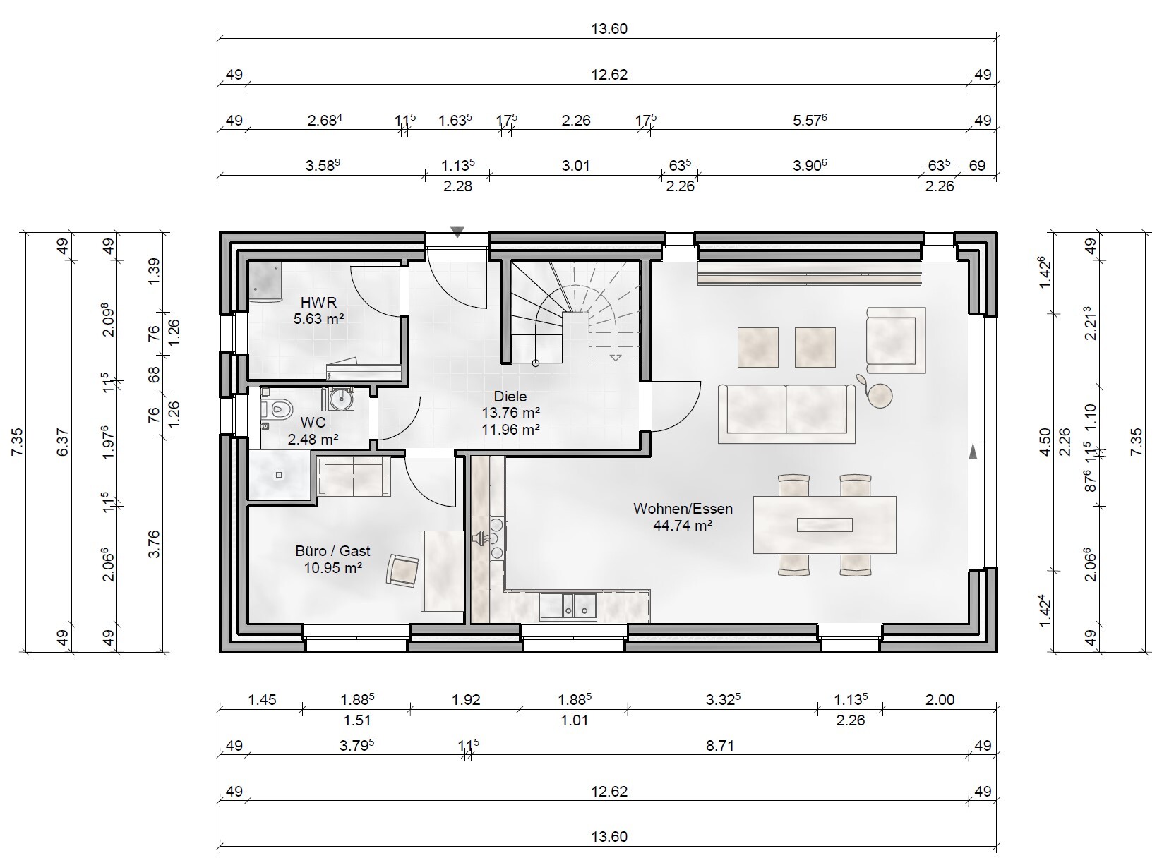
Thema Aufteilung Büro/Hobby, Hauswirtschaftsraum, WC, Küche im EG:
Dieser Bereich bietet wie @Gerddieter @Papierturm und @Joedreck festgestellt haben noch einiges an Optimierungspotenzial und bereitet mir aktuell die meisten Kopfschmerzen. Vielen Dank auch an dieser Stelle für den Hinweis auf Rohbaumaße und genügend Toleranz in der Breite!
Laufweg Küche-Essbereich:
Der aktuelle Stand gefällt uns da auch noch nicht.
Verkürzen könnten wir diesen wichtigen Laufweg natürlich mit einer Tür zwischen Küche und Essbereich.
Würde uns auf jeden Fall besser gefallen, als eine komplett offene Küche.
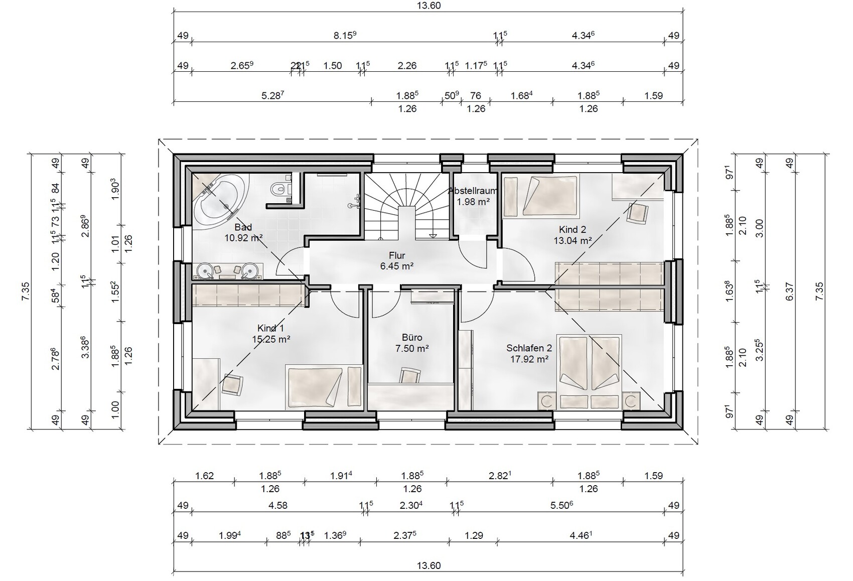
Thema Kniestock und Eingeschossigkeit:
Vielen Dank für den Hinweis @kbt09, mit einem Kniestock von ca. von weniger als 1,70 m ab Fertigfußboden ergibt die Dusche da wirklich keinen Sinn.
Ein zweites Vollgeschoss verbietet leider der Bebauungsplan (siehe Beitrag #1). Mit jedem ° weniger Dachneigung erhält man durch den steigenden Kniestock mehr Flexibilität. Daher überlege ich aktuell, die Dachneigung von 35° auf 30° abzusenken und den Kniestock weiter zu erhöhen.
Fenster:
Wir waren bisher sehr auf die Optimierung der Raumaufteilung fokussiert, sodass die Fenster kaum beachtet wurden.
Wie von @11ant beschrieben trifft es Frankenstein insofern sehr gut 😀
Da müssen wir auf jeden Fall ran.
Größe Hauswirtschaftsraum:
Verglichen mit dem ursprünglichen Entwurf (Poste ich im nächsten Beitrag) konnten wir den Hauswirtschaftsraum um 1,25 m2 vergrößern.
Wir planen aktuell ohne Trockner und Lüftungsanlage. Ob der Platz dennoch reicht, kläre ich zeitnah mit unserem Generalunternehmer.
Gäste:
@Joedreck die uns ca. 4x im Jahr besuchenden Personen sind immer Pärchen.
Das in Büro/Gast im DG dargestellte Bett soll ein Klappsofa symbolisieren, welches dann bei Bedarf auf die doppelte Fläche erweitert wird.
Im Folgenden der Versuch, auf alles einzugehen:
Thema Aufteilung Büro/Hobby, Hauswirtschaftsraum, WC, Küche im EG:
Dieser Bereich bietet wie @Gerddieter @Papierturm und @Joedreck festgestellt haben noch einiges an Optimierungspotenzial und bereitet mir aktuell die meisten Kopfschmerzen. Vielen Dank auch an dieser Stelle für den Hinweis auf Rohbaumaße und genügend Toleranz in der Breite!
Laufweg Küche-Essbereich:
Der aktuelle Stand gefällt uns da auch noch nicht.
Verkürzen könnten wir diesen wichtigen Laufweg natürlich mit einer Tür zwischen Küche und Essbereich.
Würde uns auf jeden Fall besser gefallen, als eine komplett offene Küche.
Thema Kniestock und Eingeschossigkeit:
Vielen Dank für den Hinweis @kbt09, mit einem Kniestock von ca. von weniger als 1,70 m ab Fertigfußboden ergibt die Dusche da wirklich keinen Sinn.
Ein zweites Vollgeschoss verbietet leider der Bebauungsplan (siehe Beitrag #1). Mit jedem ° weniger Dachneigung erhält man durch den steigenden Kniestock mehr Flexibilität. Daher überlege ich aktuell, die Dachneigung von 35° auf 30° abzusenken und den Kniestock weiter zu erhöhen.
Fenster:
Wir waren bisher sehr auf die Optimierung der Raumaufteilung fokussiert, sodass die Fenster kaum beachtet wurden.
Wie von @11ant beschrieben trifft es Frankenstein insofern sehr gut 😀
Da müssen wir auf jeden Fall ran.
Größe Hauswirtschaftsraum:
Verglichen mit dem ursprünglichen Entwurf (Poste ich im nächsten Beitrag) konnten wir den Hauswirtschaftsraum um 1,25 m2 vergrößern.
Wir planen aktuell ohne Trockner und Lüftungsanlage. Ob der Platz dennoch reicht, kläre ich zeitnah mit unserem Generalunternehmer.
Gäste:
@Joedreck die uns ca. 4x im Jahr besuchenden Personen sind immer Pärchen.
Das in Büro/Gast im DG dargestellte Bett soll ein Klappsofa symbolisieren, welches dann bei Bedarf auf die doppelte Fläche erweitert wird.
Wie angekündigt hier außerdem der initale Entwurf des Projektentwicklers.
Dieser stammt aus der Zeit, als das projektierte Grundstück inseriert war, wurde also erstellt, bevor wir unseren Input bezüglich Anforderungen gegeben haben.
@11ant das Haus basiert auf der "Stadtvilla V145" von Virtus Massivhaus.
Insgesamt passt das geplante Raumprogramm gut zu unseren Anforderungen, aber die Tücke steckt ja wie so oft im Detail.
Sehr gut gefiel uns





Dieser stammt aus der Zeit, als das projektierte Grundstück inseriert war, wurde also erstellt, bevor wir unseren Input bezüglich Anforderungen gegeben haben.
@11ant das Haus basiert auf der "Stadtvilla V145" von Virtus Massivhaus.
Insgesamt passt das geplante Raumprogramm gut zu unseren Anforderungen, aber die Tücke steckt ja wie so oft im Detail.
Sehr gut gefiel uns
- wenig "verschwendete" Flurfläche/Verkehrsfläche im DG
- Hauswirtschaftsraum anstatt WC im Schmutzbereich der Eingangstür
- weniger verwinkelte Raumaufteilung
- wenig Probleme mit Dachschrägen durch den 2,20 m hohen Kniestock und das 16° Walmdach
- wenig Platz im Garderobenbereich
- unpraktische, annähernd quadratische Form des Wohnzimmers
- Hauswirtschaftsraum (noch) kleiner als aktuell
- Büro DG zu klein für (Doppel-) Gästebett
- Schlafzimmer Wand an Wand mit Kinderzimmer
- offene Küche
- sehr wenig Lagerraum
11ant schrieb:
Ehrlich gesagt würde mich das Fassadenlayout von Dr. Frankenstein stören.Das ist angedeutete Klinkeroptik, und es kann sicherlich ein schicker Klinker werden. Die Fenster könnte man etwas anpassen.Drummer schrieb:
Geschossigkeit: 1,51Auszug aus der Hamburger Bauordnung, Par 2:
(6) Geschosse sind oberirdische Geschosse, wenn ihre Deckenoberkanten im Mittel mehr als 1,40 m über die Geländeoberfläche hinausragen; im Übrigen sind sie Kellergeschosse. Vollgeschosse sind Geschosse, deren Deckenoberkante im Mittel mehr als 1,40 m über die Geländeoberfläche hinausragt und die eine lichte Höhe von mindestens 2,3 m haben. Das oberste Geschoss und Geschosse im Dachraum sind Vollgeschosse, wenn sie diese Höhe über mindestens zwei Drittel der Geschossfläche des darunter liegenden Geschosses haben.
Bei dieser eingezeichneten 2,30-Höhenlinie ist das Obergeschoss ein Vollgeschoss, was nach Bebauungsplan nicht erlaubt ist.
Drummer schrieb:
Bei Interesse kann ich den ursprünglichen Entwurf hier gerne teilen.Gern. Oder ist es der in Miniformat? Der finde ich besser als der Aktuelle.Drummer schrieb:
Aktuell suchen wir nach einem Weg, die vorhandene Fläche noch etwas effizienter zu planen.Es gibt hier nach meinem Geschmack zu viel Verschachtelungen. Der Eingang zu Büro EG ist ein Witz und nur geschönte Flurverlängerung.Das Büro im OG verspricht mehr als es halten kann: Bettnische nicht für Erwachsene geeignet.
Papierturm schrieb:
würde ich eher 2,05 planen.5 cm ist auch zu wenig für Putz und Fußleisten.Papierturm schrieb:
Wenn man das geschlossen planen will, dann würde ich da aber den Weg etwas optimieren.Würde ich auchPapierturm schrieb:
3. Der Hauswirtschaftsraum kommt mir sehr klein vor. Sicher, dass da alles rein passt, was da rein soll?Der ist schon sehr klein. Wäsche wird dort schließlich auch gewaschen werden müssen.Insgesamt überzeugt er mich nicht.
- Unter der Treppe wäre zB noch ein schöner Raum, den man nutzen könnte.
- Garderobenwand mit 120 sollte für vier Personen nicht ausreichen.
- Dusche im EG ist so 75/75
- Kinderzimmer sind besser auf einer SW-Seite aufgehoben
- Schlafzimmer ist gross, hat aber keinen Platz für einen 3-Meter-Schrank
- Gast oben ist ein Rest.. bestenfalls geeignet für ein Bad mit vorgegebener Zonierung.
- die seitlichen Fenster sind 167cm hoch. Gut, daran kann man bei einem "möglichst hohem Kniestock" nichts machen, das ist halt der Nachteil. Allerdings könnte man mit Dachfenstern und geringerem Kniestock, zB 150 und höherer Dachneigung eventuell besser auskommen. Schränke kann man gut in den Drempel planen, Lagerfläche braucht es eh. Und zusätzlich bekommt man einen nützlichen Dachboden, den man besser begehen kann.
Diese 7,35 sind höchst undankbar. Nicht Fisch noch Fleisch. Und Vegetarier haben halt einen Mangel, den man ausgleichen muss.
Von der Planung her bringt es wahrscheinlich einen Mehrwert, wenn man oben anfängt.
M
MachsSelbst11.12.25 22:45Die Küche ist ja bestimmt noch nicht final, sie schreit nach einer Kochhalb(!)insel. Und den Abstellraum im OG bitte entfernen und dem Kind 2 noch diese Nische zu seinem Zimmer dazugeben, dann sind die Zimmer auch tatsächlich fast identisch groß. Das spart euch sogar das komplett unsinnige Fenster im Abstellraum, denn an die Wand gegenüber der Tür müsste ja ein Regal kommen.
Das angemessen kleine Büro gefällt mir, ein Fenster im Bad erscheint mir zu wenig.
Über das Gästezimmer können wir uns ewig streiten, ich finde es in einem Haus mit 140m² vollkommen überflüssig, es wird am Ende ein sehr teurer Abstellraum für Kram, den man lieber gleich weggeworfen hätte. Und wenn man es wirklich braucht, dann macht man es dem Besuchstakt entsprechend klein. Ein paar Mal pro Jahr können die Eltern auch in einem 6m² Zimmer schlafen, statt auf 15m² Damit gewinnt man 10m² für die Küche/Wohnraum hinzu. Also den Bereich wo sich 365 Tage im Jahr das Leben abspielt, auch bzw. vor allem wenn Oma und Opa zu Besuch sind. Die sitzen dann ja nicht 24/7 in ihrem Gästezimmer...
Wenn ihr das Gästezimmer eindampft und eine Kochhalbinsel zwischen Essbereich und Küche einbaut, bietet sich auch eine zweite Tür in die Küche von der Diele aus an. Das wird euch nach 2 Tagen im Haus schon ärgern, dass der Müll, Getränke, Einkäufe, usw. durchs Wohnzimmer zur Haustür getragen werden müssen und umgekehrt. Eine Küche muss immer auf dem kürzesten Weg an die Diele bzw. an die Haustür abgebunden werden. Denn dorthin tragt ihr euer Leben lang den Einkauf... meist zum Kühlschrank.
Das angemessen kleine Büro gefällt mir, ein Fenster im Bad erscheint mir zu wenig.
Über das Gästezimmer können wir uns ewig streiten, ich finde es in einem Haus mit 140m² vollkommen überflüssig, es wird am Ende ein sehr teurer Abstellraum für Kram, den man lieber gleich weggeworfen hätte. Und wenn man es wirklich braucht, dann macht man es dem Besuchstakt entsprechend klein. Ein paar Mal pro Jahr können die Eltern auch in einem 6m² Zimmer schlafen, statt auf 15m² Damit gewinnt man 10m² für die Küche/Wohnraum hinzu. Also den Bereich wo sich 365 Tage im Jahr das Leben abspielt, auch bzw. vor allem wenn Oma und Opa zu Besuch sind. Die sitzen dann ja nicht 24/7 in ihrem Gästezimmer...
Wenn ihr das Gästezimmer eindampft und eine Kochhalbinsel zwischen Essbereich und Küche einbaut, bietet sich auch eine zweite Tür in die Küche von der Diele aus an. Das wird euch nach 2 Tagen im Haus schon ärgern, dass der Müll, Getränke, Einkäufe, usw. durchs Wohnzimmer zur Haustür getragen werden müssen und umgekehrt. Eine Küche muss immer auf dem kürzesten Weg an die Diele bzw. an die Haustür abgebunden werden. Denn dorthin tragt ihr euer Leben lang den Einkauf... meist zum Kühlschrank.
Drummer schrieb:
@11ant das Haus basiert auf der "Stadtvilla V145" von Virtus Massivhaus.Das ist aber eine (zu) freie Interpretation, einen im Original quadratischen Grundriss auf einen im Seitenverhältnis unweit 2:1 zu übersetzen. Damit sehe ich den Bezug zum zugrundegelegten Kataloghaus verloren, was die Vorzüge eines bewährten Bauvorschlages anbelangt.ypg schrieb:
Bei dieser eingezeichneten 2,30-Höhenlinie ist das Obergeschoss ein Vollgeschoss, was nach Bebauungsplan nicht erlaubt ist.Die Skepsis gegenüber der Nichtvollgeschossigkeit des OG teile ich leider.Ich finde - auch wenn ich Yvonne Recht geben muß, daß ein Doppelhaus hier naheliegender wäre - den Entwurf des Projektentwicklers für ein Haus in dieser Bedarfssituation gut. Allerdings habt Ihr bei dessen Anpassung m.E. zu tief in die Verschachtelungskiste gegriffen, die Urversion des Projektentwicklers ist "runder" (wenngleich ich auch hier die Fassaden austarierungsbedürftig finde). Man wird sehen müssen, was von dem Entwurf noch übrig bleibt, wenn eine Bauvoranfrage meines Erwartens die relative Größe des OG moniert.
Die kecke Ecke in der Grundstücksteilungslinie erschließt sich mir nicht. Ich nehme an, der Projektentwickler hat Aktien in der Sache, daß Ihr das Grundstück mit Virtus bebaut (?)
https://www.instagram.com/11antgmxde/
https://www.linkedin.com/company/bauen-jetzt/
Ähnliche Themen