Hausbau - Ratgeber
Bauherrenhilfe
- Bauherrenhilfe vor Vertragsabschluss
-- Warum einen unabhängigen Baubetreuer?
-- Vertragsgrundlagen
-- Bausumme
-- Zahlungsplan zur Kostenkontrolle
-- Pflichten des Bauherren vor Vertragsabschluss
-- Unterlagen beim Hausbau vor Vertragsabschluss
- Bauherrenhilfe nach Vertragsabschluss
-- Bauantrag bei Behörden
-- Bau-Genehmigungsverfahren bei Baubehörden
-- Bauspezifische Versicherungen
-- Bauzeitenplan
-- Baubeginn - die Letzten Pflichten der Bauherrschaft
- Bauherrenhilfe während der Bauzeit
- Gewährleistungsansprüche
- Bauabnahme
Baufinanzierung
- Baufinanzierung - Allgemeine Fragen
- Kreditarten
- Kredit-Konditionen
- Bausparen
- Staatliche Förderungen
- Verkehrswert
- Haushaltsrechnung und Bonität
Hausbau Planung
- Haustypen
- Hausbau Vorbereitungsarbeiten
- Das Baugrundstück
- Baugrund beim Hausbau
- Baurecht
- Gebäudeschutz
- Erdarbeiten und Wasserhaltung
- Stützmauern
- Einfriedung
- Untergeschoss
- Kanalisation
- Tragende Elemente
- Nichttragende Innenwände
- Fundation / Fundament
- Deckenkonstruktionen
- Dächer
- Kaminanlagen
- Treppen Rampen Leitern
- Dachbeläge und Spengler
- Fenster
- Sonnen und Wetterschutz
- Aussenputze
- Einbauten, Küchen, Türen
- Bodenbeläge und Unterlagsböden
- Parkett
- Gips, Wand, Decke
Haustechnik und Energie
- Heiztechnik
- Lüftung und Klimatechnik
- Sanitärtechnik
- Elektrotechnik
- Erneuerbare Energie
Whirlpools / Jacuzzi
Hausbau Magazin
- Baufinanzierung trotz Krise?
- Das Blockhaus
- Moderne Dämmstoffe im Vergleich
- Erker Vor- und Nachteile
- Glasflächen beim Hausbau
- Günstig ein Haus Bauen
- Mediterraner Hausbaustil
- Mehrgenerationenhaus
- Moderne Architektur
- Gartengestaltung leicht gemacht
- Traditioneller Ziegelbau
- Villa als höchster Traum
- Im Eigenheim Ruhestand geniessen
- Altbau sanieren
- Kauf einer Holzgarage
- Immobilienmakler
- Arbeitshandschuhe für den Winter
- Zuhause verschönern
- Outdoor-Plissees
- Schlafzimmer planen
- Terrassenüberdachung
- Wohngebäudeversicherung
- Zaunarten und Eigenschaften
- Hauseingang gestalten
- Der perfekte Grundriss
- Sparsamer heizen im Altbau
- Einfamilienhaus smart finanzieren
- Planung einer PV-Anlage
- Neues Haus
- Immobilienfinanzierung
- Installation einer Photovoltaikanlage
- Asbest erkennen und entfernen
- Gartenpflege im Frühling – worauf achten
- Sauna im Fokus - Wellness zuhause
- Erfolgreich vermieten
- Die perfekte Winterbekleidung
- Das Niedrigenergiehaus
- Der April und seine Stürme
- Architektonische Vielfalt
- Ökologisch und nachhaltig bauen
- Das perfekte Schlafzimmer
- Nachhaltige Energieversorgung
- Zukunftsorientiert bauen
- Nachhaltigkeit beim Hausbau
- Tiny Houses
- Wärmepumpen als nachhaltige Heizvariante
- Maßgeschneiderten Kleiderschrank
- Der richtige Baukredit
- Ratgeber für erfolgreichen Hausbau
- Haus als Altersvorsorge
Do-it-yourself Anleitungen
- Verlegeanleitung für Bodenbeläge und Parkett
- Bodenbeläge und Parkett reinigen und pflegen
- Malerarbeiten am Haus
- Garten Tipps
- Umzug und Reinigung

ᐅ Grundriss-Entwurf: Einfamilienhaus mit Keller; 560qm Grundstück

Erstellt am: 10.03.24 13:26
J
JKHandler
Y
ypg
12.08.24 22:26
JKHandler schrieb:

Der First ist um 90° gedreht. So hatten wir uns das aus #13 und #17 mitgenommen und weitergegeben.
In #13 verläuft der First anders herum... in #17 ist kein First eingezeichnet.
JKHandler schrieb:

Firstrichtung war Wunsch, in Anlehnung an #17.
In beiden Entwürfen kann man aber erkennen, wo die Reise hingeht, nämlich in Ausrichtung zum Garten mit der breiten Traufseite.
11ant13.08.24 01:17
JKHandler schrieb:

Fazit ist also: Der Grundriss ist nicht wirklich für das Grundstück geeignet. Das wirft dann nun die Frage für das weitere Vorgehen auf. Sollte man den Grundriss aus #12 noch mal gänzlich überarbeiten (falls das überhaupt möglich ist), oder tatsächlich erneut den Schritt über Los? Falls erneut, was wäre eure empfohlene Vorgehensweise. @11ant priorisiert das OG, aber vor dem OG benötigt man doch die ungefähre Form und Ausrichtung des Hauses auf dem Grundstück, oder? [...]

Firstrichtung war Wunsch, in Anlehnung an #17. Der Architekt hat das Haus scheinbar an der oberen Grundstücksgrenze orientiert und somit etwas weiter nach Osten gedreht als in #17.

Bezüglich der Elementdecke: Ich sehe den Vorteil der Nutzung einer Betonkernaktivierung (gerade in Kombination mit Photovoltaik), Dampfbremse entfällt (fehlerträchtig), geringfügigere Rissbildung, einfachere Dämmung (zum Nachteil des Dachbodens).

Zum Technikschacht: Was ist hier genau planlos?

Zu der Übersicht: Bevor unnötig Blindleistung generiert wird: Reden wir von einer Gegenüberstellung von #17 vs. #29 oder #29 vs. #1?

Was auch immer Du hier mit dem Generieren von Blindleistung meinst, ich meine (m.E. selbstverständlich) letzteres, also die Synopse zwischen dem (zudem nach einer längeren Pause) jüngstdiskutierten Entwurf (29) mit demjenigen, der zu Threadbeginn gezeigt wurde (1/2). "Nicht für das Grundstück geeignet" wäre ein Grundriss, wenn das Grundstück topographisch einen anderen Grundriss erfordern würde. Paßmängel zwischen Umriss und Baufenster sind meist leicht behebbar, auch wenn es dabei regelmäßig Kratzer an der heiligen Kuh Haus-Garage-Schleuse gibt (die ich bekanntlich ohnehin der Priorität ZZ anempfehle).

Auf dieser Ebene sind die "Probleme" populär hausgemacht auf dem Mist von Bauherren und Planern gewachsen, also eigentlich Glaubenssätzen / Wünschen geschuldet, beispielsweise Maximierung eines Sonnenbrandsüdgartens oder Mißbrauch von Nebenbaukörpern zu Sichtschutznebenzwecken. Dir scheint beispielsweise wichtig zu sein, den Hund dem Schwanz unterzuordnen, also das Wohnen dem Solarertrag. Das taugt exzellent als Anleitung zum Unglücklichsein, bzw. produziert recht sicher eine (eigentlich vermeidbar) lange Reihe von Noch nicht ganz zufrieden Grundrissen.

Ich "priorisiere" das OG nicht, sondern kenne und beleuchte lediglich den kausalen Zusammenhang zwischen dem Phänomen der planerischen Selbstfesselung in der Eigentor-Sackgasse durch das "Vorwärtseinparken", das EG vor dem OG auszuformulieren. Da meine Herzdame mich zu positiven Ausdrucksweisen motiviert, sage ich eben nicht "Vorsicht vor dem Beginnen mit dem EG", sondern: "man geht am geschicktesten in der Weise vor, daß man nach der gemeinsamen Quantifizierung und Qualifizierung des Raumprogrammes und deren Verteilung auf EG und OG mit der zeichnerischen Übersetzung zuerst im OG fortfährt". So bleibt der Teig knetbar, bis er seine Form gefunden hat.

Dem OG eine schwerere Decke zu geben, führt als Nebenwirkung zu einer Dominanz seiner tragenden Wände, und damit zur kniffligeren Koordination der Wändepositionen der beiden Stockwerke untereinander. Für die Deckenkühlung des OG gilt sinngemäß dasselbe wie im vorvorherstehenden Abschnitt bezüglich des Aspektes "Solar geht über Wohnen".

Die Technikschächte wirken planlos weil unbegründet in Position und Dimension, sperrig in den Raum gestellt, und wohl auch ohne konkrete Idee von Revisionsfreundlichkeit. Vermutlich habt Ihr Wünsche geäußert von denen der Planer wenig Vorstellungen hat, und nun will er den Installateuren wenigstens üppig Platz für ihre Improvisationen geben. Das sieht nach einem Architekten frisch von der Uni oder einem GU-Zeichenknecht aus, beiden Gruppen mangelt es in beängstigendem und im Ergebnis auch teurem Maße daran, die Bauherren auf den Boden der Realität von Budget und "nur dreidimensionalem" Raum zu führen (die beide eine entspannte Haltung zu Kompromissen oder doch zumindest Paretooptimae erfordern). "Was genau hier planlos ist" ? - tja, da könnten beide Enden der Schächte (also vollständige OG-EG-Paarsätze) Licht ins Dunkel bringen [ich bekomme schon wieder Magenschmerzen vom verordneten Emoticonverzicht, manche Sätze erforden solche Ventile, sonst kommt man als Schreibender schwer über den Underberg].
https://www.instagram.com/11antgmxde/
https://www.linkedin.com/company/bauen-jetzt/
H
hanghaus2023
13.08.24 09:08
In #17 habe ich die Firstrichtung O - W vorgesehen. Die Orientierung an der Nord Grenze hatte den Vorteil, das man viel Garten und Dachfläche im Süden hat.

Die Aufteilung ohne Keller und gesonderter Werkstatt war um Dein Vorhaben irgendwie ins Budget zu bekommen.

Die Erker und vielen Kamine kosten auch unnötig Geld.

3m lichte Höhe ebenfalls.
D
DaHias81
13.08.24 14:44
Nachdem ja offenbar das Budget durchaus ein Thema zu sein scheint, stellen sich mir folgende Fragen:
1. Muss es denn eine halbgewendelte Treppe + Galerie sein. Geht nicht eine normale viertelgewendelte ohne Galerie auch?
2. Welche Bettlandschaft passt nicht in ein Elternschlafzimmer mit gut 15qm bzw mit 4,3x3,5m??
3. Was wollt Ihr in einer 14qm Ankleide alles machen? Nur so zur Relation: Ihr habt für die paar Stunden, die Ihr Schlafzimmer/Ankleide verwendet, so viel Raumbedarf wie die beiden Kinder zusammen...
Für mich wirkt das so, als sei nach Verwirklichung des EG im OG noch Platz über geblieben, der irgendwie zu füllen war...
Zum Thema EG hab ich nur eine Frage (die andere auch schon gestellt haben): Ihr habt einen Keller auch noch - braucht es da wirklich die Speisekammer? Wir haben z.B. einen ganz klassischen "Vorratskeller" für alle Lebensmittel, die nicht täglich gebraucht werden, für den Gefrierschrank und die Getränke. Dann könnte evtl auch der Durchgang zur Garage entfallen.
J
JKHandler
13.08.24 16:28
ypg schrieb:


In #13 verläuft der First anders herum... in #17 ist kein First eingezeichnet.



In beiden Entwürfen kann man aber erkennen, wo die Reise hingeht, nämlich in Ausrichtung zum Garten mit der breiten Traufseite.


Ich habe in der Vergleichsskizze den First als Linie mal angedeutet.

11ant schrieb:

Was auch immer Du hier mit dem Generieren von Blindleistung meinst, ich meine (m.E. selbstverständlich) letzteres, also die Synopse zwischen dem (zudem nach einer längeren Pause) jüngst diskutierten Entwurf (29) mit demjenigen, der zu Threadbeginn gezeigt wurde (1/2). "Nicht für das Grundstück geeignet" wäre ein Grundriss, wenn das Grundstück topographisch einen anderen Grundriss erfordern würde. Paßmängel zwischen Umriss und Baufenster sind meist leicht behebbar, auch wenn es dabei regelmäßig Kratzer an der heiligen Kuh Haus-Garage-Schleuse gibt (die ich bekanntlich ohnehin der Priorität ZZ anempfehle).

Vergleichsskizze ist nun angehangen, die schwarze Linie deutet den First (bzw. Giebelstreifen bei #1) an. Zudem findest Du im Anhang das andere passende EG.
11ant schrieb:

Auf dieser Ebene sind die "Probleme" populär hausgemacht auf dem Mist von Bauherren und Planern gewachsen, also eigentlich Glaubenssätzen / Wünschen geschuldet, beispielsweise Maximierung eines Sonnenbrandsüdgartens oder Mißbrauch von Nebenbaukörpern zu Sichtschutznebenzwecken. Dir scheint beispielsweise wichtig zu sein, den Hund dem Schwanz unterzuordnen, also das Wohnen dem Solarertrag. Das taugt exzellent als Anleitung zum Unglücklichsein, bzw. produziert recht sicher eine (eigentlich vermeidbar) lange Reihe von Noch nicht ganz zufrieden Grundrissen.



Ich "priorisiere" das OG nicht, sondern kenne und beleuchte lediglich den kausalen Zusammenhang zwischen dem Phänomen der planerischen Selbstfesselung in der Eigentor-Sackgasse durch das "Vorwärtseinparken", das EG vor dem OG auszuformulieren. Da meine Herzdame mich zu positiven Ausdrucksweisen motiviert, sage ich eben nicht "Vorsicht vor dem Beginnen mit dem EG", sondern: "man geht am geschicktesten in der Weise vor, daß man nach der gemeinsamen Quantifizierung und Qualifizierung des Raumprogrammes und deren Verteilung auf EG und OG mit der zeichnerischen Übersetzung zuerst im OG fortfährt". So bleibt der Teig knetbar, bis er seine Form gefunden hat.

Aufteilung hatten wir wie folgt vorgesehen:
  • UG: Werkstatt, Lager, Hauswirtschaftsraum, Technikraum
  • EG: Gästezimmer/Büro, Badezimmer (Dusche u. WC), Speisekammer, Küche, Ess- und Wohnzimmer
  • OG: Kind1, Kind2, Eltern, Bad
Was uns noch fehlt ist das Puzzlestück für den Übergang in Form und Ausrichtung des Hauses auf dem Grundstück. Ein paar Gedanken, losgelöst von allen Entwürfen: Als Hauptgarten bietet sich natürlich der rechte Teil des Grundstücks an (Süd-Seite), somit wäre die Anordnung der Kinderzimmer Richtung Süd-Ost, Badezimmer und Elternzimmer richtet sich dann eher nach der Anordnung der Nasszellen? Im EG Küche ideal mit Zutritt zum Garten und kurze Wege vom Eingang aus. Das entspräche dann ja ungefähr einer Spiegelung des Allraums aus dem aktuellen Entwurf und dann um 90° im UZS gedreht - wobei L Form für Wohnzimmer, Küche und Essbereich auch in Frage käme, ähnlich wie im ersten Entwurf.

Auf Basis dieser Gedanken @alle (gerne korrigieren, falls hier was total daneben ist): Welche Anordnungsmöglichkeiten (Form und Ausrichtung; auch unter dem Aspekt, das man Speisekammer streichen kann) ergeben sich unter Berücksichtigung des Raum- und Platzbedarf? Oder kann man gar den aktuellen Entwurf so umgestalten, dass es dem gerecht wird?
11ant schrieb:

Die Technikschächte wirken planlos weil unbegründet in Position und Dimension, sperrig in den Raum gestellt, und wohl auch ohne konkrete Idee von Revisionsfreundlichkeit. Vermutlich habt Ihr Wünsche geäußert von denen der Planer wenig Vorstellungen hat, und nun will er den Installateuren wenigstens üppig Platz für ihre Improvisationen geben. Das sieht nach einem Architekten frisch von der Uni oder einem GU-Zeichenknecht aus, beiden Gruppen mangelt es in beängstigendem und im Ergebnis auch teurem Maße daran, die Bauherren auf den Boden der Realität von Budget und "nur dreidimensionalem" Raum zu führen (die beide eine entspannte Haltung zu Kompromissen oder doch zumindest Paretooptimae erfordern). "Was genau hier planlos ist" ? - tja, da könnten beide Enden der Schächte (also vollständige OG-EG-Paarsätze) Licht ins Dunkel bringen [ich bekomme schon wieder Magenschmerzen vom verordneten Emoticonverzicht, manche Sätze erforden solche Ventile, sonst kommt man als Schreibender schwer über den Underberg].

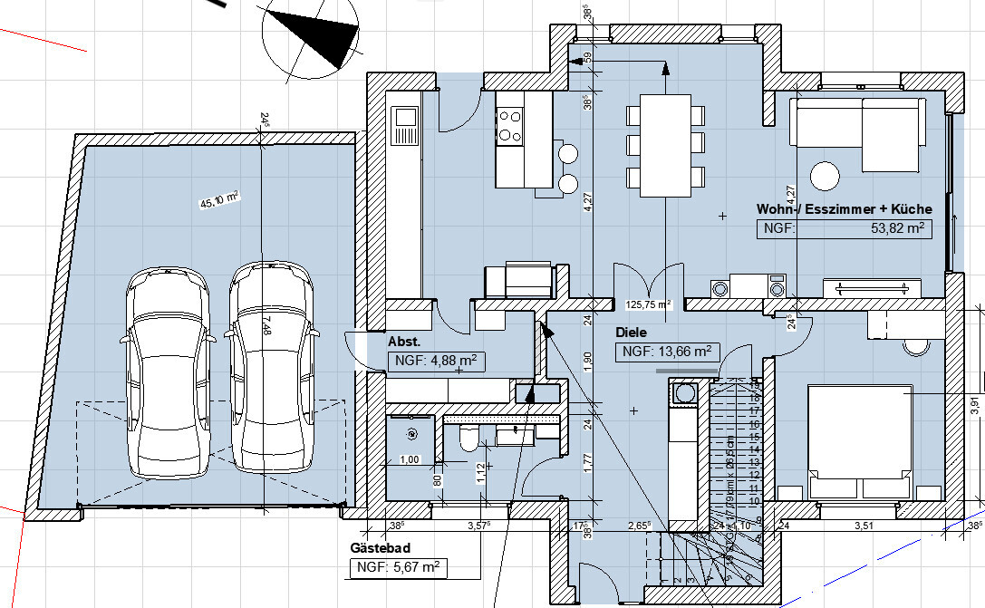
Unser aktuelles Verständnis, zumindest für Entwurf aus #29 (Bild 1) ist: Der HKV für die BKA und Fußbodenheizung wird in jeder Etage in der Nische der 24er Wand Richtung Flur platziert. Platz für eine dezentrale UV ist auch vorhanden, falls keine zentrale UV angestrebt wird. Von dort aus ist die Fußbodenheizung für alle Räume gut zu erreichen und verlegbar. Wenn man nun zwei mind. 160er Spirorohre für Kontrollierte-Wohnraumlüftung, ca. 4 gut isolierte 40er MSVR Steigleitungen für BKA und Fußbodenheizung, eine Fallleitung, Wasser, Elektrik, Netzwerk und co verlegt wird der Schacht schnell voll. Aber ja, der Schacht hier ist schon groß im Verhältnis zum Haus, wobei die Größe auch stark von der technischen Ausrüstung abhängig ist. Revisierbarkeit ist ein gutes Thema! Danke für den Hinweis. Zugänglichkeit beim anderen Entwurf (EG hier angehangen) sehe ich problematisch und Wärmeabgabe in die Speisekammer bei umgedrehter Montage ebenfalls. Anregungen und Kritik sind gern gesehen.

hanghaus2023 schrieb:

In #17 habe ich die Firstrichtung O - W vorgesehen. Die Orientierung an der Nord Grenze hatte den Vorteil, das man viel Garten und Dachfläche im Süden hat.
Das hat uns auch gut gefallen und wurde als Anreiz dem Architekten mitgegeben.

hanghaus2023 schrieb:

Die Erker und vielen Kamine kosten auch unnötig Geld.
Geplant ist nur ein Kamin und ein Schornstein. In dem hier vorgestellten Entwurf wurde nur der empfohlene Schornstein u. Position vom Schorni zusätzlich dargestellt.
hanghaus2023 schrieb:

3m lichte Höhe ebenfalls.
Der Gedanke dahinter war: Bei der Realisierung der Kontrollierte-Wohnraumlüftung ist es nach ersten Überschlagsrechnungen günstiger, ein Stein höher zu Mauern (inkl. was darauf folgt), als 75er Lüftungsrohre in der Elementdecke mit erhöhtem Stahl und Beton Bedarf und andere technische Ausführung.
Grundriss eines Hauses: Garage mit zwei Autos, offenes Wohn-/Esszimmer mit Küche, Diele, Gäste-WC.

Architekturplan mit violetten und blauen Flächen, rotem Umriss, Kompass und Maß 30
J
JKHandler
13.08.24 17:12
DaHias81 schrieb:

Nachdem ja offenbar das Budget durchaus ein Thema zu sein scheint, stellen sich mir folgende Fragen:
1. Muss es denn eine halbgewendelte Treppe + Galerie sein. Geht nicht eine normale viertelgewendelte ohne Galerie auch?
Nein, Galerie ist absolut kein Muss, das war der Vorschlag vom Architekt. Bei der Treppe sind wir auch kompromissbereit.
DaHias81 schrieb:

2. Welche Bettlandschaft passt nicht in ein Elternschlafzimmer mit gut 15qm bzw mit 4,3x3,5m??

216x240cm, je nach dem wie man es mit Nachttisch stellt kann es dann halt schon die Laufwege beeinträchtigen (zumindest auf der 3,5m Seite, dort hätte man dann einen schmalen Gang von 67cm).
DaHias81 schrieb:

3. Was wollt Ihr in einer 14qm Ankleide alles machen? Nur so zur Relation: Ihr habt für die paar Stunden, die Ihr Schlafzimmer/Ankleide verwendet, so viel Raumbedarf wie die beiden Kinder zusammen...
Für mich wirkt das so, als sei nach Verwirklichung des EG im OG noch Platz über geblieben, der irgendwie zu füllen war...
Den selben Kritikpunkt hatten wir auch. Lieber dafür mehr Platz für die Kinder und das Elternschlafzimmer minimal größer mit Stellfläche für Schrankmeter.
DaHias81 schrieb:

Zum Thema EG hab ich nur eine Frage (die andere auch schon gestellt haben): Ihr habt einen Keller auch noch - braucht es da wirklich die Speisekammer? Wir haben z.B. einen ganz klassischen "Vorratskeller" für alle Lebensmittel, die nicht täglich gebraucht werden, für den Gefrierschrank und die Getränke. Dann könnte evtl auch der Durchgang zur Garage entfallen.
Wenn Speis entfallen sollte, müsste man im Entwurf schauen, dass die Küche genug Stauraum bietet. Neben Lebensmittel war die Intention auch die regelmäßig genutzten Küchengeräte in der Speisekammer zu verstauen (davon haben wir recht viele).
entwurfspeisekammerfirstküchegartengrundstückfußbodenheizunggrundrissgaragearchitekten