ᐅ Einfamilienhaus - Stadtvilla - 160qm Wohnfläche
Erstellt am: 09.10.17 11:03
S
schnizzel09.10.17 11:03Hallo zusammen,
nun endlich ist es so weit. Die Zeit für meinen eigenen Grundriss-Thread ist nach ca. einjährigem Mitlesen und zahlreichen Diskussionsabenden mit der Freundin endlich gekommen.
Wir waren uns von Anfang an einig, dass wir eine Stadtvilla mit mediterranem Touch haben wollen.
Da sich das Grundstück in einem Dorf befindet und es keinen Bebauungsplan für den Bauplatz gibt, wurde uns vom LRA gleich einen Riegel vorgeschoben --> Satteldach ist Pflicht.
Wollten wir so nicht einsehen und haben gemeinsam mit dem Bürgermeister Gründe erörtert, die für einen Bau mit Walm- oder Satteldach sprechen.
Die Gemeinde steht voll hinter unseren Plänen und versucht nun alles möglich zu machen, damit wir so bauen können wie wir es wollen.
Den Antrag auf ELR Zuschuss haben wir ebenfalls gemeinsam mit der Gemeinde gestellt.
Das Grundstück ist eine Baulücke, die gerade noch landwirtschaftlich bewirtschaftet wird.
Anschlüsse für Wasser, Abwasser, Strom etc. sind auch schon gelegt worden, als die Straße neu gemacht wurde.
Nun zum Haus selbst:
DER Grundriss IST NOCH NICHT ZU 100% SO WIE WIR ES WOLLEN!
Bebauungsplan/Einschränkungen: n.v.
Größe des Grundstücks: 964qm
Hang: leichte Hanglage, ca. 2 Meter auf 63m Länge
Grundflächenzahl
Geschossflächenzahl
Baufenster, Baulinie und -grenze: gesetzlicher Abstand (Möglichkeit der Änderung besteht)
Anzahl Stellplatz: Doppelgarage
Geschossigkeit: 2 Vollgeschosse
Dachform: Walmdach
Stilrichtung: mediterrane Stadtvilla
Maximale Höhen/Begrenzungen
weitere Vorgaben
Anforderungen der Bauherren
Stilrichtung, Dachform, Gebäudetyp: mediterran, Säulen am Hauseingang
Keller, Geschosse: 2 Geschosse + Keller
Anzahl der Personen, Alter: 2x29
Raumbedarf im EG, OG:
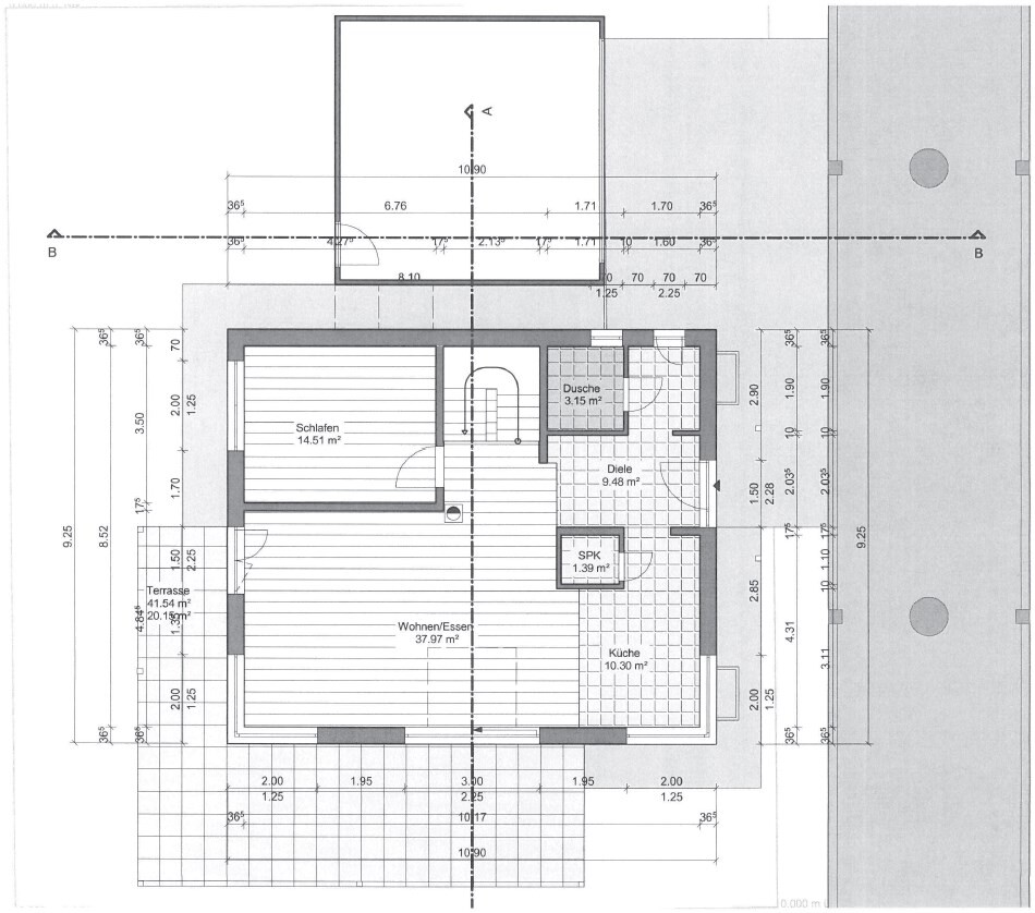
EG: 1x Büro bzw. Schlafen (für später) + 1x Dusch-WC
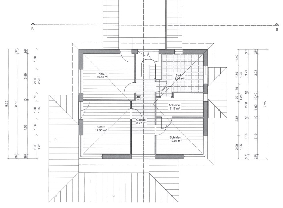
OG: 2x Kinderzimmer, Ankleide mit separatem Ausgang
Büro: Familiennutzung oder Homeoffice? Beides
Schlafgäste pro Jahr: Ungewiss
offene oder geschlossene Architektur: Auf jeden Fall offen!
konservativ oder moderne Bauweise: modern
offene Küche, Kochinsel: Ja!
Anzahl Essplätze: 6+
Kamin: Ja
Balkon, Dachterrasse: Optionale Dachterrasse auf der Garage, die über Kinderzimmer 2 begehbar wäre.
Garage, Carport: Doppelgarage
Nutzgarten, Treibhaus: Grundstück ist aktuell zum Teil als Nutzgarten angelegt, soll später großteils Rasen werden.
weitere Wünsche/Besonderheiten/Tagesablauf, gern auch Begründungen, warum dieses oder das nicht sein soll:
Hausentwurf
Von wem stammt die Planung:
- Eigene Planung, gemeinsam mit Architekt durchgesprochen. NUR GROBKONZEPT!
Was gefällt besonders? Warum?: Der große Wohn-Essbereich ist für uns das Highlight. Hier soll das Büro/Schlafzimmer noch auf Höhe Speisekammer gezogen werden, und der Kamin somit noch ein Stück weiter in den Wohnbereich rücken.
Um nicht ganz ohne "Deckung" im Wohnbereich zu sein, wollen wir ein gestalterisches Element als Sichtschutz in diesem Bereich einfügen.
Auch die großen Kinderzimmer finde ich super!
Was gefällt nicht? Warum? Die ganzen Übereckfenster. Da hat es der Planer voll übertrieben. Ich hatte ein Übereck-Fenster in der Küche als Variante vorgeschlagen, da hat er einfach mal überall solche Fenster eingebaut.
Allgemein ist die Anordnung der Fenster von Außen gesehen gelinde gesagt grausam.
Preisschätzung lt Architekt/Planer: ---> möchte zuerst eure Einschätzung hören (Ba-Wü, sehr ländliche Gegend)
Persönliches Preislimit fürs Haus, inkl Ausstattung: 420k
favorisierte Heiztechnik: LWW
Wenn Ihr verzichten müsst, auf welche Details/Ausbauten
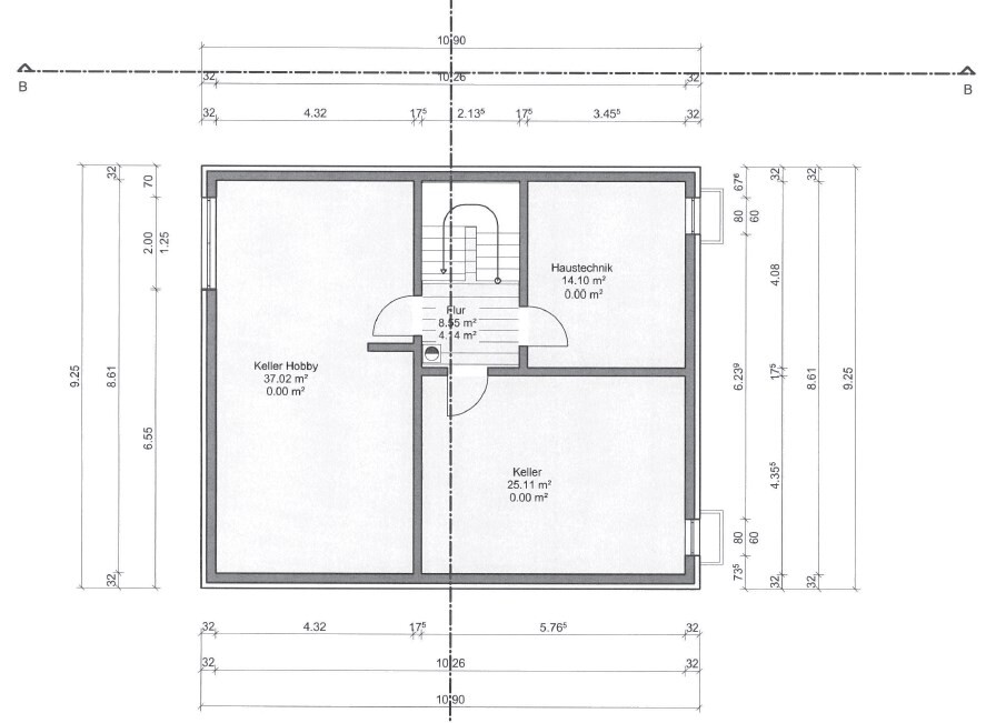
-könnt Ihr verzichten: Doppelgarage evtl. erst später bauen. Keller, dann muss aber der ganze Grundriss noch mal geändert werden um Technik und Hauswirtschaftsraum unterzubringen
-könnt Ihr nicht verzichten: Zimmer im EG
Warum ist der Entwurf so geworden, wie er jetzt ist?
Wir haben bei einem Besuch im Musterhauspark in Stuttgart ein Haus gesehen, dass vom Grundriss her schon nahezu perfekt für uns erschien.
Was ist die wichtigste/grundlegende Frage zum Grundriss in 130 Zeichen zusammengefasst?
Gibt es von eurer Seite her bedenken, Ideen, Vorschläge wie man den Grundriss noch schönes oder besser gestalten könnte?
Ja, ich weiß, die Wäsche im Keller waschen ist doof usw. aber das ist bewusst im Keller geblieben.
nun endlich ist es so weit. Die Zeit für meinen eigenen Grundriss-Thread ist nach ca. einjährigem Mitlesen und zahlreichen Diskussionsabenden mit der Freundin endlich gekommen.
Wir waren uns von Anfang an einig, dass wir eine Stadtvilla mit mediterranem Touch haben wollen.
Da sich das Grundstück in einem Dorf befindet und es keinen Bebauungsplan für den Bauplatz gibt, wurde uns vom LRA gleich einen Riegel vorgeschoben --> Satteldach ist Pflicht.
Wollten wir so nicht einsehen und haben gemeinsam mit dem Bürgermeister Gründe erörtert, die für einen Bau mit Walm- oder Satteldach sprechen.
Die Gemeinde steht voll hinter unseren Plänen und versucht nun alles möglich zu machen, damit wir so bauen können wie wir es wollen.
Den Antrag auf ELR Zuschuss haben wir ebenfalls gemeinsam mit der Gemeinde gestellt.
Das Grundstück ist eine Baulücke, die gerade noch landwirtschaftlich bewirtschaftet wird.
Anschlüsse für Wasser, Abwasser, Strom etc. sind auch schon gelegt worden, als die Straße neu gemacht wurde.
Nun zum Haus selbst:
DER Grundriss IST NOCH NICHT ZU 100% SO WIE WIR ES WOLLEN!
Bebauungsplan/Einschränkungen: n.v.
Größe des Grundstücks: 964qm
Hang: leichte Hanglage, ca. 2 Meter auf 63m Länge
Grundflächenzahl
Geschossflächenzahl
Baufenster, Baulinie und -grenze: gesetzlicher Abstand (Möglichkeit der Änderung besteht)
Anzahl Stellplatz: Doppelgarage
Geschossigkeit: 2 Vollgeschosse
Dachform: Walmdach
Stilrichtung: mediterrane Stadtvilla
Maximale Höhen/Begrenzungen
weitere Vorgaben
Anforderungen der Bauherren
Stilrichtung, Dachform, Gebäudetyp: mediterran, Säulen am Hauseingang
Keller, Geschosse: 2 Geschosse + Keller
Anzahl der Personen, Alter: 2x29
Raumbedarf im EG, OG:
EG: 1x Büro bzw. Schlafen (für später) + 1x Dusch-WC
OG: 2x Kinderzimmer, Ankleide mit separatem Ausgang
Büro: Familiennutzung oder Homeoffice? Beides
Schlafgäste pro Jahr: Ungewiss
offene oder geschlossene Architektur: Auf jeden Fall offen!
konservativ oder moderne Bauweise: modern
offene Küche, Kochinsel: Ja!
Anzahl Essplätze: 6+
Kamin: Ja
Balkon, Dachterrasse: Optionale Dachterrasse auf der Garage, die über Kinderzimmer 2 begehbar wäre.
Garage, Carport: Doppelgarage
Nutzgarten, Treibhaus: Grundstück ist aktuell zum Teil als Nutzgarten angelegt, soll später großteils Rasen werden.
weitere Wünsche/Besonderheiten/Tagesablauf, gern auch Begründungen, warum dieses oder das nicht sein soll:
Hausentwurf
Von wem stammt die Planung:
- Eigene Planung, gemeinsam mit Architekt durchgesprochen. NUR GROBKONZEPT!
Was gefällt besonders? Warum?: Der große Wohn-Essbereich ist für uns das Highlight. Hier soll das Büro/Schlafzimmer noch auf Höhe Speisekammer gezogen werden, und der Kamin somit noch ein Stück weiter in den Wohnbereich rücken.
Um nicht ganz ohne "Deckung" im Wohnbereich zu sein, wollen wir ein gestalterisches Element als Sichtschutz in diesem Bereich einfügen.
Auch die großen Kinderzimmer finde ich super!
Was gefällt nicht? Warum? Die ganzen Übereckfenster. Da hat es der Planer voll übertrieben. Ich hatte ein Übereck-Fenster in der Küche als Variante vorgeschlagen, da hat er einfach mal überall solche Fenster eingebaut.
Allgemein ist die Anordnung der Fenster von Außen gesehen gelinde gesagt grausam.
Preisschätzung lt Architekt/Planer: ---> möchte zuerst eure Einschätzung hören (Ba-Wü, sehr ländliche Gegend)
Persönliches Preislimit fürs Haus, inkl Ausstattung: 420k
favorisierte Heiztechnik: LWW
Wenn Ihr verzichten müsst, auf welche Details/Ausbauten
-könnt Ihr verzichten: Doppelgarage evtl. erst später bauen. Keller, dann muss aber der ganze Grundriss noch mal geändert werden um Technik und Hauswirtschaftsraum unterzubringen
-könnt Ihr nicht verzichten: Zimmer im EG
Warum ist der Entwurf so geworden, wie er jetzt ist?
Wir haben bei einem Besuch im Musterhauspark in Stuttgart ein Haus gesehen, dass vom Grundriss her schon nahezu perfekt für uns erschien.
Was ist die wichtigste/grundlegende Frage zum Grundriss in 130 Zeichen zusammengefasst?
Gibt es von eurer Seite her bedenken, Ideen, Vorschläge wie man den Grundriss noch schönes oder besser gestalten könnte?
Ja, ich weiß, die Wäsche im Keller waschen ist doof usw. aber das ist bewusst im Keller geblieben.
S
sven.conzi09.10.17 11:11Bitte als jpg Datei.
S
schnizzel09.10.17 11:22ich würde die Speisekammer weglassen und dafür die Küche lieber größer gestalten. Es gibt auch Putzeinbauschränke, da bekommt man auch einen Staubsauger o.ä. unter.
Die Türensituation im OG gefällt mir nicht, das gibt auf jeden Fall Schrammen in den Türen und blaue Flecken. Wie soll man denn in der Ankleide zwei Schrankreihen stellen, wenn dort direkt an der Wand ein Fenster geplant ist?
Kind 2 hat wenig Möglichkeiten für Schränke und Regale.
LG
Sabine
Die Türensituation im OG gefällt mir nicht, das gibt auf jeden Fall Schrammen in den Türen und blaue Flecken. Wie soll man denn in der Ankleide zwei Schrankreihen stellen, wenn dort direkt an der Wand ein Fenster geplant ist?
Kind 2 hat wenig Möglichkeiten für Schränke und Regale.
LG
Sabine
S
sven.conzi09.10.17 11:48Interessant wäre sicherlich wie die Räume möbliert werden sollen. Auch die Gestaltung der Bäder (Größe und Position Dusche, Waschtisch, Toilette) wäre von Interesse.
S
schnizzel09.10.17 11:55sven.conzi schrieb:
Interessant wäre sicherlich wie die Räume möbliert werden sollen. Auch die Gestaltung der Bäder (Größe und Position Dusche, Waschtisch, Toilette) wäre von Interesse.Darüber werden wir beim nächsten Termin sprechen Ähnliche Themen