ᐅ Grundriss Stadtvilla 160qm - Bitte um Tipps!
Erstellt am: 28.01.19 09:23
B
Bauherrin9228.01.19 09:23Hallo alle zusammen,
wir wollen eine Stadtvilla mit 160 qm + Keller im ländlichen Bayern bauen. Da wir nun in der heißen Phase der Grundrissplanung sind, wären wir sehr für eure Meinungen und Optimierungsvorschläge dankbar.
Folgende Themen beschäftigen uns am meisten:
1. Anordnung Haus und Garage auf dem Grundstück: Garage wurde bewusst in den Westen gesetzt um Abstand zum Nachbarn zu schaffen. Um noch die Abendsonne einzufangen, wurde das Haus nach hinten versetzt. Ich frage mich aber ob das "gut" aussieht, habe so eine Anordnung bisher nirgends gesehen. Außerdem sind wir unentschlossen, ob die Garage frei stehen soll oder am Haus (evtl. Zugang durch die Speis?). Auf den Plänen ist die Garage an der Nachbarsgrenze. Bisher steht da noch kein Haus.
2. Garderobe und Ankleide erscheinen mir viel zu klein, um vernünftige Schränke hinzustellen und sich frei bewegen können.
3. Grundsätzlich habe ich das Gefühl, dass das Gesamtbild noch verbessert werden kann. Auch die Anordnung der Fenster.
Hier noch der Fragebogen:
Bebauungsplan/Einschränkungen
Größe des Grundstücks: 800 qm
Hang: nein
Grundflächenzahl: 0,35
Geschossflächenzahl: 0,7
Baufenster, Baulinie und -grenze: 3m zur Straße
Randbebauung: Garage ja
Anzahl Stellplatz: 2
Geschossigkeit: II
Dachform: offene Bauweise
Anforderungen der Bauherren
Stilrichtung, Dachform, Gebäudetyp: Stadtvilla, 2 Vollgeschosse, Walmdach
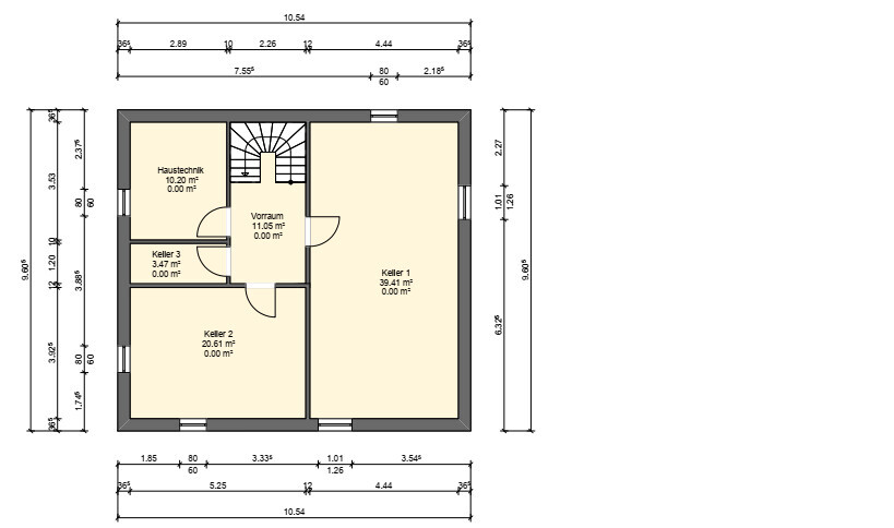
Keller, Geschosse: KG, EG, OG
Anzahl der Personen, Alter: zwei Erwachsene, Schulkind, schwanger
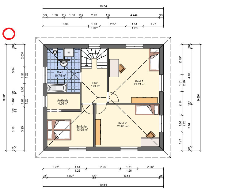
Raumbedarf im EG, OG: drei Schlafzimmer, großzügiger Wohn-Ess-Bereich, separate Garderobe, Dusch-WC im EG
Büro: keins
Schlafgäste pro Jahr: keine
offene oder geschlossene Architektur: offen
konservativ oder moderne Bauweise: modern
offene Küche, Kochinsel: ja
Anzahl Essplätze: 4-10 (bei Besuch)
Kamin: ja
Garage, Carport: Fertig-Doppelgarage
weitere Wünsche/Besonderheiten/Tagesablauf, gern auch Begründungen, warum dieses oder das nicht sein soll:
- Garderobe in einer Nische
- Dusch-WC im EG, später für die Teenager-Tochter
- große Kinderzimmer mit bodentiefen Fenstern zum Garten
- Ankleide im Schlafzimmer
- Speisekammer für gelbe Sack, Staubsauger, Putzmittel, Nudelvorrat, etc.
Hausentwurf
Von wem stammt die Planung: Planer eines Bauunternehmens
Was gefällt besonders? Warum?
- KG: in Ordnung so
- EG: große Speisekammer, L-Form Kochen/Wohnen/Essen
- OG: große Kinderzimmer
Was gefällt nicht? Warum?
- EG: Anordnung WC und Garderobe
- OG: Ankleide und Bad womöglich zu klein
- freistehende Garage
favorisierte Heiztechnik: noch unentschlossen
Wenn Ihr verzichten müsst, auf welche Details/Ausbauten
-könnt Ihr verzichten: Zugang von Garage ins Haus
-könnt Ihr nicht verzichten: Speisekammer, Ankleide, Garderobe
Warum ist der Entwurf so geworden, wie er jetzt ist? unsere Wünsche vom Planer umgesetzt
Wir freuen uns auf eure Ratschläge!!!
P.S.: der rote Kreis soll Norden sein, sorry ging nicht anders!



wir wollen eine Stadtvilla mit 160 qm + Keller im ländlichen Bayern bauen. Da wir nun in der heißen Phase der Grundrissplanung sind, wären wir sehr für eure Meinungen und Optimierungsvorschläge dankbar.
Folgende Themen beschäftigen uns am meisten:
1. Anordnung Haus und Garage auf dem Grundstück: Garage wurde bewusst in den Westen gesetzt um Abstand zum Nachbarn zu schaffen. Um noch die Abendsonne einzufangen, wurde das Haus nach hinten versetzt. Ich frage mich aber ob das "gut" aussieht, habe so eine Anordnung bisher nirgends gesehen. Außerdem sind wir unentschlossen, ob die Garage frei stehen soll oder am Haus (evtl. Zugang durch die Speis?). Auf den Plänen ist die Garage an der Nachbarsgrenze. Bisher steht da noch kein Haus.
2. Garderobe und Ankleide erscheinen mir viel zu klein, um vernünftige Schränke hinzustellen und sich frei bewegen können.
3. Grundsätzlich habe ich das Gefühl, dass das Gesamtbild noch verbessert werden kann. Auch die Anordnung der Fenster.
Hier noch der Fragebogen:
Bebauungsplan/Einschränkungen
Größe des Grundstücks: 800 qm
Hang: nein
Grundflächenzahl: 0,35
Geschossflächenzahl: 0,7
Baufenster, Baulinie und -grenze: 3m zur Straße
Randbebauung: Garage ja
Anzahl Stellplatz: 2
Geschossigkeit: II
Dachform: offene Bauweise
Anforderungen der Bauherren
Stilrichtung, Dachform, Gebäudetyp: Stadtvilla, 2 Vollgeschosse, Walmdach
Keller, Geschosse: KG, EG, OG
Anzahl der Personen, Alter: zwei Erwachsene, Schulkind, schwanger
Raumbedarf im EG, OG: drei Schlafzimmer, großzügiger Wohn-Ess-Bereich, separate Garderobe, Dusch-WC im EG
Büro: keins
Schlafgäste pro Jahr: keine
offene oder geschlossene Architektur: offen
konservativ oder moderne Bauweise: modern
offene Küche, Kochinsel: ja
Anzahl Essplätze: 4-10 (bei Besuch)
Kamin: ja
Garage, Carport: Fertig-Doppelgarage
weitere Wünsche/Besonderheiten/Tagesablauf, gern auch Begründungen, warum dieses oder das nicht sein soll:
- Garderobe in einer Nische
- Dusch-WC im EG, später für die Teenager-Tochter
- große Kinderzimmer mit bodentiefen Fenstern zum Garten
- Ankleide im Schlafzimmer
- Speisekammer für gelbe Sack, Staubsauger, Putzmittel, Nudelvorrat, etc.
Hausentwurf
Von wem stammt die Planung: Planer eines Bauunternehmens
Was gefällt besonders? Warum?
- KG: in Ordnung so
- EG: große Speisekammer, L-Form Kochen/Wohnen/Essen
- OG: große Kinderzimmer
Was gefällt nicht? Warum?
- EG: Anordnung WC und Garderobe
- OG: Ankleide und Bad womöglich zu klein
- freistehende Garage
favorisierte Heiztechnik: noch unentschlossen
Wenn Ihr verzichten müsst, auf welche Details/Ausbauten
-könnt Ihr verzichten: Zugang von Garage ins Haus
-könnt Ihr nicht verzichten: Speisekammer, Ankleide, Garderobe
Warum ist der Entwurf so geworden, wie er jetzt ist? unsere Wünsche vom Planer umgesetzt
Wir freuen uns auf eure Ratschläge!!!
P.S.: der rote Kreis soll Norden sein, sorry ging nicht anders!
B
Bauherrin9228.01.19 09:29Von wo fährt man denn auf das Grundstück? Wo wollt ihr das Haus hinstellen? Kannst Du das mal bitte einzeichnen? Handy drehen geht schlecht.
Die Kinderzimmern sind schon sehr groß. Die etwas kleiner könnte Schlafzimmer/ Ankleide etwas entspannen.
Das T im Bad ist schon sehr lieblos und sinnfrei eingezeichnet... und ja: entsprechend auch die anderen zu engen Räume.
Die Kinderzimmern sind schon sehr groß. Die etwas kleiner könnte Schlafzimmer/ Ankleide etwas entspannen.
Das T im Bad ist schon sehr lieblos und sinnfrei eingezeichnet... und ja: entsprechend auch die anderen zu engen Räume.
B
Bauherrin9228.01.19 10:18ypg schrieb:
Von wo fährt man denn auf das Grundstück? Wo wollt ihr das Haus hinstellen? Kannst Du das mal bitte einzeichnen? Handy drehen geht schlecht.
Die Kinderzimmern sind schon sehr groß. Die etwas kleiner könnte Schlafzimmer/ Ankleide etwas entspannen.
Das T im Bad ist schon sehr lieblos und sinnfrei eingezeichnet... und ja: entsprechend auch die anderen zu engen Räume.Sorry für die fehlenden Infos. Habe den Lageplan nun ergänzt, natürlich nicht maßstabsgetreu.
Könnte man Bad und Schlafzimmer größer gestalten, wenn man den Flur verkleinert? Möchte die Kinderzimmer so groß lassen, meine Tochter hat momentan 30qm für sich allein
B
Bauherrin9228.01.19 10:24Mal so zum nachdenken:
- Die Speisekammer ohne direkt Zugang von der Küche aus ist keine Speisekammer sondern eine Abstellkammer. Also einen direkten Zugang schaffen. Sonst hat die Speisekammer keinen Mehrwert.
- Das Elternschlafzimmer ist zu klein 3,16m sind abzüglich, 2x2m für nur noch 58cm Durchgangsbreite. Meine PC Tastatur ist fast genauso breit.
- Die Diele ist so groß wie die Küche. Daher gehe ich davon aus, dass die Diele mindestens neben der Küche einer eurer Lebensmittelpunkte im Haus ist, oder?
- Die Abstellkammer hat abzüglich eines Schranks + Sockel gerade mal 80cm?
Alleine wegen den 4 Punkten gehe ich davon aus, dass der Grundriss neu gemacht werden sollte. Vor allen im OG, wenn das Schlafzimmer und die Ankleide neu geschnitten werden, wird einiges anderes aussehen.
Meine Vermutung: Da hat der GU selbst Hand angelegt und Euch was vor die Füße geworfen. Das hat kein Architekt gesehen. Hast Du schon gemerkt worauf Du aus der darauf Küche schaust? Dann kannst dir das Fenster auch sparen.
- Die Speisekammer ohne direkt Zugang von der Küche aus ist keine Speisekammer sondern eine Abstellkammer. Also einen direkten Zugang schaffen. Sonst hat die Speisekammer keinen Mehrwert.
- Das Elternschlafzimmer ist zu klein 3,16m sind abzüglich, 2x2m für nur noch 58cm Durchgangsbreite. Meine PC Tastatur ist fast genauso breit.
- Die Diele ist so groß wie die Küche. Daher gehe ich davon aus, dass die Diele mindestens neben der Küche einer eurer Lebensmittelpunkte im Haus ist, oder?
- Die Abstellkammer hat abzüglich eines Schranks + Sockel gerade mal 80cm?
Alleine wegen den 4 Punkten gehe ich davon aus, dass der Grundriss neu gemacht werden sollte. Vor allen im OG, wenn das Schlafzimmer und die Ankleide neu geschnitten werden, wird einiges anderes aussehen.
Meine Vermutung: Da hat der GU selbst Hand angelegt und Euch was vor die Füße geworfen. Das hat kein Architekt gesehen. Hast Du schon gemerkt worauf Du aus der darauf Küche schaust? Dann kannst dir das Fenster auch sparen.
Ähnliche Themen