ᐅ Neubau Einfamilienhaus 2 Vollgeschosse mit Doppelgarage 150qm
Erstellt am: 14.03.19 19:19
W
Wugler1978W
Wugler197814.03.19 19:19Hallo,
wir planen dieses Jahr ein Einfamilienhaus mit Keller und einer Doppelgarage zu erstellen.
Die Garage wird noch einen halben Meter länger. Somit wird die Garderobe auch 0,5m länger als hier gezeigt.
Was haltet ihr von dem Entwurf?
Vielen Dank für eure Anregungen.
Bebauungsplan/Einschränkungen
Größe des Grundstücks 568
Hang nein
Grundflächenzahl 0,4
Geschossflächenzahl
Randbebauung nein
Anzahl Stellplatz 2
Geschossigkeit 2
Dachform Zeltdach + Garage Walmdach
Stilrichtung modern
Ausrichtung Süd
Anforderungen der Bauherren
Stilrichtung, Dachform, Gebäudetyp
Keller, Geschosse Keller + 2 Vollgeschosse
Anzahl der Personen, Alter 4 Personen (2 Kinder 6+10)
Raumbedarf im EG, OG
Büro: Familiennutzung oder Homeoffice? Büro im Keller
Schlafgäste pro Jahr
offene oder geschlossene Architektur offen
konservativ oder moderne Bauweise modern
offene Küche, Kochinsel ja
Anzahl Essplätze 6
Kamin ja
Musik/Stereowand TV an der Wand hängend
Balkon, Dachterrasse nein
Garage, Carport Doppelgarage
Nutzgarten, Treibhaus nein
Hausentwurf
Von wem stammt die Planung:
-Planer eines Bauunternehmens
Was gefällt besonders? Warum? großer Wohnbereich
Preisschätzung lt Architekt/Planer: 400.000€
Persönliches Preislimit fürs Haus, inkl Ausstattung: 450.000
favorisierte Heiztechnik: Brennwerttherme



wir planen dieses Jahr ein Einfamilienhaus mit Keller und einer Doppelgarage zu erstellen.
Die Garage wird noch einen halben Meter länger. Somit wird die Garderobe auch 0,5m länger als hier gezeigt.
Was haltet ihr von dem Entwurf?
Vielen Dank für eure Anregungen.
Bebauungsplan/Einschränkungen
Größe des Grundstücks 568
Hang nein
Grundflächenzahl 0,4
Geschossflächenzahl
Randbebauung nein
Anzahl Stellplatz 2
Geschossigkeit 2
Dachform Zeltdach + Garage Walmdach
Stilrichtung modern
Ausrichtung Süd
Anforderungen der Bauherren
Stilrichtung, Dachform, Gebäudetyp
Keller, Geschosse Keller + 2 Vollgeschosse
Anzahl der Personen, Alter 4 Personen (2 Kinder 6+10)
Raumbedarf im EG, OG
Büro: Familiennutzung oder Homeoffice? Büro im Keller
Schlafgäste pro Jahr
offene oder geschlossene Architektur offen
konservativ oder moderne Bauweise modern
offene Küche, Kochinsel ja
Anzahl Essplätze 6
Kamin ja
Musik/Stereowand TV an der Wand hängend
Balkon, Dachterrasse nein
Garage, Carport Doppelgarage
Nutzgarten, Treibhaus nein
Hausentwurf
Von wem stammt die Planung:
-Planer eines Bauunternehmens
Was gefällt besonders? Warum? großer Wohnbereich
Preisschätzung lt Architekt/Planer: 400.000€
Persönliches Preislimit fürs Haus, inkl Ausstattung: 450.000
favorisierte Heiztechnik: Brennwerttherme
H
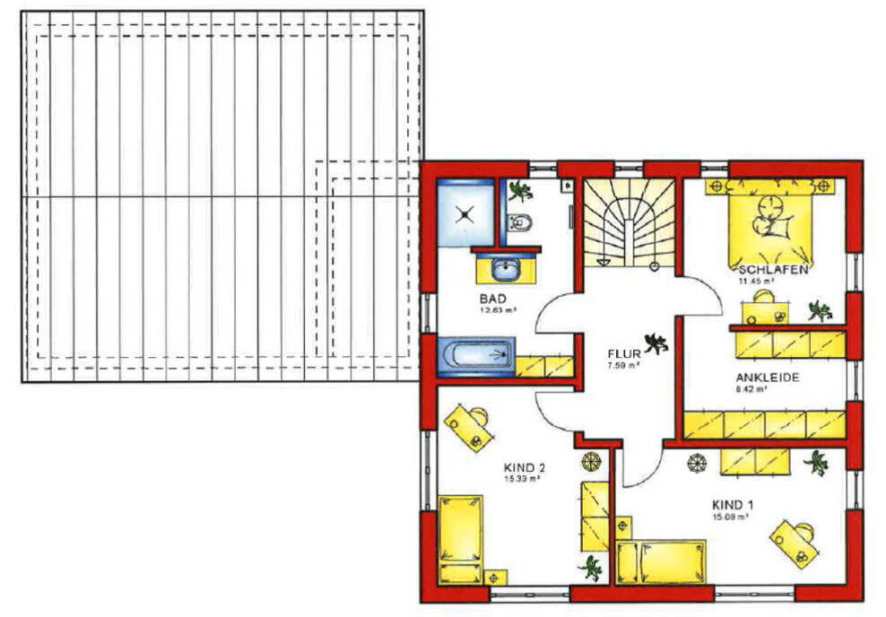
hampshire14.03.19 19:44Das ist ein erfreulich klarer Entwurf. Und prima für Menschen, die große Wohnzimmer mögen. Ich habe folgende Überlegungen dazu:
- Der Weg bis in den Wohnbereich, insbesondere in die Küche ist recht weit und türenreich. Das kann sich als unpraktisch erweisen.
- Die Küche ist kommunikativ gut integriert aber aus meiner Sicht viel zu klein.
- Die Zufahrt zur Garage versiegelt ganz schön viel Fläche vom Grundstück. Das ist sehr schade für Mikroklima, Natur und Gartengestaltung.
- Wohin kommt die Technik - Therme im oberen Bad?
W
Wugler197814.03.19 19:49hampshire schrieb:
Das ist ein erfreulich klarer Entwurf. Und prima für Menschen, die große Wohnzimmer mögen. Ich habe folgende Überlegungen dazu:
- Der Weg bis in den Wohnbereich, insbesondere in die Küche ist recht weit und türenreich. Das kann sich als unpraktisch erweisen.
- Die Küche ist kommunikativ gut integriert aber aus meiner Sicht viel zu klein.
- Die Zufahrt zur Garage versiegelt ganz schön viel Fläche vom Grundstück. Das ist sehr schade für Mikroklima, Natur und Gartengestaltung.
- Wohin kommt die Technik - Therme im oberen Bad?
Hallo,
vielen Dank für die Rückmeldung.
Technik kommt in den Keller. Die Küche wird größer. Der Küchen block wandert weiter Richtung Süden und der Esstisch wird um 90 Grad gedreht.
Der Weg bis zur Küche (besonders bis in die Speis) haben wir auch als Punkt angesehen. Allerdings haben wir noch keine andere Lösung gefunden. Die Doppelgarage ist im Nordwesten des Grundstücks. Wir versuchen möglichst viel Fläche Richtung Süden freizuhalten.
Gefällt mir auch, einfach und praktikabel. Die Küche ist schon recht weit weg vom Eingang, aber auch kein Beinbruch. Wie schaut der Keller aus?
Sonst:
-Windfang ist relativ klein, könnte wenn mal mehr als 1-2 Personen gleichzeitig kommen etwas eng werden
-Speisekammer würde ich mir überlegen, kühler ist es da auch nicht. Ich würde lieber die Küche großzügiger planen
-Ankleide könnte man vom Flur aus begehen, würde etwas mehr Stellfläche bieten und man kann wenn der Partner schläft ungestört rein und raus.
Sonst:
-Windfang ist relativ klein, könnte wenn mal mehr als 1-2 Personen gleichzeitig kommen etwas eng werden
-Speisekammer würde ich mir überlegen, kühler ist es da auch nicht. Ich würde lieber die Küche großzügiger planen
-Ankleide könnte man vom Flur aus begehen, würde etwas mehr Stellfläche bieten und man kann wenn der Partner schläft ungestört rein und raus.
Gute Grundlage.Zwei Kleinigkeiten:
- Zufahrt - ist die auch aus Richtung Westen möglich? Falls ja, spart das Wege und Gartenfläche
- Zugang zum Schlafzimmer über die Ankleide würde ich auch empfehlen. Außerdem eine zusätzliche Tür zum Bett.
- Auf die Speisekammer würde ich nicht verzichten.
- Zufahrt - ist die auch aus Richtung Westen möglich? Falls ja, spart das Wege und Gartenfläche
- Zugang zum Schlafzimmer über die Ankleide würde ich auch empfehlen. Außerdem eine zusätzliche Tür zum Bett.
- Auf die Speisekammer würde ich nicht verzichten.
W
Wugler197814.03.19 20:06Wahnsinn. Über genau eure Anmerkungen diskutieren wir auch. Die Speis ist Pflicht. Einzig die Position und Größe sind noch verhandelbar.
Ankleide vom Flur aus wir derzeit geprüft. Sehr wahrscheinlich, das es so kommen wird.
Keller habe ich grad nicht zur Hand. Sind halt 4 Zimmer. Das wird nichts besonderes.
Ankleide vom Flur aus wir derzeit geprüft. Sehr wahrscheinlich, das es so kommen wird.
Keller habe ich grad nicht zur Hand. Sind halt 4 Zimmer. Das wird nichts besonderes.
Ähnliche Themen