Hausbau - Ratgeber
Bauherrenhilfe
- Bauherrenhilfe vor Vertragsabschluss
-- Warum einen unabhängigen Baubetreuer?
-- Vertragsgrundlagen
-- Bausumme
-- Zahlungsplan zur Kostenkontrolle
-- Pflichten des Bauherren vor Vertragsabschluss
-- Unterlagen beim Hausbau vor Vertragsabschluss
- Bauherrenhilfe nach Vertragsabschluss
-- Bauantrag bei Behörden
-- Bau-Genehmigungsverfahren bei Baubehörden
-- Bauspezifische Versicherungen
-- Bauzeitenplan
-- Baubeginn - die Letzten Pflichten der Bauherrschaft
- Bauherrenhilfe während der Bauzeit
- Gewährleistungsansprüche
- Bauabnahme
Baufinanzierung
- Baufinanzierung - Allgemeine Fragen
- Kreditarten
- Kredit-Konditionen
- Bausparen
- Staatliche Förderungen
- Verkehrswert
- Haushaltsrechnung und Bonität
Hausbau Planung
- Haustypen
- Hausbau Vorbereitungsarbeiten
- Das Baugrundstück
- Baugrund beim Hausbau
- Baurecht
- Gebäudeschutz
- Erdarbeiten und Wasserhaltung
- Stützmauern
- Einfriedung
- Untergeschoss
- Kanalisation
- Tragende Elemente
- Nichttragende Innenwände
- Fundation / Fundament
- Deckenkonstruktionen
- Dächer
- Kaminanlagen
- Treppen Rampen Leitern
- Dachbeläge und Spengler
- Fenster
- Sonnen und Wetterschutz
- Aussenputze
- Einbauten, Küchen, Türen
- Bodenbeläge und Unterlagsböden
- Parkett
- Gips, Wand, Decke
Haustechnik und Energie
- Heiztechnik
- Lüftung und Klimatechnik
- Sanitärtechnik
- Elektrotechnik
- Erneuerbare Energie
Whirlpools / Jacuzzi
Hausbau Magazin
- Baufinanzierung trotz Krise?
- Das Blockhaus
- Moderne Dämmstoffe im Vergleich
- Erker Vor- und Nachteile
- Glasflächen beim Hausbau
- Günstig ein Haus Bauen
- Mediterraner Hausbaustil
- Mehrgenerationenhaus
- Moderne Architektur
- Gartengestaltung leicht gemacht
- Traditioneller Ziegelbau
- Villa als höchster Traum
- Im Eigenheim Ruhestand geniessen
- Altbau sanieren
- Kauf einer Holzgarage
- Immobilienmakler
- Arbeitshandschuhe für den Winter
- Zuhause verschönern
- Outdoor-Plissees
- Schlafzimmer planen
- Terrassenüberdachung
- Wohngebäudeversicherung
- Zaunarten und Eigenschaften
- Hauseingang gestalten
- Der perfekte Grundriss
- Sparsamer heizen im Altbau
- Einfamilienhaus smart finanzieren
- Planung einer PV-Anlage
- Neues Haus
- Immobilienfinanzierung
- Installation einer Photovoltaikanlage
- Asbest erkennen und entfernen
- Gartenpflege im Frühling – worauf achten
- Sauna im Fokus - Wellness zuhause
- Erfolgreich vermieten
- Die perfekte Winterbekleidung
- Das Niedrigenergiehaus
- Der April und seine Stürme
- Architektonische Vielfalt
- Ökologisch und nachhaltig bauen
- Das perfekte Schlafzimmer
- Nachhaltige Energieversorgung
- Zukunftsorientiert bauen
- Nachhaltigkeit beim Hausbau
- Tiny Houses
- Wärmepumpen als nachhaltige Heizvariante
- Maßgeschneiderten Kleiderschrank
- Der richtige Baukredit
- Ratgeber für erfolgreichen Hausbau
- Haus als Altersvorsorge
Do-it-yourself Anleitungen
- Verlegeanleitung für Bodenbeläge und Parkett
- Bodenbeläge und Parkett reinigen und pflegen
- Malerarbeiten am Haus
- Garten Tipps
- Umzug und Reinigung

ᐅ Grundriss Stadtvilla in Sachsen Anhalt - Check und Anregungen

Erstellt am: 17.01.21 17:07
M
martbir_2021
M
martbir_2021
17.01.21 17:07
Guten Abend zusammen,

meine Freundin und ich haben in Sachsen-Anhalt ein Grundstück(P38a --> siehe Anlage Grundstück_P38a_001) mit fast Nord-Süd-Ausrichtung mit einer Größe von 873 qm reserviert(Wir könnten von dem Grundstück zurücktreten). Das Grundstück ist bauträgergebunden. Der Beginn ist für Q3/2021 geplant. Wir machen uns seit ca. 6 Monaten Gedanken über Wünsche und wie unser Haus aussehen soll. Wir haben uns einige Grundrisse von Freunden angeschaut und verschiedene Grundrisse von Hausbaufirmen erhalten. Daraus ist unser erster Entwurf mit Hinblick auf das Grundstück entstanden. Der Bauträger hat die ersten Entwürfe auf Grundlage von Skizzen und Wünschen von uns erstellt. Wir befinden uns in der der ersten Planung, um ein Angebot für die Realisierung des Gesamtprojektes zu erhalten.

Wir hatten auch schon einen Termin bei einem Finanzberater, um einen Überblick über verschiedene Finanzierungsmodelle zu erhalten und um über unser Budget von 500.000 € zu sprechen.

So nun zu unserem Haus. Wir werden im Westen und im Süden einen Nachbarn haben. Das Grundstück hat eine Größe von 25 m (Breite West-Ost) x 35 m (Länge Nord-Süd). Das Grundstück hat fast eine Nord-Süd Ausrichtung. Der Baufenster auf dem Grundstück hat die Abmessungen 17 m x 22 m. Es sind 3 m Abstand zur Straße einzuhalten. Wir dürfen die Garage auf die Grundstücksgrenze zum Nachbar bauen. Deswegen haben wir die Garage auch dort angeordnet, um keinen Platz "zu verlieren". Allerdings konnten wir durch unseren Grundriss und der Anordnung der Garage keine direkte Anbindung von Hauswirtschaftsraum und Garage schaffen. Wir würden gern eine Stadtvilla bauen.

Wir sind für jeden Hinweis und jede Anregung dankbar. Bedenken haben wir wegen der Treppe und den beiden Fluren. Wir wollen gern noch eine Speisekammer in die Küche integrieren und die Position vom Kamin.
Weiterhin sind wir uns uns mit der Anordnung der Fenster unschlüssig, ob das Haus zu dunkel wird.

Bebauungsplan/Einschränkungen
Größe des Grundstücks: 873 qm. 25x35 m
Hang: Nein
Grundflächenzahl: 0,2
Geschossflächenzahl: 0,4
Baufenster, Baulinie und -grenze: Baufenster: 17x22 m, 3 m von den Straßen entfernt
Randbebauung: Nein. Wir haben im Süden und Westen jeweils einen Nachbarn
Anzahl Stellplatz: 2 vor der Garage, 1 neben der Garage und eine Doppelgarage
Geschossigkeit: 2 --> maximale Firsthöhe 9,6 m erlaubt
Dachform: Walmdach. Es ist jede Dachform erlaubt. Bei einem Flachdach, muss dieses begrünt werden.
Stilrichtung: Wir bevorzugen Stadtvilla. Es ist aber alles auf dem Baugebiet erlaubt
Ausrichtung: Fast Nord-Süd
Maximale Höhen/Begrenzungen: --> maximale Firsthöhe 9,6 m erlaubt
weitere Vorgaben: Die Garage muss begrünt werden und es muss ein Baum im Norden an die Straße gepflanzt werden.

Anforderungen der Bauherren
Stilrichtung, Dachform, Gebäudetyp: Stadtvilla mit Walmdach und Dachboden, nutzbar als Stauraum
Keller, Geschosse: Zwei Geschosse ohne Keller
Anzahl der Personen, Alter: 2 Erwachsene (32 und 27), 2 Kinder geplant
Größe Haus: ca. 150-165 qm
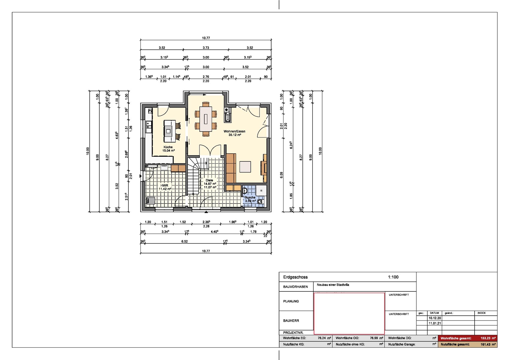
Raumbedarf im EG, OG: EG: Küche, Speisekammer(noch nicht dargestellt), Hauswirtschaftsraum, Bad und Wohn-Essbereich
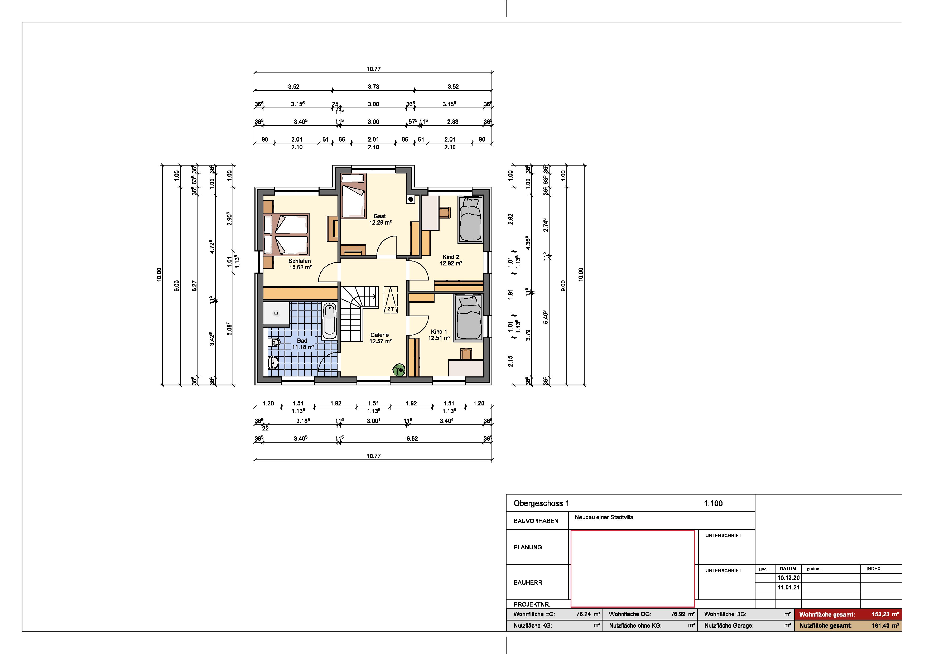
OG: 2 Kinderzimmer, 1 Gästezimmer, 1 Bad und 1 Elternschlafzimmer.
Büro: Familiennutzung oder Homeoffice?: Für Gäste
Schlafgäste pro Jahr: Ab und zu
offene oder geschlossene Architektur: Geschlossene
konservativ oder moderne Bauweise: Konservativ
offene Küche, Kochinsel: Küche soll mit Schiebetüren zum Wohn-Essbereich abgetrennt werden können. Bei der Kochinseln sind wir uns noch unschlüssig.
Anzahl Essplätze: 8
Kamin: Ja. Mit der Position sind wir noch nicht zufrieden. Unser Wunsch wäre, dass der Kamin neben die Tür zum Wohn-Essbereich kommt.
Musik/Stereowand: Nein
Balkon, Dachterrasse: Nein
Garage, Carport: Doppelgarage, gemauert
Nutzgarten, Treibhaus: Nein
weitere Wünsche/Besonderheiten/Tagesablauf, gern auch Begründungen, warum dieses oder das nicht sein soll:
Wir haben die Garage vom Haus getrennt, weil wir denken, dass es sonst zu dunkel im Wohn-Essbereich wird.
Wir wollten die Küche im Osten haben, weil dort früh morgens die Sonne rein scheint.

Hausentwurf
Von wem stammt die Planung:
-Planer eines Bauunternehmens : Ja, nach unseren ersten Entwürfen
-Architekt: Nein
-Do-it-Yourself: JA
Was gefällt besonders? Warum?: Wohnbereich und Fensterfront dort. Weil das unser Lebensmittelpunkt sein soll.
Was gefällt nicht? Warum?:
-Anordnung Kamin, weil dadurch der Wohn-Essbereich so abgetrennt wird.
-Flur und die Treppensituation. Wir wissen nicht so richtig, ob das funktioniert wie es angeordnet ist.
- Lichtverhältnisse. Wir wissen nicht, ob die Anordnung hell ist.

Preisschätzung lt Architekt/Planer: Noch nicht vorhanden
Persönliches Preislimit fürs Haus, inkl Ausstattung: 500.000 € inkl. Grundstück
favorisierte Heiztechnik: Erdwärme mit Bohrung.

Wenn Ihr verzichten müsst, auf welche Details/Ausbauten
-könnt Ihr verzichten: Schiebetür im Wohn-Essbereich.
-könnt Ihr nicht verzichten: Doppelgarage, Gästezimmer, großer Wohn-Essbereich, Dusche im EG

Warum ist der Entwurf so geworden, wie er jetzt ist? ZB
Wir machen uns seit ca. 6 Monaten Gedanken über Wünsche und wie unser Haus aussehen soll. Wir haben uns einige Grundrisse von Freunden angeschaut und verschiedene Grundrisse von Hausbaufirmen erhalten. Daraus ist unser erster Entwurf mit Hinblick auf das Grundstück entstanden. Der Bauträger hat die ersten Entwürfe auf Grundlage von Skizzen und Wünschen von uns erstellt. Wir befinden uns in der der ersten Planung, um ein Angebot für die Realisierung des Gesamtprojektes zu erhalten.

Was ist die wichtigste/grundlegende Frage zum Grundriss in 130 Zeichen zusammengefasst?
Bitte Anregungen zum Grundriss. Wie können wir die Situation mit der Treppe und den beiden Fluren besser lösen. Anordnung Kamin und Größe Speisekammer.
Was funktioniert gut bei dem Grundriss? Was nicht?

ViPlan_20201210_auf_Grundstück_002 zeigt den Bick auf das Grundstück. Dort ist noch das Erdgeschoss dargestellt. Allerdings ist dort das falsche Erdgeschoss eingeplant. Das war uns zu groß.

Vielen Dank für die Anregungen

Martbir_2021

Katastraler Lageplan mit Parzellen und Straßen, farbcodiert in Gelb und Lila.


Nordansicht einer modernen Stadvilla als Architekturzeichnung mit Eingangsbereich


Suedansicht eines zweigeschossigen Hauses mit Eingang und Bauplan im Vordergrund


Westansicht: zweigeschossiges Haus mit grauer Fassade, schwarzem Dach, Baum links, Laterne rechts.


Grundriss Erdgeschoss: Küche, Wohnen/Essen, Diele, HWR, Dusche.


Grundriss Obergeschoss: Schlafen, Gast, Kind 1, Kind 2, Bad, Galerie, Treppenhaus.


Grundriss eines Einfamilienhauses mit Terrasse, Garten und Hof; Maßangaben und Nordpfeil sichtbar.


Moderne zweistöckige Villa, weiße Fassade, dunkler Ziegelmitte, graues Dach, Garage rechts.


Modernes zweistöckiges Haus mit zentralem Backsteinabschnitt, großen Glasfronten und Terrasse.


Architektur-Schnitt A: Zweigeschossiges Haus mit Treppe, Dachneigung 26°.
D
Deadree
17.01.21 17:17
Wie viel kostet denn das Grundstück?
Ich finde 500 000 TEUR inkl. Grundstück für so ein Haus sportlich.
D
Deadree
17.01.21 17:23
Das Wohnzimmer ist wahnsinnig schmal mit 3,15 m. Wenn man auf der Couch sitzt, sind ja keine 2 Meter zum Fernseher. Mindestens ein Meter mehr wäre hier sinnvoll. Allgemein sind Wohnzimmer und Esszimmer sehr beengt und schmal. Aber neben dem Kamin ist eine riesige Fläche frei, die nicht richtig integriert werden kann.
M
martbir_2021
17.01.21 17:40
Deadree schrieb:

Wie viel kostet denn das Grundstück?
Ich finde 500 000 TEUR inkl. Grundstück für so ein Haus sportlich.
Das Grundstück soll ca. 150.000 € kosten. Wir hatten das mit unseren Finanzberater besprochen und mit ähnlichen Projekten aus dem Jahr 2020 verglichen. Da hat die Summe gepasst.
M
martbir_2021
17.01.21 17:46
Deadree schrieb:

Das Wohnzimmer ist wahnsinnig schmal mit 3,15 m. Wenn man auf der Couch sitzt, sind ja keine 2 Meter zum Fernseher. Mindestens ein Meter mehr wäre hier sinnvoll. Allgemein sind Wohnzimmer und Esszimmer sehr beengt und schmal. Aber neben dem Kamin ist eine riesige Fläche frei, die nicht richtig integriert werden kann.
Danke für den Hinweis. Der Abstand von 3,15 m war ursprünglich größer geplant. Die Fläche neben den Kamin wollten wir Als Fläche für eine Leseecke bzw. platz für Weihnachtsbaum bzw. für Feiern nutzen, wenn der Tisch gedreht wird.
D
Deadree
17.01.21 17:52
Einen Platz für den Weihnachtsbaum haben wir auch gleich eingeplant, aber dafür gleich ein drittel des gesamten Wohn-/Essbereichs zu opfern ...
grundstückdoppelgaragegrundrissekaminessbereichkücheentwurfbaufensterstadtvillaspeisekammer