W
Mein Konto
Hausbau - Ratgeber
Bauherrenhilfe
- Bauherrenhilfe vor Vertragsabschluss
-- Warum einen unabhängigen Baubetreuer?
-- Vertragsgrundlagen
-- Bausumme
-- Zahlungsplan zur Kostenkontrolle
-- Pflichten des Bauherren vor Vertragsabschluss
-- Unterlagen beim Hausbau vor Vertragsabschluss
- Bauherrenhilfe nach Vertragsabschluss
-- Bauantrag bei Behörden
-- Bau-Genehmigungsverfahren bei Baubehörden
-- Bauspezifische Versicherungen
-- Bauzeitenplan
-- Baubeginn - die Letzten Pflichten der Bauherrschaft
- Bauherrenhilfe während der Bauzeit
- Gewährleistungsansprüche
- Bauabnahme
Baufinanzierung
- Baufinanzierung - Allgemeine Fragen
- Kreditarten
- Kredit-Konditionen
- Bausparen
- Staatliche Förderungen
- Verkehrswert
- Haushaltsrechnung und Bonität
Hausbau Planung
- Haustypen
- Hausbau Vorbereitungsarbeiten
- Das Baugrundstück
- Baugrund beim Hausbau
- Baurecht
- Gebäudeschutz
- Erdarbeiten und Wasserhaltung
- Stützmauern
- Einfriedung
- Untergeschoss
- Kanalisation
- Tragende Elemente
- Nichttragende Innenwände
- Fundation / Fundament
- Deckenkonstruktionen
- Dächer
- Kaminanlagen
- Treppen Rampen Leitern
- Dachbeläge und Spengler
- Fenster
- Sonnen und Wetterschutz
- Aussenputze
- Einbauten, Küchen, Türen
- Bodenbeläge und Unterlagsböden
- Parkett
- Gips, Wand, Decke
Haustechnik und Energie
- Heiztechnik
- Lüftung und Klimatechnik
- Sanitärtechnik
- Elektrotechnik
- Erneuerbare Energie
Whirlpools / Jacuzzi
Hausbau Magazin
- Baufinanzierung trotz Krise?
- Das Blockhaus
- Moderne Dämmstoffe im Vergleich
- Erker Vor- und Nachteile
- Glasflächen beim Hausbau
- Günstig ein Haus Bauen
- Mediterraner Hausbaustil
- Mehrgenerationenhaus
- Moderne Architektur
- Gartengestaltung leicht gemacht
- Traditioneller Ziegelbau
- Villa als höchster Traum
- Im Eigenheim Ruhestand geniessen
- Altbau sanieren
- Kauf einer Holzgarage
- Immobilienmakler
- Arbeitshandschuhe für den Winter
- Zuhause verschönern
- Outdoor-Plissees
- Schlafzimmer planen
- Terrassenüberdachung
- Wohngebäudeversicherung
- Zaunarten und Eigenschaften
- Hauseingang gestalten
- Der perfekte Grundriss
- Sparsamer heizen im Altbau
- Einfamilienhaus smart finanzieren
- Planung einer PV-Anlage
- Neues Haus
- Immobilienfinanzierung
- Installation einer Photovoltaikanlage
- Asbest erkennen und entfernen
- Sauna im Fokus - Wellness zuhause
- Erfolgreich vermieten
- Die perfekte Winterbekleidung
- Das Niedrigenergiehaus
- Der April und seine Stürme
- Architektonische Vielfalt
- Ökologisch und nachhaltig bauen
- Das perfekte Schlafzimmer
- Nachhaltige Energieversorgung
- Zukunftsorientiert bauen
- Nachhaltigkeit beim Hausbau
- Tiny Houses
- Wärmepumpen als nachhaltige Heizvariante
- Maßgeschneiderten Kleiderschrank
- Der richtige Baukredit
- Ratgeber für erfolgreichen Hausbau
- Haus als Altersvorsorge
Do-it-yourself Anleitungen
- Verlegeanleitung für Bodenbeläge und Parkett
- Bodenbeläge und Parkett reinigen und pflegen
- Malerarbeiten am Haus
- Garten Tipps
- Umzug und Reinigung

ᐅ Stadtvilla ca. 150qm auf 500qm Grundstück


Erstellt am: 05.02.20 18:03

Moriarty05.02.20 18:03
Hallo Ihr lieben, jetzt sind wir dran. Schon viel mitgelesen und vieles über Laufwege und co gehört. Jetzt würden wir gerne wissen, was das kritische aber auch erfahrene Publikum von unserem Grundriss hält. Also haut in die Tasten und gebt und eine Rückmeldung zum Grundriss. Vielen Dank

Bebauungsplan/Einschränkungen
Größe des Grundstücks - 500qm
Hang - nein
Grundflächenzahl - 0,4
Geschossflächenzahl - 0,8
Baufenster, Baulinie und -grenze - 5 Meter zur Straße und 5 nach hinten raus
Randbebauung
Anzahl Stellplatz -
1x Garage 3x8 Meter / 1-2x vor der Garage
Geschossigkeit - II
Dachform - ohne/offen
Stilrichtung - ohne/offen
Ausrichtung - ohne/offen
Maximale Höhen/Begrenzungen - ohne/offen
weitere Vorgaben - ohne/offen

Anforderungen der Bauherren
Stilrichtung, Dachform, Gebäudetyp - Modern - Stadtvilla
Keller, Geschosse - ohne Keller, 2 Geschosse
Anzahl der Personen, Alter - 2 Personen 1 Kind (Anfang 30 und 1Jahr)
Raumbedarf im EG, OG -
EG
WC mit Dusche, Wohnzimmer mit Küche und Essen, Arbeitszimmer;
OG: Arbeitszimmer, Kinderzimmer, Bad, Schlafzimmer mit Ankleide;
Büro: Familiennutzung oder Homeoffice? - Büro für Homeoffice, Gäste für Gäste
Schlafgäste pro Jahr - 20-30
offene oder geschlossene Architektur - eher offene
konservativ oder moderne Bauweise - offen
offene Küche, Kochinsel - gerne kein muss
Anzahl Essplätze - 3 Täglich; unregelmäßig 5-6; selten 7-10 (eher im Sommer)
Kamin - ein MUSS!!!
Musik/Stereowand - nein nur TV Wand
Balkon, Dachterrasse - nein
Garage, Carport - Garage ggf. davor Carport
Nutzgarten, Treibhaus - kleines Treibhaus mehr nicht
weitere Wünsche/Besonderheiten/Tagesablauf, gern auch Begründungen, warum dieses oder das nicht sein soll - Durch Freunde haben wir den Tipp bekommen den Hauswirtschaftsraum/HAR nicht zu klein zu machen. Daher sollte dieser etwas größer sein.

Hausentwurf
Von wem stammt die Planung:
-
Planer eines Bauunternehmens
Was gefällt besonders? Warum?
-
Wir finden es als nicht Hausbesitzer sehr schön und denken, dass es super für uns passen sollte.
Was gefällt nicht? Warum?
-
Abzug vom Kamin. Hier wissen wir nicht so dieser gut hin passt, damit er auch oben gut raus kommt
Preisschätzung lt Architekt/Planer:
-
410.000
Persönliches Preislimit fürs Haus, inkl Ausstattung:
-
offen
favorisierte Heiztechnik:
-
Luft-/Wasser-Wärmepumpe

Wenn Ihr verzichten müsst, auf welche Details/Ausbauten
-könnt Ihr verzichten:
-
Ankleide im Schlafzimmer
-könnt Ihr nicht verzichten:
-
Dusche Gäste-WC, Arbeitszimmer, Kamin

Warum ist der Entwurf so geworden, wie er jetzt ist?
Standardentwurf vom Planer - mit kleinen Anpassungen an den Wänden
Was macht ihn in Euren Augen besonders gut oder schlecht?

Was ist die wichtigste/grundlegende Frage zum Grundriss in 130 Zeichen zusammengefasst?

Wie findet ihr den Grundriss? Was sagt ihr zu der Anzahl der Fenster und die Anordnung? Was ist gut und was sollte man besser machen? Wie könnte man das Problem des Kamins lösen (Abzug - übrigens Raumluftunabhängig)... und alles andere was uns nicht auffällt
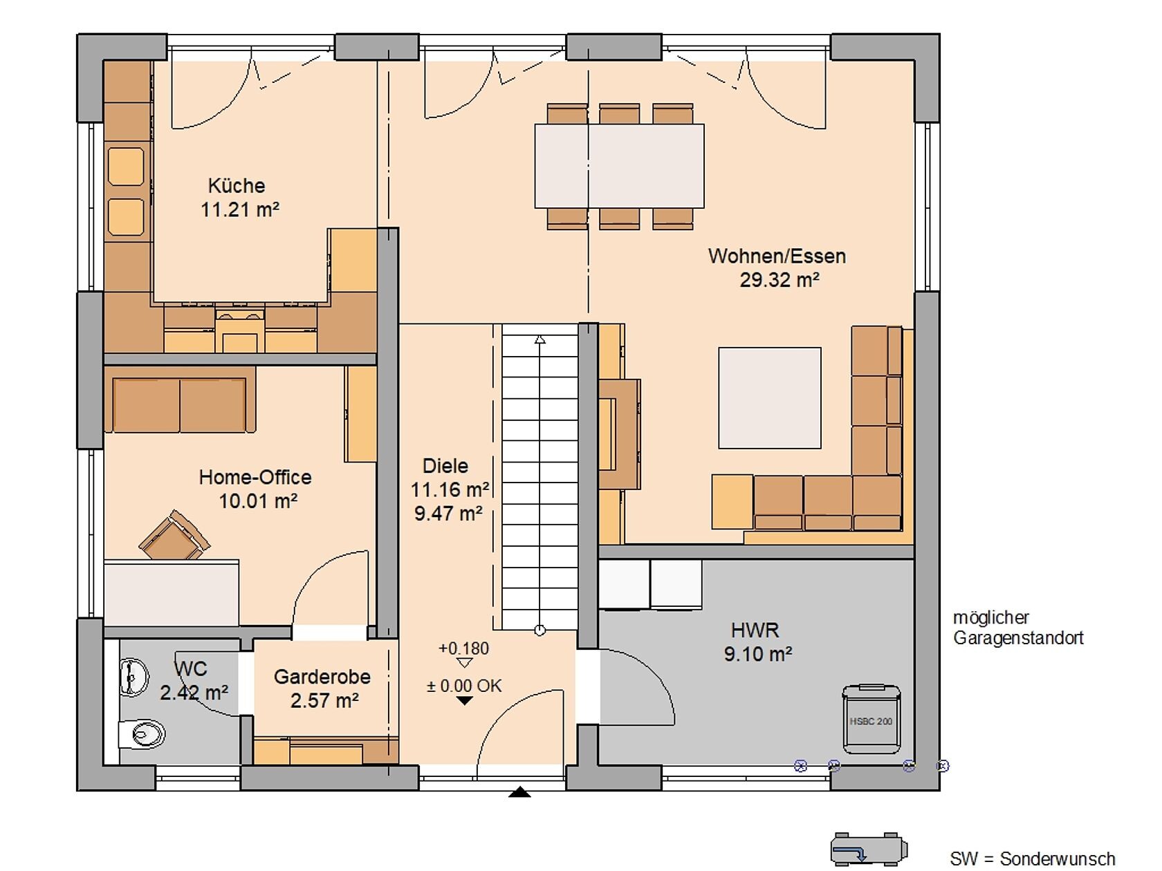
Maße vom Haus 10,12m x 8,99m

Grundriss: Küche links, Wohnzimmer mit Esstisch, Vorraum Mitte, Gästezimmer rechts, Treppenhaus.


Grundriss eines Apartments mit Schlafzimmer, Schlafzimmer 2, Büro, Kinderzimmer, Bad und Vorraum.


Grundriss eines Hauses mit Terrasse (Sitzbereich), Wohnzimmer, Vorrraum, Einfahrt 2 und Garten.
haydee05.02.20 18:12
Könntest du bitte den Grundriss ein paar Maße gönnen
Moriarty05.02.20 18:18
Tatsächlich habe ich (noch) keine Maße außer die von den Außenwänden.

Ich schaue aber mal ob ich was nachreichen kann
kaho67405.02.20 18:31
Moriarty schrieb:


Dachform - ohne/offen
Das ist bitter. Kein Dach erlaubt.
Moriarty schrieb:

Durch Freunde haben wir den Tipp bekommen den Hauswirtschaftsraum/HAR nicht zu klein zu machen. Daher sollte dieser etwas größer sein.
Jetzt hatte ich echt was erwartet mit wenigstens 12m². Aber dann....
naja, wir warten mal auf die Maße.
Moriarty05.02.20 18:38
So ich werde ganz sicher in meinem nächsten Leben Zeichner.


Ein Dach ist natürlich erlaubt.. cool:


Skizzenhafter Grundriss einer Wohnung mit Küche, Essen, Wohnen, Bad, Flur, HWR und Gästezimmer.


Handgezeichneter Wohnungsgrundriss: Schlafen, Arbeiten, Kind, Flur, Bad, Ankleide; Maße vorhanden.
haydee05.02.20 18:48
Zeichne einmal eure vorhanden bzw gewünschten Möbel im Maßstab ein

Essplatz könnte etwas eng werden

Der Eingangsbereich inkl Treppe und Drecksloch zwischen Wand und Treppe gefällt mir nicht

Haustechnikraum inkl. Wäsche und Abstellraum ist sehr klein. Hatte den größer erwartet

Bad bekommt keine Badewanne?

Wo ist Süden?
Habe es wohl überlesen?

Auch im OG gefällt mir die Treppe nicht
grundrissgaragedachformarbeitszimmerkaminplanertreppekellergeschossedusche