ᐅ Grundriss 150 m²-Hauses optimieren - Tipps
Erstellt am: 21.05.16 23:44
H
hemali200321.05.16 23:44Hallo zusammen,
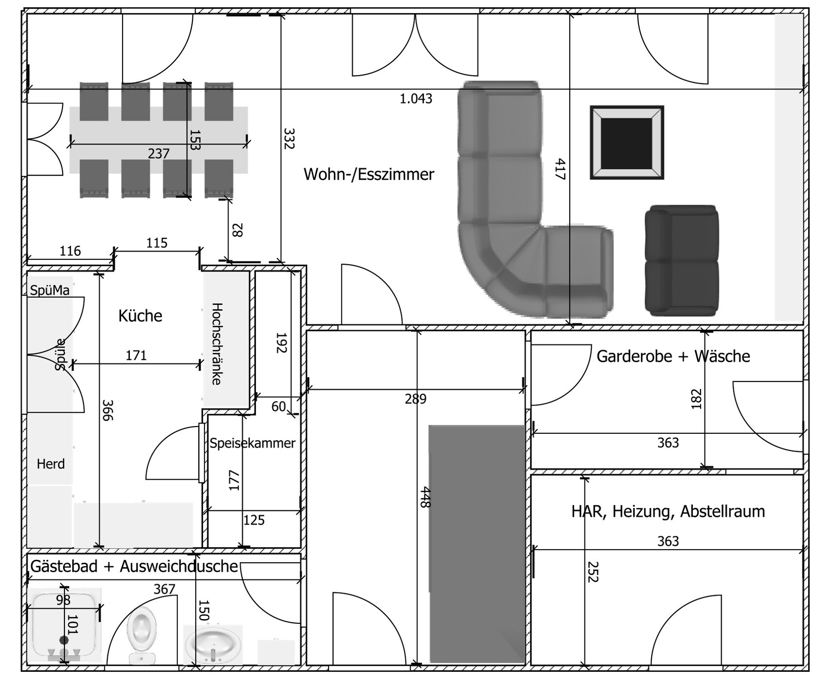
wir planen den Bau eines 150 m²-Hauses und optimieren grade unseren Grundriss... Eigentlich sind wir so damit zufrieden, aber ein bisschen Skepsis bleibt
In folgenden Bereichen bin ich etwas unsicher:
- Wohnzimmer: Ist die Platzierung des Sofas sehr unglücklich? Würde es ungern um 90 Grad drehen, sodass man den Fernseher an der kurzen Fensterwand platzieren müsste...
- Küche: Benötigt man eine separate Heizung oder heizt das Wohn-/Esszimmer die Küche mit? Ich wüsste auf Anhieb nicht, wo ich eine Heizung unterbringen sollte.
- Speisekammer: Lässt sie sich in dieser Form nutzen? Natürlich ist der Bereich mit 60 cm Breite nicht optimal, aber vielleicht doch für Ersatzstühle o.ä. nutzbar? Außerdem sollen hier Getränke, Akkusauger, Papier-/Plastikmüll, Backformen... Platz finden. Eben alles, was man nicht so häufig braucht und/oder zu sperrig für Küchenschränke ist.
- Bad oben: Ich möchte mir ungern den großen Raum mit sehr teuren Badschränken verbauen, daher kam die Idee mit dem Raum hinter Dusche/Badewanne. Reicht der Platz zwischen Waschbecken und Badewanne/Dusche aus, um notfalls auch mal mit 2/3/4 Personen herumzuwuseln? Ansonsten bin ich von meiner Idee nämlich sehr begeistert Vorher waren die Sanitärobjekte einfach außen herum platziert und es wäre nicht mal wirklich Platz für einen Schrank geblieben.
Wer Lust hat, mal drüber zu schauen und seinen "Senf" abgeben möchte - sehr gerne!
Vielen Dank,
hemali

Grundriss und Bemaßung sind nur grob, bitte entschuldigt die krummen Werte!
Oben ist Westen, rechts Norden, unten Osten, links Süden
Dass die Fenster nicht symmetrisch übereinander liegen, ist erst mal zu vernachlässigen. Die Hausseiten sind kaum einsehbar und somit stört es uns wenig, ob das besonders harmonisch aussieht oder nicht.
Bebauungsplan/Einschränkungen
Größe des Grundstücks: 800 qm
Hang: nein
Grundflächenzahl: -
Geschossflächenzahl: -
Baufenster, Baulinie und -grenze: -
Randbebauung: -
Anzahl Stellplatz: -
Geschossigkeit: 1,5
Dachform: Satteldach 45 Grad
Stilrichtung: klassisch/modern
Ausrichtung: Eingang Ost, Terrasse West
Maximale Höhen/Begrenzungen: -
weitere Vorgaben: -
Anforderungen der Bauherren
Stilrichtung, Dachform, Gebäudetyp -
Keller, Geschosse: ohne Keller, 1,5 Geschosse
Anzahl der Personen, Alter: 2 Erwachsene, 2 Kinder (2+5)
Raumbedarf im EG, OG: wie in Grundriss
Büro: Familiennutzung oder Homeoffice?: nein, Akten in HAR
Schlafgäste pro Jahr: zu vernachlässigen
offene oder geschlossene Architektur: halboffene Küche
konservativ oder moderne Bauweise: -
offene Küche, Kochinsel: halboffene Küche
Anzahl Essplätze: 6, erweiterbar
Kamin: nein
Musik/Stereowand: ja, möglichst ganze Wand mit Stauraum
Balkon, Dachterrasse: nein
Garage, Carport: nein
Nutzgarten, Treibhaus: nein
weitere Wünsche/Besonderheiten/Tagesablauf-
Hausentwurf
Von wem stammt die Planung: Ursprung Bauträger, von uns individualisiert
Was gefällt besonders? Ausweichdusche EG, Speisekammer, großer HAR, gemauerte Dusche oben, große Schlafräume, Abstellraum oben
Was gefällt nicht? -
Preisschätzung lt Architekt/Planer: nicht relevant
Persönliches Preislimit fürs Haus, inkl Ausstattung: nicht relevant
favorisierte Heiztechnik: Gastherme + Solar mit 400l Wasserspeicher
Wenn Ihr verzichten müsst, auf welche Details/Ausbauten
-könnt Ihr verzichten: -
-könnt Ihr nicht verzichten: -
wir planen den Bau eines 150 m²-Hauses und optimieren grade unseren Grundriss... Eigentlich sind wir so damit zufrieden, aber ein bisschen Skepsis bleibt
In folgenden Bereichen bin ich etwas unsicher:
- Wohnzimmer: Ist die Platzierung des Sofas sehr unglücklich? Würde es ungern um 90 Grad drehen, sodass man den Fernseher an der kurzen Fensterwand platzieren müsste...
- Küche: Benötigt man eine separate Heizung oder heizt das Wohn-/Esszimmer die Küche mit? Ich wüsste auf Anhieb nicht, wo ich eine Heizung unterbringen sollte.
- Speisekammer: Lässt sie sich in dieser Form nutzen? Natürlich ist der Bereich mit 60 cm Breite nicht optimal, aber vielleicht doch für Ersatzstühle o.ä. nutzbar? Außerdem sollen hier Getränke, Akkusauger, Papier-/Plastikmüll, Backformen... Platz finden. Eben alles, was man nicht so häufig braucht und/oder zu sperrig für Küchenschränke ist.
- Bad oben: Ich möchte mir ungern den großen Raum mit sehr teuren Badschränken verbauen, daher kam die Idee mit dem Raum hinter Dusche/Badewanne. Reicht der Platz zwischen Waschbecken und Badewanne/Dusche aus, um notfalls auch mal mit 2/3/4 Personen herumzuwuseln? Ansonsten bin ich von meiner Idee nämlich sehr begeistert Vorher waren die Sanitärobjekte einfach außen herum platziert und es wäre nicht mal wirklich Platz für einen Schrank geblieben.
Wer Lust hat, mal drüber zu schauen und seinen "Senf" abgeben möchte - sehr gerne!
Vielen Dank,
hemali
Grundriss und Bemaßung sind nur grob, bitte entschuldigt die krummen Werte!
Oben ist Westen, rechts Norden, unten Osten, links Süden
Dass die Fenster nicht symmetrisch übereinander liegen, ist erst mal zu vernachlässigen. Die Hausseiten sind kaum einsehbar und somit stört es uns wenig, ob das besonders harmonisch aussieht oder nicht.
Bebauungsplan/Einschränkungen
Größe des Grundstücks: 800 qm
Hang: nein
Grundflächenzahl: -
Geschossflächenzahl: -
Baufenster, Baulinie und -grenze: -
Randbebauung: -
Anzahl Stellplatz: -
Geschossigkeit: 1,5
Dachform: Satteldach 45 Grad
Stilrichtung: klassisch/modern
Ausrichtung: Eingang Ost, Terrasse West
Maximale Höhen/Begrenzungen: -
weitere Vorgaben: -
Anforderungen der Bauherren
Stilrichtung, Dachform, Gebäudetyp -
Keller, Geschosse: ohne Keller, 1,5 Geschosse
Anzahl der Personen, Alter: 2 Erwachsene, 2 Kinder (2+5)
Raumbedarf im EG, OG: wie in Grundriss
Büro: Familiennutzung oder Homeoffice?: nein, Akten in HAR
Schlafgäste pro Jahr: zu vernachlässigen
offene oder geschlossene Architektur: halboffene Küche
konservativ oder moderne Bauweise: -
offene Küche, Kochinsel: halboffene Küche
Anzahl Essplätze: 6, erweiterbar
Kamin: nein
Musik/Stereowand: ja, möglichst ganze Wand mit Stauraum
Balkon, Dachterrasse: nein
Garage, Carport: nein
Nutzgarten, Treibhaus: nein
weitere Wünsche/Besonderheiten/Tagesablauf-
Hausentwurf
Von wem stammt die Planung: Ursprung Bauträger, von uns individualisiert
Was gefällt besonders? Ausweichdusche EG, Speisekammer, großer HAR, gemauerte Dusche oben, große Schlafräume, Abstellraum oben
Was gefällt nicht? -
Preisschätzung lt Architekt/Planer: nicht relevant
Persönliches Preislimit fürs Haus, inkl Ausstattung: nicht relevant
favorisierte Heiztechnik: Gastherme + Solar mit 400l Wasserspeicher
Wenn Ihr verzichten müsst, auf welche Details/Ausbauten
-könnt Ihr verzichten: -
-könnt Ihr nicht verzichten: -
H
hemali200321.05.16 23:55Danke für Deine Meinung.
Ja, Treppe passt - hab ich aus dem Ursprungsplan übernommen. Hab ich oben nicht eingezeichnet, ist aber logischerweise an gleicher Stelle
Tja, die Speisekammer entstand aus dem Gedanken, dass die Wege von Küchenzeile zu Küchenzeile mit 2,40 m vielleicht etwas groß bemessen sind und die Küche mit den vielen Schränken nicht schön wirkte... Die aktuelle Küchenplanung gefällt uns extrem gut, die Speisekammer eigentlich auch. Der 60 cm-"Gang" ist zugegebenermaßen etwas suboptimal, wir werden aber sicher irgendeinen Nutzen finden
Ja, Treppe passt - hab ich aus dem Ursprungsplan übernommen. Hab ich oben nicht eingezeichnet, ist aber logischerweise an gleicher Stelle
Tja, die Speisekammer entstand aus dem Gedanken, dass die Wege von Küchenzeile zu Küchenzeile mit 2,40 m vielleicht etwas groß bemessen sind und die Küche mit den vielen Schränken nicht schön wirkte... Die aktuelle Küchenplanung gefällt uns extrem gut, die Speisekammer eigentlich auch. Der 60 cm-"Gang" ist zugegebenermaßen etwas suboptimal, wir werden aber sicher irgendeinen Nutzen finden
H
hemali200322.05.16 00:45Aber die restliche Speisekammer mit 1,25x1,77m ist doch nutzbar oder ist das zu klein, um etwas unterzubringen? Ich kenne mich mit Speisekammern nicht so aus...
Die 60 cm sind doch gar nicht begehbar.
Euren Stauraum hinter der Wanne auch nicht, dort werden eh die Abwasserleitungen verlaufen.
50 cm für den Duscheingang geht auch nicht.
Vorwand für Toilette und Installationen fehlen völlig.
Platz für einen Kleiderschrank in vernünftiger Größe im Schlafzimmer fehlt, der Zugang zum Wohnbereich am Sofa vorbei suboptimal.
Tragende Wände gibt es gar nicht.
Und Küchenhochschränke sind auch 58 cm tief und somit mit 65 cm im Rohbaumaß einzuzeichnen.
Garderobe und Wäsche heißt: schmutzige Schuhe neben der Weisswäsche.
Viel zu komplizierter und langer Slalomweg in die Küche bzw Speis.
Ich würde sagen: da ist beim Individuasilieren des Planerentwurfes so einiges schief gelaufen. Der Entwurf, wahrscheinlich ein Standardgrundriss, aber Geratewohl funktional, ist verhunzt.
Da muss ich Dir leider den Enthusiasmus nehmen.
Euren Stauraum hinter der Wanne auch nicht, dort werden eh die Abwasserleitungen verlaufen.
50 cm für den Duscheingang geht auch nicht.
Vorwand für Toilette und Installationen fehlen völlig.
Platz für einen Kleiderschrank in vernünftiger Größe im Schlafzimmer fehlt, der Zugang zum Wohnbereich am Sofa vorbei suboptimal.
Tragende Wände gibt es gar nicht.
Und Küchenhochschränke sind auch 58 cm tief und somit mit 65 cm im Rohbaumaß einzuzeichnen.
Garderobe und Wäsche heißt: schmutzige Schuhe neben der Weisswäsche.
Viel zu komplizierter und langer Slalomweg in die Küche bzw Speis.
Ich würde sagen: da ist beim Individuasilieren des Planerentwurfes so einiges schief gelaufen. Der Entwurf, wahrscheinlich ein Standardgrundriss, aber Geratewohl funktional, ist verhunzt.
Da muss ich Dir leider den Enthusiasmus nehmen.
P
Portoalegre22.05.16 01:08wenn das nicht relevant ist warum dann keinen Profi ranlassen?
Ähnliche Themen