ᐅ Grundriss, bitte um Tipps und Anregungen, Einfamilienhaus 160m²
Erstellt am: 08.12.14 19:13
S
scr00geHallo liebe Häuslebauer
Wir stehen kurz davor unsren Hausbautraum zu verwirklichen!
Nachdem wir viele Grundrisse von Fertighausanbietern verglichen haben, auch einige aus diesem Forum, haben wir unserem Bauträger den Wunschgrundriss vorgelegt.
Es wird ein Fertighaus in Holzständerbauweise werden.
Diesen hat er 1zu1 übernommen und mittlerweile mit uns an unsere Bedürfnisse angepasst.
Diese sind: 1 Büro im Erdgeschoss, eine Ankleide, einen Kamin im Wohn/Esszimmer und am liebsten Küche und Wohn/Essbereich in einem langen Raum.
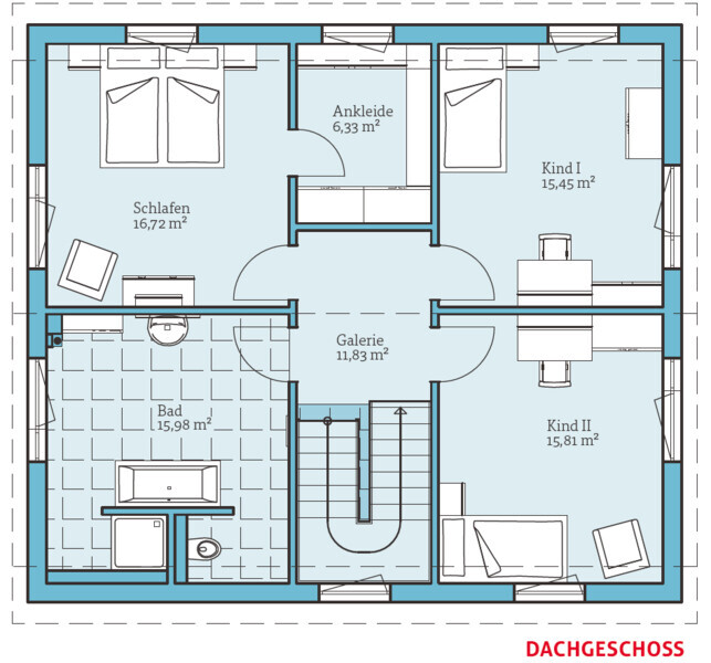
Süden ist auf dem Grundriss oben! Die mittlere Tür im Esszimmer ist die Terrassentür, im Westen im Wohnzimmer ist noch mal eine Terrassentür.
Kniestock ist bei 160cm. Vor der Treppe soll ein längliches Fenster in die Nordwand eingelassen werden, welches die Diele und das Obergeschoss mit Licht versorgt.
Was uns jetzt noch umtreibt ist die Frage, ob wir irgendwas übersehen haben oder besser machen könnten
Ist es erst mal gebaut, kann man nichts mehr ändern.
Eine große Frage ist noch ob es sinnvoller wäre die Garage an das Haus anzubauen und dann nen extra Eingang über den Hauswirtschaftsraum zu machen... Das Fenster könnte in dem Raum bleiben.
Glaubt ihr die Küche ist zu groß oder steht zu weit in den Raum rein?
Da man sich leicht verrennt und den Wald vor lauter Bäumen nicht mehr sieht, wollten wir den Grundriss mal euch vorstellen! Wir haben viel in dem Forum gelesen und ihr habt schon so viel nützliche Tipps gehabt oder echte Fehlplanungen entdeckt
Also hier unser Grundriss:
P.S.: Der Esszimmertisch ist wohl unserem Planer etwas verrutscht! Der gehört natürlich weiter nach Osten
Zusatzinfo:
Keller haben wir keinen, dafür ein großes Dachgeschoss und einen zusätzlichen Raum in der Garage.
Vielen Dank und Grüße
Wir stehen kurz davor unsren Hausbautraum zu verwirklichen!
Nachdem wir viele Grundrisse von Fertighausanbietern verglichen haben, auch einige aus diesem Forum, haben wir unserem Bauträger den Wunschgrundriss vorgelegt.
Es wird ein Fertighaus in Holzständerbauweise werden.
Diesen hat er 1zu1 übernommen und mittlerweile mit uns an unsere Bedürfnisse angepasst.
Diese sind: 1 Büro im Erdgeschoss, eine Ankleide, einen Kamin im Wohn/Esszimmer und am liebsten Küche und Wohn/Essbereich in einem langen Raum.
Süden ist auf dem Grundriss oben! Die mittlere Tür im Esszimmer ist die Terrassentür, im Westen im Wohnzimmer ist noch mal eine Terrassentür.
Kniestock ist bei 160cm. Vor der Treppe soll ein längliches Fenster in die Nordwand eingelassen werden, welches die Diele und das Obergeschoss mit Licht versorgt.
Was uns jetzt noch umtreibt ist die Frage, ob wir irgendwas übersehen haben oder besser machen könnten
Ist es erst mal gebaut, kann man nichts mehr ändern.
Eine große Frage ist noch ob es sinnvoller wäre die Garage an das Haus anzubauen und dann nen extra Eingang über den Hauswirtschaftsraum zu machen... Das Fenster könnte in dem Raum bleiben.
Glaubt ihr die Küche ist zu groß oder steht zu weit in den Raum rein?
Da man sich leicht verrennt und den Wald vor lauter Bäumen nicht mehr sieht, wollten wir den Grundriss mal euch vorstellen! Wir haben viel in dem Forum gelesen und ihr habt schon so viel nützliche Tipps gehabt oder echte Fehlplanungen entdeckt
Also hier unser Grundriss:
P.S.: Der Esszimmertisch ist wohl unserem Planer etwas verrutscht! Der gehört natürlich weiter nach Osten
Zusatzinfo:
Keller haben wir keinen, dafür ein großes Dachgeschoss und einen zusätzlichen Raum in der Garage.
Vielen Dank und Grüße
Ich finde den Grundriss zwar nicht besonders kreativ aber bis auf die Treppe neben der Eingangstüre auch nicht so schlecht. Wem's gefällt kann das doch so bauen finde ich.
Ich kann zudem nicht ganz nachvollziehen warum immer so viel Wert darauf gelegt wird um jeden Preis jeden Quadratdezimeter Wohnfläche voll ausnutzen zu müssen. Wir haben bewusst breite Flure und eine breite Treppe gewählt (also viel Verkehrsfläche), weil wir das so mögen. Zudem eine Galerie, den Platz hätte man auch "besser" nutzen können. Aber was nutzt mir ein super funktionales und bis auf das letzte Eckchen ausgenutzte Haus wenn ich mich nicht wirklich drin wohl fühle?
Ich kann zudem nicht ganz nachvollziehen warum immer so viel Wert darauf gelegt wird um jeden Preis jeden Quadratdezimeter Wohnfläche voll ausnutzen zu müssen. Wir haben bewusst breite Flure und eine breite Treppe gewählt (also viel Verkehrsfläche), weil wir das so mögen. Zudem eine Galerie, den Platz hätte man auch "besser" nutzen können. Aber was nutzt mir ein super funktionales und bis auf das letzte Eckchen ausgenutzte Haus wenn ich mich nicht wirklich drin wohl fühle?
@Wanderdüne:
Also die Sache mit der Treppe haben wir schon gewusst. Ja es ist im Schmutzbereich, aber für uns nicht anders machbar. Mit dem Punkt haben wir aber auch kein all zu großes Problem.
Die Sache mit der Ankleide versteh ich nicht! Wer sollte da noch reingehen wollen außer meiner Frau ;P
Eine Do-It-Yourself Planung ist des net, sondern eine von Hanse Haus.
Was meinst du mit "introvertiertes Wohnzimmer ohne Innen-Aussenbeziehung"? Das hab ich oft gelesen, aber noch nie verstanden :/
Warum sollten die Türen net in den Raumecken sein? Abgesehen davon gehts bei uns im Büro und im nördlichen Kinderzimmer auch nich anders wegen der Treppe. Und die viertelgewendelte Treppe würden wir gern behalten
Wie würdest du des gleiche Raumprogramm mit 15m² weniger machen?
@Yvonne: Das was ich hochgeladen hab ist der Plan vom Bauträger.
Unser Plan (also unbearbeitet) ist der hier: [siehe Anlage]
Aber Türanschläge und genaue Türpositionen sind noch net fix!
@One00: Danke für das Lob unserer Unkreativität
Ne Spaß bei Seite wir sehen das so wie du! Etwas "Raumgefühl" darf schon sein
Nur Blödsinn oder echte Fehler müssen ausgemerzt werden...


Also die Sache mit der Treppe haben wir schon gewusst. Ja es ist im Schmutzbereich, aber für uns nicht anders machbar. Mit dem Punkt haben wir aber auch kein all zu großes Problem.
Die Sache mit der Ankleide versteh ich nicht! Wer sollte da noch reingehen wollen außer meiner Frau ;P
Eine Do-It-Yourself Planung ist des net, sondern eine von Hanse Haus.
Was meinst du mit "introvertiertes Wohnzimmer ohne Innen-Aussenbeziehung"? Das hab ich oft gelesen, aber noch nie verstanden :/
Warum sollten die Türen net in den Raumecken sein? Abgesehen davon gehts bei uns im Büro und im nördlichen Kinderzimmer auch nich anders wegen der Treppe. Und die viertelgewendelte Treppe würden wir gern behalten
Wie würdest du des gleiche Raumprogramm mit 15m² weniger machen?
@Yvonne: Das was ich hochgeladen hab ist der Plan vom Bauträger.
Unser Plan (also unbearbeitet) ist der hier: [siehe Anlage]
Aber Türanschläge und genaue Türpositionen sind noch net fix!
@One00: Danke für das Lob unserer Unkreativität
Ne Spaß bei Seite wir sehen das so wie du! Etwas "Raumgefühl" darf schon sein
Nur Blödsinn oder echte Fehler müssen ausgemerzt werden...
Im Großen und Ganzen ein einfacher Grundriss.
Hauswirtschaftsraum ist zu klein für ein Haus ohne Keller (ich geh mal von einem Haus ohne Keller aus) und dies die einzige Abstellmöglichkeit ist.
Platz unter der Treppe ist nicht wirklich nutzbar und verkommt meist zu einer Dreckecke. Bei Häuser ohne Keller bietet sich hier immer ein weiterer Abstellraum an. Jedoch wird es bei dem Grundriss schwer, da unter der Treppe der Zugang zum Arbeitszimmer ist.
Treppe - Kind1 = hier könnte sich eine Gefahrenstelle befinden. Wenn ein Kind nachts schlaftrunken zu Mama und Papa will ist der Treppenabgang hier sehr gefährlich.
Zugang zur Terrasse. Ich nehme mal an, dass da normalerweise euer Esstisch steht, d.h. es ist immer umständlich wenn man auf die Terrasse will und immer um diesen laufen muss.
Hauseingangstür falsch angeschlagen. Der große Flur ist zwar groß, aber den könnte man (zugunsten des Hauswirtschaftsraum) auch noch etwas verkleinern, ohne dass ihr hier wirklich Platz für Garderobe verloren geht.
Evtl. wäre es eine Alternative den Hauswirtschaftsraum, WC und das Arbeitszimmer zu tauschen. Also WC ans Wohnzimmer anschließen lassen, den Hauswirtschaftsraum rechts der Treppe und das Arbeitszimmer auf die Seite wo jetzt der Hauswirtschaftsraum ist. So hättet ihr auch noch die Möglichkeit unter der Treppe nen Abstellraum zu machen. Und oben dann auch Kind 1 und Bad tauschen (evtl. auch Eltern, dann wären beide Kinder auf einer Seite).
Hauswirtschaftsraum ist zu klein für ein Haus ohne Keller (ich geh mal von einem Haus ohne Keller aus) und dies die einzige Abstellmöglichkeit ist.
Platz unter der Treppe ist nicht wirklich nutzbar und verkommt meist zu einer Dreckecke. Bei Häuser ohne Keller bietet sich hier immer ein weiterer Abstellraum an. Jedoch wird es bei dem Grundriss schwer, da unter der Treppe der Zugang zum Arbeitszimmer ist.
Treppe - Kind1 = hier könnte sich eine Gefahrenstelle befinden. Wenn ein Kind nachts schlaftrunken zu Mama und Papa will ist der Treppenabgang hier sehr gefährlich.
Zugang zur Terrasse. Ich nehme mal an, dass da normalerweise euer Esstisch steht, d.h. es ist immer umständlich wenn man auf die Terrasse will und immer um diesen laufen muss.
Hauseingangstür falsch angeschlagen. Der große Flur ist zwar groß, aber den könnte man (zugunsten des Hauswirtschaftsraum) auch noch etwas verkleinern, ohne dass ihr hier wirklich Platz für Garderobe verloren geht.
Evtl. wäre es eine Alternative den Hauswirtschaftsraum, WC und das Arbeitszimmer zu tauschen. Also WC ans Wohnzimmer anschließen lassen, den Hauswirtschaftsraum rechts der Treppe und das Arbeitszimmer auf die Seite wo jetzt der Hauswirtschaftsraum ist. So hättet ihr auch noch die Möglichkeit unter der Treppe nen Abstellraum zu machen. Und oben dann auch Kind 1 und Bad tauschen (evtl. auch Eltern, dann wären beide Kinder auf einer Seite).
Ok, das Haus kenne ich. Das haben wir uns auch anbieten lassen, nur noch mit einem 3. Giebel zusätzlich. Das Wohnzimmer fand ich allerdings schon recht unpraktisch und das war mit ein Grund warum wir von dem Grundriss weg sind.
Was ich allerdings sehr schick fand ist die Treppe mit dem Abstellraum drunter. Und ich kann ehrlich gesagt nicht verstehen, warum ihr stattdessen eine Viertelgewendelte wählt.
Was ich allerdings sehr schick fand ist die Treppe mit dem Abstellraum drunter. Und ich kann ehrlich gesagt nicht verstehen, warum ihr stattdessen eine Viertelgewendelte wählt.
@Manu 1976:
Warum findest du des Wohnzimmer unpraktisch? Wir werden hinter dem Sofa (Süden) keine Tür haben. Nur nach Westen.
Also unter der Treppe hatten wir vor eine Hänge-Garderobe zu stellen.
Mit dem Kind muss ich dir zustimmen... das hatten wir noch nicht bedacht... Da müssen wir dringend noch mal drüben schauen!
Hauswirtschaftsraum wird uns reichen, da wir zwar keinen Keller haben (richtig geraten ), aber nen großen Dachboden und nen extra Raum in der Garage.
Das hab ich im Eingangspost noch nachgetragen!
Danke schon mal für die vielen Anregungen
Warum findest du des Wohnzimmer unpraktisch? Wir werden hinter dem Sofa (Süden) keine Tür haben. Nur nach Westen.
Also unter der Treppe hatten wir vor eine Hänge-Garderobe zu stellen.
Mit dem Kind muss ich dir zustimmen... das hatten wir noch nicht bedacht... Da müssen wir dringend noch mal drüben schauen!
Hauswirtschaftsraum wird uns reichen, da wir zwar keinen Keller haben (richtig geraten ), aber nen großen Dachboden und nen extra Raum in der Garage.
Das hab ich im Eingangspost noch nachgetragen!
Danke schon mal für die vielen Anregungen
Ähnliche Themen