ᐅ Schwieriger Grundriss für Mietshaus
Erstellt am: 04.11.15 13:44
PaJuBe1404.11.15 13:44
Hallo zusammen,
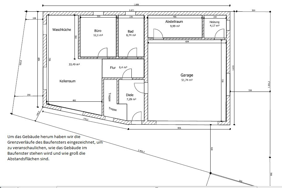
wir planen einen Neubau, der vermietet werden soll. Die Voraussetzungen sind recht schwierig, da das Grundstück leicht schräg zuläuft und das Baufenster maximal ausgereizt werden muss, um die entsprechenden qm zu erzielen.
Der Grundriss wie auf dem derzeitigen Plan bezeichnet EXAKT das Baufenster unter Einhaltung aller Grenzen. Größer werden darf es nach Mitteilung unserer Baubehörde (Bauvoranfrage) nach links um ca. 1 Meter und nach unten um ca. 1 Meter (ggf. spitz zulaufendes Eck entschärfen). Nach rechts und oben ist der Grundriss unveränderbar.
Wir haben die Planung selbst erstellt, finden sie im Grunde auch schon recht gelungen. Es ist alles untergebracht was benötigt wird. Einzig in der Größe des Wohnraumes sind wir nicht ganz sicher ob er sich gut nutzen lässt.
Wir sind dankbar um jede Anregung und offen für Veränderungen, für die wir blind sind.
Genutzt werden soll es zur Vermietung an (vermutlich amerikanische) Familien. Sollten noch Informationen fehlen, sagt gerne Bescheid, ich versuche sie zu liefern.
Anbei noch der Fragenkatalog soweit möglich ausgefüllt.
Danke schon mal für die Hilfe.
LG Julia
Bebauungsplan/Einschränkungen
Größe des Grundstücks rd 850qm
Hang: ja
Baufenster, Baulinie und -grenze: Flucht der hinteren Häuser im Flurstücksplan
Anzahl Stellplatz 0
Geschossigkeit 2
Dachform: Pultdach
Stilrichtung: modern
Besonderheiten: Bebauung 2. Reihe, Zufahrt über andere Grundstücke (Baulast). Durch das knappe Baufenster sind Garagen neben dem Haus nicht gewünscht, daher die Garagen im UG.
Zu Grundstück links und unten müssen keine Grenzen eingehalten werden, da die Grundstücke zuvor eine Flurstücksnummer hatten. Dies ist eine Auskunft unserer Baubehörde aus der Bauvoranfrage. nach Rechts müssen 3m Grenze eingehalten werden.
Anforderungen der Bauherren
Stilrichtung, Dachform, Gebäudetyp: Pultdach
Keller, Geschosse: nutzbarer Keller
Anzahl der Personen, Alter: 2-5
Raumbedarf im EG, OG: OG 5 ZKB
Büro: Familiennutzung oder Homeoffice? Familie
Schlafgäste pro Jahr
konservativ oder moderne Bauweise: modern
offene Küche, Kochinsel: ja beides
Anzahl Essplätze: 6-8
Kamin: nein
Musik/Stereowand: Multimedia Wand für TV und Musik
Balkon, Dachterrasse
Garage, Carport
Nutzgarten, Treibhaus
weitere Wünsche/Besonderheiten/Tagesablauf: Amerikanischer Side-by-Side Kühlschrank Pflicht; unterer Bereich sollte bei Bedarf als eigenständige Wohnung nutzbar sein
Hausentwurf
Von wem stammt die Planung:
-Do-it-Yourself von Euch
Was gefällt besonders? Offener Wohn-Essbereich, Garage im Haus integriert
Was gefällt nicht? Aufteilung Wohn-Esszimmer-Küche, Treppenaufgang vll nicht optimal, Abstellraum sehr klein.
favorisierte Heiztechnik: luftwärmepumpe (kein Gasanschluss am Grundstück)
Wenn Ihr verzichten müsst, auf welche Details/Ausbauten
-könnt Ihr verzichten:
-könnt Ihr nicht verzichten: Garage im Haus






wir planen einen Neubau, der vermietet werden soll. Die Voraussetzungen sind recht schwierig, da das Grundstück leicht schräg zuläuft und das Baufenster maximal ausgereizt werden muss, um die entsprechenden qm zu erzielen.
Der Grundriss wie auf dem derzeitigen Plan bezeichnet EXAKT das Baufenster unter Einhaltung aller Grenzen. Größer werden darf es nach Mitteilung unserer Baubehörde (Bauvoranfrage) nach links um ca. 1 Meter und nach unten um ca. 1 Meter (ggf. spitz zulaufendes Eck entschärfen). Nach rechts und oben ist der Grundriss unveränderbar.
Wir haben die Planung selbst erstellt, finden sie im Grunde auch schon recht gelungen. Es ist alles untergebracht was benötigt wird. Einzig in der Größe des Wohnraumes sind wir nicht ganz sicher ob er sich gut nutzen lässt.
Wir sind dankbar um jede Anregung und offen für Veränderungen, für die wir blind sind.
Genutzt werden soll es zur Vermietung an (vermutlich amerikanische) Familien. Sollten noch Informationen fehlen, sagt gerne Bescheid, ich versuche sie zu liefern.
Anbei noch der Fragenkatalog soweit möglich ausgefüllt.
Danke schon mal für die Hilfe.
LG Julia
Bebauungsplan/Einschränkungen
Größe des Grundstücks rd 850qm
Hang: ja
Baufenster, Baulinie und -grenze: Flucht der hinteren Häuser im Flurstücksplan
Anzahl Stellplatz 0
Geschossigkeit 2
Dachform: Pultdach
Stilrichtung: modern
Besonderheiten: Bebauung 2. Reihe, Zufahrt über andere Grundstücke (Baulast). Durch das knappe Baufenster sind Garagen neben dem Haus nicht gewünscht, daher die Garagen im UG.
Zu Grundstück links und unten müssen keine Grenzen eingehalten werden, da die Grundstücke zuvor eine Flurstücksnummer hatten. Dies ist eine Auskunft unserer Baubehörde aus der Bauvoranfrage. nach Rechts müssen 3m Grenze eingehalten werden.
Anforderungen der Bauherren
Stilrichtung, Dachform, Gebäudetyp: Pultdach
Keller, Geschosse: nutzbarer Keller
Anzahl der Personen, Alter: 2-5
Raumbedarf im EG, OG: OG 5 ZKB
Büro: Familiennutzung oder Homeoffice? Familie
Schlafgäste pro Jahr
konservativ oder moderne Bauweise: modern
offene Küche, Kochinsel: ja beides
Anzahl Essplätze: 6-8
Kamin: nein
Musik/Stereowand: Multimedia Wand für TV und Musik
Balkon, Dachterrasse
Garage, Carport
Nutzgarten, Treibhaus
weitere Wünsche/Besonderheiten/Tagesablauf: Amerikanischer Side-by-Side Kühlschrank Pflicht; unterer Bereich sollte bei Bedarf als eigenständige Wohnung nutzbar sein
Hausentwurf
Von wem stammt die Planung:
-Do-it-Yourself von Euch
Was gefällt besonders? Offener Wohn-Essbereich, Garage im Haus integriert
Was gefällt nicht? Aufteilung Wohn-Esszimmer-Küche, Treppenaufgang vll nicht optimal, Abstellraum sehr klein.
favorisierte Heiztechnik: luftwärmepumpe (kein Gasanschluss am Grundstück)
Wenn Ihr verzichten müsst, auf welche Details/Ausbauten
-könnt Ihr verzichten:
-könnt Ihr nicht verzichten: Garage im Haus
Wastl04.11.15 13:54
Ihr wollt Richtung Süden 1 Meter des ursprünglichen Geländeverlaufs abtragen - korrekt? Funktioniert das mit der Garageneinfahrt / Betandsimmobilie noch?
Mir persönlich gefällt es nicht mit der Haustüre im Abstellkeller (da Norden kein Lich) also in der dunklen Ecke hereinzukommen, um dann hochzugehen und de facto oben in die Wohnung einzutreten und dann direkt im Wohnzimmer zu stehen.
Hab aber keine bessere Lösung - Eventuell das Treppenhaus im Süden komplett inkl Eingangstüre ansiedeln?
Mir persönlich gefällt es nicht mit der Haustüre im Abstellkeller (da Norden kein Lich) also in der dunklen Ecke hereinzukommen, um dann hochzugehen und de facto oben in die Wohnung einzutreten und dann direkt im Wohnzimmer zu stehen.
Hab aber keine bessere Lösung - Eventuell das Treppenhaus im Süden komplett inkl Eingangstüre ansiedeln?
wrobel04.11.15 16:39
Moin Moin
cool....ein Pultdachbungalow.
Das Baufenster u. die Ausrichtung sind aber schon erhöhter Schwierigkeitsgrad.
Die von euch angedachte Lösung halte ich auch nicht für gut.
Mal davon ausgehend das im Norden nichts gebaut wird komme ich da auf ganz andere Ideen.
Wir bauen grade ein ganz ähnliches Gebäude. ist auch hier zu finden.
Olli
cool....ein Pultdachbungalow.
Das Baufenster u. die Ausrichtung sind aber schon erhöhter Schwierigkeitsgrad.
Die von euch angedachte Lösung halte ich auch nicht für gut.
Mal davon ausgehend das im Norden nichts gebaut wird komme ich da auf ganz andere Ideen.
Wir bauen grade ein ganz ähnliches Gebäude. ist auch hier zu finden.
Olli
wrobel04.11.15 17:25
Moin noch mal
so ein paar Gedanken:
EG von Ost beginnend Garage, Treppe und Eingang EG, Süd West dann Wohnraum mit der Möglichkeit einer kleinen Terrasse, Nord West Schlafraum, Nord Bad Abstellraum.
OG auch im Uhrzeigersinn mit dem Geländeverlauf ansteigend einen Eingang im OG
Süd Ost u. Süd die Kinderzimmer, Kellertreppe, Süd West Nord Wohnzimmer, Nord Schlafen und Bad.
Das mal so auf die Schnelle
Olli
so ein paar Gedanken:
EG von Ost beginnend Garage, Treppe und Eingang EG, Süd West dann Wohnraum mit der Möglichkeit einer kleinen Terrasse, Nord West Schlafraum, Nord Bad Abstellraum.
OG auch im Uhrzeigersinn mit dem Geländeverlauf ansteigend einen Eingang im OG
Süd Ost u. Süd die Kinderzimmer, Kellertreppe, Süd West Nord Wohnzimmer, Nord Schlafen und Bad.
Das mal so auf die Schnelle
Olli
ypg04.11.15 18:41
Hallo,
was ist denn davon nun Mietshaus? Wikipedia teilt sich nun mal meine Vorstellung eines solchen Hauses... kurz gefasst: ein Haus mit vermieteten Wohneinheiten, die Rendite bringen sollen.
Da würde ich - sorry - ganz anders bauen als für mich. Kurz gesagt: da wird keine Rücksicht genommen, ob ein Side By Side Kühlschrank noch Platz hat.
Magst Du den Hausbau noch etwas konkretisieren? Deine Überschrift erläutern? .... bevor hier zu viel Gehirnschmalz in die falsche Richtung geworfen wird...
was ist denn davon nun Mietshaus? Wikipedia teilt sich nun mal meine Vorstellung eines solchen Hauses... kurz gefasst: ein Haus mit vermieteten Wohneinheiten, die Rendite bringen sollen.
Da würde ich - sorry - ganz anders bauen als für mich. Kurz gesagt: da wird keine Rücksicht genommen, ob ein Side By Side Kühlschrank noch Platz hat.
Magst Du den Hausbau noch etwas konkretisieren? Deine Überschrift erläutern? .... bevor hier zu viel Gehirnschmalz in die falsche Richtung geworfen wird...
PaJuBe1404.11.15 18:49
Hallo und vielen Dank für die schnellen Antworten. Ich glaub ich habe mich falsch ausgedrückt.
Erstmal soll das ganze als ein Haus vermietet werden. Es soll lediglich irgendwann die Möglichkeit haben, falls man im Alter nur 1 Ebene braucht oder die komplette Fläche nicht mehr vermietet werden kann, von een räumen her möglich sein unten separat nutzen zu können.
Daher sind jetzt 2 getrennte Eingänge nicht nötig, nur irgendwann eine zwischendurch oder ähnliches.
Es handelt sich um einen neuen, daher gibt es kein Bestandsgebäude.
Norden ist hinten im Garten. : was meinst du mit "davon ausgehend dass im Norden nichts gebaut wird"?
Yvonne: der Grundriss soll so gestaltet sein, dass wir ggf irgendwann (in 10-15 Jahren) da auch einziehen würden. Wir wohnen derzeit bei unserer Firma dabei und wollen irgendwann ruhiger wohnen.
Es wird von uns auch alles selbst gebaut, das meiste wird nur Material kosten, daher wird die Substanz und Aufteilung hochwertig sein und der Innenausstattung (zunächst) auf Vermietung ausgelegt.
Grundsätzlich hast du mit dem Side By Side Kühlschrank sicher recht, aber die Amerikaner sind bei uns eine recht spezielle Zielgruppe. Unter 180 qm braucht man nicht anfangen, gewisse Dinge sind für sie notwendig. Dafür sind die mieten entsprechend hoch. Daher werden auf solche Kleinigkeiten doch Rücksicht genommen.
Erstmal soll das ganze als ein Haus vermietet werden. Es soll lediglich irgendwann die Möglichkeit haben, falls man im Alter nur 1 Ebene braucht oder die komplette Fläche nicht mehr vermietet werden kann, von een räumen her möglich sein unten separat nutzen zu können.
Daher sind jetzt 2 getrennte Eingänge nicht nötig, nur irgendwann eine zwischendurch oder ähnliches.
Es handelt sich um einen neuen, daher gibt es kein Bestandsgebäude.
Norden ist hinten im Garten. : was meinst du mit "davon ausgehend dass im Norden nichts gebaut wird"?
Yvonne: der Grundriss soll so gestaltet sein, dass wir ggf irgendwann (in 10-15 Jahren) da auch einziehen würden. Wir wohnen derzeit bei unserer Firma dabei und wollen irgendwann ruhiger wohnen.
Es wird von uns auch alles selbst gebaut, das meiste wird nur Material kosten, daher wird die Substanz und Aufteilung hochwertig sein und der Innenausstattung (zunächst) auf Vermietung ausgelegt.
Grundsätzlich hast du mit dem Side By Side Kühlschrank sicher recht, aber die Amerikaner sind bei uns eine recht spezielle Zielgruppe. Unter 180 qm braucht man nicht anfangen, gewisse Dinge sind für sie notwendig. Dafür sind die mieten entsprechend hoch. Daher werden auf solche Kleinigkeiten doch Rücksicht genommen.
Ähnliche Themen