ᐅ Grundriss - Haus mit 2WE zur Vermietung
Erstellt am: 06.08.16 00:45
S
smartsurfer06.08.16 00:45Hallo Zusammen,
auch ich möchte nun unseren Grundriss hier zur Diskussion veröffentlichen. Es handelt sich um zwei Entwürfe unterschiedlicher GU, auf Basis eines Entwurfs von uns.
---------------------------------------------
Bebauungsplan/Einschränkungen
Größe des Grundstücks: 708 m²
Lage, Ausrichtung: Die Grundstückssituation habe ich bereits in diesem Thread vorgestellt.
https://www.hausbau-forum.de/threads/Grundstück-teilen-langes-schmales-Grundstück.15277/
Zwischenzeitlich haben sich folgende Prämissen ergeben: Es sollen erst mal ein Haus mit zwei Wohneinheit zur Vermietung gebaut werden. Das zweite Haus wollen wir zwar genehmigen lassen, aber erstmal nicht realisieren.
Angaben aus dem Bebauungsplan: Grundflächenzahl 0,4, Dachform: SD, FD, Dachneigung: 28-32 oder 0-5, Stellplätze: Landesbauordnung BW=1 KFZ-Stellplatz pro Wohneinheit und 2 Fahrradstellplätze pro Wohneinheit
Anforderungen der Bauherren
Stilrichtung, Dachform, Gebäudetyp: 1 Haus mit 2 getrennten Wohneinheiten zur Vermietung also 2-geschossige Bauweise ohne Dachschrägen, Satteldach
Keller, Geschosse: kein Keller, Dachgeschoss-Nutzung als Lagerraum
Balkon, Dachterrasse: ja, Balkon für die Wohneinheit im OG
Allgemein: Da das Objekt rein zur Vermietung gedacht ist, soll sich der Grundriss auf die wesentlichen Mindestanforderungen bzgl. Raumgröße, Fenster, Technik etc. beschränken. Aber natürlich soll das Haus dennoch modern und attraktiv sein, damit eine gute Vermietbarkeit erreicht wird.
Hausentwurf
Von wem stammt die Planung: GUs
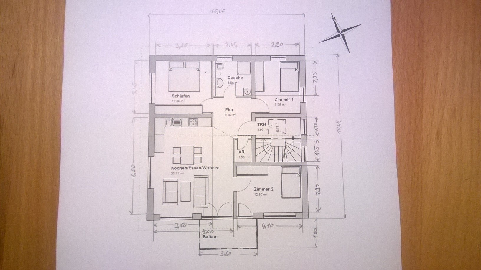
Was gefällt/gefällt nicht? Entwurf2 gefällt uns besser, da der Raum für Wohnen/Essen/Kochen eine gut nutzbare Größe einnimmt und in beiden Wohneinheiten einen Abstellraum gibt. Dafür gibt es kaum Stellmöglichkeiten im Flur für Garderobe o.ä. und nur eine Dusche im Bad. Bei Entwurf1 haben wir bedenken, dass der Raum für Wohnen/Essen/Kochen tatsächlich praktisch nutzbar ist.
Wie ist eure Meinung zu den Entwürfen? Was würdet ihr besser machen?
Entwurf1

Entwurf2

auch ich möchte nun unseren Grundriss hier zur Diskussion veröffentlichen. Es handelt sich um zwei Entwürfe unterschiedlicher GU, auf Basis eines Entwurfs von uns.
---------------------------------------------
Bebauungsplan/Einschränkungen
Größe des Grundstücks: 708 m²
Lage, Ausrichtung: Die Grundstückssituation habe ich bereits in diesem Thread vorgestellt.
https://www.hausbau-forum.de/threads/Grundstück-teilen-langes-schmales-Grundstück.15277/
Zwischenzeitlich haben sich folgende Prämissen ergeben: Es sollen erst mal ein Haus mit zwei Wohneinheit zur Vermietung gebaut werden. Das zweite Haus wollen wir zwar genehmigen lassen, aber erstmal nicht realisieren.
Angaben aus dem Bebauungsplan: Grundflächenzahl 0,4, Dachform: SD, FD, Dachneigung: 28-32 oder 0-5, Stellplätze: Landesbauordnung BW=1 KFZ-Stellplatz pro Wohneinheit und 2 Fahrradstellplätze pro Wohneinheit
Anforderungen der Bauherren
Stilrichtung, Dachform, Gebäudetyp: 1 Haus mit 2 getrennten Wohneinheiten zur Vermietung also 2-geschossige Bauweise ohne Dachschrägen, Satteldach
Keller, Geschosse: kein Keller, Dachgeschoss-Nutzung als Lagerraum
Balkon, Dachterrasse: ja, Balkon für die Wohneinheit im OG
Allgemein: Da das Objekt rein zur Vermietung gedacht ist, soll sich der Grundriss auf die wesentlichen Mindestanforderungen bzgl. Raumgröße, Fenster, Technik etc. beschränken. Aber natürlich soll das Haus dennoch modern und attraktiv sein, damit eine gute Vermietbarkeit erreicht wird.
Hausentwurf
Von wem stammt die Planung: GUs
Was gefällt/gefällt nicht? Entwurf2 gefällt uns besser, da der Raum für Wohnen/Essen/Kochen eine gut nutzbare Größe einnimmt und in beiden Wohneinheiten einen Abstellraum gibt. Dafür gibt es kaum Stellmöglichkeiten im Flur für Garderobe o.ä. und nur eine Dusche im Bad. Bei Entwurf1 haben wir bedenken, dass der Raum für Wohnen/Essen/Kochen tatsächlich praktisch nutzbar ist.
Wie ist eure Meinung zu den Entwürfen? Was würdet ihr besser machen?
Entwurf1
Entwurf2
In der zweiten Variante läßt sich aber wenigstens Kochen/Essen und Wohnen in dem Großraum realisieren. Wobei Wohnen mit Einschränkungen 😉
In der ersten Variante sehe ich da echt keine guten Möglichkeiten. Küche wird da 2x2 m sein, der Raum selber hat im Grunde 5x5 m .. finde ich z. B. für TV etc. als Entfernung schon zu weit, was anderes geht aber nicht. Idealer sind 25 qm mit ca. 4x6,2 m oder so aufteilbar.
Variante 2 müsste auch überarbeitet werden, da kaum Stellmöglichkeiten im Großraum sind (TV oder so)
Variante 2 OG hat wirklich keine echten Garderobenmöglichkeiten.
In der ersten Variante sehe ich da echt keine guten Möglichkeiten. Küche wird da 2x2 m sein, der Raum selber hat im Grunde 5x5 m .. finde ich z. B. für TV etc. als Entfernung schon zu weit, was anderes geht aber nicht. Idealer sind 25 qm mit ca. 4x6,2 m oder so aufteilbar.
Variante 2 müsste auch überarbeitet werden, da kaum Stellmöglichkeiten im Großraum sind (TV oder so)
Variante 2 OG hat wirklich keine echten Garderobenmöglichkeiten.
S
smartsurfer07.08.16 16:54Hallo Zusammen,
ja, die Zielgruppe wäre schon so ein Paar oder Paar mit 1 kl. Kind.
Natürlich würde ich, wenn ich für mich selbst bauen würde etwas anders bauen. Aber die ~30qm im Entwurf2 sind ja schon nicht so schlecht - ich habe mal in mir vorliegende Exposés geschaut und da ist der Raum auch nicht wirklich größer.

ja, die Zielgruppe wäre schon so ein Paar oder Paar mit 1 kl. Kind.
Natürlich würde ich, wenn ich für mich selbst bauen würde etwas anders bauen. Aber die ~30qm im Entwurf2 sind ja schon nicht so schlecht - ich habe mal in mir vorliegende Exposés geschaut und da ist der Raum auch nicht wirklich größer.
S
smartsurfer07.08.16 17:04Auf Basis des zweiten Entwurfs habe ich die Fenster und Wände im Wohnzimmer etwas verschoben und modifiziert, damit unten links jetzt ein Bereich für TV entsteht. Im Zimmer daneben habe ich die Tür entfernt damit ein wirklicher Platz für einen Schreibtisch entsteht. Und im AR würde es sich anbieten die Tür zu drehen, damit dieser auch besser genutzt werden kann (die Kollisionsgefahr mit der Haustüre besteht dann natürlich.)
Habt ihr weitere konkrete Verbesserungsvorschläge?


Habt ihr weitere konkrete Verbesserungsvorschläge?
Ähnliche Themen