M
Martin-8326.03.17 18:49Hallo zusammen,
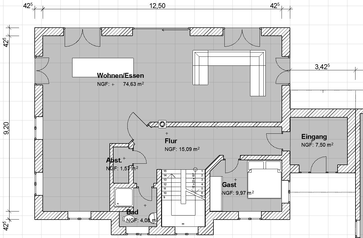
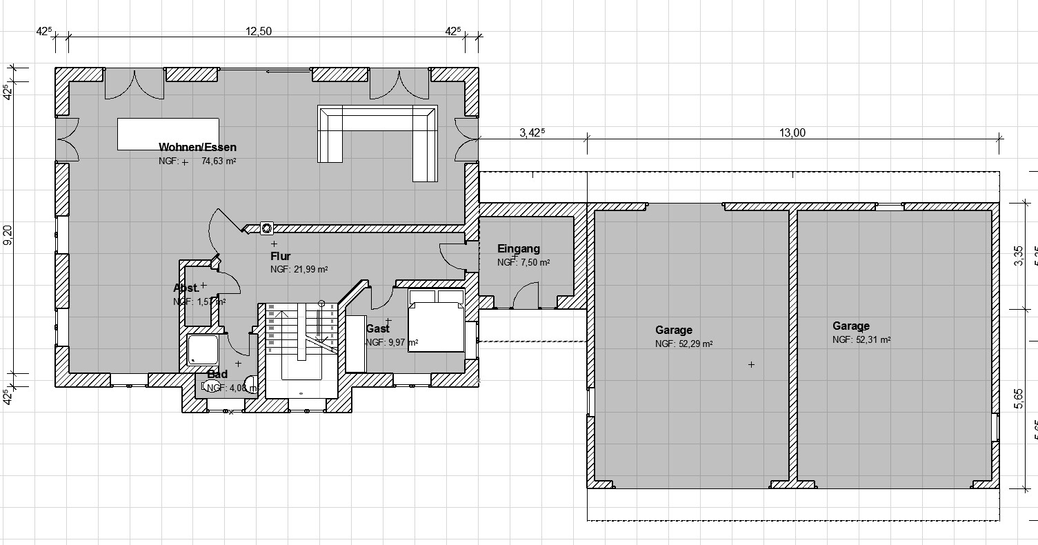
meine Freundin und ich stehen kurz vor dem Hausbau und beschäftigen uns schon länger mit dem Grundriss. Die Zeichnungen haben wir selber angefertigt, ohne bisher einen Architekten zu kontaktieren und aktuell sind wir bei Entwurf 2.6. Wir haben bereits fast alle Angebote für diesen Grundriss eingeholt und würden dann, wenn wir uns entschieden haben zu bauen, zum Architekten gehen. Bezüglich der Statik werden wir vermutlich für den großen Wohn-Essbereich einen Stahlträger benötigen, aber das soll dann der Architekt klären .
Uns geht es jetzt im speziellen mal um Meinungen anderer Leute, die viellicht da einfach mit anderen Augen darauf schauen als wir. Könnte sein, dass wir vor lauter Grundrissen andere Dinge übersehen.
Was wir hauptsächlich haben wollen ist einen großen Bereich für die Küche (links unten) und einen großen Ess- und Wohnzimmerbereich. Es soll im EG ein Gästezimmer rein und ein Bad mit Dusche. Im KG entsteht eine Einliegerwohnung und im OG wollen wir 2 Kinderzimmer (noch keins vorhanden) und benötigen ein großes Arbeitszimmer. Eine Ankleide wollte meine Freundin unbedingt haben und direkten Zugang zum Bad. Auf einen Wäscheschacht werden wir vermutlich verzichten, denn die würde dann in der Einliegerwohnung landen .
Über konstruktive Meinungen wären wir sehr froh . Auf dem Bild mit dem Grundstück fehlen noch ein paar Meter vor der Garage.
Vielen Dank und schöne Grüße
Martin
PS. zwischen Garage und Eingang fehlt noch eine Türe und die Fenster sind auch noch nicht an den endgültigen Positionen (haben wir erst mal wegen der Anzahl für das Angebot rein).





meine Freundin und ich stehen kurz vor dem Hausbau und beschäftigen uns schon länger mit dem Grundriss. Die Zeichnungen haben wir selber angefertigt, ohne bisher einen Architekten zu kontaktieren und aktuell sind wir bei Entwurf 2.6. Wir haben bereits fast alle Angebote für diesen Grundriss eingeholt und würden dann, wenn wir uns entschieden haben zu bauen, zum Architekten gehen. Bezüglich der Statik werden wir vermutlich für den großen Wohn-Essbereich einen Stahlträger benötigen, aber das soll dann der Architekt klären .
Uns geht es jetzt im speziellen mal um Meinungen anderer Leute, die viellicht da einfach mit anderen Augen darauf schauen als wir. Könnte sein, dass wir vor lauter Grundrissen andere Dinge übersehen.
Was wir hauptsächlich haben wollen ist einen großen Bereich für die Küche (links unten) und einen großen Ess- und Wohnzimmerbereich. Es soll im EG ein Gästezimmer rein und ein Bad mit Dusche. Im KG entsteht eine Einliegerwohnung und im OG wollen wir 2 Kinderzimmer (noch keins vorhanden) und benötigen ein großes Arbeitszimmer. Eine Ankleide wollte meine Freundin unbedingt haben und direkten Zugang zum Bad. Auf einen Wäscheschacht werden wir vermutlich verzichten, denn die würde dann in der Einliegerwohnung landen .
Über konstruktive Meinungen wären wir sehr froh . Auf dem Bild mit dem Grundstück fehlen noch ein paar Meter vor der Garage.
Vielen Dank und schöne Grüße
Martin
PS. zwischen Garage und Eingang fehlt noch eine Türe und die Fenster sind auch noch nicht an den endgültigen Positionen (haben wir erst mal wegen der Anzahl für das Angebot rein).
Hmm ... Hanglage? Wo kommt man in die Einliegerwohnung?
Warum 2 so riesige Garagen?
OG=Vollgeschoss oder Kniestock?
Dachform?
Warum ist das Haus soweit nach Südost gesetzt? Riesiger Vorgarten, kaum Garten nach hinten.
Ankleide ... da paßt ja nirgendwo ein 60 cm tiefer Schrank .. was wollt ihr da denn unterbringen?
Warum muss "Arbeiten" so groß werden?
Bad-Möblierung ... eine tolle Position für eine große Dusche sehe ich so auf Anhieb nicht?
Zu Beginn dieses Forumsbereichs gibt es eine Checkliste, die man sinnvollerweise ausgefüllt seinem eigenem Thread voranstellt
Warum 2 so riesige Garagen?
OG=Vollgeschoss oder Kniestock?
Dachform?
Warum ist das Haus soweit nach Südost gesetzt? Riesiger Vorgarten, kaum Garten nach hinten.
Ankleide ... da paßt ja nirgendwo ein 60 cm tiefer Schrank .. was wollt ihr da denn unterbringen?
Warum muss "Arbeiten" so groß werden?
Bad-Möblierung ... eine tolle Position für eine große Dusche sehe ich so auf Anhieb nicht?
Zu Beginn dieses Forumsbereichs gibt es eine Checkliste, die man sinnvollerweise ausgefüllt seinem eigenem Thread voranstellt
M
Martin-8326.03.17 19:54Sorry
Bebauungsplan/Einschränkungen
Größe des Grundstücks: 1068 m²
Hang: Ja, ca. 2 Meter abfallend
Grundflächenzahl
Geschossflächenzahl
Baufenster, Baulinie und -grenze
Randbebauung
Anzahl Stellplatz
Geschossigkeit: 2 Vollgeschosse und Keller mit Einliegerwohnung
Dachform: Walmdach 25 Grad
Stilrichtung
Ausrichtung
Maximale Höhen/Begrenzungen
weitere Vorgaben
Anforderungen der Bauherren
Stilrichtung, Dachform, Gebäudetyp
Keller, Geschosse
Anzahl der Personen, Alter: Ich und Freundin, 33 und 30, 2 Kinder geplant
Raumbedarf im EG, OG
Büro: Familiennutzung oder Homeoffice?: Homeoffice da EDVler und Lehrerin
Schlafgäste pro Jahr
offene oder geschlossene Architektur: Offen
konservativ oder moderne Bauweise: Modern
offene Küche, Kochinsel: L-Form, also Halbinsel
Anzahl Essplätze: 8
Kamin: Ja
Musik/Stereowand: Ja
Balkon, Dachterrasse: Nein, Ja
Garage, Carport: Ja, Nein
Nutzgarten, Treibhaus
weitere Wünsche/Besonderheiten/Tagesablauf, gern auch Begründungen, warum dieses oder das nicht sein soll
Hausentwurf
Von wem stammt die Planung: Meiner Freundin und mir
-Planer eines Bauunternehmens
-Architekt
-Do-it-Yourself
Was gefällt besonders? Warum?
Was gefällt nicht? Warum?
Preisschätzung lt Architekt/Planer:
Persönliches Preislimit fürs Haus, inkl Ausstattung:
favorisierte Heiztechnik: LWWP, evlt. Flächenkollektoren (vermutlich aber zu wenig Platz)
Wenn Ihr verzichten müsst, auf welche Details/Ausbauten
-könnt Ihr verzichten:
-könnt Ihr nicht verzichten:
Warum ist der Entwurf so geworden, wie er jetzt ist? ZB
Standardentwurf vom Planer?
Entsprechende/Welche Wünsche wurden vom Architekten umgesetzt?
Ein Gemisch aus vielen Beispielen aus div. Magazinen...
Was macht ihn in Euren Augen besonders gut oder schlecht?
Das wäre mal die Checkliste .
- Die Einliegerwohnung hat Ihren Eingang auf dem Grundriss auf der linken Seite in der Mitte.
- 2 Garagen weil aktuell 3 Autos, darunter ein Oldtimer, welcher auch mal den Winter über repariert bzw. gepflegt werden soll. Ein Cabrio wäre noch in Planung, dann wären wir bei 4 Autos. Außerdem sollen die Gartengeräte und Sachen wie ein Grill in die Garage mit rein. Auf die Garage und das Haus kommen knapp 30 kWp Photovoltaik.
- Keinen Kniestock, Walmdach mit 25 Grad Neigung
- Der Garten hinten ist ca. 8 Meter tief, wir können nicht weiter vor, da wir sonst die 5 Meter, in denen man nicht bebauen darf von der Straße weg, unterschreiten.
- Die Ankleide wird mit Trockenbauwänden so konstruiert, dass wir dort von Ikea die Pax-Teile einbauen können um eine Ankleide selbst zu kreieren. Wir können hier logischerweise noch vergrößern um ein Stück.
- Für Arbeiten benötigen wir viel Platz, da wir beide sehr viel von zuhause Arbeiten und durch die viele Papierarbeit von meiner Freundin viel Schreibtisch- und Schrankfläche benötigt wird.
- Beim Bad haben wir schon mal einen Entwurf bekommen, den habe ich aber noch nicht im Plan eingefügt. Es soll die Einsparung gerade aus durch als große Dusche verwendet werden. Leider hat sich der Plan nach der ersten Badplanung etwas geändert und stimmt somit jetzt erst mal nicht mehr ganz.
Hoffe ich konnte alles beantworten
Bebauungsplan/Einschränkungen
Größe des Grundstücks: 1068 m²
Hang: Ja, ca. 2 Meter abfallend
Grundflächenzahl
Geschossflächenzahl
Baufenster, Baulinie und -grenze
Randbebauung
Anzahl Stellplatz
Geschossigkeit: 2 Vollgeschosse und Keller mit Einliegerwohnung
Dachform: Walmdach 25 Grad
Stilrichtung
Ausrichtung
Maximale Höhen/Begrenzungen
weitere Vorgaben
Anforderungen der Bauherren
Stilrichtung, Dachform, Gebäudetyp
Keller, Geschosse
Anzahl der Personen, Alter: Ich und Freundin, 33 und 30, 2 Kinder geplant
Raumbedarf im EG, OG
Büro: Familiennutzung oder Homeoffice?: Homeoffice da EDVler und Lehrerin
Schlafgäste pro Jahr
offene oder geschlossene Architektur: Offen
konservativ oder moderne Bauweise: Modern
offene Küche, Kochinsel: L-Form, also Halbinsel
Anzahl Essplätze: 8
Kamin: Ja
Musik/Stereowand: Ja
Balkon, Dachterrasse: Nein, Ja
Garage, Carport: Ja, Nein
Nutzgarten, Treibhaus
weitere Wünsche/Besonderheiten/Tagesablauf, gern auch Begründungen, warum dieses oder das nicht sein soll
Hausentwurf
Von wem stammt die Planung: Meiner Freundin und mir
-Planer eines Bauunternehmens
-Architekt
-Do-it-Yourself
Was gefällt besonders? Warum?
Was gefällt nicht? Warum?
Preisschätzung lt Architekt/Planer:
Persönliches Preislimit fürs Haus, inkl Ausstattung:
favorisierte Heiztechnik: LWWP, evlt. Flächenkollektoren (vermutlich aber zu wenig Platz)
Wenn Ihr verzichten müsst, auf welche Details/Ausbauten
-könnt Ihr verzichten:
-könnt Ihr nicht verzichten:
Warum ist der Entwurf so geworden, wie er jetzt ist? ZB
Standardentwurf vom Planer?
Entsprechende/Welche Wünsche wurden vom Architekten umgesetzt?
Ein Gemisch aus vielen Beispielen aus div. Magazinen...
Was macht ihn in Euren Augen besonders gut oder schlecht?
Das wäre mal die Checkliste .
- Die Einliegerwohnung hat Ihren Eingang auf dem Grundriss auf der linken Seite in der Mitte.
- 2 Garagen weil aktuell 3 Autos, darunter ein Oldtimer, welcher auch mal den Winter über repariert bzw. gepflegt werden soll. Ein Cabrio wäre noch in Planung, dann wären wir bei 4 Autos. Außerdem sollen die Gartengeräte und Sachen wie ein Grill in die Garage mit rein. Auf die Garage und das Haus kommen knapp 30 kWp Photovoltaik.
- Keinen Kniestock, Walmdach mit 25 Grad Neigung
- Der Garten hinten ist ca. 8 Meter tief, wir können nicht weiter vor, da wir sonst die 5 Meter, in denen man nicht bebauen darf von der Straße weg, unterschreiten.
- Die Ankleide wird mit Trockenbauwänden so konstruiert, dass wir dort von Ikea die Pax-Teile einbauen können um eine Ankleide selbst zu kreieren. Wir können hier logischerweise noch vergrößern um ein Stück.
- Für Arbeiten benötigen wir viel Platz, da wir beide sehr viel von zuhause Arbeiten und durch die viele Papierarbeit von meiner Freundin viel Schreibtisch- und Schrankfläche benötigt wird.
- Beim Bad haben wir schon mal einen Entwurf bekommen, den habe ich aber noch nicht im Plan eingefügt. Es soll die Einsparung gerade aus durch als große Dusche verwendet werden. Leider hat sich der Plan nach der ersten Badplanung etwas geändert und stimmt somit jetzt erst mal nicht mehr ganz.
Hoffe ich konnte alles beantworten
hmm 22 qm Flur finde ich irgendwie grotesk. Die Platzierung auf dem Grundstück auch irgendwie unglücklich. Bad mit 19 qm auch eher eine Halle? Die Einliegerwohnung gefällt mir auch nicht wirklich, das Bad ist zu weit vom Schlafzimmer und daß man quer durchs Wohnzimmer muß wenn man nachts mal aufs Klo will, ist auch irgendwie blöd. Auch den Zugang zum Schlafzimmer übers WZ ... naja. Bin heute mal nur am Meckern
Hauptsache dem, der drin wohnen will, gefällts!
Hauptsache dem, der drin wohnen will, gefällts!
M
Martin-8326.03.17 21:20Wir haben schon diverse Änderungen vorgenommen, landen aber immer wieder bei diesem Entwurf. Was die Einliegerwohnung angeht, ist es schwer, das Bad zu versetzen, denn dann gibt es nur ein Lichtschachtfenster. So groß ist die Einliegerwohnung dann auch wieder nicht . Aktuell haben wir ca. den selben Weg und empfinden es als nicht so tragisch .
Für den Flur haben wir keine andere Idee. Wir hatten auch schon die Eingangstüre neben der Treppe, aber da wir in die Garage müssen, wird es immer ein großer Flur. Wir hatten mal einen Plan, da haben wir die Küche auf die andere Seite und man kam von der Garage direkt in die Küche rein, das war aber irgendwie blöd . Da wir ja noch nicht drin wohnen, wissen wir ja auch noch nicht, ob uns das gefällt in echt, deswegen dieser Thread .
Ja das Bad ist groß, könnte man aber mit einer leicht größeren ankleide etwas minimieren. Evtl werden wir hier die Waschmaschine rein stellen, dann wäre der Platz schon gut.
Für den Flur haben wir keine andere Idee. Wir hatten auch schon die Eingangstüre neben der Treppe, aber da wir in die Garage müssen, wird es immer ein großer Flur. Wir hatten mal einen Plan, da haben wir die Küche auf die andere Seite und man kam von der Garage direkt in die Küche rein, das war aber irgendwie blöd . Da wir ja noch nicht drin wohnen, wissen wir ja auch noch nicht, ob uns das gefällt in echt, deswegen dieser Thread .
Ja das Bad ist groß, könnte man aber mit einer leicht größeren ankleide etwas minimieren. Evtl werden wir hier die Waschmaschine rein stellen, dann wäre der Platz schon gut.
Ich denke, nach Eingang der Angebote ist der Plan Geschichte. Für genehmigungsfähig halte ich ihn mit einer grenznahen Vierfachgarage von 117 qm überbauter Fläche ohnehin eher nicht.
Etwas besseres, als daß das so nicht klappt, kann Euch aber m.E. gar nicht passieren: hier scheinen mir die Dimensionen ausnahmslos nicht zu passen. Zwischen Haupt- und Nebengebäude nicht, zwischen den Räumen nicht, und in den Räumen nicht.
Würde man das so bauen, wäre viel Geld für viel Platz mit wenig Raumgenuß ausgegeben.
Interessant fände ich, die Vorgehensweise zu erfahren, wie Ihr diesen Entwurf so entwickelt habt.
https://www.instagram.com/11antgmxde/
https://www.linkedin.com/company/bauen-jetzt/
Etwas besseres, als daß das so nicht klappt, kann Euch aber m.E. gar nicht passieren: hier scheinen mir die Dimensionen ausnahmslos nicht zu passen. Zwischen Haupt- und Nebengebäude nicht, zwischen den Räumen nicht, und in den Räumen nicht.
Würde man das so bauen, wäre viel Geld für viel Platz mit wenig Raumgenuß ausgegeben.
Interessant fände ich, die Vorgehensweise zu erfahren, wie Ihr diesen Entwurf so entwickelt habt.
https://www.instagram.com/11antgmxde/
https://www.linkedin.com/company/bauen-jetzt/
Ähnliche Themen