Optimierung Grundriss freistehendes Einfamilienhaus 155qm

4,80 Stern(e) 12 Votes
Zuletzt aktualisiert 26.11.2025
Sie befinden sich auf der Seite 7 der Diskussion zum Thema: Optimierung Grundriss freistehendes Einfamilienhaus 155qm
>> Zum 1. Beitrag <<

J

JoschNeubau24

Ok. War so nicht im Plan.
Die 45cm sind aber zu wenig, um gemütlich sitzen zu können. Davon abgesehen muss der Esstisch dann fast komplett an die Wand geschoben werden (wenn wir auf dem Foto).
Das Beispiel auf dem Foto ist nicht nutzbar for den Esstisch.
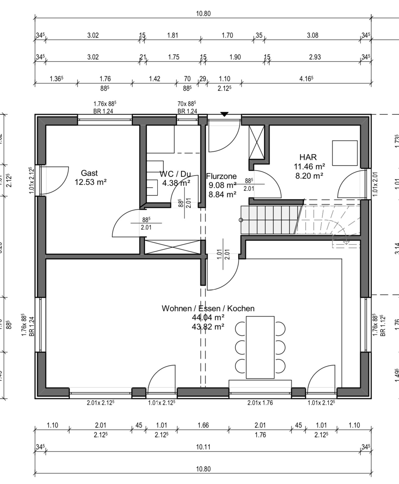
Hier ist der Grundriss im EG mit eingezeichneten Esstisch. Wenn er längst steht sollte man gut „einsteigen“ können.
Grundriss eines Hauses: Offener Wohn-/Ess-/Kochbereich, Gästezimmer, HAR, Flur, WC/Du, Treppe.
 
A

Arauki11

Das ist zu ungenau. Wie lang ist der Tisch bei den sechs eingezeichneten Gästen und wie weit genau steht er dann weg von Außenkante des 30cm in den Raum ragenden Sitzfensterbrett, damit man daran halbwegs gut sitzen könnte, ohne den Tisch zu schieben. Wieviel Platz bleibt dann auf der anderen Seite z.B. bei geöffnetem Kühl-/Küchenschank? Das ist dann der einzige Zugang zur Küche !
 
J

JoschNeubau24

Das ist zu ungenau. Wie lang ist der Tisch bei den sechs eingezeichneten Gästen und wie weit genau steht er dann weg von Außenkante des 30cm in den Raum ragenden Sitzfensterbrett, damit man daran halbwegs gut sitzen könnte, ohne den Tisch zu schieben. Wieviel Platz bleibt dann auf der anderen Seite z.B. bei geöffnetem Kühl-/Küchenschank? Das ist dann der einzige Zugang zur Küche !
Habe die Maße nicht mehr genau im Kopf, müsste aber 1,80 m Länge haben. Wenn das Sitzfenster 30 cm rausstehet und der Abstand zum Tisch 10cm beträgt kommen wir auf 2,20 m. Der Raum hat 4,75 m und somit bleiben bei geöffneten Kühlschrank ca. 1,35 m. Ist jetzt alles grob überschlagen, aber sollte tatsächlich passen.
 
A

Arauki11

Abstand zum Tisch 10cm
Echt, das reicht ?
Ich sehe gerade, dass die Küche 60cm tiefer ist.
Nochmal, ich will Dir das nicht ausreden, komfortabel ist es jedoch keinesfalls und ich verstene nicht, dass man sich für so etwas die ohnehin enge Kiste noch mehr verschmälert und das beziehe ich genauso aufs Budget hinsichtlich einer Kontrollierte-Wohnraumlüftung im Neubau Kfw40.
Ich würde mir auch die anderen Hinweise hier ganz genau und wirklich selbstkritisch durchdenken BEVOR ich loslege.
Vor allen Dingen würde ich mit meiner Frau klären, was die nächsten 3o Jahre mehrmals täglich Stosslüften bedeutet.
Oben schreibst Du wg. Tisch "müsste", danach dann aber "passt". Das würde ich ganz genau prüfen.
 
11ant

11ant

Ich bin hier wohl überflüssig:
I. seit Beitrag #16 gebe ich dem TE den wesentlichen Hinweis des begründeten Verdachtes auf eine bereits ab der Wurzel erhebliche Missplanung, auf den er noch nicht auch nur für fünf Pfennig eingegangen wäre;
II. in Beitrag #17 weist @Arauki11 auf den Fehler des Weglassens einer Kontrollierte-Wohnraumlüftung hin (ebenfalls ein wesentlicher Hinweis, auf den ich einsteige) und macht in einer Nebenbemerkung auf das Streichpotential des Sitzfensters hin, was ich auch aufnehme.

Die nachfolgende Diskussion würdigt auf drei Seiten schwerpunktmäßig das (Pseudo)sitzfenster und begründet immerhin dessen Fehlgeplantheit; der Widerspruch aus (durch was eigentlich trotzdem erfüllter?) Effizienzhausstufe 40 und dem nicht dazu passenden Lüftungskonzept wird daneben beinahe wie eine Dekoration behandelt. Meine Rückfrage ...
Weshalb gehst Du eigentlich nur auf dem hinter dem Komma liegenden Teil meiner Entwurfskritik ein?
... bezieht sich selbstredend nicht auf das gleichnamige Satzzeichen, sondern auf das Komma im mathematischen Sinne, nämlich die vollständige Mißwürdigung meines Hinweises in der Hauptsache (wobei es - was hoffentlich zumindest die Mitleser verstanden haben - nicht um eine höflichkeitshalber mir gegebene Antwort geht, sondern im Sinne der Sache die Befassung des TE mit dem Inhalt des Hinweises zum Wohl der noch heilbaren Planung).

Es braucht auch nur ein HO-Platz.
Offenbar nein, siehe Eröffnungsbeitrag:
Ich Arbeit Vollzeit ohne Home Office und meine Frau aktuell nicht, plant aber in 1-2 Jahren wieder Teilzeit im Home Office zu arbeiten.
Also Er in Vollzeit schon jetzt, und perspektivisch schon sehr bald beide, ohne daß Er und Sie sich dabei gegenseitig stören sollten. Von drei Stichworten (Datenschutz, Diskretion, Konzentration) ist m.E. jedes einzelne Grund genug, nicht zu zweit als Heimarbeitende um die Ressource Gästezimmer zu konkurrieren.
Ob man da bequem genug an der Tischecke vorbeikommt, um beim Essen den Eiswind hinter der gläsernen Rückenlehne heimelig zu finden, erscheint mir mit Verlaub nachrangig.

1. wenn das Raumkonzept wesentliche Bedarfe unbefriedigt läßt, wird das nicht dadurch besser, Wände- und Fensterlagen schonmal auf die Feinwaage zu legen (oder gar in einem nächsten Thread die Deckenspots zu layouten).
2. ließe man bei einem Auto aktuellen Baujahres die elektrischen Fensterheber weg, könnte man immerhin womöglich antiquarisch noch Nachrüst-Aufsatz-Kurbelmotörchen auftreiben oder notfalls damit leben, an der Parkhauseinfahrtsschranke nach Großvaters Art sportlich selbst zu kurbeln. Bei der Kontrollierte-Wohnraumlüftung in einem Neubau ist das etwas ander(e)s und ibs. bei einem EH40 Neubau Unfug erster Ordnung.
Und wenn es nur dezentral ist, weil der Hausbau an sich eigentlich schon zu teuer fürs Einkommen ist.
Nein, dezentral ist eine Nachrüstlösung, und das gewiß bald gereute Weglassen der absolute Platz 1 in der Kategorie "dümmste Möglichkeiten, 13k einsparen zu wollen".

3. eine Ehefrau und ihr Must-have auf einer bemerkenswert kurzen Wunschliste in allen Ehren und ein in Konfektionsgröße 32/34 schöngerechnetes Katzenfenster mit Zusatznutzenalibi in allen Ehren (und kosten tut es zu wenig, um es als kriegsentscheidendes Detail zu betrachten) - aber ob ihr das wirklich die erträumte Wohnqualitätsfreude bereiten wird, wage ich zu bezweifeln.

Mein Eindruck ist: der TE hat - die Götter wissen, wie lange - gebastelt und betrachtet nun mit Wohlgefallen sein Meisterwerk. Seine Erwartung (und Vorstellung von hilfreichen Kommentaren) ist etwa, wir würden wie der Chefkoch in der Frosta-Werbung loben: "Delicious ! - but just a little more Kurkuma". Bestärkt durch allerlei Angebote, denen zu folge er sich das Meisterwerk auch leisten könne (und eine Kontrollierte-Wohnraumlüftung irrtümlich als Kostenposition ihm noch unbekannten Nutzens betrachtend) blendet er jeden "Ereigniskarte: gehe zurück auf Los" Kommentar mit Durchzugsohren aus. Als dankenswerten Optimierungsvorschlag würde er vermutlich nur so etwas wie "setze den Lichtschalter in der Ankleide auf die andere Seite" empfinden. Schade, mit derlei kann ich nicht dienen.
 
tomtom79

tomtom79

Ich bin hier wohl überflüssig:
I. seit Beitrag #16 gebe ich dem TE den wesentlichen Hinweis des begründeten Verdachtes auf eine bereits ab der Wurzel erhebliche Missplanung, auf den er noch nicht auch nur für fünf Pfennig eingegangen wäre;
Vielleicht solltest einfach mal Tacheles schreiben und nicht immer so hochmütig, herablassend und um den heißen Brei herum labern. Deine Sätze sind oft ewig lang ohne Mehrwert.
 
Zuletzt aktualisiert 26.11.2025
Im Forum Grundrissplanung / Grundstücksplanung gibt es 2536 Themen mit insgesamt 88016 Beiträgen


Ähnliche Themen zu Optimierung Grundriss freistehendes Einfamilienhaus 155qm
Nr.ErgebnisBeiträge
1Neubau Poroton T7 MW 36,5 ohne Kontrollierte-Wohnraumlüftung - Seite 245
2offene Küche: Abluft oder Umluft bei Kontrollierte-Wohnraumlüftung & KfW55 40
3Neubau mit Fußbodenheizung, Wohnraumlüftung und Klimaanlage 21
4Kontrollierte Wohnraumlüftung - Ja oder Nein?! 31
5Kontrollierte-Wohnraumlüftung oder Regel Air - Erfahrungen? 14
6Gebrauchtes Haus sanieren oder Neubau 13
7Neubau ohne Solar und ohne Wärmepumpe möglich? - Seite 320
8Dezentrale Kontrollierte-Wohnraumlüftung so teuer? 38
9Kontrollierte-Wohnraumlüftung mit Wärmerückgewinnung --- ein Verwirrspiel? 12
10Ablufthaube bei Kontrollierte-Wohnraumlüftung: Eure Erfahrungen? - Seite 230
11Doch eine Kontrollierte-Wohnraumlüftung einbauen? - Seite 354
12Welches Heizkonzept für Neubau ohne Lüftungsanlage? - Seite 321
13Abluft Vs. Umluft bei eine Kontrollierte-Wohnraumlüftung 32
14Offene Küche ohne Außenabzug empfehlenswert? was meint ihr? 24
15Kontrollierte-Wohnraumlüftung - Auf was alles bei der Anschaffung achten? - Seite 430
16Kontrollierte-Wohnraumlüftung Einfamilienhaus - Planung und Auslegung Helios Easyplan 34
17Sicherheitsschaltung für Dunstabzugshaube bei Kontrollierte-Wohnraumlüftung - Seite 219
18Kalkputz und Kalkfarbe oder doch was anderes - Neubau 24
19Kühlung in die Kontrollierte-Wohnraumlüftung integrieren oder doch Klima separat? - Seite 214
20Neubau Einfamilienhaus ohne Keller - Notwendiges Tipps Empfehlungen 12

Oben