ᐅ Neubau Einfamilienhaus ca. 174 m² Grundriss Architekt
Erstellt am: 22.11.19 07:51
Hallo zusammen,
nachdem ich bereits lange hier mitlesen darf, wird unser eigenes Projekt nun konkreter. Wir haben ein Grundstück zugesichert und mit verschiedenen GU/GÜ und einem Architekten gesprochen.
Der Architektenentwurf gefällt meiner Frau und mir bisher am besten. Es handelt sich noch um eine Entwurfsplanung, die uns aber schon sehr "passend" erscheint.
Daher würde ich mich über Feedback freuen. Welche Knackpunkte sehen wir nicht? Was kann klüger gelöst werden?
Ich hoffe alles benötigte ist dabei. Falls nicht liefere ich gerne nach.
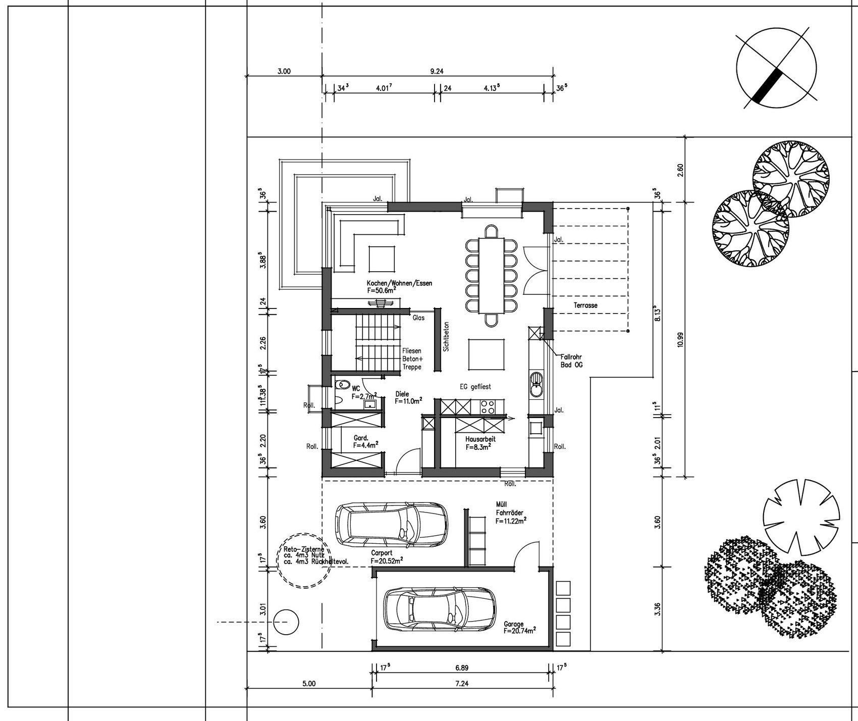
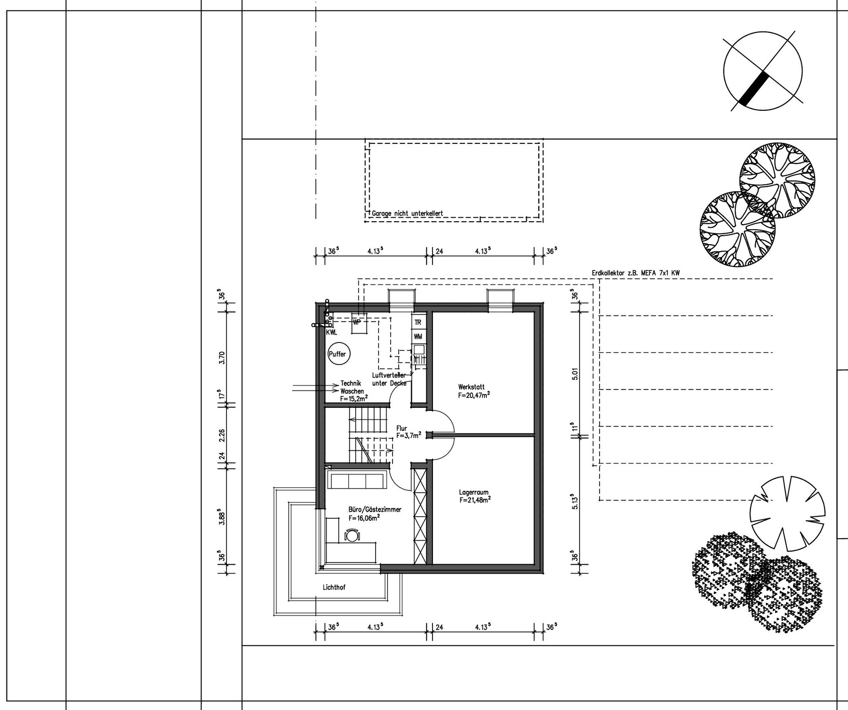
Der Keller ist leider noch die alte Version, dieser ist nun auch gespiegelt, die Lichtschächte sind leicht verändert. Das ist aber am EG Plan zu sehen.
Freue mich sehr über euer Feedback!
Vielen Dank! mini
Bebauungsplan/Einschränkungen
Größe des Grundstücks: 494 m2; ca. 20,5 m breit Straßenseite, 24,2 m tief
Hang: nein
Grundflächenzahl: 0,4
Geschossflächenzahl: nicht festgelegt
Baufenster: 3 Meter zu Straße, 4 Meter zu Bestand hinten
Randbebauung: nein
Anzahl Stellplatz: 1,5 pro Wohneinheit
Geschossigkeit: Max. 2
Dachform: Satteldach
Stilrichtung: klassisch-modern?
Ausrichtung: First Richtung Nord-West
Maximale Höhen/Begrenzungen: Traufhöhe 6,5 m, Firsthöhe 9,5 m
Weitere Vorgaben: Diverse, Pflanzgebot, Versickerung etc, aber heutzutage eigentlich nichts besonderes
Anforderungen der Bauherren
Stilrichtung, Dachform, Gebäudetyp: klassisch modern, Satteldach
Keller, Geschosse: 2 Vollgeschosse + Keller
Anzahl der Personen, Alter: 2 Erw. Mitte 30, 2 Kinder, 2 Jahre
Raumbedarf im EG: Garderobe, Gäste-WC, Hauswirtschaftsraum, Küche, Wohn- Esszimmer
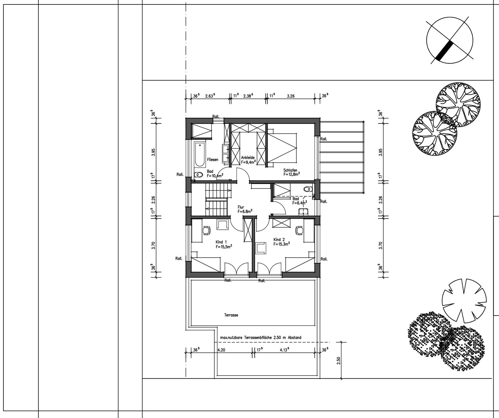
Raumbedarf im OG: 2 Kinderzimmer, Eltern, Ankleiden, Bad Kinder, Bad Eltern
Büro: Familiennutzung + perspektivisch Homeoffice vielleicht alle 2 Wochen 1 Tag
Schlafgäste pro Jahr: wenige; 3?
Offene oder geschlossene Architektur: offen
Konservativ oder moderne Bauweise: Wir sehen uns als modern an, möchten aber einen klassischen Baukörper von außen. Also innen eher offen und modern und außen eine klassische Form
Offene Küche, Kochinsel: Küche offen, mit Arbeitsinsel
Anzahl Essplätze: üblich 4-6, zu Feiern mindestens 12-16 Personen
Kamin: nein
Musik/Stereowand: Medienwand für Fernseher+ Bücher, Stereo nein
Balkon, Dachterrasse: Balkon für die Kinder
Garage, Carport: Garage + Carport
Nutzgarten, Treibhaus: ggf später
Weitere Wünsche/Besonderheiten/Tagesablauf, gern auch Begründungen, warum dieses oder das nicht sein soll:
-Kinderbad
-Balkon auf Garage/Carport für beide Kinder (wenn Sie älter sind für Freunde etc.)
-Hauswirtschaftsraum an Küche in EG
-Überdachter Eingang
-grosszügiger offener Wohn- und Essbereich
-offenes Dachgeschoss
Hausentwurf
Von wem stammt die Planung:
-Architekt
Was gefällt besonders?
Offen und grosszügig, alle unsere Wünsche konnten berücksichtigt werden. Wir wollten den Grundkörper so einfach als möglich halten und auf Gauben, Erker und Rücksprünge verzichten.
Was gefällt nicht? Warum?
Geht es ggf. doch etwas kleiner? Wir müssen unser Budget nicht ausreizen ...
Preisschätzung lt Architekt/Planer: ca. 600.000
Persönliches Preislimit fürs Haus, inkl Ausstattung: -
Favorisierte Heiztechnik: Wärmepumpe Grabenkollektor, ggf. ergänzt um Photovoltaik. Ggf. Schwenk auf normale Luft-Wasser-Wärmepumpe?
Wenn Ihr verzichten müsst, auf welche Details/Ausbauten
-Schwierig, hier haben wir eigentlich nichts, was wir streichen würden
Warum ist der Entwurf so geworden, wie er jetzt ist? ZB
Wir haben uns lange Gedanken zu Grundrissen gemacht, viele Häuser online und von Freunden/Familie angesehen. Alles was wir gut fanden haben wir aufgeschrieben, was wir nicht wollten auch. Wichtig war uns z. B. ein klarer Entwurf, ohne Erker, Rücksprünge o. ä.
Damit sind wir zu Bauunternehmen und dem Architekten. Ergebnis ist dieser Plan.
Was ist die wichtigste/grundlegende Frage zum Grundriss in 130 Zeichen zusammengefasst?
Gibt es im Grundriss Optimierungen die wir übersehen?
Genug Fenster/Licht allgemein?




nachdem ich bereits lange hier mitlesen darf, wird unser eigenes Projekt nun konkreter. Wir haben ein Grundstück zugesichert und mit verschiedenen GU/GÜ und einem Architekten gesprochen.
Der Architektenentwurf gefällt meiner Frau und mir bisher am besten. Es handelt sich noch um eine Entwurfsplanung, die uns aber schon sehr "passend" erscheint.
Daher würde ich mich über Feedback freuen. Welche Knackpunkte sehen wir nicht? Was kann klüger gelöst werden?
Ich hoffe alles benötigte ist dabei. Falls nicht liefere ich gerne nach.
Der Keller ist leider noch die alte Version, dieser ist nun auch gespiegelt, die Lichtschächte sind leicht verändert. Das ist aber am EG Plan zu sehen.
Freue mich sehr über euer Feedback!
Vielen Dank! mini
Bebauungsplan/Einschränkungen
Größe des Grundstücks: 494 m2; ca. 20,5 m breit Straßenseite, 24,2 m tief
Hang: nein
Grundflächenzahl: 0,4
Geschossflächenzahl: nicht festgelegt
Baufenster: 3 Meter zu Straße, 4 Meter zu Bestand hinten
Randbebauung: nein
Anzahl Stellplatz: 1,5 pro Wohneinheit
Geschossigkeit: Max. 2
Dachform: Satteldach
Stilrichtung: klassisch-modern?
Ausrichtung: First Richtung Nord-West
Maximale Höhen/Begrenzungen: Traufhöhe 6,5 m, Firsthöhe 9,5 m
Weitere Vorgaben: Diverse, Pflanzgebot, Versickerung etc, aber heutzutage eigentlich nichts besonderes
Anforderungen der Bauherren
Stilrichtung, Dachform, Gebäudetyp: klassisch modern, Satteldach
Keller, Geschosse: 2 Vollgeschosse + Keller
Anzahl der Personen, Alter: 2 Erw. Mitte 30, 2 Kinder, 2 Jahre
Raumbedarf im EG: Garderobe, Gäste-WC, Hauswirtschaftsraum, Küche, Wohn- Esszimmer
Raumbedarf im OG: 2 Kinderzimmer, Eltern, Ankleiden, Bad Kinder, Bad Eltern
Büro: Familiennutzung + perspektivisch Homeoffice vielleicht alle 2 Wochen 1 Tag
Schlafgäste pro Jahr: wenige; 3?
Offene oder geschlossene Architektur: offen
Konservativ oder moderne Bauweise: Wir sehen uns als modern an, möchten aber einen klassischen Baukörper von außen. Also innen eher offen und modern und außen eine klassische Form
Offene Küche, Kochinsel: Küche offen, mit Arbeitsinsel
Anzahl Essplätze: üblich 4-6, zu Feiern mindestens 12-16 Personen
Kamin: nein
Musik/Stereowand: Medienwand für Fernseher+ Bücher, Stereo nein
Balkon, Dachterrasse: Balkon für die Kinder
Garage, Carport: Garage + Carport
Nutzgarten, Treibhaus: ggf später
Weitere Wünsche/Besonderheiten/Tagesablauf, gern auch Begründungen, warum dieses oder das nicht sein soll:
-Kinderbad
-Balkon auf Garage/Carport für beide Kinder (wenn Sie älter sind für Freunde etc.)
-Hauswirtschaftsraum an Küche in EG
-Überdachter Eingang
-grosszügiger offener Wohn- und Essbereich
-offenes Dachgeschoss
Hausentwurf
Von wem stammt die Planung:
-Architekt
Was gefällt besonders?
Offen und grosszügig, alle unsere Wünsche konnten berücksichtigt werden. Wir wollten den Grundkörper so einfach als möglich halten und auf Gauben, Erker und Rücksprünge verzichten.
Was gefällt nicht? Warum?
Geht es ggf. doch etwas kleiner? Wir müssen unser Budget nicht ausreizen ...
Preisschätzung lt Architekt/Planer: ca. 600.000
Persönliches Preislimit fürs Haus, inkl Ausstattung: -
Favorisierte Heiztechnik: Wärmepumpe Grabenkollektor, ggf. ergänzt um Photovoltaik. Ggf. Schwenk auf normale Luft-Wasser-Wärmepumpe?
Wenn Ihr verzichten müsst, auf welche Details/Ausbauten
-Schwierig, hier haben wir eigentlich nichts, was wir streichen würden
Warum ist der Entwurf so geworden, wie er jetzt ist? ZB
Wir haben uns lange Gedanken zu Grundrissen gemacht, viele Häuser online und von Freunden/Familie angesehen. Alles was wir gut fanden haben wir aufgeschrieben, was wir nicht wollten auch. Wichtig war uns z. B. ein klarer Entwurf, ohne Erker, Rücksprünge o. ä.
Damit sind wir zu Bauunternehmen und dem Architekten. Ergebnis ist dieser Plan.
Was ist die wichtigste/grundlegende Frage zum Grundriss in 130 Zeichen zusammengefasst?
Gibt es im Grundriss Optimierungen die wir übersehen?
Genug Fenster/Licht allgemein?
H
hampshire22.11.19 08:30Am Entwurf gefällt mir Vieles wie beispielsweise die versetzte Garagen-Carport-Terrassenkombination oder die klare OG Aufteilung.
Der Hausarbeitsraum ist etwas eng. Das Bügelbrett wird vermutlich öfter im Wohnbereich aufgestellt werden. Die Küche scheint im Verhältnis zum Essbereich recht klein. Bei derart wenig Übernachtungsgästen würde ich eine Not-Schlafstätte im Keller einrichten oder Gasthof und Taxi spendieren, statt einen Raum zu bauen. Der Platz ist effektiver für „Hausarbeit“ und Küche nutzbar.
Der Hausarbeitsraum ist etwas eng. Das Bügelbrett wird vermutlich öfter im Wohnbereich aufgestellt werden. Die Küche scheint im Verhältnis zum Essbereich recht klein. Bei derart wenig Übernachtungsgästen würde ich eine Not-Schlafstätte im Keller einrichten oder Gasthof und Taxi spendieren, statt einen Raum zu bauen. Der Platz ist effektiver für „Hausarbeit“ und Küche nutzbar.
W
Wugler197822.11.19 08:53Mir gefällt der Grundriss auch gut. Einzig das Wohnzimmer wäre mir in der Tiefe mit 3,88 zu klein. Besonders im Vergleich zur Größe des Hauses.
Die Ausrichtung der Zimmer im OG finde ich nicht optimal. Wenn ich das richtig sehe ist ein Kinderzimmer NO/N und eines an der Westseite. Besonders ersteres sieht nie die Sonne. Das würde ich ändern.
Die Ausrichtung der Zimmer im OG finde ich nicht optimal. Wenn ich das richtig sehe ist ein Kinderzimmer NO/N und eines an der Westseite. Besonders ersteres sieht nie die Sonne. Das würde ich ändern.
hampshire schrieb:
Bei derart wenig Übernachtungsgästen würde ich eine Not-Schlafstätte im Keller einrichten oder Gasthof und Taxi spendieren, statt einen Raum zu bauen.Hallo hampshire, vielen Dank für das Feedback! Ja, zum Bügeln wird es wohl nicht reichen. Aber z. B. schmutziges Geschirr wegräumen wenn Besuch da ist und vorbereiten / lagern.Büro im Keller ist gleichzeitig das Gästezimmer. Welchen Raum würdest Du streichen wollen?
Wugler1978 schrieb:
Einzig das Wohnzimmer wäre mir in der Tiefe mit 3,88 zu klein. Besonders im Vergleich zur Größe des Hauses.Auch Dir vielen Dank Wugler1978! Ich habe auch die Sorge, dass es später nicht so grosszügig wirkt wie wir uns das vorstellen. Leider ist die Hausbreite mit dem Grundstück schon maximal ausgenutzt. Ansonsten müssten wir Garage/Carport ändern.Hast Du eine Idee wie das gelöst werden könnte?
Wugler1978 schrieb:
Die Ausrichtung der Zimmer im OG finde ich nicht optimal. Wenn ich das richtig sehe ist ein Kinderzimmer NO/N und eines an der Westseite. Besonders ersteres sieht nie die Sonne. Das würde ich ändern.Die 1. Version war gespiegelt. Dann war aber Garage/Carport im Süden und damit zu wenig Licht im EG. Außerdem dachten wir die Kinder können so im Sommer Abends noch Licht auf der eigenen Terrasse haben. Bei anderer Ausrichtung hätte das Haus m. E. relativ früh verschattet.Würdest Du die Ausrichtung anders doch besser finden?
Danke! mini
Ähnliche Themen