Hausbau - Ratgeber
Bauherrenhilfe
- Bauherrenhilfe vor Vertragsabschluss
-- Warum einen unabhängigen Baubetreuer?
-- Vertragsgrundlagen
-- Bausumme
-- Zahlungsplan zur Kostenkontrolle
-- Pflichten des Bauherren vor Vertragsabschluss
-- Unterlagen beim Hausbau vor Vertragsabschluss
- Bauherrenhilfe nach Vertragsabschluss
-- Bauantrag bei Behörden
-- Bau-Genehmigungsverfahren bei Baubehörden
-- Bauspezifische Versicherungen
-- Bauzeitenplan
-- Baubeginn - die Letzten Pflichten der Bauherrschaft
- Bauherrenhilfe während der Bauzeit
- Gewährleistungsansprüche
- Bauabnahme
Baufinanzierung
- Baufinanzierung - Allgemeine Fragen
- Kreditarten
- Kredit-Konditionen
- Bausparen
- Staatliche Förderungen
- Verkehrswert
- Haushaltsrechnung und Bonität
Hausbau Planung
- Haustypen
- Hausbau Vorbereitungsarbeiten
- Das Baugrundstück
- Baugrund beim Hausbau
- Baurecht
- Gebäudeschutz
- Erdarbeiten und Wasserhaltung
- Stützmauern
- Einfriedung
- Untergeschoss
- Kanalisation
- Tragende Elemente
- Nichttragende Innenwände
- Fundation / Fundament
- Deckenkonstruktionen
- Dächer
- Kaminanlagen
- Treppen Rampen Leitern
- Dachbeläge und Spengler
- Fenster
- Sonnen und Wetterschutz
- Aussenputze
- Einbauten, Küchen, Türen
- Bodenbeläge und Unterlagsböden
- Parkett
- Gips, Wand, Decke
Haustechnik und Energie
- Heiztechnik
- Lüftung und Klimatechnik
- Sanitärtechnik
- Elektrotechnik
- Erneuerbare Energie
Whirlpools / Jacuzzi
Hausbau Magazin
- Baufinanzierung trotz Krise?
- Das Blockhaus
- Moderne Dämmstoffe im Vergleich
- Erker Vor- und Nachteile
- Glasflächen beim Hausbau
- Günstig ein Haus Bauen
- Mediterraner Hausbaustil
- Mehrgenerationenhaus
- Moderne Architektur
- Gartengestaltung leicht gemacht
- Traditioneller Ziegelbau
- Villa als höchster Traum
- Im Eigenheim Ruhestand geniessen
- Altbau sanieren
- Kauf einer Holzgarage
- Immobilienmakler
- Arbeitshandschuhe für den Winter
- Zuhause verschönern
- Outdoor-Plissees
- Schlafzimmer planen
- Terrassenüberdachung
- Wohngebäudeversicherung
- Zaunarten und Eigenschaften
- Hauseingang gestalten
- Der perfekte Grundriss
- Sparsamer heizen im Altbau
- Einfamilienhaus smart finanzieren
- Planung einer PV-Anlage
- Neues Haus
- Immobilienfinanzierung
- Installation einer Photovoltaikanlage
- Asbest erkennen und entfernen
- Gartenpflege im Frühling – worauf achten
- Sauna im Fokus - Wellness zuhause
- Erfolgreich vermieten
- Die perfekte Winterbekleidung
- Das Niedrigenergiehaus
- Der April und seine Stürme
- Architektonische Vielfalt
- Ökologisch und nachhaltig bauen
- Das perfekte Schlafzimmer
- Nachhaltige Energieversorgung
- Zukunftsorientiert bauen
- Nachhaltigkeit beim Hausbau
- Tiny Houses
- Wärmepumpen als nachhaltige Heizvariante
- Maßgeschneiderten Kleiderschrank
- Der richtige Baukredit
- Ratgeber für erfolgreichen Hausbau
- Haus als Altersvorsorge
Do-it-yourself Anleitungen
- Verlegeanleitung für Bodenbeläge und Parkett
- Bodenbeläge und Parkett reinigen und pflegen
- Malerarbeiten am Haus
- Garten Tipps
- Umzug und Reinigung

ᐅ Neubau Einfamilienhaus ca. 174 m² Grundriss Architekt

Erstellt am: 22.11.19 07:51
M
mini_g!
kaho67424.11.19 15:38
mini_g! schrieb:

Finde es gut noch mal einen Schritt zurück zu machen ...
Ja, oder noch mal bissl wild rumzuspringen und alle guten Vorsätze über Bord zu werfen:


Grundriss eines Hauses: Terrasse, Wohn- und Essbereich, Küche, HWR, Entree, WC, Carport.


Grundrissplan eines Hauses mit Küche, Bad, Wohnzimmer und Garage


Zweistöckiges Haus mit offener Doppelgarage; rote und blaue Autos parken, Balkon.


Zweistöckiges, graues Haus mit Terrasse, großen Glasfenstern und Eingangstür
kbt0924.11.19 15:52
Den Plan wiederum finde ich gut @kaho674 und, je öfter ich ihn ansehe, desto besser
kaho67424.11.19 22:00
kbt09 schrieb:

Den Plan wiederum finde ich gut ...
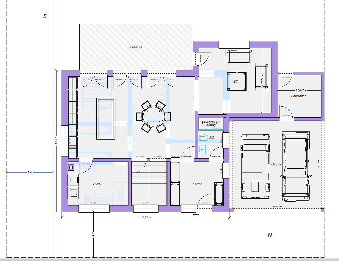
Ein paar cm kann man noch sparen, wenn man das Carport überbaut. Terrasse allerdings nur für 1 Kind zugänglich. Dafür sitzt man geschützter Richtung Garten.


Grundriss eines Hauses mit Terrasse, Esszimmer, Küche, HWR, Entrée, Treppe, Wohnzimmer, WC, Carport.


Grundriss eines Hauses mit mehreren Zimmern, Treppe, Küche, Bad und Terrasse


Zweistöckiges Haus mit Carport; roter und blauer Wagen stehen in offenen Garagenboxen.


Zweistöckiges Haus mit grauer Fassade, schwarzem Dach, Balkon links und Terrasse vorne.
H
hampshire
24.11.19 22:07
@kaho674 : Respekt und Hochachtung immer wieder für Deine tollen Vorschläge und Ausführungen!
Lustig finde ich die rote pontiacähnliche Prollkiste mit Lufthutze auf der Motorhaube und stealth Reifen sowie den blauen zum Riesen mutierten Toyota Tercel mit Volvo 360 Scheinwerfern.
Bitte auch davon mehr
kbt0924.11.19 23:09
In der zweiten Variante wird aber in aller Regel Dachterrasse=Balkon gar nicht möglich sein, weil dort auch 3 m Randabstand einzuhalten sind.
kaho67425.11.19 06:45
kbt09 schrieb:

In der zweiten Variante wird aber in aller Regel Dachterrasse=Balkon gar nicht möglich sein, weil dort auch 3 m Randabstand einzuhalten sind.
In dieser Variante ist Dachterrasse wie gesagt nur für das planobere Kinderzimmer Richtung Garten geplant.
hampshire schrieb:

Lustig finde ich die rote pontiacähnliche Prollkiste mit Lufthutze auf der Motorhaube und stealth Reifen sowie den blauen zum Riesen mutierten Toyota Tercel mit Volvo 360 Scheinwerfern.
Bitte auch davon mehr
Die zwei Superflitzer sind allerdings alles, was das Programm zu bieten hat. Eventuell könnte ich noch die Farbe ändern...
gartendachterrasse