ᐅ Neubau Einfamilienhaus 2 Vollgeschosse mit Doppelgarage 150qm
Erstellt am: 14.03.19 19:19
W
Wugler1978
Hallo,
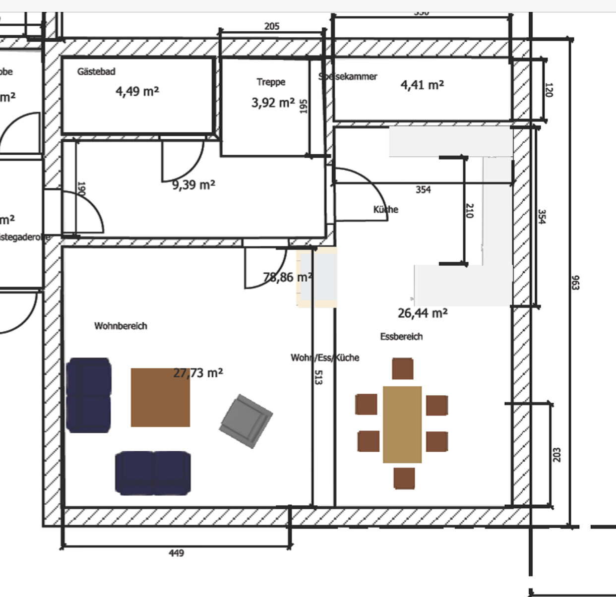
wir planen dieses Jahr ein Einfamilienhaus mit Keller und einer Doppelgarage zu erstellen.
Die Garage wird noch einen halben Meter länger. Somit wird die Garderobe auch 0,5m länger als hier gezeigt.
Was haltet ihr von dem Entwurf?
Vielen Dank für eure Anregungen.
Bebauungsplan/Einschränkungen
Größe des Grundstücks 568
Hang nein
Grundflächenzahl 0,4
Geschossflächenzahl
Randbebauung nein
Anzahl Stellplatz 2
Geschossigkeit 2
Dachform Zeltdach + Garage Walmdach
Stilrichtung modern
Ausrichtung Süd
Anforderungen der Bauherren
Stilrichtung, Dachform, Gebäudetyp
Keller, Geschosse Keller + 2 Vollgeschosse
Anzahl der Personen, Alter 4 Personen (2 Kinder 6+10)
Raumbedarf im EG, OG
Büro: Familiennutzung oder Homeoffice? Büro im Keller
Schlafgäste pro Jahr
offene oder geschlossene Architektur offen
konservativ oder moderne Bauweise modern
offene Küche, Kochinsel ja
Anzahl Essplätze 6
Kamin ja
Musik/Stereowand TV an der Wand hängend
Balkon, Dachterrasse nein
Garage, Carport Doppelgarage
Nutzgarten, Treibhaus nein
Hausentwurf
Von wem stammt die Planung:
-Planer eines Bauunternehmens
Was gefällt besonders? Warum? großer Wohnbereich
Preisschätzung lt Architekt/Planer: 400.000€
Persönliches Preislimit fürs Haus, inkl Ausstattung: 450.000
favorisierte Heiztechnik: Brennwerttherme


wir planen dieses Jahr ein Einfamilienhaus mit Keller und einer Doppelgarage zu erstellen.
Die Garage wird noch einen halben Meter länger. Somit wird die Garderobe auch 0,5m länger als hier gezeigt.
Was haltet ihr von dem Entwurf?
Vielen Dank für eure Anregungen.
Bebauungsplan/Einschränkungen
Größe des Grundstücks 568
Hang nein
Grundflächenzahl 0,4
Geschossflächenzahl
Randbebauung nein
Anzahl Stellplatz 2
Geschossigkeit 2
Dachform Zeltdach + Garage Walmdach
Stilrichtung modern
Ausrichtung Süd
Anforderungen der Bauherren
Stilrichtung, Dachform, Gebäudetyp
Keller, Geschosse Keller + 2 Vollgeschosse
Anzahl der Personen, Alter 4 Personen (2 Kinder 6+10)
Raumbedarf im EG, OG
Büro: Familiennutzung oder Homeoffice? Büro im Keller
Schlafgäste pro Jahr
offene oder geschlossene Architektur offen
konservativ oder moderne Bauweise modern
offene Küche, Kochinsel ja
Anzahl Essplätze 6
Kamin ja
Musik/Stereowand TV an der Wand hängend
Balkon, Dachterrasse nein
Garage, Carport Doppelgarage
Nutzgarten, Treibhaus nein
Hausentwurf
Von wem stammt die Planung:
-Planer eines Bauunternehmens
Was gefällt besonders? Warum? großer Wohnbereich
Preisschätzung lt Architekt/Planer: 400.000€
Persönliches Preislimit fürs Haus, inkl Ausstattung: 450.000
favorisierte Heiztechnik: Brennwerttherme
W
Wugler197815.03.19 11:17haydee schrieb:
Was ist in dem doch recht teuren Keller?Werkstatt, Kleines Gästezimmer, Hobbyraum (Fitness), Abstellkammer, Wäschekammer
WilhelmRo schrieb:
Hier noch mein Konstruktiver Beitrag
Speise sollte 1,40m sein:

und wo ist jetzt das Problem? Ich hab dir sogar zum Spaß mal mein 3,2m Sofa eingezeichnet. Auch ist der Esstisch von der Größe her "Obere Kante". Wenn du online schaust und du willst drei Stühle pro Seite, dann wird dir auch oft 1,9m statt 2,1m vorgeschlagen.
Auch finde ich die "reinragende" Küche nicht schlimm. Man nimmt Fußbodenheizung und fließt den "Allraum" ganz und gleich. Wird irgendwo Gemütlichkeit vermisst, leg schöne Teppiche hin.
mfgDanke für deinen konstruktiven Vorschlag. Gefällt mir gut. Werden jetzt Zeitnah mit dem Küchenstudio und Architekten reden.
WilhelmRo schrieb:
Mit SH3D hat man alles, man darf sich nur nicht selber bescheißen. Ich messe mein Sofa daheim aus - 3m - trage bei "Breite (cm)" 300 ein und fertig!
Oder ich schau online was für Maße dieses oder jenes Küchenteil hat - übernehme ich dann so in SH3D - passt.WilhelmRo schrieb:
Wow ja tatsächlich! Das Sofa ist jetzt 3m lang. Was man alles mit einem PC ohne Kugelschreiber machen kann, erstaunlich, und morgen fliegen noch Leute zum Mond, unvorstellbar.
*Ironie off*Ist ja schön, dass zumindest Du es raus hast.
Ich selbst zeichne auch mit Programm, dass aber seit 16 Jahren. Und ich kann 3 von 4 Metern auch ohne Maße unterscheiden.
Deshalb ist es dennoch hilfreicher für andere, zu Bleistift und Karopapier zu raten, wo man eben erkennt, dass der Anwender nicht viel mit unbemassten wänden etwas anfangen kann.
Wenn dann noch die Wände pauschal falsch in der Dicke angewandt werden, der User in keinster Weise sich mit Putzdicke, Montage oder seinen Möbelmassen etc beschäftigt, hat man später das Desaster.
Insofern sollte man nicht immer von sich selbst auf andere schließen, sondern emphatisch und individuell Ratschläge erteilen.
W
WilhelmRo15.03.19 11:34haydee schrieb:
Küchentüre andersrum anschlagenDas Thema habe ich bei mir selber auch. Was genau ich mach, weiß ich noch nicht. Aber ich gönne vielleicht sogar dem Postboten einen Blick in die Küche (solange das Wohnzimmer nicht einsehbar ist, in dem ich in Jogger und Feinripp fernsehe) und verbaue gar keiner Türe, oder ne Schiebetür.Warum? Haben derzeit in unserer Mietwohnung auch die Wohnzimmertür ausgehängt. Brauchen wir nicht
mfg
W
WilhelmRo15.03.19 11:39ypg schrieb:
Insofern sollte man nicht immer von sich selbst auf andere schließen, sondern emphatisch und individuell Ratschläge erteilen.Das passt ja 1A zu:ypg schrieb:
Ich sagte es schon: mir SH3D hast Du keine Maß-Kontrolle!
Ich bin raus Der Unterschied von dir zu mir? Ich habe mir beschissene 10 min Zeit genommen um 95% Maßstabsgetreu dem TE sein Wohn/Ess/Küchen Bereich zu zeichnen, statt 10 min dafür zu verwenden, wie schlecht SH3D ist + warum ich nicht von mir auf andere schließen soll...
Zurück zu deinen Aussagen: Dann hilf doch KONKRET!!! und nicht
ypg schrieb:
Ich bin raus mfg
W
Wugler197815.03.19 11:52Ich glaube den Thread können wir jetzt hier schließen. Ich bedanke mich bei allen, die konstruktive Kritik und Verbesserungsvorschläge geliefert haben. Wir werden diese berücksichtigen. Besonders die Tiefe der der Speis und die Breite des Schlafzimmers werden nochmals durchdacht werden.
Bei Aussagen wie diesen wird der Thread jetzt aber abdriften. Da werde ich jetzt auch nicht weiter darauf eingehen...
ypg schrieb:
Wenn dann noch die Wände pauschal falsch in der Dicke angewandt werden, der User in keinster Weise sich mit Putzdicke, Montage oder seinen Möbelmassen etc beschäftigt, hat man später das Desaster.
Bei Aussagen wie diesen wird der Thread jetzt aber abdriften. Da werde ich jetzt auch nicht weiter darauf eingehen...
Ähnliche Themen