Meinungen zu unserem Grundriss Entwurf erwünscht

4,20 Stern(e) 5 Votes
Zuletzt aktualisiert 19.11.2025
Sie befinden sich auf der Seite 5 der Diskussion zum Thema: Meinungen zu unserem Grundriss Entwurf erwünscht
>> Zum 1. Beitrag <<

KingSong

KingSong

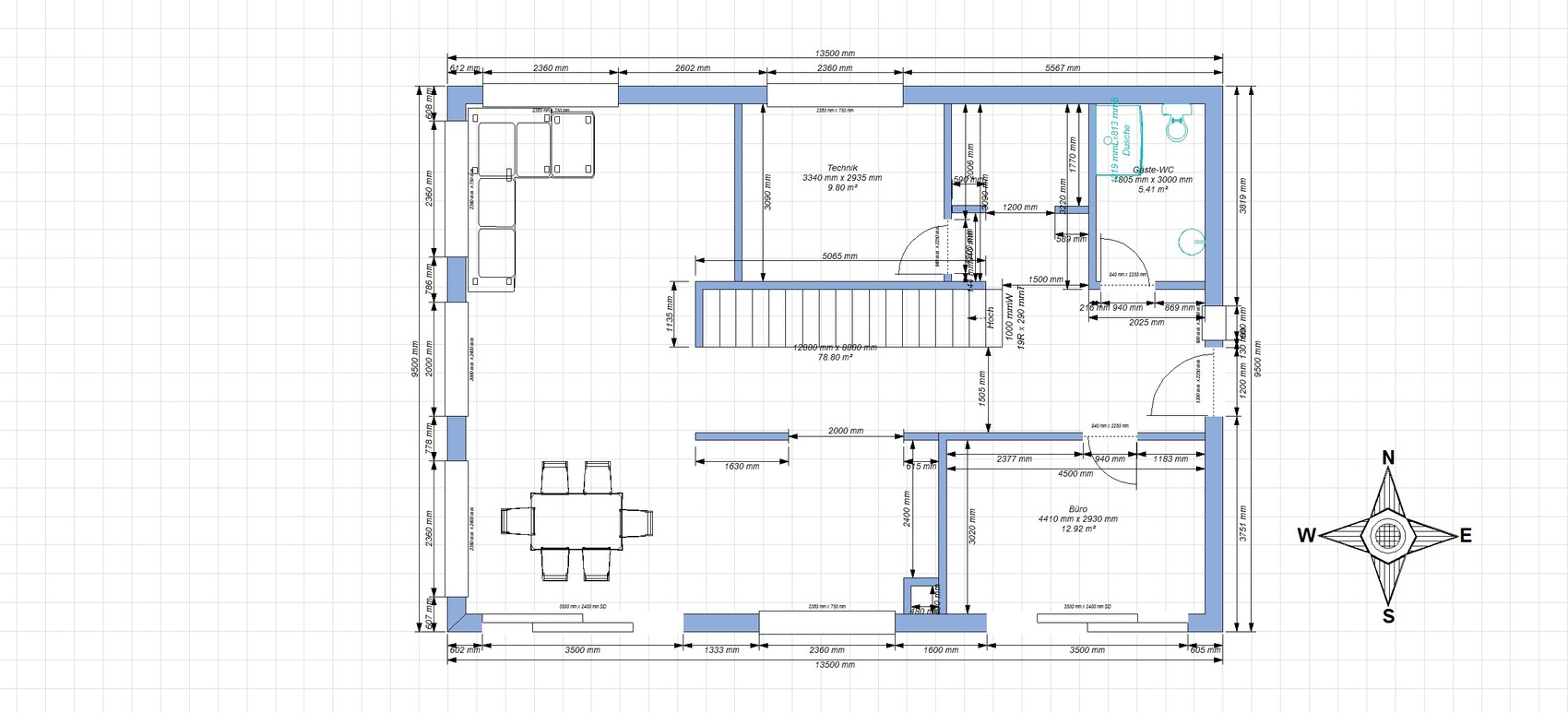
Hier nun das Ergebnis der Nachtschicht.....mit den Fenstern hab ich wie immer ein Problem, Fenster sind wohl nicht so das meine.....und mein Programm gibt das nicht her was ich mir an Fenstern vorstelle. Die Treppe habe ich angepasst auf Steigung 17 und Auftritt 290, das sollte eine sehr bequeme Treppe werden. Küche ist noch nicht eingezeichnet aber im Kopf schon realisiert.

Die offene Seite der Treppe soll verglast werden.

Grundriss eines Bürogebäudes: Räume wie Büro, Technik, Gäste-WC; Maßangaben in mm.


Grundriss eines Hauses mit Zimmern Bad, Ankleide, Schlafzimmer und Kinderzimmer; Maße sichtbar.


Zweistöckiges modernes Haus mit grauer Fassade, große Glasfronten, Innenblick auf Esszimmer und Flur


3D-Render eines modernen grauen zweigeschossigen Hauses mit großen Fenstern auf grünem Rasen.


3D-Render eines modernen grauen Hauses mit schmalen Rechteckfenstern vor grünem Hang.


Zweistöckiges graues Haus mit großen Fenstern und Glastür auf grünem Rasen, blauer Himmel.
 
KingSong

KingSong

Meine Planung ist auch gewollt nicht vollständig weil es eben nur eine Skizze für den Architekt wird und mit dem Architekt gemeinsam das Haus ausgearbeitet wird. Meine Planung ist nur meine elektronische "Papierskizze", damit ich mir besser vorstellen kann wie es werden soll und eventuell wird.
 
Nordlys

Nordlys

Also, ich fand den ersten auch nicht so übel. So wie jetzt neu geht es auch. Nur Schlafzimmer und Bad musst Du austauschen, wie sollen sonst die Rohre runtergehen? Durchs WZ sicher ungern. Man sitzt unten und hört, wenn oben einer sich erleichtert? Doof.
 
KingSong

KingSong

Ja da hast Du recht @Nordlys Schlafzimmer und Bad sollte ich tauschen, dann wird es halt nichts mit Sonnenaufgang im Schlafzimmer.....naja irgendeinen Tod muss man wohl sterben.
 
Nordlys

Nordlys

Im Winter geht sie kaum auf, im Sommer früh um drei, wenn man noch schläft. Also, wird überbewertet.
 
KingSong

KingSong

Das Problem mit dem Bad und Schlafzimmer tauschen ist halt auch das auf der Ost-Seite die Straße entlang läuft und dort auch andere Häuser stehen, somit weiß ich nicht wie ich die Fenster im Ost-Bad gestalten soll ohne das man zu viel Einblicke gewährt. Auf der West Seite ist unverbauter Blick auf Feld und Wald. Hie die Flurkarte dazu, es ist 495/10

Flurkarte mit Grundstücksgrenzen und Gebäuden in Bayern, Parzellenübersicht
 
Zuletzt aktualisiert 19.11.2025
Im Forum Grundrissplanung / Grundstücksplanung gibt es 2535 Themen mit insgesamt 87977 Beiträgen


Ähnliche Themen zu Meinungen zu unserem Grundriss Entwurf erwünscht
Nr.ErgebnisBeiträge
1Fenster Brüstungshöhe 130 im Schlafzimmer / Arbeitszimmer? - Seite 493
2Grundrissfrage, Treppe, Fenster, Ausrichtung 12
3Grundriss Stadtvilla / Anordnung Fenster, Feedback erwünscht - Seite 216
4OG Stadtville optimieren. Fenster Bodentief - Seite 13104
5Grundriss Schlafzimmer, Ankleide und Bad en Suite 36
6Grundrissfrage: Tausch gerader Treppe durch L-Treppe 31
7Einfamilienhaus vom Architekt 150m² Verbesserungsvorschläge und Ideen gesucht 75
8Grundriss-Planung Einfamilienhaus mit rund 150 m² - Seite 46581
9Ankleide/Schlafzimmer Problem - Grundrissdiskussion 25
10Schlafzimmer auf der Südseite zu warm? 18
11Heizung Kinderzimmer,schlafzimmer und Bad 14
12 Küchenplanung mit tiefen Fenster - Seite 643
13Grundriss Einfamilienhaus geplant, Fenster gefallen uns - Seite 343
14Gestaltung Schlafzimmer 35
15Größe vom Schlafzimmer und Kinderzimmer - Seite 338
16Treppe Grundriss Planung, Auftritt und Unterzug - Seite 221
17Schlafzimmer warm im Haus mit Lüftung inkl. Wärmerückgewinnung 24
18Kontrollierte-Wohnraumlüftung und trotzdem nachts Fenster auf 71
19Hausplan von Architekt 2 Geschosse mit Keller 18
20Umbau mit Architekt: Anregungen zum Haus-Grundriss gewünscht 21

Oben