ᐅ Meinungen zu unserem Grundriss Entwurf erwünscht
Erstellt am: 25.03.17 10:46
Bebauungsplan/Einschränkungen keine, Nachbarbebauung
Größe des Grundstücks 882m²
Hang leichter Südhang, auf 34m Länge ca. 1,5m abfallend Richtung Süden
Grundflächenzahl nein
Geschossflächenzahl nein
Baufenster, Baulinie und –grenze nein
Randbebauung ja, Garage
Anzahl Stellplatz 2
Geschossigkeit 2 Vollgeschosse, EG lichte Höhe 2,70m, OG lichte Höhe 2,50m
Dachform Satteldach 28°
Stilrichtung
Ausrichtung Ost / West
Maximale Höhen/Begrenzungen
weitere Vorgaben
Anforderungen der Bauherren
Stilrichtung, Dachform, Gebäudetyp Satteldach, moderne Jurahaus Interpretation
Keller, Geschosse Bodenplatte, 2 Vollgeschosse
Anzahl der Personen, Alter 4 Personen,M 42,W 35,W 4,W 3
Raumbedarf im EG, OG EG 100m², OG 100m²
Büro: Familiennutzung oder Homeoffice? beides
Schlafgäste pro Jahr 1-2
offene oder geschlossene Architektur offen
konservativ oder moderne Bauweise modern
offene Küche, Kochinsel offene Küche mit halber Insel
Anzahl Essplätze 8
Kamin nein
Musik/Stereowand ja
Balkon, Dachterrasse nein
Garage, Carport Großraumgarage 7m x 8m
Nutzgarten, Treibhaus Nutzgarten
weitere Wünsche/Besonderheiten/Tagesablauf, gern auch Begründungen, warum dieses oder das nicht sein soll:
Schlafzimmer Nord/Ost weil kühlster Raum im Haus und wir gerne mit Sonnenaufgang aufstehen, Kinderzimmer möglichst getrennt vom Schlafzimmer, flächenbündige Innentüren mit 5mm Aluzarge, EG Parkett, OG Vinyl-/Designboden, Badezimmer Fliesen in Holzoptik, der offene Raum im Flur OG soll eine Mischung aus kleinem 2ten Wohnzimmer und Spielbereich der Kinder werden, Zirkulationspumpe, Kontrollierte-Wohnraumlüftung mit Feuchterückgewinnung, Fenster in Holz/Aluminium
Hausentwurf
Von wem stammt die Planung: meine 5 Cent
-Planer eines Bauunternehmens
-Architekt
-Do-it-Yourself
Was gefällt besonders? Warum? Die West Seite, weil wir einen unverbauten Blick Richtung Westen haben über Felder und Wald
Was gefällt nicht? Warum? Bis jetzt nichts
Preisschätzung lt Architekt/Planer: ca. 430.000.-€ ohne Baunebenkosten inkl. Bodenplatte
Persönliches Preislimit fürs Haus, inkl Ausstattung: 480.000.-€ inkl. Baunebenkosten (ohne Küche oder Garten)
favorisierte Heiztechnik: Luft-Wasser-Wärmepumpe oder Erdwärme mit Körben
Wenn Ihr verzichten müsst,auf welche Details/Ausbauten
-könnt Ihr verzichten: Raffstores, Holz/Aluminium Fenster
-könnt Ihr nicht verzichten: auf die flächenbündigen Türen
Warum ist der Entwurf so geworden, wie er jetzt ist?
Entstand aus diversen unzähligen vorherigen Entwürfen, ist mit der Zeit gereift






Größe des Grundstücks 882m²
Hang leichter Südhang, auf 34m Länge ca. 1,5m abfallend Richtung Süden
Grundflächenzahl nein
Geschossflächenzahl nein
Baufenster, Baulinie und –grenze nein
Randbebauung ja, Garage
Anzahl Stellplatz 2
Geschossigkeit 2 Vollgeschosse, EG lichte Höhe 2,70m, OG lichte Höhe 2,50m
Dachform Satteldach 28°
Stilrichtung
Ausrichtung Ost / West
Maximale Höhen/Begrenzungen
weitere Vorgaben
Anforderungen der Bauherren
Stilrichtung, Dachform, Gebäudetyp Satteldach, moderne Jurahaus Interpretation
Keller, Geschosse Bodenplatte, 2 Vollgeschosse
Anzahl der Personen, Alter 4 Personen,M 42,W 35,W 4,W 3
Raumbedarf im EG, OG EG 100m², OG 100m²
Büro: Familiennutzung oder Homeoffice? beides
Schlafgäste pro Jahr 1-2
offene oder geschlossene Architektur offen
konservativ oder moderne Bauweise modern
offene Küche, Kochinsel offene Küche mit halber Insel
Anzahl Essplätze 8
Kamin nein
Musik/Stereowand ja
Balkon, Dachterrasse nein
Garage, Carport Großraumgarage 7m x 8m
Nutzgarten, Treibhaus Nutzgarten
weitere Wünsche/Besonderheiten/Tagesablauf, gern auch Begründungen, warum dieses oder das nicht sein soll:
Schlafzimmer Nord/Ost weil kühlster Raum im Haus und wir gerne mit Sonnenaufgang aufstehen, Kinderzimmer möglichst getrennt vom Schlafzimmer, flächenbündige Innentüren mit 5mm Aluzarge, EG Parkett, OG Vinyl-/Designboden, Badezimmer Fliesen in Holzoptik, der offene Raum im Flur OG soll eine Mischung aus kleinem 2ten Wohnzimmer und Spielbereich der Kinder werden, Zirkulationspumpe, Kontrollierte-Wohnraumlüftung mit Feuchterückgewinnung, Fenster in Holz/Aluminium
Hausentwurf
Von wem stammt die Planung: meine 5 Cent
-Planer eines Bauunternehmens
-Architekt
-Do-it-Yourself
Was gefällt besonders? Warum? Die West Seite, weil wir einen unverbauten Blick Richtung Westen haben über Felder und Wald
Was gefällt nicht? Warum? Bis jetzt nichts
Preisschätzung lt Architekt/Planer: ca. 430.000.-€ ohne Baunebenkosten inkl. Bodenplatte
Persönliches Preislimit fürs Haus, inkl Ausstattung: 480.000.-€ inkl. Baunebenkosten (ohne Küche oder Garten)
favorisierte Heiztechnik: Luft-Wasser-Wärmepumpe oder Erdwärme mit Körben
Wenn Ihr verzichten müsst,auf welche Details/Ausbauten
-könnt Ihr verzichten: Raffstores, Holz/Aluminium Fenster
-könnt Ihr nicht verzichten: auf die flächenbündigen Türen
Warum ist der Entwurf so geworden, wie er jetzt ist?
Entstand aus diversen unzähligen vorherigen Entwürfen, ist mit der Zeit gereift
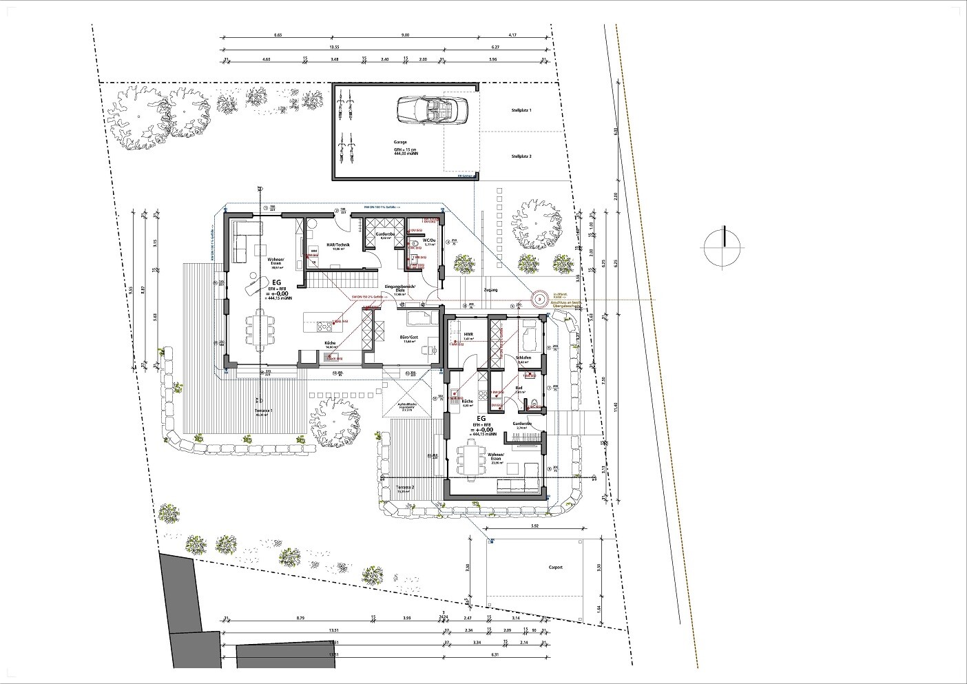
Im EG (im Wohnzimmer nahe dem Technikraum) sieht mir etwas nach Schornstein aus, das ich im OG nicht wiederfinde, und auch in der Firstlinie steht (?)
Die einläufige Treppe 90° vom Eingang weggeknickt und dann noch am Antritt "verschenkt" gefällt mir gar nicht.
Der Flur oben ist da wo man ihn benutzt überall knauserig, um sich dann da wo nichts davon abzweigt großzügig aufzuweiten. Aber vermutlich kriegst du hier gleich für den Hauswirtschaftsraum am Schlafzimmer weit mehr geschumpfen ...
Bist Du sicher, daß die Garagendimensionen grenznah so genehmigungsfähig sind ?
zeig doch mal Ausschnitte aus den "unzähligen" Zwischenschritten des Reifungsprozesses
https://www.instagram.com/11antgmxde/
https://www.linkedin.com/company/bauen-jetzt/
Die einläufige Treppe 90° vom Eingang weggeknickt und dann noch am Antritt "verschenkt" gefällt mir gar nicht.
Der Flur oben ist da wo man ihn benutzt überall knauserig, um sich dann da wo nichts davon abzweigt großzügig aufzuweiten. Aber vermutlich kriegst du hier gleich für den Hauswirtschaftsraum am Schlafzimmer weit mehr geschumpfen ...
Bist Du sicher, daß die Garagendimensionen grenznah so genehmigungsfähig sind ?
zeig doch mal Ausschnitte aus den "unzähligen" Zwischenschritten des Reifungsprozesses
https://www.instagram.com/11antgmxde/
https://www.linkedin.com/company/bauen-jetzt/
@11ant , also du meinst bestimmt diese Ecke in der Küche unterhalb des Technikraums. Das hab ich nur eingezeichnet (soll im Trockenbau geschehen) um zu visualisieren wie die Küche flächenbündig eingebaut wird.
Was meinst Du bei der Treppe mit "im Antritt verschenkt"? Und was spricht gegen den Hauswirtschaftsraum direkt am Schlafzimmer?
@kbt09 Die Maße kann man doch wunderbar erkennen wenn man die Bilder größer macht? Und den Dielenfreiraum habe ich oben in meinem Text erklärt....so viel dazu das den eh niemand liest....
Was meinst Du bei der Treppe mit "im Antritt verschenkt"? Und was spricht gegen den Hauswirtschaftsraum direkt am Schlafzimmer?
@kbt09 Die Maße kann man doch wunderbar erkennen wenn man die Bilder größer macht? Und den Dielenfreiraum habe ich oben in meinem Text erklärt....so viel dazu das den eh niemand liest....
@KingSong ... doch ich lese es normalerweise, bevorzuge Text mit mehreren Punkten aber in strukturierter Form .. je Punkt ein Absatz .
Ok, wenn ich die Grafiken herunterlade, dann kann man da schon etwas erkennen, leider aber nicht die genauen Maße der Treppe, da einfach zu viele ungenaue Maße rundum sind. Auf jeden Fall sind es wohl so 380 bis 390 cm .. da würde mich bei Fertigraumhöhe von 270 = ca. Geschosshöhe gut 300 cm mal das geplante Steigungsmaß der Treppe interessieren.
Ich bin überhaupt kein Fan dieser flachen langgestreckten Fenster und am allerwenigsten in einem Kinderzimmer mit Brüstungshöhe um die 130 cm. Die Kinder müssen erst mal einige Jahre alt werden, bis sie da aus dem Fenster schauen können.
So ein Spielflur wird meiner Meinung nach überschätzt, besser, die Zimmer wären gleich etwas größer.
Hauswirtschaftsraum hinter dem Elternschlafzimmer ist nicht unbedingt förderlich, wenn dann später die Teenager ihre Wäsche auch zum Sammelpunkt bringen sollen. Dieser Hauswirtschaftsraum ist übrigens recht groß, was soll da alles passieren?
Ok, wenn ich die Grafiken herunterlade, dann kann man da schon etwas erkennen, leider aber nicht die genauen Maße der Treppe, da einfach zu viele ungenaue Maße rundum sind. Auf jeden Fall sind es wohl so 380 bis 390 cm .. da würde mich bei Fertigraumhöhe von 270 = ca. Geschosshöhe gut 300 cm mal das geplante Steigungsmaß der Treppe interessieren.
Ich bin überhaupt kein Fan dieser flachen langgestreckten Fenster und am allerwenigsten in einem Kinderzimmer mit Brüstungshöhe um die 130 cm. Die Kinder müssen erst mal einige Jahre alt werden, bis sie da aus dem Fenster schauen können.
So ein Spielflur wird meiner Meinung nach überschätzt, besser, die Zimmer wären gleich etwas größer.
Hauswirtschaftsraum hinter dem Elternschlafzimmer ist nicht unbedingt förderlich, wenn dann später die Teenager ihre Wäsche auch zum Sammelpunkt bringen sollen. Dieser Hauswirtschaftsraum ist übrigens recht groß, was soll da alles passieren?
Ich meinte, daß zusätzlich zum "Abbiegenmüssen" statt herrschaftlich geraden Schrittes auf den Antritt zuzugehen (was für mich ein wesentliches Motiv für eine einläufige Treppe wäre) auch noch die Wand an die sie sich fast mehr drängt als schmiegt erst kurz davor um etwa 60 cm in Richtung Esszimmer springt.
Am Austritt steht man dann wieder unvermittelt direkt zwischen den Zimmertüren und vor einer Wand, und diese Enge wird dann ebenso unvermittelt weit zum Fensterschlund hin aufgerissen. Ich bin zwar kein sonderlich großer Feng-Shui-Kreuzritter, aber das empfinde ich doch schon als krass.
Von Maßen wimmelt es mehr als daß sie informieren würden. Man erfährt viel über Maße, die wenig aussagen (Wandecke bis Fenstermitte ist schon eine sehr ungewöhnliche Meßstrecke).
Der Hauswirtschaftsraum stößt mich persönlich weniger, aber wie ich meine Mitdiskutanten und -onkels kenne ...
... erwarte ich z.B. den Einwand, man störe mit der Bügelwäsche den im Bett fernsehenden Gatten
https://www.instagram.com/11antgmxde/
https://www.linkedin.com/company/bauen-jetzt/
Am Austritt steht man dann wieder unvermittelt direkt zwischen den Zimmertüren und vor einer Wand, und diese Enge wird dann ebenso unvermittelt weit zum Fensterschlund hin aufgerissen. Ich bin zwar kein sonderlich großer Feng-Shui-Kreuzritter, aber das empfinde ich doch schon als krass.
Von Maßen wimmelt es mehr als daß sie informieren würden. Man erfährt viel über Maße, die wenig aussagen (Wandecke bis Fenstermitte ist schon eine sehr ungewöhnliche Meßstrecke).
kbt09 schrieb:
da würde mich [...] mal das geplante Steigungsmaß der Treppe interessieren.
Der Hauswirtschaftsraum stößt mich persönlich weniger, aber wie ich meine Mitdiskutanten und -onkels kenne ...
kbt09 schrieb:
Hauswirtschaftsraum hinter dem Elternschlafzimmer ist nicht unbedingt förderlich, wenn dann später die Teenager ihre Wäsche auch zum Sammelpunkt bringen sollen. Dieser Hauswirtschaftsraum ist übrigens recht groß, was soll da alles passieren?
... erwarte ich z.B. den Einwand, man störe mit der Bügelwäsche den im Bett fernsehenden Gatten
https://www.instagram.com/11antgmxde/
https://www.linkedin.com/company/bauen-jetzt/
Ähnliche Themen