Grundriss-Planung Einfamilienhaus mit rund 150 m²

4,10 Stern(e) 34 Votes
Zuletzt aktualisiert 23.11.2025
Sie befinden sich auf der Seite 46 der Diskussion zum Thema: Grundriss-Planung Einfamilienhaus mit rund 150 m²
>> Zum 1. Beitrag <<

11ant

11ant

Nein wie kommst du darauf?
Ansichten und Schnitte sind in CAD ja keine Einzelbilder mehr wie am Reißbrett, sondern miteinander vernetzt. D.h. Fenster verschieben sich in der Datenbank zum Projekt in allen Zeichnungen auf einmal. Insofern ist das ein Druckbefehl, die Ansichten nach aktuellen Stand auszugeben. Beim manuellen Zeichnen ist das eben anders, aber auch da in der gleichen Phase erledigt.

ich glaube, es wird auch schon die Statik berechnet, Leitungen, Lüftungskonzept etc.
Dann sieht er die Genehmigungsplanung im Prinzip als final an - bis auf die Tekturenthemen wie Fenster verschieben. Schon das Verschieben von Innenwänden tangiert noch die Raumweise Heizlastberechnung.
 
C

chrisw81

Liebe Forumsmitglieder, es ist soweit!

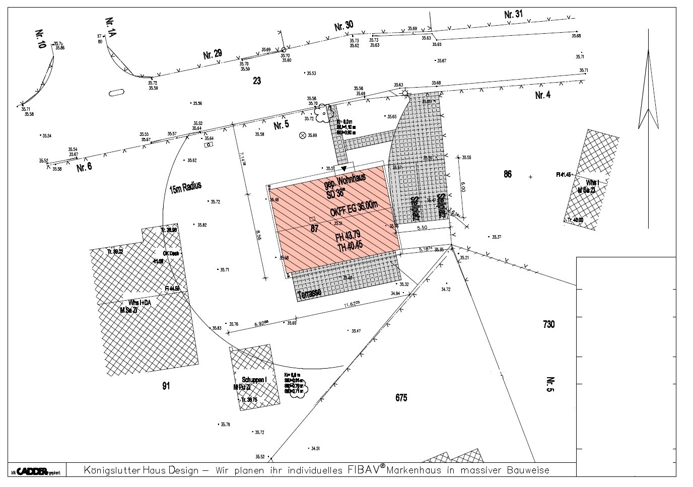
Der Architekt hat uns unseren Grundriss samt Einordnung des Hauses in den Lageplan (Achtung: nur Vorab-Lageplan ohne exakte Grenzen), Schnitt und Ansichten geschickt.

Was mir spontan auffällt:

- Lageplan:
- die Stellplätze sind direkt neben dem Haus platziert. Ich möchte sie eigentlich gern vor dem Haus und neben dem Haus (Hälfte/Hälfte) haben. Sollte man das erst einmal so lassen (oder vielleicht ganz weglassen, damit das Bauamt einen später nicht darauf festnageln kann)? Würde man diese in dem Plan belassen, gelten sie dann als festgelegt? Ich hoffe ja noch, dass ich trotz Bauflucht des Hauses trotzdem noch etwas nach vorn rücken kann mit den Stellplätzen.
- das Haus ist 7,14 m von irgendeiner Linie auf dem Vorab-Lageplan eingezeichnet, das würde ich dann gern 7 m einzeichnen lassen, wenn der fertige Lageplan vom Vermesser da ist, meint ihr das wäre ok?

Grundriss OG:
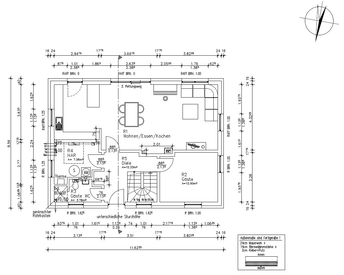
- das Fenster im Schlafzimmer ist sehr nah an der Innenwand (schätze Max. 60 cm). Ja es passt grad so ein 60 cm Schrank hin, aber schon kein 70er mehr. Das Fenster ist soweit von der Außenwand abgerückt, weil ich im EG im Westen im Wohnzimmer gern 1.93 oder mehr von der südlichen Außenwand Platz hätte, damit an der Seite die Couch nicht auch vor einem Fenster steht. Aufgrund der Symmetrie sind die Fenster im OG/EG nun alle 1.93 auf der Westseite von den Außenwänden abgerückt. Meine Frage ist nun, könnte man entweder nur auf der Nord-West-Seite die Fenster im EG und OG weiter an die Außenwand schieben, z.B. um 12.5 oder 25 cm oder fällt es dann extrem auf, wenn die Symmetrie nicht mehr stimmt? Das wäre zumindest meine einfachste Lösung. Man könnte natürlich auch nur die Fenster im OG nach außen verschieben, dann sind die Ränder Fenster im EG/OG nicht mehr gleich, aber es herrscht Symmetrie.

Vielleicht habt ihr ja Ideen oder es fällt euch noch mehr auf.

Zweistöckiges Haus mit Metall-Dach, zwei Dachgauben, Schornstein, Tür und Fenstern


Schematische Frontansicht eines zweistöckigen Hauses mit Satteldach, Kamin und vier Fenstern.


Zweistöckiges Haus mit Metalldach, Solarkollektoren, Frontfenster und Glastür in der Mitte.


Frontansicht eines zweistöckigen Hauses mit Giebeldach und vier Fenstern.


Grundriss eines Hauses: Wohnen/Essen/Kochen, Flur, Gästezimmer, WC, Treppenhaus, Möbel


Grundriss eines Wohngebäudes mit Flur, Bad, Schlafen, zwei Kinderzimmern, Abstellraum und Treppe.


Lageplan eines Baugrundstücks mit Haus, Terrasse und Maßangaben.


Schnitt durch ein zweigeschossiges Haus mit Treppe, Fenstern, Dach und Fundamenten.
 
kaho674

kaho674

Der Schornstein im Schlafzimmer ist cool - vermutlich als Türstopper geplant mit maximaler Platzverschwendung. Die Kinder können sich super beim Versteckspielen dahinter verbergen. So ein Spaß!
Daran sieht man, dass der Architekt nicht den Funken Interesse an dem Objekt hat.

Das Schrank-/Fensterproblem besteht ja auch bei Kind 2. Na dann schieb mal los, mal sehen, was Du rausholen kannst. So lassen würde ich es auch keinesfalls.
 
Y

ypg

Warum wird die Treppe nicht gespiegelt? Man kann dann doch aus dem Schlafzimmer und dem Kinderzimmer viel mehr rausholen. Der Kamin könnte auch um einen Meter versetzt werden. Man könnte ihn auch dort lassen und dem Kinderzimmer in der gewonnenen Fläche einen Einbauschrank planlinks des Schornsteins gönnen, den Eltern planrechts.
Für die Optik würde ich das Gäste-WC-Fenster etwas nach planrechts verschieben, das Fenster im WZ (planrechts) etwas einrücken.

Bei uns muss man sich Grenzbebauung (Carport) genehmigen lassen. Wenn 2 Stellplätze vorgeschrieben sind, auch die, egal ob frei oder bedacht.

Die Fenster auf der Westseite nach außen ziehen, da müsste noch Kapazität sein. Würde dem Gästezimmer auch gut stehen
 
C

chrisw81

Der Schornstein im Schlafzimmer ist cool - vermutlich als Türstopper geplant mit maximaler Platzverschwendung. Die Kinder können sich super beim Versteckspielen dahinter verbergen. So ein Spaß!
Daran sieht man, dass der Architekt nicht den Funken Interesse an dem Objekt hat.
Ich denke, mit dem Platz lässt sich noch was anfangen (Schrank links daneben, dahinter dann eben frei). Natürlich kann man auch die Wände bündig machen - dann gibt es aber ein noch größeres Fenster/Schrankproblem und die Breite möchte ich auch gern haben. Und im WZ ist der Schornstein super positioniert.
Aber ich gebe dir Recht, viel Interesse war nicht zu erkennen, im ganzen Verlauf nicht.

Das Schrank-/Fensterproblem besteht ja auch bei Kind 2. Na dann schieb mal los, mal sehen, was Du rausholen kannst. So lassen würde ich es auch keinesfalls.
Hier sehe ich nicht so das Problem, da ich hier den Schrank nicht unbedingt bis an das Fenster schieben muss. Das Fenster kann sicher noch 20-30 cm Richtung Außenwand geschoben werden. Aber auf 60 oder 70 cm zu kommen wird glaube ich recht schwer. Eventuell kann man die Fenster EG/OG auch so anordnen, dass die Bündigkeit vertikal an der Innenseite und nicht Außenseite ist, würde das blöd aussehen?
 
C

chrisw81

Warum wird die Treppe nicht gespiegelt? Man kann dann doch aus dem Schlafzimmer und dem Kinderzimmer viel mehr rausholen. Der Kamin könnte auch um einen Meter versetzt werden. Man könnte ihn auch dort lassen und dem Kinderzimmer in der gewonnenen Fläche einen Einbauschrank planlinks des Schornsteins gönnen, den Eltern planrechts.
Für die Optik würde ich das Gäste-WC-Fenster etwas nach planrechts verschieben, das Fenster im WZ (planrechts) etwas einrücken.
Verstehe noch nicht so ganz, der Deckenausschnitt sollte ja gleich bleiben egal wie die Treppe verläuft? Dann bringt es ja auch nicht mehr Platz.

Bei uns muss man sich Grenzbebauung (Carport) genehmigen lassen. Wenn 2 Stellplätze vorgeschrieben sind, auch die, egal ob frei oder bedacht.
Bei uns muss man bis zu einer gewissen Größe (30 qm) keine Grenzbebauung genehmigen lassen. Daher möchte ich mich jetzt eigentlich noch nicht festlegen. Und wollte eben nur wissen, ob solche "eingezeichneten" Stellplätze bindend sind.

Die Fenster auf der Westseite nach außen ziehen, da müsste noch Kapazität sein. Würde dem Gästezimmer auch gut stehen
Dachte ich mir auch. Im Gästezimmer auf jeden Fall. Das Problem ist, dass ich es ungern parallel im WZ tun möchte, da ich dort auf der Seite kein Fenster haben möchte (wegen Nachbarhaus und Sofa).
 
Zuletzt aktualisiert 23.11.2025
Im Forum Grundrissplanung / Grundstücksplanung gibt es 2536 Themen mit insgesamt 87998 Beiträgen


Ähnliche Themen zu Grundriss-Planung Einfamilienhaus mit rund 150 m²
Nr.ErgebnisBeiträge
1Grundriss Schlafzimmer, Ankleide und Bad en Suite 36
2Grundriss zu Einfamilienhaus erwünscht (versetztes Pultdach) 14
3Schornstein falsch eingezeichnet 16
4Bungalow 135qm: Grundriss + Fenster - Seite 7104
5Einfamilienhaus,Zwei Varianten Grundriss vom Architekt 39
6Idee Schlafzimmer - Bett / Schrank Anordnung 32
7Außenwand verschieben im Grundriss? 33
8Treppe Grundriss Planung, Auftritt und Unterzug - Seite 221
9Grundriss Einfamilienhaus barrierefrei fürs Alter mit Eltern-Schlafzimmer im EG - Seite 744
10Grundriss EFH165 qm erster Entwurf - Architekt unzufrieden - Seite 374
11Meinung zum Grundriss eines geplanten Bauhauses 23
12Meinung zu Grundriss - 2-geschossiges Einfamilienhaus - Seite 338
13Grundriss unseres Bungalows - Seite 282
14Grundriss Satteldachhaus 172 qm - Bitte um eure Meinungen - Seite 323
15Selbsterstellter Grundriss - Meinungen und Feedback erwünscht - Seite 546
16Grundriss - 135qm, 1,5-Geschosse, Satteldach - Seite 2138
17Grundriss Stadtvilla 155qm - eure Meinung ist gefragt - Seite 247
18Einfamilienhaus vom Architekt 150m² Verbesserungsvorschläge und Ideen gesucht 75
19Grundriss HAUS FÜR ZWEI" auf etwa 150qm stellt sich vor - Seite 14171
20Grundriss Mehrgenerationenhaus Umbau alte Scheune - Seite 27202

Oben