Ideensammlung Grundriss Einfamilienhaus, Bauweise offen

4,60 Stern(e) 5 Votes
Zuletzt aktualisiert 21.11.2025
Sie befinden sich auf der Seite 3 der Diskussion zum Thema: Ideensammlung Grundriss Einfamilienhaus, Bauweise offen
>> Zum 1. Beitrag <<

H

hampshire

Das versetzte Pultdach kann sehr schön natürlichen Licht ins Haus bringen. Allerdings sollte dazu auch die Raumaufteilung stimmen um das Licht zur Geltung zu bringen.
Mir scheint, als sei das Haus um den Wohnraum im EG geplant und das 1. OG muss sich danach richten. Die Proportionen erscheinen nicht passend.
Überlegt wie Ihr leben wollt und denkt dabei nicht nur an besondere Momente, sondern auch den Lebensrhythmus, erst dann geht es darum, worin dieses Leben stattfinden kann.
 
11ant

11ant

Mir scheint, als sei das Haus um den Wohnraum im EG geplant und das 1. OG muss sich danach richten.
Mir scheint eher, beide Ebenen haben die Ministeriumsfoyer-Treppe als Hauptdarsteller inszeniert. Wesentlich unter 300 qm Gesamtwohnfläche trägt so etwas übrigens leider hauptsächlich zur relativen Kleinerwahrnehmung des "restlichen" Hauses bei.

Auf dem Bildausschnitt habe ich mal den Vergleich dargestellt: links ist das, was mir als dadaistische Rechteckekomposition als Anhang 1 der Beitrages #1 angezeigt wird, rechts das OG aus dem PDF im Grundstück.

Zwei Architekturgrundrisse: linker Gebäudeflur, rechts rotiert, mehrere Schichten.


Was ich dort nur in der Isometrie - leider aber in keinem Grundriss (und Ansichten gibt es gar nicht erst) sehe, sind Fenster. Für die Diskussion würde ich allerdings hilfreich einschätzen, die Fenster auch in den Grundrissen zu sehen - ebenso wie mehr Maße als nur die totalen Seitenlängen.

Was steht da für ein Kreis in der Garageneinfahrt: ein Baum, ein Pflanzkübel, ... ?

Ins Hirn schauen können wir dem Planverfasser nicht, ein bißchen Infos sind da nicht verkehrt
 
Zuletzt bearbeitet:
T

T7891

So, wegen Urlaub und vielen Terminen hatte ich mich längere Zeit nicht zurück gemeldet.

Ich möchte mich bei euch für die Anregungen und Tipps bedanken.

Was geschah ausser Urlaub bislang sonst? Wir waren bei Architekten (Kennenlernen), GU, Fertighausanbietern, kleiner Zimmermannsbetrieb sowie in diversen weiteren Musterhäusern. Versuche, dass wir alternative Vorschläge, die zu uns passen, bekommen, sind großteils gescheitert, sprich gingen an unserem Bedarf vorbei. Im Wesentlichen habe ich unsere eigenen Entwürfe weiter geführt. Diese seht ihr im Anhang. (Kellergrundriss nicht, dieser ist wenig relevant) Hierfür erhalten wir auch demnächst Angebote über Erdbau, Rohbau, Dach und Elektrik, (sprich Gebäudehülle + Elektrik), der Rest wird in EL erstellt. Angebote werden diese Woche erwartet.
Einige eurer Vorschläge sind eingeflossen, andere nicht.

Trotzdem würde ich euch noch mal um eure Meinung bitten:
- Wie bewertet ihr den Grundriss?
- Wo würdet ihr mögliche Einsparungen sehen? Anmerkung hierzu: Ob dies notwendig ist, stellt sich noch heraus. Der Grundriss ist allerdings größer geraten als ursprünglich geplant. Offensichtlich mögliche Einsparungen, wie Keller/ Garage weglassen kennen wir.

@ zaba12: Aktuell liegen mir neben den Grundrissen auch die Kosten vor, die zwei Freunde für ihre ca. 200qm Häuser + Keller in Bayern vor 1-3 Jahren gezahlt haben (einzeln aufgelistet). Meine darauf aufbauende Kalkulation liegt aktuell noch bei knapp 550t€, wie geschrieben folgen genauere Angebote.

@ ypg: Was würdest du anders machen?

@ kbt09: Es handelt sich um das mittlere Grundstück im Westen. Dort befindet sich hinter der Lärmschutzwand auch die "Lärmquelle Strasse", Zufahrt von Osten. Die 3m wurden entschärft. Nach eigenen Vermessungen ist das Grundstück ausserdem etwa 0,5m breiter als auf den Zeichnungen.

@ hampshire: Fenster im versetzten Pultdach sollen Licht ins Bad und Treppenhaus bringen.

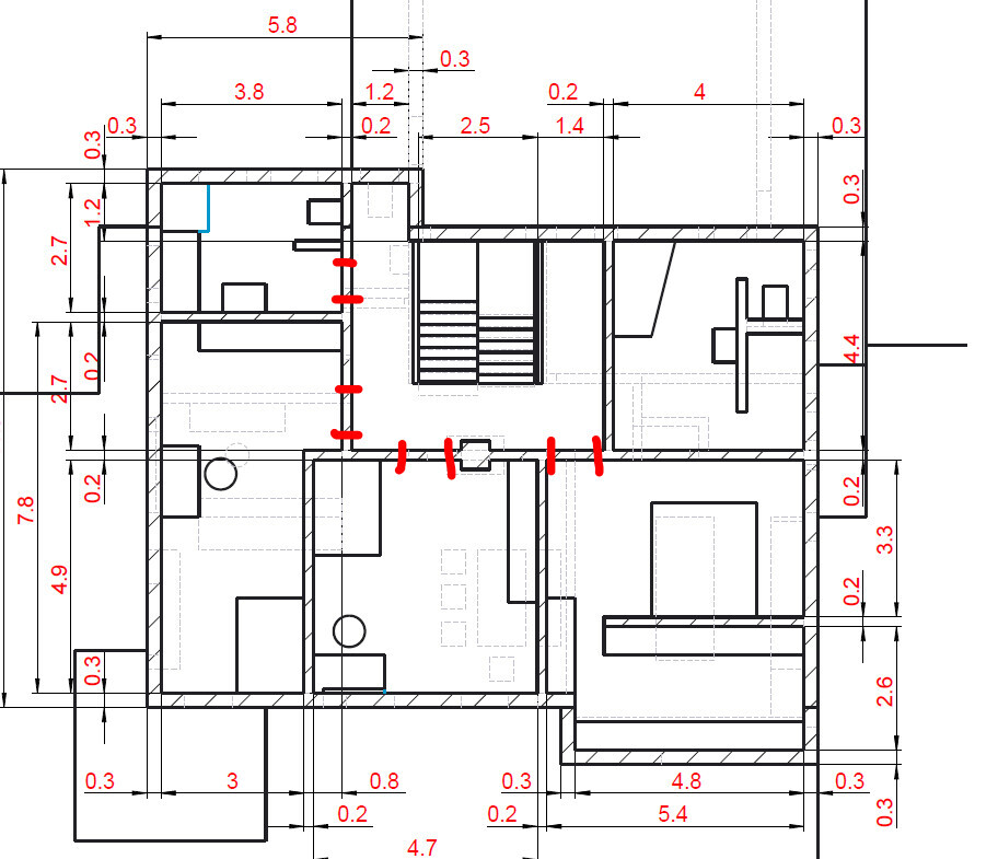
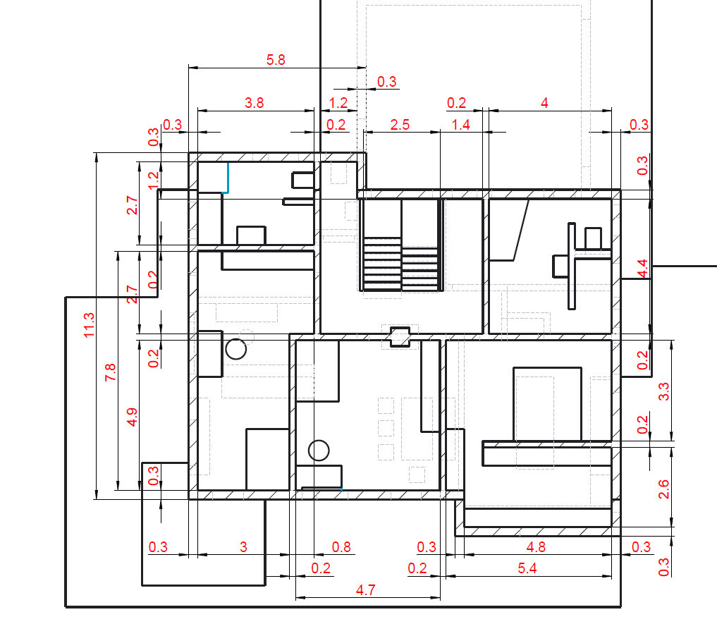
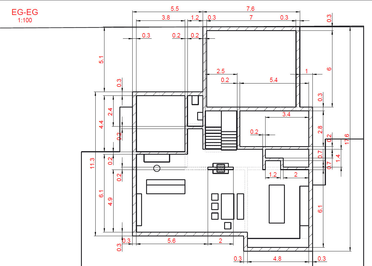
@ 11ant: Kreise stellen Bäume dar, die aktuell auf dem Grundstück stehen. (Waren mehr für mich gedacht) Das "Foyer" wurde durch die Änderung der Treppe entschärft denke ich. Fenster bitte den 3D-Ansichten entnehmen, diese sind erst mal "provisorisch" eingebracht, das Programm ist nicht klassisch zur Hausplanung gemacht worden Mehr Maße habe ich eingefügt in der neuen Version.


Solltet ihr noch weitere Fragen haben versuche ich diese zu beantworten.

Lageplan eines Baugrundstücks mit Hausgrundriss und Maßangaben in Rot


3D-Architekturmodell eines zweistöckigen Hauses mit Keller, Terrasse und grünem Grundstück


3D-Architekturmodell eines modernen Hauses mit Keller und Terrasse


Technische Zeichnung eines Bauteils: Grundriss mit roten Abmessungen und Schraffuren


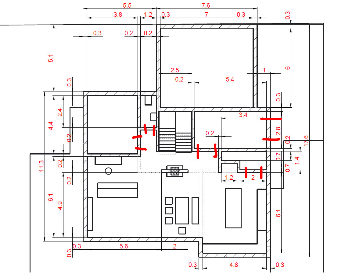
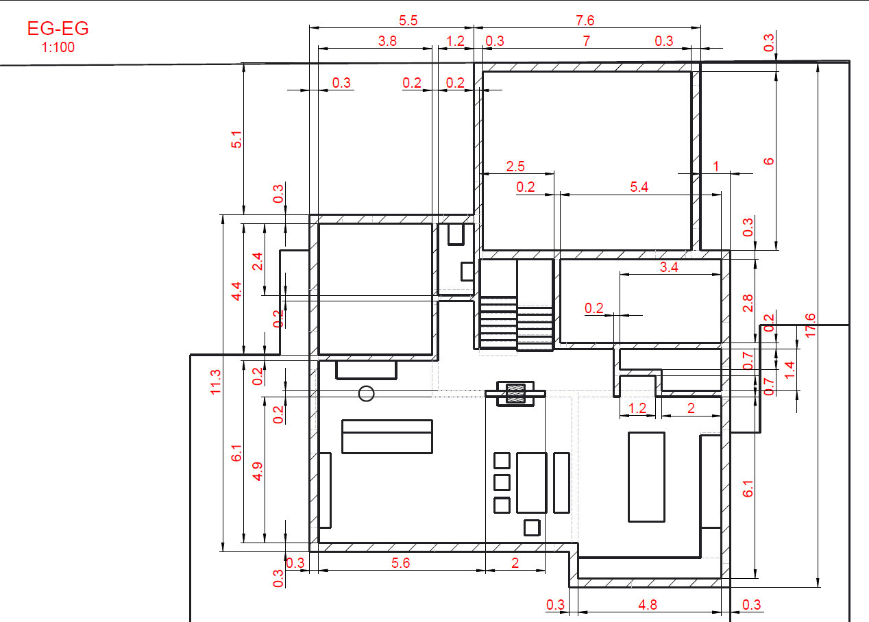
Technischer Grundriss eines Gebäudes mit Innenräumen, Treppen und roten Maßlinien.
 
O

Obstlerbaum

Diese Tür- und Fensterlosen Pläne machen mich ganz wirr im Kopf. Aber zur Sache:
- Südschlafzimmer mit Dachfenstern? Viel Spaß im Hochsommer.
- Wieso keine "richtigen" Fenster in der Küche statt der Schießscharte? Licht hat auch seine guten Seiten.
- Wo ist eigentlich der Eingang? Ist echt schwer ohne etwas Hilfe...
 
T

T7891

- Dachfenster werden wahrscheinlich normalen Fassadenfenstern weichen.
- Guter Punkt mit dem Küchenfenster, denken wir drüber nach.
- Die Türen habe ich mal provisorisch mit angedeutet, s. Anhang. hoffe das hilft weiter.

Technischer Grundrissplan eines Gebäudes mit roten Maßlinien und Abmessungen.


Grundriss eines Hauses mit Innenräumen, Treppen und Maßangaben in Rot.
 
Zuletzt aktualisiert 21.11.2025
Im Forum Grundrissplanung / Grundstücksplanung gibt es 2535 Themen mit insgesamt 87982 Beiträgen


Ähnliche Themen zu Ideensammlung Grundriss Einfamilienhaus, Bauweise offen
Nr.ErgebnisBeiträge
1Grundriss Einfamilienhaus mit Keller 19
2Grundriss-Planung und Platzierung - Einfamilienhaus ca. 200qm auf 900qm Grundstück - Seite 255
3Grundriss Einfamilienhaus ~165m² plus Keller - Seite 6165
4Grundriss-Entwurf: Einfamilienhaus mit Keller; 560qm Grundstück - Seite 365
5Einfamilienhaus 220qm mit Keller auf 700qm Grundstück 41
6Grundriss Stadtvilla 180m², Keller, 3 Kinder - Eure Meinungen dazu? - Seite 351
7Grundriss Einfamilienhaus ca. 190qm mit Keller auf Millimeterpapier 78
8Einfamilienhaus zwei Vollgeschosse, Pultdach, kein Keller 31
9Grundrissoptimierung Stadtvilla ca. 180qm mit Keller in Berlin 40
10Haus am Hang Grundriss-Feinschliff - Seite 592
11Grundriss zu Einfamilienhaus erwünscht (versetztes Pultdach) 14
12Grundriss mit Garage auf Grundstück realisierbar? - Seite 429
13Grundrissfrage, Treppe, Fenster, Ausrichtung 12
14Einfamilienhaus ohne Keller - Diskussion Grundriss 19
15Einfamilienhaus 160m2 mit Keller, 500m2 Grundstück 108
16Teures Grundstück + Einfamilienhaus 155 qm + Keller KFW40+, finanzierbar? - Seite 260
17Grundriss Einfamilienhaus 2 Vollgeschosse +Keller ca. 130m² Wohnfläche 30
18Grundriss Einfamilienhaus-Sattelhaus mit Keller, ca. 200 qm - Seite 1076
19Grundriss Einfamilienhaus in Hanglage mit Keller - Seite 651
20Grundriss, Hausanordnung EFW 150m2, Keller + Einliegerwohnung - Feedback erwünscht - Seite 967

Oben