Ideensammlung Grundriss Einfamilienhaus, Bauweise offen

4,60 Stern(e) 5 Votes
Zuletzt aktualisiert 19.11.2025
Sie befinden sich auf der Seite 8 der Diskussion zum Thema: Ideensammlung Grundriss Einfamilienhaus, Bauweise offen
>> Zum 1. Beitrag <<

Y

ypg

Das ist wohl wahr, aber ...

... kein Beinbruch: die "Setzstufe" im gebrochenen First ist für sich genommen nicht so schwer, daß da unbedingt eine tragende Wand drunter stehen müßte. Praktischerweise stünde sie aus Sicht des EG dennoch da - zum OG sage ich da mal nichts, diesbezüglich ist die Antwort auf die Krügerfrage "ist das Kunst oder kann das weg" wohl klar
Es kann auch ein Träger verbaut werden.
Allerdings habe ich eher mal wegen des OG die Äuglein öffnen wollen. Ich mass mich ja nicht an, Statiker zu sein Die falsche Planung im OG ist aber offensichtlich.
 
Zuletzt bearbeitet:
I

ivenh0

Aus der Grundfläche habt ihr bei weitem nicht das Maximum rausgeholt. Deshalb würde ich mir gut überlegen, ob ihr nicht noch mal von vorne beginnt.
Büro nur über Wohnzimmer betretbar? Empfinde ich als ungemütlich. Das OG ist einfach nur eine große Katastrophe...

Nun gut, ich habe versucht im EG ohne große Änderungen eine Verbesserung zu schaffen.
Vorschlag:
- der Pfeil stellt eine Schiebetüre dar
- da die Küche völlig überdimensioniert war, habe ich dort etwas Platz weggenommen

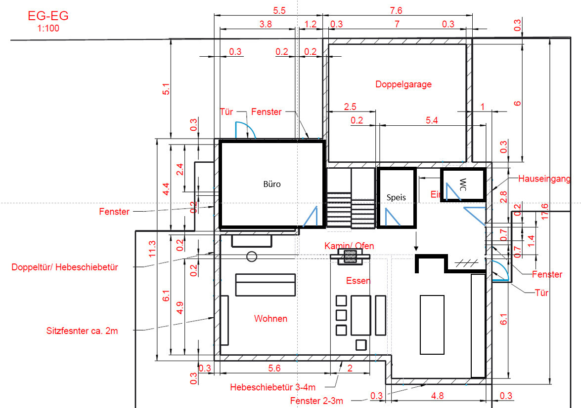
Grundriss eines Hauses mit Wohnzimmer, Büro, Essen, Speis, Kamin, Doppelgarage, Eingang.
 
Zuletzt aktualisiert 19.11.2025
Im Forum Grundrissplanung / Grundstücksplanung gibt es 2536 Themen mit insgesamt 87975 Beiträgen
Oben