Hausbau - Ratgeber
Bauherrenhilfe
- Bauherrenhilfe vor Vertragsabschluss
-- Warum einen unabhängigen Baubetreuer?
-- Vertragsgrundlagen
-- Bausumme
-- Zahlungsplan zur Kostenkontrolle
-- Pflichten des Bauherren vor Vertragsabschluss
-- Unterlagen beim Hausbau vor Vertragsabschluss
- Bauherrenhilfe nach Vertragsabschluss
-- Bauantrag bei Behörden
-- Bau-Genehmigungsverfahren bei Baubehörden
-- Bauspezifische Versicherungen
-- Bauzeitenplan
-- Baubeginn - die Letzten Pflichten der Bauherrschaft
- Bauherrenhilfe während der Bauzeit
- Gewährleistungsansprüche
- Bauabnahme
Baufinanzierung
- Baufinanzierung - Allgemeine Fragen
- Kreditarten
- Kredit-Konditionen
- Bausparen
- Staatliche Förderungen
- Verkehrswert
- Haushaltsrechnung und Bonität
Hausbau Planung
- Haustypen
- Hausbau Vorbereitungsarbeiten
- Das Baugrundstück
- Baugrund beim Hausbau
- Baurecht
- Gebäudeschutz
- Erdarbeiten und Wasserhaltung
- Stützmauern
- Einfriedung
- Untergeschoss
- Kanalisation
- Tragende Elemente
- Nichttragende Innenwände
- Fundation / Fundament
- Deckenkonstruktionen
- Dächer
- Kaminanlagen
- Treppen Rampen Leitern
- Dachbeläge und Spengler
- Fenster
- Sonnen und Wetterschutz
- Aussenputze
- Einbauten, Küchen, Türen
- Bodenbeläge und Unterlagsböden
- Parkett
- Gips, Wand, Decke
Haustechnik und Energie
- Heiztechnik
- Lüftung und Klimatechnik
- Sanitärtechnik
- Elektrotechnik
- Erneuerbare Energie
Whirlpools / Jacuzzi
Hausbau Magazin
- Baufinanzierung trotz Krise?
- Das Blockhaus
- Moderne Dämmstoffe im Vergleich
- Erker Vor- und Nachteile
- Glasflächen beim Hausbau
- Günstig ein Haus Bauen
- Mediterraner Hausbaustil
- Mehrgenerationenhaus
- Moderne Architektur
- Gartengestaltung leicht gemacht
- Traditioneller Ziegelbau
- Villa als höchster Traum
- Im Eigenheim Ruhestand geniessen
- Altbau sanieren
- Kauf einer Holzgarage
- Immobilienmakler
- Arbeitshandschuhe für den Winter
- Zuhause verschönern
- Outdoor-Plissees
- Schlafzimmer planen
- Terrassenüberdachung
- Wohngebäudeversicherung
- Zaunarten und Eigenschaften
- Hauseingang gestalten
- Der perfekte Grundriss
- Sparsamer heizen im Altbau
- Einfamilienhaus smart finanzieren
- Planung einer PV-Anlage
- Neues Haus
- Immobilienfinanzierung
- Installation einer Photovoltaikanlage
- Asbest erkennen und entfernen
- Sauna im Fokus - Wellness zuhause
- Erfolgreich vermieten
- Die perfekte Winterbekleidung
- Das Niedrigenergiehaus
- Der April und seine Stürme
- Architektonische Vielfalt
- Ökologisch und nachhaltig bauen
- Das perfekte Schlafzimmer
- Nachhaltige Energieversorgung
- Zukunftsorientiert bauen
- Nachhaltigkeit beim Hausbau
- Tiny Houses
- Wärmepumpen als nachhaltige Heizvariante
- Maßgeschneiderten Kleiderschrank
- Der richtige Baukredit
- Ratgeber für erfolgreichen Hausbau
- Haus als Altersvorsorge
Do-it-yourself Anleitungen
- Verlegeanleitung für Bodenbeläge und Parkett
- Bodenbeläge und Parkett reinigen und pflegen
- Malerarbeiten am Haus
- Garten Tipps
- Umzug und Reinigung

ᐅ Haus, Garage / Carport auf dem Grundstück platzieren


Erstellt am: 14.08.18 08:29

G
Grantlhaua
14.08.18 08:29
Bebauungsplan/Einschränkungen
Größe des Grundstücks: 883m²
Hang: leichte Hanglage, ca 1m Steigung auf 10m
Baufenster, Baulinie und -grenze: Standard
Randbebauung: für Garage möglich
Anzahl Stellplatz: 2 in der Garage
Geschossigkeit: 2 Vollgeschosse
Dachform: Walmdach:
Stilrichtung: Modern
Ausrichtung: Süden
Maximale Höhen/Begrenzungen: Orientierung am gewachsenen Gelände laut Landratsamt

Anforderungen der Bauherren
Der Grundriss des Hauses ist fest, nur wird er komplett von West nach Ost gespiegelt

Hausentwurf
Von wem stammt die Planung:
-Architekt
Was gefällt besonders? Warum? die Haustüre zwischen Garage und Haus
Was gefällt nicht? Warum?
Preisschätzung lt Architekt/Planer: 420.000 (unsere Schätzung ca. 500.000 all in)
Persönliches Preislimit fürs Haus, inkl Ausstattung: 500.000
favorisierte Heiztechnik: Luftwärmepumpe

Wenn Ihr verzichten müsst, auf welche Details/Ausbauten
-könnt Ihr verzichten: nichts
-könnt Ihr nicht verzichten: Garage, Werkstatt

Was ist die wichtigste/grundlegende Frage zum Grundriss in 130 Zeichen zusammengefasst?
Der Grundriss ist soweit fix, nur dass wir aus Gründen der Lautstärke(Straße) und Einsehbarkeit das ganze Haus spiegeln wollen. Damit von Westen nach Osten die Garage, die Haustüre, der Erker und dann das Haus und die Terrasse angelegt werden.

Leider gibt es dazu nun viele Diskussionen, da wir das Grundstück von der Verwandtschaft geschenkt bekommen haben und die im Haus dahinter leicht erhöht (ca 3m erhöht im Norden) wohnen. Sie haben Angst, dass ihr Haus von Süden her nicht mehr zu sehen ist, wenn wir mit der Garage bis auf 2-3m an die Grundstücksgrenze im Westen heran rutschen. Wenn wir allerdings 6-7m (wo das jetzige Hauseck liegt) weg gehe, habe ich zwischen Grenze, Straße, Einfahrt und Garage 80m² "verschwendeten Raum. Habt ihr eine Idee, wie ich diese Fläche nutzbar machen könnte oder wie ich sie gar nicht entstehen lasse ohne den Rest des Entwurfes kaputt zu machen?

Die Bilder stellen noch die alte Version dar, da wir erst umplanen lassen wenn uns eine Lösung eingefallen ist...

Vielen Lieben Dank!

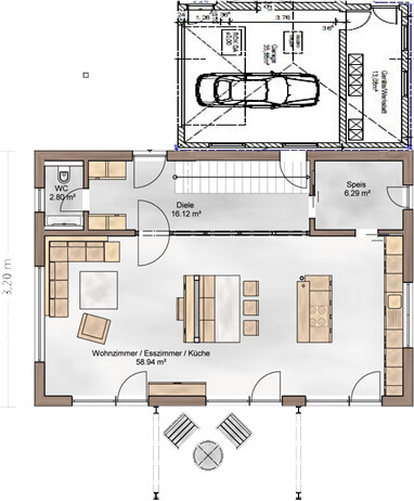
Grundriss eines Hauses mit Wohnbereich, Küche, Terrasse und Garage.


Lageplan der Grundstücksparzellen mit Grenzlinien und Nummern


Lageplan eines Grundstücks mit rotem Umriss des Gebäudes


Südansicht eines zweigeschossigen Hauses mit Garage und Garten.
K
kaho674
14.08.18 09:11
Würde mir da einen genauen Höhenplan machen und mit der lieben Verwandtschaft zusammen auskaspern, wo die Garage stehen muss, damit noch genug Sonne auf ihr Grundstück fällt. Wenn Ihr das Haus noch ein Stück gen Süden setzt, ist das Land im Norden doch deswegen nicht unnütz! Gerade bei den zu erwartenden Hitzesommern, wachsen dort dann wenigstens noch 3 grüne Halme.
G
Grantlhaua
14.08.18 09:22
Guten Morgen Katja,

das ist ja genau das Problem. Wenn wir die Garage in den Westen setzten haben sie statt 8,30 nur 4,50m Gebäudehöhe vor ihrem Haus. Allerdings wollen sie unbedingt, dass man ihr Haus von der Kreuzung im Südwesten aus noch sehen kann. Eigentlich geht es ja bloß darum, dass sie vom Küchenfenster aus sehen können wer da unten so spazieren geht

Daher liegts weniger an der Höhe als an der West-Ost Verschiebung.
K
kaho674
14.08.18 09:44
Grantlhaua schrieb:
Eigentlich geht es ja bloß darum, dass sie vom Küchenfenster aus sehen können wer da unten so spazieren geht
Daher liegts weniger an der Höhe als an der West-Ost Verschiebung.
Oh mein Gott. Das sind Schwierigkeiten. Vielleicht nehmt Ihr lieber deren Haus und die Verwandtschaft baut unten neu?

Im Ernst, wenn Euer Haus steht, egal wo, dann sehen sie natürlich weniger von der Straße. Wenn das so wichtig ist, könnt Ihr ja ne Kamera installieren. Man kann ja auch zusammen die Gebäude noch bissl verschieben, aber weil man nun unbedingt sehen muss, ob Tante Erna kommt oder Onkel H. vorbei läuft - das ist albern.
G
Grantlhaua
14.08.18 10:05
kaho674 schrieb:
Im Ernst, wenn Euer Haus steht, egal wo, dann sehen sie natürlich weniger von der Straße. Wenn das so wichtig ist, könnt Ihr ja ne Kamera installieren. Man kann ja auch zusammen die Gebäude noch bissl verschieben, aber weil man nun unbedingt sehen muss, ob Tante Erna kommt oder Onkel H. vorbei läuft - das ist albern.

Genau das ist das Problem! Alle finden es albern, nur sie eben nicht. Da kommen Argumente von wegen das Haus (wohl gemerkt über 50 Jahre alt) ist dann weniger wert und früher, als es gebaut wurde, waren alle da und haben es sich angeschaut weil es so schön ist... Dass vielleicht der Nachbesitzer mal ganz froh ist (eventuell mein Bruder), dass er nicht wie auf dem Präsentierteller auf der Terrasse sitzt, ist dann allerdings wieder kein Argument. Das Thema kostet mich noch den letzten Nerv. Ich habs grad ausgemessen, es geht tatsächlich um einen Winkel, der nicht mal 3m Sichtfeld ausmacht.

Ich kann ja nicht mal den aktuellen Grundriss auf der Ostseite bis an die Grenze schieben, weil sie sich da auch ein Fahrtrecht schreiben haben lassen, falls sie mal Holz oder ähnliches angeliefert bekommen...
K
kaho674
14.08.18 10:34
Ich verstehe die Intension nicht ganz. Sie haben Euch das Land geschenkt, damit Ihr darauf bauen könnt, aber Ihr sollt bitte nicht bauen, weil sonst deren Haus von der Straße nicht mehr zu sehen sei?

Ich würde ernsthaft überlegen, ein anderes Grundstück irgendwo zu bekommen, bevor ich am Familienzerwürfnis Schuld bin.
garagegrundrissgrundstückarchitekthaustüreterrasse