Grundrissplanung kurz vor Bauantragstellung

4,50 Stern(e) 17 Votes
Zuletzt aktualisiert 20.11.2025
Sie befinden sich auf der Seite 48 der Diskussion zum Thema: Grundrissplanung kurz vor Bauantragstellung
>> Zum 1. Beitrag <<

R

ruppsn

Mit Luft-Wasser-Wärmepumpe meinst du Luft-Wasser-Wärmepumpe, nehme ich an. Uns hat mal eine reine Luftwärmepumpe angeboten.
Ahh, ok, hatte tatsächlich Luft-Wasser-Wärmepumpe angenommen. Bei Luft-luftwärmepumpe kann ich die Entscheidung verstehen, bei Luft-Wasser-Wärmepumpe gibt es zwar wenige, die nicht ganz so schelecht ausschauen (bspw. Alpha Innotec/Novelan oder Ochsner), aber ein Trumm im Vorgarten (bei uns) wäre es immer noch. Den Gas-Gedanken lass ich mir mal durch den Kopf gehen, wobei mich die vollständige Abhängigkeit von fossilen Brennstoffen irgendwie noch nicht überzeugt... mal schauen, bin erst mal froh, wenn nächste Woche die Bodenplatte und der Keller kommt [emoji4]
 
bau.mal

bau.mal

Deckt die Kontrollierte-Wohnraumlüftung denn wirklich 50% des Wärmebedarfs ab? Sonst passt es ja wieder nicht.
Du hast einen Vertrag zur Errichtung eines Neubaus unterzeichnet. Können deine Vertragspartner (GU + externer Baubegleiter) obige Fragen nicht beantworten ... oder wollen sie nicht? Oder hast du sie ihnen gar nicht gestellt?
 
R

R.Hotzenplotz

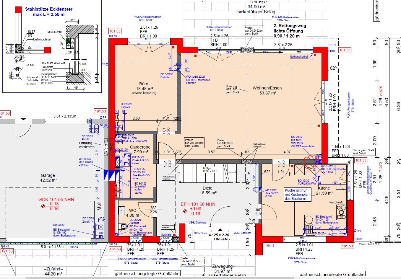
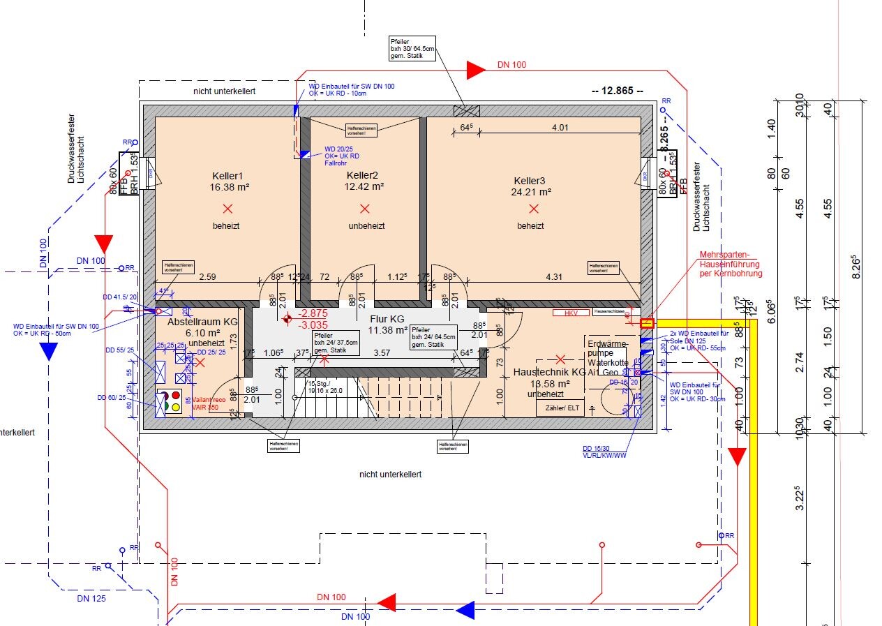
Wen es interessiert anbei die Vorabzüge der Ausführungsplanung.

Durch die Verringerung der Gebäudehöhe wurde eine Stufe weniger verplant.

Im Keller ist noch die Geo WP abgebildet. Wahrscheinlich wird es dann eine Gasheizung. Dahin gehend rot umrandet die Stelle zur Führung der Abgase einer Gasheizung sowie der Soleleitung der solaranlage.

EG Türen auf 2,26m Höhe geändert.

Lichtplanung EG und OG noch nicht eingetragen.


Ich soll es mir bis Anfang der Woche mal anschauen und melden, ob es Anmerkungen gibt. Würde mir die Velux Deckenspots eher etwas höher wünschen - über dem OG Flur statt über der Treppe, aber das geht wohl aufgrund des Dachs eher nicht.

Frontansicht eines zweigeschossigen Hauses mit Garage, Dach und Fenstern sowie Etagenbezeichnungen.


Zweigeschossiges Haus mit Satteldach, Fensterfront, Rolladen, Garage und Geländemaßangaben.


Architekturzeichnung eines Hauses mit Keller, Erdgeschoss, Obergeschoss, Dachgeschoss und Garage.


Zweistöckiges Haus mit Satteldach, Fenstern, Rolladen, Balkon rechts und Baum.


Querschnitt durch ein mehrstöckiges Haus mit Dachkonstruktion, Treppenhaus, Wänden und Fundamenten.


Übersichtlicher Dachplan des Gebäudes mit Dachgeschoss, Dachflächen und Maßen.


Grundriss Kellergeschoss mit drei Kellerräumen, Abstellraum, Flur und Haustechnik.


Grundriss eines Hauses mit Büro, Wohnen/Essen, Küche, Diele und Garage.


Grundriss OG: Bad, Ankleide, Schlafen, HWR, Kind 1, Kind 2, Flur OG, Dusche, Dachterrasse.
 
11ant

11ant

Würde mir die Velux Deckenspots eher etwas höher wünschen - über dem OG Flur statt über der Treppe, aber das geht wohl aufgrund des Dachs eher nicht.
Ich hielte das durchaus für möglich, in dem der Kanal der Spots jeweils so geneigt wird, daß er nicht am Auslass, sondern am Einlaß rechtwinklig anschließt. Also entsprechend des Daches um 15° geneigt, siehe Zeichnung: pink = Plan, grün = Vorschlag.

Querschnitt durch ein mehrstöckiges Haus mit Fundament, Treppe und Dachkonstruktion.
 
Zuletzt aktualisiert 20.11.2025
Im Forum Grundrissplanung / Grundstücksplanung gibt es 2535 Themen mit insgesamt 87978 Beiträgen


Ähnliche Themen zu Grundrissplanung kurz vor Bauantragstellung
Nr.ErgebnisBeiträge
1LW Wärmepumpe Alpha Innotec LWDV mit 12KW? 26
2Ist meine Wärmepumpe von alpha innotec gut? 10
3Baukosten Einfamilienhaus mit Keller und Doppelgarage - Seite 429
4Grundriss Stadtvilla 180m², Keller, 3 Kinder - Eure Meinungen dazu? - Seite 451
5Alpha Innotec Wärmepumpe Ausfall - Seite 423
6Gasheizung oder Wärmepumpe Luft (Mitsubishi?) oder Grundwasser 16
7Innen liegende Wärmepumpe im Keller wegen Grundwasser nicht möglich? 37
8CO2 Fussabdruck Gasheizung vs. Wärmepumpe im Neubau - Seite 439
9Neubau Gasheizung - Wie Fussbodenheizung auf Wärmepumpe auslegen? 11
10Erfahrungen Sole-Wärmepumpe - Seite 50491
11Kombination Luft-Wasser-Wärmepumpe + Solarthermie + Ofen oder nur Ofen und LW 13
12Wärmepumpe besser im Haus oder im Garten? - Seite 238
13Luft-Wasser-Wärmepumpe mit Photovoltaik oder Pellet mit Solar - Seite 325
14Welche Wärmepumpe bei monolithischer Bauweise? - Seite 333
15Bodenheizung Luft- Wasser- Wärmepumpe. Haus zu warm wenn Sonne scheint - Seite 109690
16Inbetriebnahme 9,3 kwP Anlage i.V.m Luft-Wasser-Wärmepumpe und Kontrollierte-Wohnraumlüftung 10
17Aufstellung Luft-Wasser-Wärmepumpe - Passt das so? - Seite 344
18Vaillant VWL 125/6 A Luft-Wasser Wärmepumpe Erfahrungsaustausch - Seite 217
19Eisbildung Soleleitung Wärmepumpe - Seite 678
20Luft-Wasser-Wärmepumpe aktueller Verbrauch und Daten - Seite 2111439

Oben