ᐅ Unser Grundriss... bitte um Hilfe zur Optimierung..
Erstellt am: 09.05.15 09:53
M
Michel081509.05.15 09:53Bebauungsplan/Einschränkungen
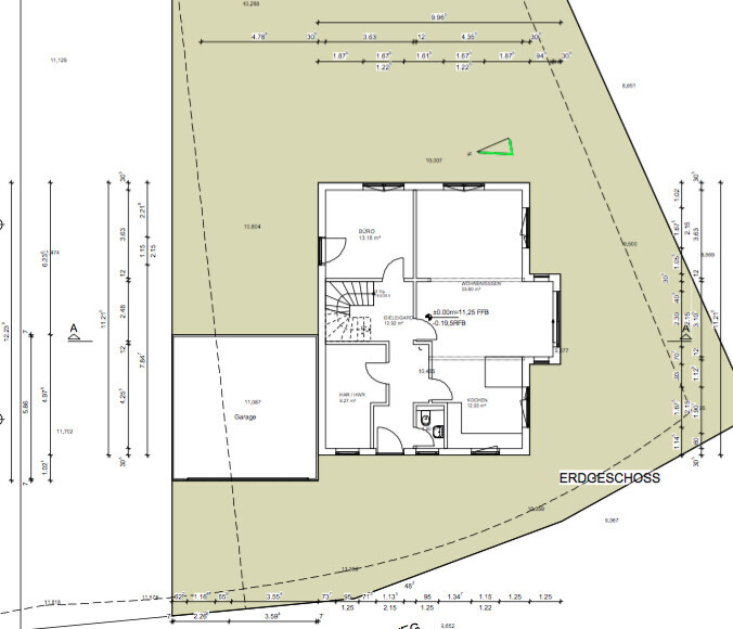
Größe des Grundstücks: Wir haben 2 Grundstücke und wollten eigtl. nur die 529 qm bebauen, dies reicht jedoch nicht aus sodass wir noch ein Teil der Doppelgarage auf die 413qm stellen müssen. und diese dann wenn wir es mal veräußern möchten wieder neu einmessen lassen müssen.
ebenerdig
Anzahl Stellplatz - 2-> Doppelgarage mit Geräteraum. 6x9m
Geschossigkeit - 2 Geschosse
Dachform - 25° Satteldach
wir waren bei der Gemeinde - es gibt für unsere Ortschaft keinen Bebauungsplan
Anforderungen der Bauherren
keinen Keller, EG + DG mit 2m Kniestock
Anzahl der Personen, Alter: 2 Erwachsene, 1 Kind (bei Einzug etwa 3 Jahre alt) 1 Kind in Planung
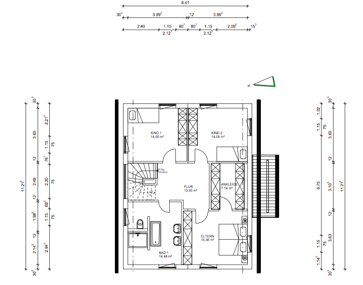
Haus 168,59qm Fertighaus in Holzständerbauweise mit einem Erker im Wohnbereich
Küche offen mit Kochinsel und kleiner Bar
Heiztechnik:
Luft-Wasser-Wärmepumpe mit kontrollierter Be- und Entlüftung
Dies ist der 1. Entwurf von unserem Architekten.Was könnte man anders machen. Das Gäste-WC ist nicht gut platziert. Der Grundriss im OG ist erst mal ok.
Wir sind über Tipps und Ideen im EG dankbar.


Größe des Grundstücks: Wir haben 2 Grundstücke und wollten eigtl. nur die 529 qm bebauen, dies reicht jedoch nicht aus sodass wir noch ein Teil der Doppelgarage auf die 413qm stellen müssen. und diese dann wenn wir es mal veräußern möchten wieder neu einmessen lassen müssen.
ebenerdig
Anzahl Stellplatz - 2-> Doppelgarage mit Geräteraum. 6x9m
Geschossigkeit - 2 Geschosse
Dachform - 25° Satteldach
wir waren bei der Gemeinde - es gibt für unsere Ortschaft keinen Bebauungsplan
Anforderungen der Bauherren
keinen Keller, EG + DG mit 2m Kniestock
Anzahl der Personen, Alter: 2 Erwachsene, 1 Kind (bei Einzug etwa 3 Jahre alt) 1 Kind in Planung
Haus 168,59qm Fertighaus in Holzständerbauweise mit einem Erker im Wohnbereich
Küche offen mit Kochinsel und kleiner Bar
Heiztechnik:
Luft-Wasser-Wärmepumpe mit kontrollierter Be- und Entlüftung
Dies ist der 1. Entwurf von unserem Architekten.Was könnte man anders machen. Das Gäste-WC ist nicht gut platziert. Der Grundriss im OG ist erst mal ok.
Wir sind über Tipps und Ideen im EG dankbar.
BeHaElJa schrieb:
Mir gefällt die ganze Flursituation im EG nichtDas ist vornehm ausgedrückt Der Flur ist ein verwinkelter dunkler Gang. Dadurch daß ihr den Hauswirtschaftsraum und auch noch ein Büro ins EG stecken möchtet, mit einer mittigen Treppe, wird der EG Grundriss schwierig. Das WC in dieser Größe scheint mir für normal große Menschen kaum benutzbar. Wenn man ein neues Haus baut, sollte das "Geschäft" wenigstens in Ruhe ohne Klaustrophobiegefahr verrichtet werden können.
Schau doch hier im Forum oder im Internet nach anderen Grundrissen; da gibt es einige, die besser passen würden. Ach ja, der Rücksprung des Elternschlafzimmers im OG muß nicht sein.
Selbst bei Regalsystem mit je 40 cm wird das eher ein Begehbarer schrank und keine Ankleide in der man sich mal drehen kann. Auch hast du 0 Tageslicht... finde ich nicht zielführend. Dann lieber darauf verzichten und den Schrank im Schlafzimmer integrieren.
Der Flur ist zu lang und verwinkelt... ich würde wohl die Treppe weiter Richtung Eingang setzen (etwa 65 cm), WC auf die Treppenseite direkt an die Eingangstürwand, dann HAR für Technik, dann Treppe, dann Hauswirtschaftsraum für Wäsche (wobei das wohl etwas eng wird). Bad im OG wird dann kleiner - ist bei einer vernünftigen Aufteilung aber auch kein Problem. Würde die Bad OG Wand mit der Schlafzimmerwand fluchten (das sind dann genau die ~65 cm), Kinderzimmer entsprechend größer ziehen, Ankleide kleiner und Zugang vom Flur aus - Dachfenster rein, Schränke rechts und Links. Ihr habt doch sowieso noch eine Schrankwand im Schlafzimmer. Ungefähr klar was ich meine? Sonst skizziere ich nachher noch mal...
Der Flur ist zu lang und verwinkelt... ich würde wohl die Treppe weiter Richtung Eingang setzen (etwa 65 cm), WC auf die Treppenseite direkt an die Eingangstürwand, dann HAR für Technik, dann Treppe, dann Hauswirtschaftsraum für Wäsche (wobei das wohl etwas eng wird). Bad im OG wird dann kleiner - ist bei einer vernünftigen Aufteilung aber auch kein Problem. Würde die Bad OG Wand mit der Schlafzimmerwand fluchten (das sind dann genau die ~65 cm), Kinderzimmer entsprechend größer ziehen, Ankleide kleiner und Zugang vom Flur aus - Dachfenster rein, Schränke rechts und Links. Ihr habt doch sowieso noch eine Schrankwand im Schlafzimmer. Ungefähr klar was ich meine? Sonst skizziere ich nachher noch mal...
M
markus180909.05.15 11:51Vielleicht die Garage weiter nach Osten verschieben, also neben das Büro und dann die Eingangstüre auf der Nordseite?
Ähnliche Themen