Hallo Hausbau-Gemeinde,
wir haben vor ein Haus im Bauhausstil zu bauen und haben einen Entwurf vom
Architekten erhalten den Ihr einmal genau und kritisch anschauen sollt, da wir
extrem zweigeteilter Meinung sind.
Da unser Grundstück nur 16m breit ist, muß es eine rechteckige Form haben. Hier
einen gescheiten Grundriss hinzubekommen ist scheinbar nicht so einfach, oder...?
Wie gefällt Euch dieser Grundriss, ist was übersehen worden oder enthällt er gar Fehler?
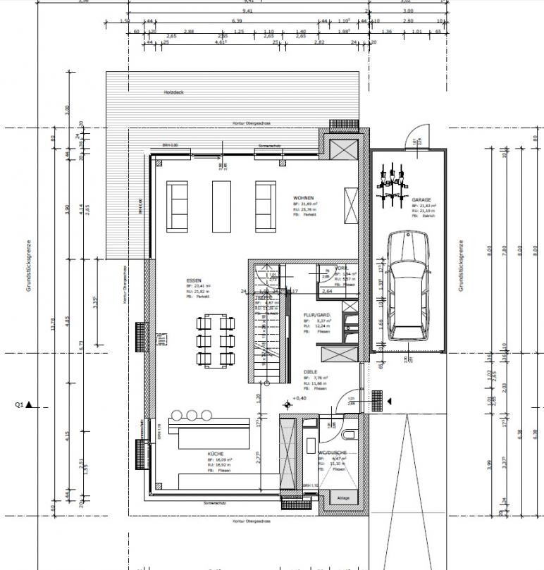
Erdgeschoss:

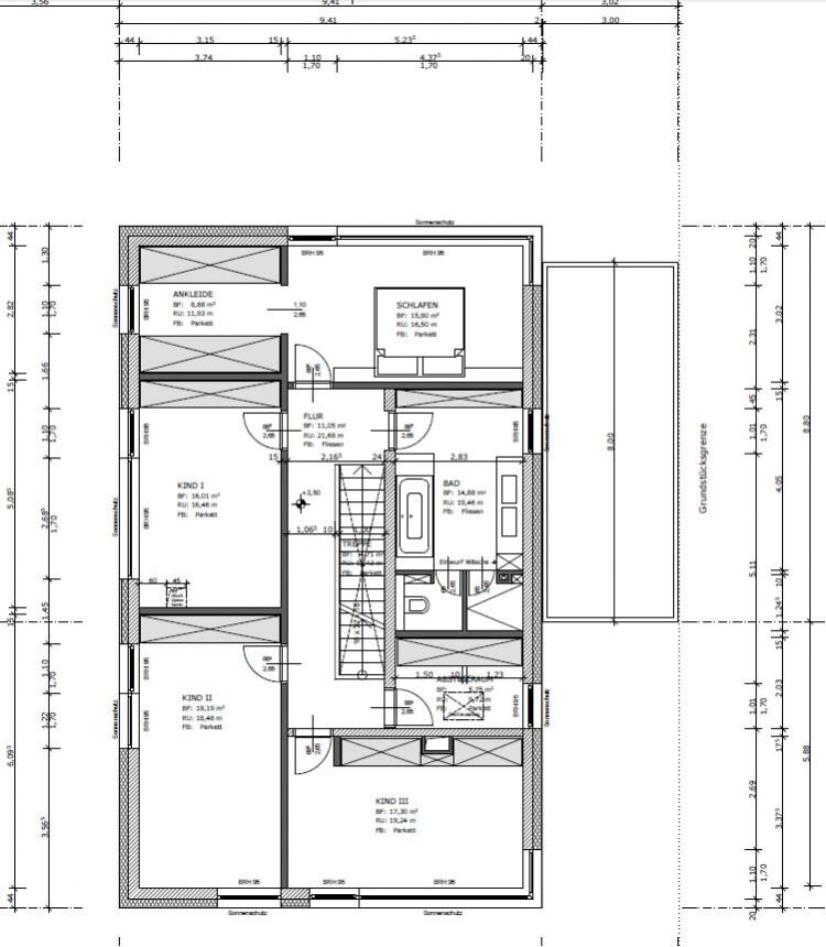
Obergeschoss:

Wir sind gespannt auf Eure Meinungen und können alle vertragen!


wir haben vor ein Haus im Bauhausstil zu bauen und haben einen Entwurf vom
Architekten erhalten den Ihr einmal genau und kritisch anschauen sollt, da wir
extrem zweigeteilter Meinung sind.
Da unser Grundstück nur 16m breit ist, muß es eine rechteckige Form haben. Hier
einen gescheiten Grundriss hinzubekommen ist scheinbar nicht so einfach, oder...?
Wie gefällt Euch dieser Grundriss, ist was übersehen worden oder enthällt er gar Fehler?
Erdgeschoss:
Obergeschoss:
Wir sind gespannt auf Eure Meinungen und können alle vertragen!
Das ist wirklich schwer zu erkennen. Was ich sehen kann und was mir nicht gefällt, ist auf Anhieb das OG. Dort sind 3 Kinderzimmer plus Schlafzimmer und nur ein Bad mit WC. Dieses WC ist aber nur durch das Bad zugänglich. Das ist ehrlich gesagt Mist. Wenn schon ein separates WC, dann muss es auch von allen Zimmern gut zugänglich sein. Wer sitzt schon gerne in der Badewanne, wenn da diverse Leute auf die Toilette müssen.
Wenn ihr wirklich 3 Kinder habt, ist ein Badezimmer definitiv zu wenig.
Der Gang neben der Treppe ist sehr schmal.
Das Schlafzimmer ist mit 2,82 m an sich nicht tief genug, um das Bett so zu platzieren, wie es im Plan getan wurde. Ein Bett mit normaler Liegefläche ist gerne mal 2,10 bis 2,30 m lang, je nach Ausführung. Da wird der Durchgang am Bett dann eher quer gemeistert.
Müssen alle Schlaf- und Kinderzimmer im OG sein ? Warum nicht eins nach unten legen und das OG entzerren....
Wenn ihr wirklich 3 Kinder habt, ist ein Badezimmer definitiv zu wenig.
Der Gang neben der Treppe ist sehr schmal.
Das Schlafzimmer ist mit 2,82 m an sich nicht tief genug, um das Bett so zu platzieren, wie es im Plan getan wurde. Ein Bett mit normaler Liegefläche ist gerne mal 2,10 bis 2,30 m lang, je nach Ausführung. Da wird der Durchgang am Bett dann eher quer gemeistert.
Müssen alle Schlaf- und Kinderzimmer im OG sein ? Warum nicht eins nach unten legen und das OG entzerren....
Genau, wie marv45 schreibt!
Grundsätzlich gefällt mir der Grundriss, alles schön grosszügig... im EG. Dafür stapeln sich oben die Menschen auf engstem Raum.
Ich sehe zwar ein grosses WC im EG, aber dort keine Dusche. Durch fehlende, also nicht lesbare Maße kann ich nicht beurteilen, ob unten alles normal dimensioniert ist oder so gross, dass ich es platzvergeudend bewerten würde.
Für 5 ist ein Bad zu klein und umständlich zu benutzen, dann doch lieber Dusche auch noch im EG mit einplanen.
Nach meiner Meinung ist der Grundriss unten ein kleiner Showroom, aber für 5 Personen nicht gerade praktisch in der Anwendung.
Irgendwelche kleinere Patzer kann ich nicht erkennen, eventuell WC im EG mit Garderobe/Abstell tauschen, würde aber auch den Vorschlag mit einem Schlafzimmer im EG machen 😉
Grundsätzlich gefällt mir der Grundriss, alles schön grosszügig... im EG. Dafür stapeln sich oben die Menschen auf engstem Raum.
Ich sehe zwar ein grosses WC im EG, aber dort keine Dusche. Durch fehlende, also nicht lesbare Maße kann ich nicht beurteilen, ob unten alles normal dimensioniert ist oder so gross, dass ich es platzvergeudend bewerten würde.
Für 5 ist ein Bad zu klein und umständlich zu benutzen, dann doch lieber Dusche auch noch im EG mit einplanen.
Nach meiner Meinung ist der Grundriss unten ein kleiner Showroom, aber für 5 Personen nicht gerade praktisch in der Anwendung.
Irgendwelche kleinere Patzer kann ich nicht erkennen, eventuell WC im EG mit Garderobe/Abstell tauschen, würde aber auch den Vorschlag mit einem Schlafzimmer im EG machen 😉
Hallo miteinander,
ich habe heute den ganzen Tag versucht die Grundrisse etwas schärfer einzustellen, allerdings ohne durchschlagenden
Erfolg. Versucht bitte mit den bereits gezeigten Bildern zurecht zu kommen. Vielen Dank für die Mühe!
Erst schonmal vielen Dank für die interessanten Antworten: Im EG-WC ist eine Dusche eingeplant und eingezeichnet,
es sind also 2 (gleichzeitige) Duschmöglichkeiten vorhanden.
@marv45: ja, es sollten 3 Kinderzimmer + 1 Schlafzimmer im OG sein. Ich kann nicht erkennen, wo noch ein Zimmer im EG
Platz hätte, ohne dieses zu eng zu machen.
Meine Bedenken zielen sicherlich in Richtung OG, es sind nur relativ schmale rechteckige Zimmer, welche sich sicherlich auch
wahrscheinlich schlecht mit Möbeln einrichten lassen. Sind mehr quadratische Zimmer nicht besser? Sollte man nicht vielleicht
die Treppe versetzen bzw. eine andere andere Treppenform wählen z.B. eine U-Treppe mit Podest und diese versetzen!? Mir
erscheint es nicht sehr sinnvoll ein relativ schmales Haus durch eine gerade Treppe mehr oder weniger zu teilen.
Des Weiteren habe ich große Bedenken, dass es im (EG) im Essbereich zu dunkel ist und kein Fenster eingezeichnet ist - ein Fehler
vom Architekten oder falsche Gedanken?
Bin gespannt was Ihr sagt!
ich habe heute den ganzen Tag versucht die Grundrisse etwas schärfer einzustellen, allerdings ohne durchschlagenden
Erfolg. Versucht bitte mit den bereits gezeigten Bildern zurecht zu kommen. Vielen Dank für die Mühe!
Erst schonmal vielen Dank für die interessanten Antworten: Im EG-WC ist eine Dusche eingeplant und eingezeichnet,
es sind also 2 (gleichzeitige) Duschmöglichkeiten vorhanden.
@marv45: ja, es sollten 3 Kinderzimmer + 1 Schlafzimmer im OG sein. Ich kann nicht erkennen, wo noch ein Zimmer im EG
Platz hätte, ohne dieses zu eng zu machen.
Meine Bedenken zielen sicherlich in Richtung OG, es sind nur relativ schmale rechteckige Zimmer, welche sich sicherlich auch
wahrscheinlich schlecht mit Möbeln einrichten lassen. Sind mehr quadratische Zimmer nicht besser? Sollte man nicht vielleicht
die Treppe versetzen bzw. eine andere andere Treppenform wählen z.B. eine U-Treppe mit Podest und diese versetzen!? Mir
erscheint es nicht sehr sinnvoll ein relativ schmales Haus durch eine gerade Treppe mehr oder weniger zu teilen.
Des Weiteren habe ich große Bedenken, dass es im (EG) im Essbereich zu dunkel ist und kein Fenster eingezeichnet ist - ein Fehler
vom Architekten oder falsche Gedanken?
Bin gespannt was Ihr sagt!
Eine gerade Treppe verbraucht am meisten Platz, ist ja aber meist gewollt vom Bauherren.
Um Licht zu beurteilen, fehlen Nordpfeil und Grundstückslage... woher sollen wir denn wissen, wie Eure Fenster aussehen, in welche Richtung sie zeigen?? Flächen sind ja grosszügig eingezeichnet 🙂
Um Licht zu beurteilen, fehlen Nordpfeil und Grundstückslage... woher sollen wir denn wissen, wie Eure Fenster aussehen, in welche Richtung sie zeigen?? Flächen sind ja grosszügig eingezeichnet 🙂
Ähnliche Themen