ᐅ Grundriss Neubau - Bitte um Feedback
Erstellt am: 06.03.14 11:41
Hallo,
wir sind gerade in der Vorplanung unseres neuen Hauses.
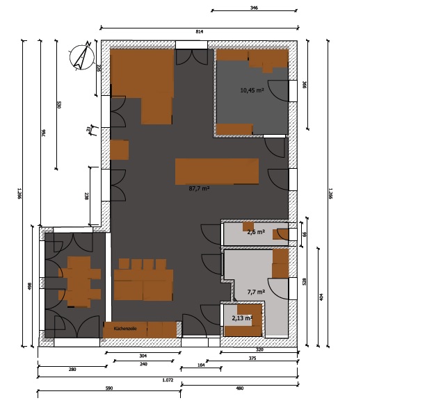
Da dies aber nicht mit 5. Haus sondern erst das 2. eigene ist, würde ich gerne mal von euch hören, was ihr zu diesem Grundriss sagt. Ich habe die Vorplanung beigefügt, soll eigentlich die Grundlage für den Architekten sein.
Vorab, bei den Fenstern sind sicher noch einige Fehler drin, die Statik ist okay da Fertighaus.
Oberste Prämisse war und ist ein gutes Raumgefühl, die Treppe ist als "Wohnelement" freitragend ausgeführt.
Sicherlich helfen mir eure Kommentare, die eine oder andere Schwäche noch zu korrigieren.
Eingangsdiele haben wir bewusst weg gelassen, Garderobe ist in Wand von Technikraum integriert Schuhe etc. können im Technikraum abgestellt werden. Vor dem Eingang folgt (nicht eingezeichnet) eine 3 m breite Überdachung, da nach vorne dann die Doppelgarage folgt.
Qm haben wir 180 geplant, würden gerne mehr aber da scheitert es dann am Geld.
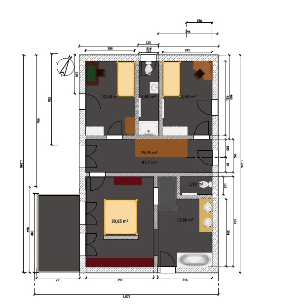
Weitere Anmerkungen 2.Stock: Bad hat keine Türe zu Schlafzimmer, dafür aber kleine separate Toilette. zw. Schlafzimmer und Dusche wird fest stehendes, deckenhohes Glas eingebaut.
Dachform Flachdach, Putz zweifarbig.
Ist also alles ziemlich modern
Lg Markus


wir sind gerade in der Vorplanung unseres neuen Hauses.
Da dies aber nicht mit 5. Haus sondern erst das 2. eigene ist, würde ich gerne mal von euch hören, was ihr zu diesem Grundriss sagt. Ich habe die Vorplanung beigefügt, soll eigentlich die Grundlage für den Architekten sein.
Vorab, bei den Fenstern sind sicher noch einige Fehler drin, die Statik ist okay da Fertighaus.
Oberste Prämisse war und ist ein gutes Raumgefühl, die Treppe ist als "Wohnelement" freitragend ausgeführt.
Sicherlich helfen mir eure Kommentare, die eine oder andere Schwäche noch zu korrigieren.
Eingangsdiele haben wir bewusst weg gelassen, Garderobe ist in Wand von Technikraum integriert Schuhe etc. können im Technikraum abgestellt werden. Vor dem Eingang folgt (nicht eingezeichnet) eine 3 m breite Überdachung, da nach vorne dann die Doppelgarage folgt.
Qm haben wir 180 geplant, würden gerne mehr aber da scheitert es dann am Geld.
Weitere Anmerkungen 2.Stock: Bad hat keine Türe zu Schlafzimmer, dafür aber kleine separate Toilette. zw. Schlafzimmer und Dusche wird fest stehendes, deckenhohes Glas eingebaut.
Dachform Flachdach, Putz zweifarbig.
Ist also alles ziemlich modern
Lg Markus
Mir persönlich zu offen. Gerüche und Geräusche aus dem EG gehen alle ins DG.
Im EG sind es mir viel zu viele Terrassentüren. Wollt ihr wirklich überall eure Haus nach außen verlassen?
Das Bad oben ist mal gewagt. Wozu eine Glasscheibe zwischen Bad und Schlafzimmer? Wieso ein offenes Bad? Mir erschließt sich der Mehrwert nicht. Negativ dabei: Im Bad will ich 25 Grad haben zum Duschen. Im Schlafzimmer 16.18 Grad zum Schlafen. Diese Temperaturunterschiede bei offenen Bereichen sind für mich zu groß.
Für 4 Personen reichen 180qm locker aus – ist eh sehr großzügig dein Haus :p
Im EG sind es mir viel zu viele Terrassentüren. Wollt ihr wirklich überall eure Haus nach außen verlassen?
Das Bad oben ist mal gewagt. Wozu eine Glasscheibe zwischen Bad und Schlafzimmer? Wieso ein offenes Bad? Mir erschließt sich der Mehrwert nicht. Negativ dabei: Im Bad will ich 25 Grad haben zum Duschen. Im Schlafzimmer 16.18 Grad zum Schlafen. Diese Temperaturunterschiede bei offenen Bereichen sind für mich zu groß.
Für 4 Personen reichen 180qm locker aus – ist eh sehr großzügig dein Haus :p
Fertighäuser folgen keinen physikalischen Gesetzen und brauchen keine tragenden wände?
Was ist das für ein weiser Balken zw. Esstisch und dem Rest?
Die Kloräume finde ich affig. Das sind Tunnel mit WC am Ende.
Für so ein großes Haus mit einem so großen Raum finde ich dennoch irgendwie verbaut. Ohne Keller wir der verwinkelte Hauswirtschaftsraum auch recht eng.
Wir selbst haben in EG auch nur 4 Türen. Gäste-WC, Hauswirtschaftsraum, Abstellkammer und natürlich de Haustür. Also sehr offen. Aber dein Grundriss kommt mir vor wie ein Lagerraum.
Null Form und in die Ecken das nötigste verfrachtet. Da steckt null Kreativität drin. Ich kann nur für euch hoffen, dass euer Architekt mehr davon hat.
Was ist das für ein weiser Balken zw. Esstisch und dem Rest?
Die Kloräume finde ich affig. Das sind Tunnel mit WC am Ende.
Für so ein großes Haus mit einem so großen Raum finde ich dennoch irgendwie verbaut. Ohne Keller wir der verwinkelte Hauswirtschaftsraum auch recht eng.
Wir selbst haben in EG auch nur 4 Türen. Gäste-WC, Hauswirtschaftsraum, Abstellkammer und natürlich de Haustür. Also sehr offen. Aber dein Grundriss kommt mir vor wie ein Lagerraum.
Null Form und in die Ecken das nötigste verfrachtet. Da steckt null Kreativität drin. Ich kann nur für euch hoffen, dass euer Architekt mehr davon hat.
Gebe meinen Vorrednern teilweise recht.
Offenes Wohnen machen wir auch, auch ist bei uns Treppe offen und unsere Kochdüfte ziehen über die offenen Galerie nach oben. Ich finde es nicht schlimm. Schlimm empfinde ich allerdings, wenn Toilettengerüche zum Herd ziehen und unser Gast nach seinem Toilettegang direkt in die Gast- und Wohnzone treten muss 🙄
Der Grundriss funktioniert ganz und gar nicht, da fast viele Türen mit irgendwas kollidieren. Auch die Kinderzimmer sind nicht gross genug, als dass sie zwei Türen beherbergen können.
Esszimmer: Terrassentüren, sieht man auf den ersten Blick, dass diese nicht zu öffnen gehen. Um den Tisch herum zu laufen, ist auch nur für Miss Twiggy möglich. Beim Kochen auf den unruhigen Haupteingang und der Garderobe schauen, ist nichts. Kurz mal Jacke ablegen, wo? Auf dem Küchentresen? Da ist keine Stellfläche für eine Kommode oder ein Stuhl.
Küche ist für 4 Personen zu klein.
Technikraum wird zu eng für Garderobe... bei dem Schnitt auch keine schnelle Ablage für 30cm lange Schuhe vorhanden...
Die Maße kann ich leider nicht erkennen, aber mir kommt die Ecke zwischen den Fenstern im Wohnzimmer für das Sofa zu eng. Gibts bei Euch keine Ablage oder Lampen, die neben dem Sofa stehen?
In der Mitte (Treppe) viel Raum für nichts... einfach nur Verkehrsfläche.
OG: im Hotel kann ich mir eine Fenstertrennung zwischen Dusche und Bett sehr gut vorstellen :o, aber bitte nicht zu Hause. Wir werden älter, und wer will denn schon beim Duschen und der dazugehörigen Pflege beobachtet werden???
Auch hier im Bad ist Waschen am Waschtisch wegen der Tür zur Toilette nicht möglich.
Vieles Undurchdachtes, wenig Konzept.. und dann die Statik, auch Holzständerdecken werden getragen !
Mein Reihenhaus hatte nur 116qm Wohnfläche, aber mehr Raumgefühl und Platz als dieser Entwurf. Der hier besteht fast nur aus Verkehrsflächen - kaum Stellflächen, Kollidierung und Platz dort, wo man ihn nicht braucht.
Geht ohne zum Architekten und sagt ihm, dass Ihr Euch offenes Wohnen vorstellt. Der macht das schon! Hier gibt es - sorry um die Worte - keinen Ansatz zum Weitermachen 🙁
Offenes Wohnen machen wir auch, auch ist bei uns Treppe offen und unsere Kochdüfte ziehen über die offenen Galerie nach oben. Ich finde es nicht schlimm. Schlimm empfinde ich allerdings, wenn Toilettengerüche zum Herd ziehen und unser Gast nach seinem Toilettegang direkt in die Gast- und Wohnzone treten muss 🙄
Der Grundriss funktioniert ganz und gar nicht, da fast viele Türen mit irgendwas kollidieren. Auch die Kinderzimmer sind nicht gross genug, als dass sie zwei Türen beherbergen können.
Esszimmer: Terrassentüren, sieht man auf den ersten Blick, dass diese nicht zu öffnen gehen. Um den Tisch herum zu laufen, ist auch nur für Miss Twiggy möglich. Beim Kochen auf den unruhigen Haupteingang und der Garderobe schauen, ist nichts. Kurz mal Jacke ablegen, wo? Auf dem Küchentresen? Da ist keine Stellfläche für eine Kommode oder ein Stuhl.
Küche ist für 4 Personen zu klein.
Technikraum wird zu eng für Garderobe... bei dem Schnitt auch keine schnelle Ablage für 30cm lange Schuhe vorhanden...
Die Maße kann ich leider nicht erkennen, aber mir kommt die Ecke zwischen den Fenstern im Wohnzimmer für das Sofa zu eng. Gibts bei Euch keine Ablage oder Lampen, die neben dem Sofa stehen?
In der Mitte (Treppe) viel Raum für nichts... einfach nur Verkehrsfläche.
OG: im Hotel kann ich mir eine Fenstertrennung zwischen Dusche und Bett sehr gut vorstellen :o, aber bitte nicht zu Hause. Wir werden älter, und wer will denn schon beim Duschen und der dazugehörigen Pflege beobachtet werden???
Auch hier im Bad ist Waschen am Waschtisch wegen der Tür zur Toilette nicht möglich.
Vieles Undurchdachtes, wenig Konzept.. und dann die Statik, auch Holzständerdecken werden getragen !
Mein Reihenhaus hatte nur 116qm Wohnfläche, aber mehr Raumgefühl und Platz als dieser Entwurf. Der hier besteht fast nur aus Verkehrsflächen - kaum Stellflächen, Kollidierung und Platz dort, wo man ihn nicht braucht.
Geht ohne zum Architekten und sagt ihm, dass Ihr Euch offenes Wohnen vorstellt. Der macht das schon! Hier gibt es - sorry um die Worte - keinen Ansatz zum Weitermachen 🙁
Ähnliche Themen