ᐅ Grundriss Neubau Satteldachhaus 145 qm, 9 x 11,5 m, kurz vor Bauantrag
Erstellt am: 11.01.21 16:09
F
FionaWTHallo,
wir planen unseren Neubau auf unserem 558 qm großen Grundstück (Neubaugebiet, Nachbarbebauung unbekannt).
Das Grundstück ist leider nicht optimal geschnitten; es ist trapezförmig, wir müssen lt. Bebauungsplan 5 m von der Straße zurück bauen, da hätte unser Baufenster nur eine Breite von 8,74 m. Wir haben nun 9 m Breite geplant und gehen daher insgesamt 7,76 m von der Straße zurück. Wir finden das eigentlich zu weit, kommen aber sonst mit dem Grundriss nicht hin.
Geplant ist nun ein Baukörper von 9 x 11,5 m. Haben Bedenken, dass trotzdem der Flur und die Küche zu schmal und lang werden.
Außerdem hätten wir gerne größere Kinderzimmer, wissen aber nicht so recht wie das passen soll.
Wir würden uns Über Ideen und Anregungen zu unserer Planung freuen, wir bauen zum ersten Mal und übersehen sicher einiges.
Bebauungsplan/Einschränkungen
Größe des Grundstücks: 558 qm
Hang: nein
Grundflächenzahl: 0,4
Geschossflächenzahl: 0,8
Baufenster, Baulinie und -grenze: 5m zur Straße, 3m zu den Nachbarn
Randbebauung: Garage und Stellplätze
Anzahl Stellplätze: 2 pro Wohneinheit
Geschossigkeit: 1,5 Geschosse
Dachform: Satteldach
Stilrichtung: Modern
Ausrichtung: Süd-Ost-Garten, Hauseingang im Westen
Maximale Höhen/Begrenzungen: TH 5,20 m, FH 9,50 m
Anforderungen der Bauherren
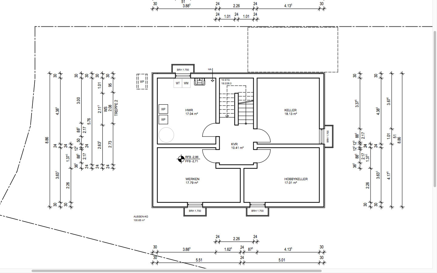
Keller, Geschosse: Keller, EG, OG mit Kniestock 1,50 m
Anzahl der Personen, Alter: Zwei Erwachsene (37 und 31 Jahre), zwei Kleinkinder (3 u. 1 Jahr alt)
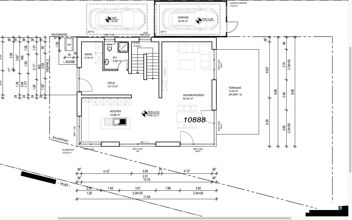
Raumbedarf im EG: Garderobe, WC mit Dusche, offener Küchen-, Ess-, Wohnbereich
Raumbedarf im OG: Schlafzimmer, Ankleide, Bad, zwei Kinderzimmer
Raumbedarf im Keller: Hauswirtschaftsraum, Abstellraum, Sportraum (Keller höher als gewöhnlich), Büro/Gästezimmer
Büro: Familiennutzung oder Homeoffice?: Büro im Keller zur Nutzung gelegentlich Home Office
Schlafgäste pro Jahr: 1-2 (Schlafcouch im Büro)
offene oder geschlossene Architektur: offen
konservativ oder moderne Bauweise: modern
offene Küche, Kochinsel: offene Küche mit Kochinsel
Anzahl Essplätze: 4-6
Kamin: nein
Musik/Stereowand: nein
Balkon, Dachterrasse: nein
Garage, Carport: Garage
Nutzgarten, Treibhaus: nein
weitere Wünsche/Besonderheiten/Tagesablauf, gern auch Begründungen, warum dieses oder das nicht sein soll:
Hauseingang soll zur Straße hin sein, Eingang im Norden wäre möglich aber aufgrund des Baufensters wären nur 3m zum Nachbarn und in der Einfahrt zur Garage, alles vllt etwas eng
Hausentwurf
Von wem stammt die Planung: eigener Entwurf vom GU überarbeitet und gezeichnet
Was gefällt besonders? Warum?: Küche ist zur Straße hin gewünscht, offener Bereich Küche-Wohnen-Essen gefällt sehr gut, große Garderobe gewünscht, viel Fensterfläche gewünscht, Küche auf jeden Fall mit Insel
Was gefällt nicht? Warum?: Langer Flur gefällt nicht richtig, Küche und Flur zu schmal aufgrund des schmalen Baufensters vorne
Preisschätzung lt Bauunternehmen: 440.000 € ohne Grundstück und ohne Garage (Festpreis), natürlich auch ohne Außenanlagen
Persönliches Preislimit fürs Haus, inkl Ausstattung: 500.000 € ohne Außenanlagen, Grundstück und Garage
favorisierte Heiztechnik: Luft-Wasser-Wärmepumpe
Wenn Ihr verzichten müsst, auf welche Details/Ausbauten
-könnt Ihr verzichten: Kamin, Dachfenster, Erker
-könnt Ihr nicht verzichten: Eckverglasung, Holzboden überall außer Bad
Warum ist der Entwurf so geworden, wie er jetzt ist?
ans Grundstück angepasst, Küche sollte nach vorne zur Straße, Esszimmer und Wohnzimmer an den Garten
Was ist die wichtigste/grundlegende Frage zum Grundriss in 130 Zeichen zusammengefasst?
Flur zu lange und Durchgang bei der Treppe in Küchen/Essbereich zu schmal?
Küchen- und Essbereich zu lang und schmal? Dafür Wohnzimmer zu klein?
Küche könnte breiter werden wenn man das Podest bei der Treppe weglässt, allerdings werden dann auch Garderobe und WC schmaler.
Kinderzimmer zu klein und Fenster dort ausreichend?





wir planen unseren Neubau auf unserem 558 qm großen Grundstück (Neubaugebiet, Nachbarbebauung unbekannt).
Das Grundstück ist leider nicht optimal geschnitten; es ist trapezförmig, wir müssen lt. Bebauungsplan 5 m von der Straße zurück bauen, da hätte unser Baufenster nur eine Breite von 8,74 m. Wir haben nun 9 m Breite geplant und gehen daher insgesamt 7,76 m von der Straße zurück. Wir finden das eigentlich zu weit, kommen aber sonst mit dem Grundriss nicht hin.
Geplant ist nun ein Baukörper von 9 x 11,5 m. Haben Bedenken, dass trotzdem der Flur und die Küche zu schmal und lang werden.
Außerdem hätten wir gerne größere Kinderzimmer, wissen aber nicht so recht wie das passen soll.
Wir würden uns Über Ideen und Anregungen zu unserer Planung freuen, wir bauen zum ersten Mal und übersehen sicher einiges.
Bebauungsplan/Einschränkungen
Größe des Grundstücks: 558 qm
Hang: nein
Grundflächenzahl: 0,4
Geschossflächenzahl: 0,8
Baufenster, Baulinie und -grenze: 5m zur Straße, 3m zu den Nachbarn
Randbebauung: Garage und Stellplätze
Anzahl Stellplätze: 2 pro Wohneinheit
Geschossigkeit: 1,5 Geschosse
Dachform: Satteldach
Stilrichtung: Modern
Ausrichtung: Süd-Ost-Garten, Hauseingang im Westen
Maximale Höhen/Begrenzungen: TH 5,20 m, FH 9,50 m
Anforderungen der Bauherren
Keller, Geschosse: Keller, EG, OG mit Kniestock 1,50 m
Anzahl der Personen, Alter: Zwei Erwachsene (37 und 31 Jahre), zwei Kleinkinder (3 u. 1 Jahr alt)
Raumbedarf im EG: Garderobe, WC mit Dusche, offener Küchen-, Ess-, Wohnbereich
Raumbedarf im OG: Schlafzimmer, Ankleide, Bad, zwei Kinderzimmer
Raumbedarf im Keller: Hauswirtschaftsraum, Abstellraum, Sportraum (Keller höher als gewöhnlich), Büro/Gästezimmer
Büro: Familiennutzung oder Homeoffice?: Büro im Keller zur Nutzung gelegentlich Home Office
Schlafgäste pro Jahr: 1-2 (Schlafcouch im Büro)
offene oder geschlossene Architektur: offen
konservativ oder moderne Bauweise: modern
offene Küche, Kochinsel: offene Küche mit Kochinsel
Anzahl Essplätze: 4-6
Kamin: nein
Musik/Stereowand: nein
Balkon, Dachterrasse: nein
Garage, Carport: Garage
Nutzgarten, Treibhaus: nein
weitere Wünsche/Besonderheiten/Tagesablauf, gern auch Begründungen, warum dieses oder das nicht sein soll:
Hauseingang soll zur Straße hin sein, Eingang im Norden wäre möglich aber aufgrund des Baufensters wären nur 3m zum Nachbarn und in der Einfahrt zur Garage, alles vllt etwas eng
Hausentwurf
Von wem stammt die Planung: eigener Entwurf vom GU überarbeitet und gezeichnet
Was gefällt besonders? Warum?: Küche ist zur Straße hin gewünscht, offener Bereich Küche-Wohnen-Essen gefällt sehr gut, große Garderobe gewünscht, viel Fensterfläche gewünscht, Küche auf jeden Fall mit Insel
Was gefällt nicht? Warum?: Langer Flur gefällt nicht richtig, Küche und Flur zu schmal aufgrund des schmalen Baufensters vorne
Preisschätzung lt Bauunternehmen: 440.000 € ohne Grundstück und ohne Garage (Festpreis), natürlich auch ohne Außenanlagen
Persönliches Preislimit fürs Haus, inkl Ausstattung: 500.000 € ohne Außenanlagen, Grundstück und Garage
favorisierte Heiztechnik: Luft-Wasser-Wärmepumpe
Wenn Ihr verzichten müsst, auf welche Details/Ausbauten
-könnt Ihr verzichten: Kamin, Dachfenster, Erker
-könnt Ihr nicht verzichten: Eckverglasung, Holzboden überall außer Bad
Warum ist der Entwurf so geworden, wie er jetzt ist?
ans Grundstück angepasst, Küche sollte nach vorne zur Straße, Esszimmer und Wohnzimmer an den Garten
Was ist die wichtigste/grundlegende Frage zum Grundriss in 130 Zeichen zusammengefasst?
Flur zu lange und Durchgang bei der Treppe in Küchen/Essbereich zu schmal?
Küchen- und Essbereich zu lang und schmal? Dafür Wohnzimmer zu klein?
Küche könnte breiter werden wenn man das Podest bei der Treppe weglässt, allerdings werden dann auch Garderobe und WC schmaler.
Kinderzimmer zu klein und Fenster dort ausreichend?
P
pagoni202011.01.21 17:11Also......im Grundsatz gefällt mit Euer Grundriss richtig gut und würde mMn nur noch einige Korrekturen benötigen, da habe ich von GU´s meist weniger Spannendes gesehen. Du solltest auch unbedingt die tatsächlichen Möbelmasse einzeichnen. Ich finde das wichtig insbes. auch beim Esszimemer aber genauso im Wohnzimmer, nämlich ob ihr dann auch wirklich so möblieren/sitzen wollt.
Ich würde wohl an den Fenster noch etwas schrauben, je nach meinen Lebensgewohnheiten. Evtl. würde ich die Wohnzimmerwand etwas einkürzen und den vlt. TV weiter in die Ecke, weil so schräg wie momentan eingezeichnet ihr wohl eh nicht TV schauen werdet. Daran würde ich auch festmachen, ob ich hinter dem Sofa eine Glaswand möchte oder ob ich da lieber etwas tausche; z.B. könnte Essen bis zum WZ hin weitmöglich verglast sein und WZ weniger Glas/Sonne haben oder vlt. kein bodentiefes Fenster, damit das Sofa davor an die Wand kann.
Vlt. könnte auch die Küchenwand zum Flur etwas kürzer sein.....hm...., wobei ihne Speis Du ja auch Stauraum brauchst. Einen unschönen Schlauch sehe ich da aber nicht aktuell.
Die Küche ist mit 15qm groß genug mMn und je nach Platzbedarf kannst da ja noch mit Fenstern/Stellfläche variieren. Da wo aktuell das Schiebeelement planunten ist könnte bei mir der große Side-by-Side von Liebherr o.ä. stehen und die Fenster woanders. Aber das sind ja Spielereien und hängen von eigenem Geschmack/Bedarf ab. Ich mag Glas sehe gerne aber evtl. könnte ein bisschen mehr Wandfläche hier auch nicht schaden wg. Stellfläche/Gestaltung.
Im UG würde ich zumindest ein WC vorsehen....wer weiß, was das Leben noch so bringt. Mit hoher Wahrscheinlichkeit wird dies irgendwann ein Jugendzimmer o.ä. und dann ist man froh, wenn zumindest die Wasser/Abwasser-Anschlüsse verfügbar sind.
OG find ich auch grundsätzlich gelungen, wobei ich gerne hinter der Zimmertür die 60cm Platz habe für Schrank o.ä. wenns geht. Die ;Kinderzimmer sind keinesfalls zu klein, 15qm finde ich top. Fensterbreite sehe ich nicht genau, ich würde wohl dafür auch keine bodentiefen Fenster nehmen, weil Kinder/Jugendliche immer mal umstellen mit dme Älterwerden, dann lieber breitere Fenster, evtl. 2flügelig mit ca. 160cm.
Das mir der Ankleide gefällt mir weniger, einen so kleinen Raum mit einer Tür....das wirkt reingepresst, da würde ichb eine offene Lösung bevorzugen bzw. würde den Platz gleich dem Schlafzimmer zuschlagen; dann bräuchte es aucgh das Dachfenster nicht. Wenn ich das richtig schätze sind aktuell 9m Schrank eingelpant in Schlafzimmer und Ankleide? Das würde ich auf MEIN Leben anpassen.
Bad ist schick so, kann man natürlich auch anders machen, und notfalls ginge es auch mit 2-3qm weniger.
Wird ein schönes Haus denke ich, Grundriss wirkt flüssig auf mich.
Ich würde wohl an den Fenster noch etwas schrauben, je nach meinen Lebensgewohnheiten. Evtl. würde ich die Wohnzimmerwand etwas einkürzen und den vlt. TV weiter in die Ecke, weil so schräg wie momentan eingezeichnet ihr wohl eh nicht TV schauen werdet. Daran würde ich auch festmachen, ob ich hinter dem Sofa eine Glaswand möchte oder ob ich da lieber etwas tausche; z.B. könnte Essen bis zum WZ hin weitmöglich verglast sein und WZ weniger Glas/Sonne haben oder vlt. kein bodentiefes Fenster, damit das Sofa davor an die Wand kann.
Vlt. könnte auch die Küchenwand zum Flur etwas kürzer sein.....hm...., wobei ihne Speis Du ja auch Stauraum brauchst. Einen unschönen Schlauch sehe ich da aber nicht aktuell.
Die Küche ist mit 15qm groß genug mMn und je nach Platzbedarf kannst da ja noch mit Fenstern/Stellfläche variieren. Da wo aktuell das Schiebeelement planunten ist könnte bei mir der große Side-by-Side von Liebherr o.ä. stehen und die Fenster woanders. Aber das sind ja Spielereien und hängen von eigenem Geschmack/Bedarf ab. Ich mag Glas sehe gerne aber evtl. könnte ein bisschen mehr Wandfläche hier auch nicht schaden wg. Stellfläche/Gestaltung.
Im UG würde ich zumindest ein WC vorsehen....wer weiß, was das Leben noch so bringt. Mit hoher Wahrscheinlichkeit wird dies irgendwann ein Jugendzimmer o.ä. und dann ist man froh, wenn zumindest die Wasser/Abwasser-Anschlüsse verfügbar sind.
OG find ich auch grundsätzlich gelungen, wobei ich gerne hinter der Zimmertür die 60cm Platz habe für Schrank o.ä. wenns geht. Die ;Kinderzimmer sind keinesfalls zu klein, 15qm finde ich top. Fensterbreite sehe ich nicht genau, ich würde wohl dafür auch keine bodentiefen Fenster nehmen, weil Kinder/Jugendliche immer mal umstellen mit dme Älterwerden, dann lieber breitere Fenster, evtl. 2flügelig mit ca. 160cm.
Das mir der Ankleide gefällt mir weniger, einen so kleinen Raum mit einer Tür....das wirkt reingepresst, da würde ichb eine offene Lösung bevorzugen bzw. würde den Platz gleich dem Schlafzimmer zuschlagen; dann bräuchte es aucgh das Dachfenster nicht. Wenn ich das richtig schätze sind aktuell 9m Schrank eingelpant in Schlafzimmer und Ankleide? Das würde ich auf MEIN Leben anpassen.
Bad ist schick so, kann man natürlich auch anders machen, und notfalls ginge es auch mit 2-3qm weniger.
Wird ein schönes Haus denke ich, Grundriss wirkt flüssig auf mich.
FionaWT schrieb:
Das Grundstück ist leider nicht optimal geschnitten; es ist trapezförmig, wir müssen lt. Bebauungsplan 5 m von der Straße zurück bauen, da hätte unser Baufenster nur eine Breite von 8,74 m. Wir haben nun 9 m Breite geplant und gehen daher insgesamt 7,76 m von der Straße zurück. Wir finden das eigentlich zu weit, kommen aber sonst mit dem Grundriss nicht hin.Na, da würde ich aber klar eher den Grundriss anpassen als die Lage.pagoni2020 schrieb:
Grundriss wirkt flüssig auf mich.Ich vermute ein "Werk" der Sprach"erkennung" :-)https://www.instagram.com/11antgmxde/
https://www.linkedin.com/company/bauen-jetzt/
P
pagoni202011.01.21 17:3911ant schrieb:
Ich vermute ein "Werk" der Sprach"erkennung" 🙂Nö, eher Sprachgebrauch eines Einsiedlers. Ok weitere Vorschläge als Ersatz: "gefällt", "praktisch", "gut proportioniert", stimmig"....eben mein unbedeutender Einbdruck. Kurzum: Mit so einem Grundriss und der dazugehörigen Familiensituation könnte ich mich wohlfühlen. Also ok, ist ja schon gut, ich befürchte berechtigte Kritik......Mir gefällt so, finds voll subba, Hamma aldaIch kann mich der Begeisterung nicht ganz so anschließen.
Wenn ihr nicht soweit von der Straße weg wollt, dann würde ich ganz bewußt ein schmaleres Haus planen - dafür halt dann länger. Da gibt es richtig gute Beispiele. Die Raumaufteilung entspricht dann aber nicht mehr so dem gängigen Standard wie das Haus, das ihr jetzt plant. Macht euch mal klug, ob das etwas für euch wäre.
Ich erinnere mich an ein Traumhaus (BR Fernsehen, sicher noch in der Mediathek zu finden) wo ein sehr schmales Haus in ein Grundstück in München geplant wurde. Wenn ich mich erinnere, war das Haus nur 6m breit, aber sehr pfiffig gemacht. Unbedingt mal angucken! Auf der HP vom BR findet man i.d.R auch die Grundrisse der vorgestellten Häuser.
Eine andere Möglichkeit wäre auch, vorne einen schmalen Baukörper zu planen und hinten das Haus auf eine Seite verbreitern, also ein leichtes L als Grundfläche.
Ich werde nie verstehen, warum man ein 0815 Haus bauen will, das für das klassische rechteckige Grundstück paßt, aber halt auf ein speziell geschnittenes Grundstück nicht und sich dann wundert, warum die Planung nur sosolala ist und eben nicht so richtig paßt.
Wenn ich das richtig sehe, ist das Elternschlafzimmer im Süden, aber Kind 1 im Nordwesten. Finde ich nie gelungen. Das kann man tauschen.
Die beiden schrägen Türen sind Relikte aus den 80ern (da war das schick!) aber hier sehe ich für diese architektonische Fehlleistung keinen plausiblen Grund.
Die Türen sind mit 76cm (Bad) bzw. 88cm (Schlafzimmer) geplant, dafür aber 217cm hoch - wollt ihr das wirklich? Das sind winzige Schießscharten. Ich würde immer 1m für eine Tür planen. Wirkt ansonsten mit der Höhe auch irgendwie unproportioniert.
Die Ankleide macht so auch keinen Sinn. Bitte beachten: ihr gönnt euch insgesamt über 21qm an Schlafzimmer und Ankleide, aber das Schlafzimmer ist m.E. zu groß, da schläft man nur drin, die Ankleide wird knapp. Dafür dann noch ein weiterer Schrank im Schlafzimmer - völlige Fehlplanung.
Wenn die Außenhülle so bleiben soll, wie sie ist, Schlafzimmer dahin wo Kind1, davor die Ankleide durch die man das Schlafzimmer betritt. Schlafzimmer weniger qms, Ankleider mehr und dann alle Schränke dann auch in der Ankleide.
Wieso die Garage soweit zurück gesetzt? Räumt ihr im Winter so gerne Schnee? Wenn der Bauplan nicht dagegen spricht, würde ich die nach vorne wandern lassen und lieber vor dem Haus (ihr müßt ja eh 5m von der Straße weg) einen Stellplatz planen.
Düft ihr den Stellplatz vor die Garage planen? Das wäre bei uns nicht genehmigunsfähig - jeder Parkplatz (ob Garage oder Stellplatz) muß frei zugängig sein. Hintereinander geht nicht. Das verlangen nicht alle Gemeinden, aber das sollte man vorher abchecken.
Küche zur Straße: Warum? Ich hab die Küche immer lieber in Terrassennähe - macht m.E. mehr Sinn.
Wenn ihr nicht soweit von der Straße weg wollt, dann würde ich ganz bewußt ein schmaleres Haus planen - dafür halt dann länger. Da gibt es richtig gute Beispiele. Die Raumaufteilung entspricht dann aber nicht mehr so dem gängigen Standard wie das Haus, das ihr jetzt plant. Macht euch mal klug, ob das etwas für euch wäre.
Ich erinnere mich an ein Traumhaus (BR Fernsehen, sicher noch in der Mediathek zu finden) wo ein sehr schmales Haus in ein Grundstück in München geplant wurde. Wenn ich mich erinnere, war das Haus nur 6m breit, aber sehr pfiffig gemacht. Unbedingt mal angucken! Auf der HP vom BR findet man i.d.R auch die Grundrisse der vorgestellten Häuser.
Eine andere Möglichkeit wäre auch, vorne einen schmalen Baukörper zu planen und hinten das Haus auf eine Seite verbreitern, also ein leichtes L als Grundfläche.
Ich werde nie verstehen, warum man ein 0815 Haus bauen will, das für das klassische rechteckige Grundstück paßt, aber halt auf ein speziell geschnittenes Grundstück nicht und sich dann wundert, warum die Planung nur sosolala ist und eben nicht so richtig paßt.
Wenn ich das richtig sehe, ist das Elternschlafzimmer im Süden, aber Kind 1 im Nordwesten. Finde ich nie gelungen. Das kann man tauschen.
Die beiden schrägen Türen sind Relikte aus den 80ern (da war das schick!) aber hier sehe ich für diese architektonische Fehlleistung keinen plausiblen Grund.
Die Türen sind mit 76cm (Bad) bzw. 88cm (Schlafzimmer) geplant, dafür aber 217cm hoch - wollt ihr das wirklich? Das sind winzige Schießscharten. Ich würde immer 1m für eine Tür planen. Wirkt ansonsten mit der Höhe auch irgendwie unproportioniert.
Die Ankleide macht so auch keinen Sinn. Bitte beachten: ihr gönnt euch insgesamt über 21qm an Schlafzimmer und Ankleide, aber das Schlafzimmer ist m.E. zu groß, da schläft man nur drin, die Ankleide wird knapp. Dafür dann noch ein weiterer Schrank im Schlafzimmer - völlige Fehlplanung.
Wenn die Außenhülle so bleiben soll, wie sie ist, Schlafzimmer dahin wo Kind1, davor die Ankleide durch die man das Schlafzimmer betritt. Schlafzimmer weniger qms, Ankleider mehr und dann alle Schränke dann auch in der Ankleide.
Wieso die Garage soweit zurück gesetzt? Räumt ihr im Winter so gerne Schnee? Wenn der Bauplan nicht dagegen spricht, würde ich die nach vorne wandern lassen und lieber vor dem Haus (ihr müßt ja eh 5m von der Straße weg) einen Stellplatz planen.
Düft ihr den Stellplatz vor die Garage planen? Das wäre bei uns nicht genehmigunsfähig - jeder Parkplatz (ob Garage oder Stellplatz) muß frei zugängig sein. Hintereinander geht nicht. Das verlangen nicht alle Gemeinden, aber das sollte man vorher abchecken.
Küche zur Straße: Warum? Ich hab die Küche immer lieber in Terrassennähe - macht m.E. mehr Sinn.
Ähnliche Themen