Grundrissplanung / Entwurf Einfamilienhaus Flachdach mit Doppelgarage

4,80 Stern(e) 5 Votes
Zuletzt aktualisiert 21.12.2025
Sie befinden sich auf der Seite 13 der Diskussion zum Thema: Grundrissplanung / Entwurf Einfamilienhaus Flachdach mit Doppelgarage
>> Zum 1. Beitrag <<

Wie findet ihr die Idee Treppe aus Essbereich startend ?

  • unpraktisch

    Stimmen: 5 33,3%
  • mal was anderes

    Stimmen: 0 0,0%
  • gut

    Stimmen: 1 6,7%
  • schlecht

    Stimmen: 9 60,0%

  • Anzahl der Umfrageteilnehmer
    15
K

Kabelmodem87

Hallo,

nach langer Zeit möchten wir uns auch noch mal zurückmelden, haben einige Gedanken und Vorschläge von hier angenommen und vor allem unseren eigentlich Wunsch der geraden Treppe verworfen
Sind jetzt auch ganz froh drüber, da wir so im Obergeschoss wirklich schöner Zimmer hinbekommen haben.
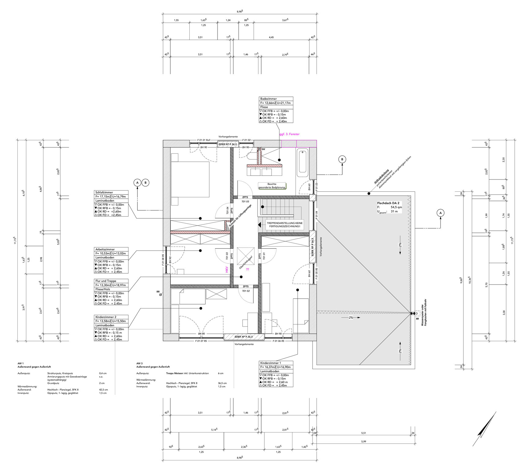
Habe mal den aktuellen Grundriss angehangen, wenn jemand ein grober Schnitzer oder was fragwürdiges auffällt, kann er dies gern kundtun

Vielen Dank an der Stelle noch mal, auch für die Beispielgrundriss Entwürfe und die Mühen einiger hier !

Grundriss eines Hauses mit Wohnzimmer, Küche, Bad, Garage und Maßangaben.


Grundrissplan eines Hauses mit Maßen, Zimmern, Türen und Fenstern.
 
kaho674

kaho674

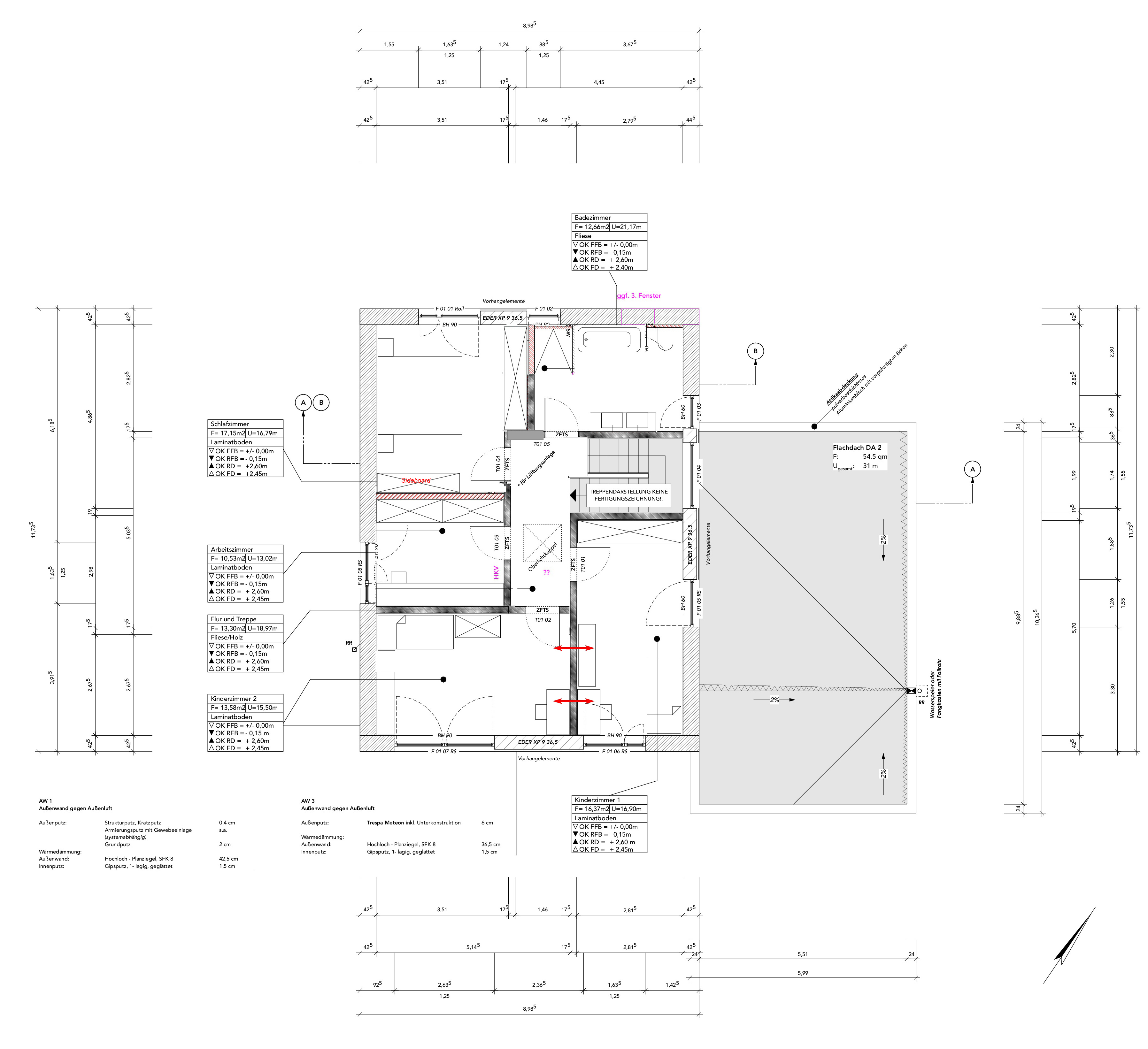
Ich find es nicht schlecht. Schade, dass die Kinderzimmer so unterschiedlich sind. Das würde mich sehr ärgern. Das T im Bad finde ich in diesem Fall echt ungeeignet. Erzeugt Enge und wirkt ungemütlich. Verschwendet auch qm. Das Schlafzimmer find ich auch etwas zu groß im Verhältnis zu seiner Nutzung. Ich hatte ja schon mal einen ähnlichen Vorschlag gemacht:

Grundriss eines Hauses mit Schlafzimmer, Bad, Küche, Wohnzimmer, Flur und Garage, Maßangaben.


Ich würde das Bad ein wenig kleiner machen, den schrank im Schlafzimmer, versetzen und alles wandert nach planoben. Am Ende schiebe ich die Wand zwischen den Kinderzimmer so lange hin und her, bis sie gleich groß sind.

Im EG find ich die gesamte Nutzung unter der Treppe fragwürdig:
1. Tür von der Garage macht die Nutzung geradezu unmöglich. Gesamte Stellfläche geht flöten. Die zusätzliche Wand, wo diese Tür anschlägt verhindert die Nutzung des Raumes dahinter. Weg damit!
2. Ein Ausguss in diesem Minizimmer? Wozu? 1m daneben ist die Küche mit der Spüle.
3. Der HKV nimmt den letzten Rest an Stellfläche. Klar kann man was davor stellen. Aber wehe, man muss dann mal ran.

Das flöge bei mir ALLES raus. Es bleibt ein nackter Raum, wo ich vermutlich einen schönen fetten Extra-Kühlschrank stellen würde und der Rest voll mit regalen. Unter dem Podest der Treppe kann noch sowas wie Pappenmüll oder Glas stehen.
 
kaho674

kaho674

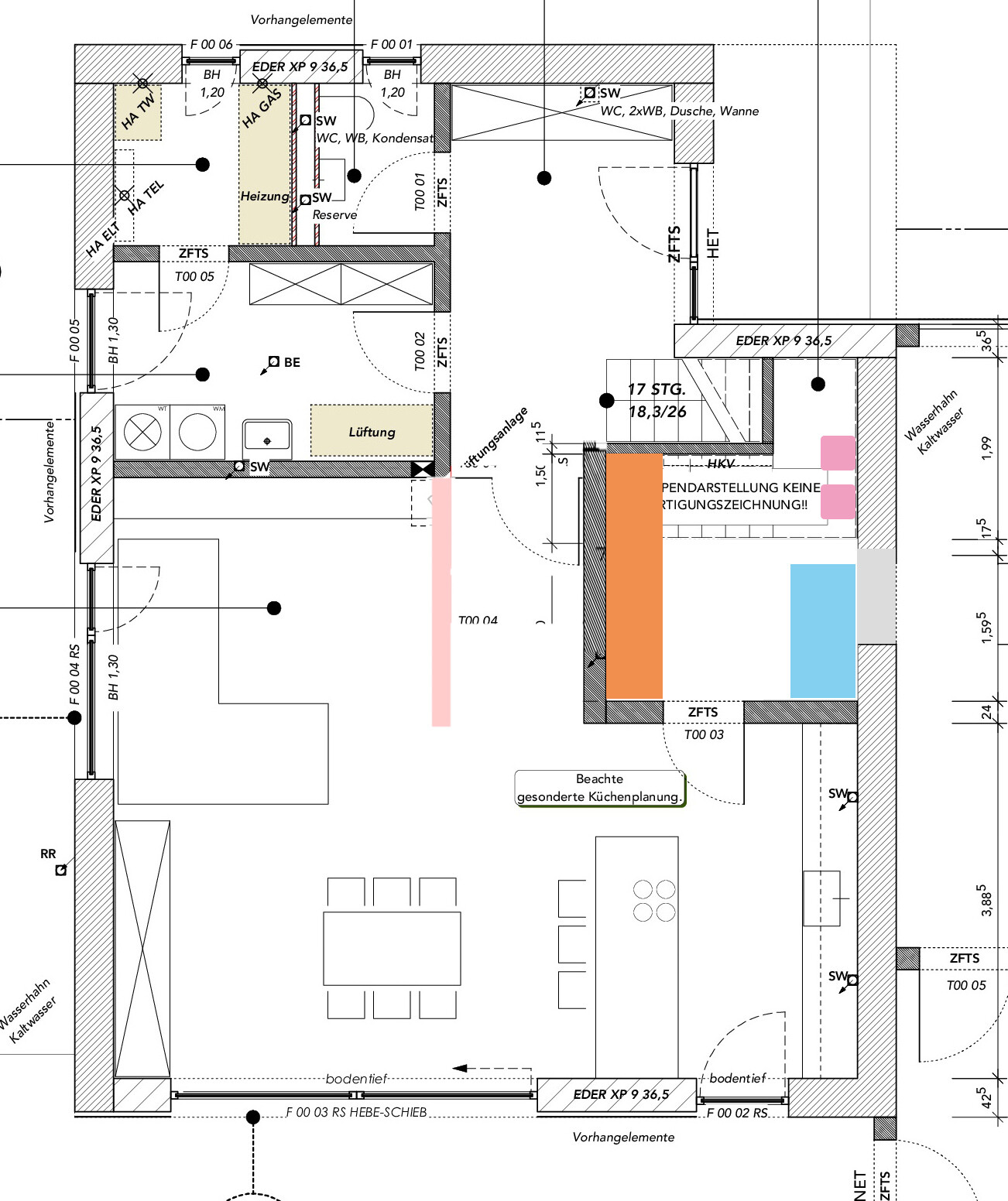
Die Trennwand zum WZ ist an sich Quark. Weiß nicht, ob es das wirklich gemütlicher macht? Ich seh eher, dass es nur enger wird.


Grundriss eines Wohn- und Küchenbereichs mit Esstisch, Küchenzeile und farblich markierten Bereichen


Sorry, am Ende lande ich wieder bei meinem eigenen Entwurf und versetze die Küche an den WZ-Eingang.
 
Y

ypg

@katja,
Was dem einen der fette Kühlschrank, ist dem anderen das zweite Waschbecken (Karsten schrubbt dort Fisch und Kartoffeln @Nordlys)
Allerdings hast Du natürlich recht.
Nur steht diese Wand an der Treppe/Speis nicht einfach nur so da: sie hält die obere Wand. Noch dazu steht ZFTS mit Sicherheit für einen Stahlträger, das macht statisch Sinn.
Insofern plädiere ich auch eine Verkürzung dieser Mauer


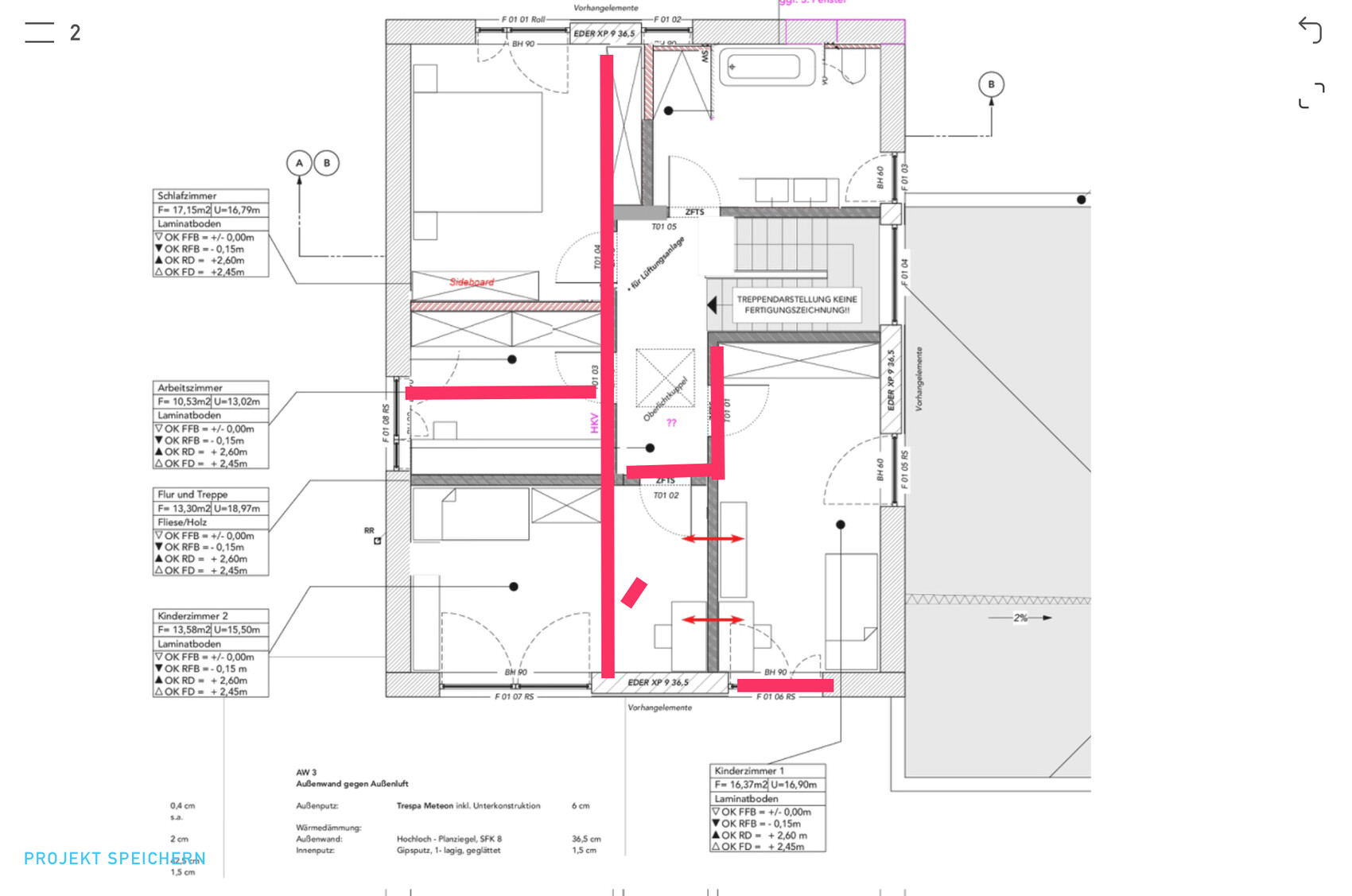
Hier mal ein Vorschlag für das OG mit zwei gleichwertigen Kinderzimmern, dafür Elterntrakt im Osten.
Grundriss eines Hauses mit Schlafzimmer, Arbeitszimmer, Flur, Treppen; rote Markierungen zeigen Wege.


Sorry, am Ende lande ich wieder bei meinem eigenen Entwurf und versetze die Küche an den WZ-Eingang.
Ich wohl auch: WZ und Küche tauschen bei Katjas Vorschlag. Tür der Speis kann auch nach rechts wandern
 
kaho674

kaho674

Was dem einen der fette Kühlschrank, ist dem anderen das zweite Waschbecken (Karsten schrubbt dort Fisch und Kartoffeln @Nordlys)
Boa, der soll sich raus scheren mit dem Stinkefisch! Das gäb's bei mir nich!
Nur steht diese Wand an der Treppe/Speis nicht einfach nur so da: sie hält die obere Wand. Noch dazu steht ZFTS mit Sicherheit für einen Stahlträger, das macht statisch Sinn.
Ach Mist, an der Statik wollen wir mal lieber nicht rütteln.

Hier mal ein Vorschlag für das OG mit zwei gleichwertigen Kinderzimmern, dafür Elterntrakt im Osten.
Du hast das Büro gekillt, oder? Ich glaub, das braucht's aber.
 
Y

ypg

Du hast das Büro gekillt, oder? Ich glaub, das braucht's aber.
Ach, lach, ich dachte, dass wäre eine Ankleide (hab mich schon gewundert, wo der PC hinkommt und an Laptop mit Drucker in der Speis gedacht )

Na, dann das Zimmer an der Treppe oben vom Schlafzimmer abteilen. Ich weiß nicht, ob die Maße hinkommen, wär aber eine Idee... @kaho674: zeichne doch mal, mein iPad bringt sowas nicht. Ich hab noch kein vernünftiges Programm gefunden.
 
Zuletzt aktualisiert 21.12.2025
Im Forum Grundrissplanung / Grundstücksplanung gibt es 2554 Themen mit insgesamt 88545 Beiträgen


Ähnliche Themen zu Grundrissplanung / Entwurf Einfamilienhaus Flachdach mit Doppelgarage
Nr.ErgebnisBeiträge
1Größe vom Schlafzimmer und Kinderzimmer - Seite 238
2Ankleide/Schlafzimmer Problem - Grundrissdiskussion 25
3Grundrissplanung Einfamilienhaus (Stadtvilla) ca.140m² (3 Kinderzimmer) 42
4Neubau Einfamilienhaus 160-170qm, 3 Kinderzimmer 39
5Grundriss Einfamilienhaus ohne Keller/Schlafzimmer und Bad im EG - Seite 427
6 2 Vollgeschosse, Durchgang Garage, Hauswirtschaftsraum unter Treppe 25
7Grundrissplanung Hanghaus mit 5 Kinderzimmer - Seite 26370
8Grundriss-Ideen, 2,5-geschossig 31
9Kinderzimmer und Schlafzimmer - Welche Größe ist zu empfehlen? 56
10Schallschutztür Schlafzimmer / Kinderzimmer 23
11Grundrissfrage, Treppe, Fenster, Ausrichtung 12
12Grundrissfrage, Garage, Treppe - Seite 533
13Esstisch in einer kleinen Küche - Seite 449
14Stadtvilla mit gerader Treppe, offene moderne Bauweise, 140m² - Seite 218
15Grundriss EG Wohnen / Küche - Trennwand - Seite 219
16Grundriss Einfamilienhaus ohne Keller, 3 Kinderzimmer und Büro 18
17Keine Fußbodenheizung im Schlafzimmer? - Seite 322
18Grundriss Bungalow 150qm geschlossene Küche, überdachte Terrasse 40
19Einfamilienhaus ~190qm, drei Kinderzimmer, ohne Keller - Feedback wäre mega - Seite 219
20Grundriss 3 Kinderzimmer Einfamilienhaus - Potenziale? 43

Oben