Wie bereits in einem anderen Thema diskutiert, plane ich derzeit ein Einfamilienhaus. Folgende Angaben kann ich derzeit machen:
Bebauungsplan/Einschränkungen
Größe des Grundstücks: ca. 700m2
Hang: nein
Randbebauung: Doppelcarport direkt an Nachbargrundstück
Anzahl Stellplatz: 2
Geschossigkeit: 1,5
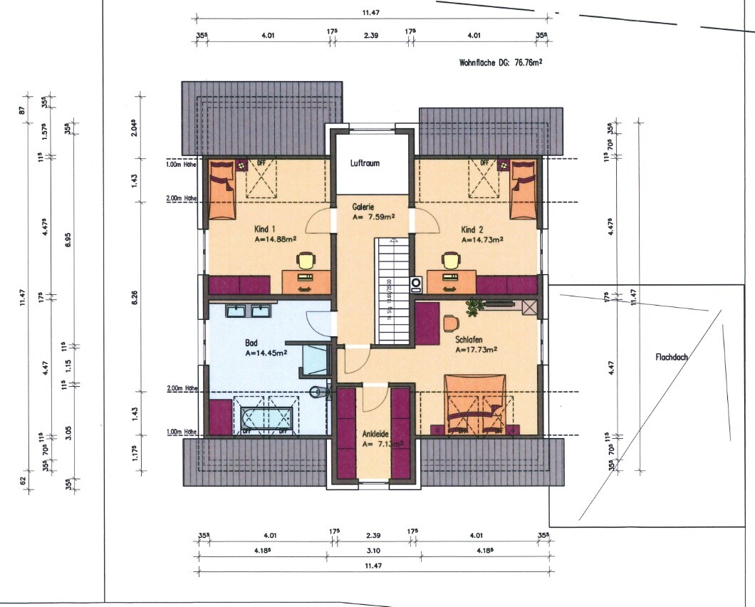
Dachform: Satteldach, 35° - 38°
Anforderungen der Bauherren
Stilrichtung, Dachform, Gebäudetyp: Modern, Satteldach
Keller, Geschosse: Kein Keller, 1,5 Geschosse
Größe: 190m2
Anzahl der Personen, Alter: 2 Personen, 31 Jahre
Büro: Familiennutzung oder Homeoffice? Familiennutzung
Schlafgäste pro Jahr: 2
offene oder geschlossene Architektur: offene Architektur!
konservativ oder moderne Bauweise: moderne Bauweise
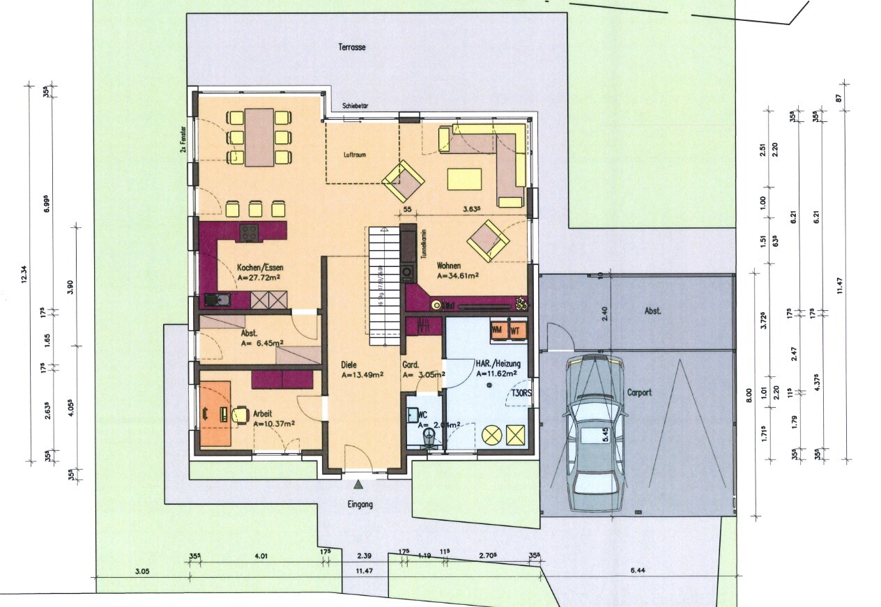
offene Küche, Kochinsel: offene Küche mit Kochinsel
Anzahl Essplätze: 4-6
Kamin: Ja, Tunnelkamin als Raumtrenner zwischen Wohn- und Essbereich
Musik/Stereowand: Ja im Wohnzimmer
Balkon, Dachterrasse: Nein
Garage, Carport: Carport
Nutzgarten, Treibhaus: Nein
Hausentwurf
Von wem stammt die Planung: Architekt
Was gefällt besonders? Offene und moderne Bauweise, Galerie, Kamin
Was gefällt nicht? Evt. zu groß ???
Preisschätzung lt Architekt/Planer: 270.000 €
Persönliches Preislimit fürs Haus, inkl Ausstattung: 300.000
favorisierte Heiztechnik: noch nicht geklärt
Wenn Ihr verzichten müsst, auf welche Details/Ausbauten
-könnt Ihr verzichten:
-könnt Ihr nicht verzichten: Kamin, offen gestaltete Bauweise, Galerie, viele Fenster

Bebauungsplan/Einschränkungen
Größe des Grundstücks: ca. 700m2
Hang: nein
Randbebauung: Doppelcarport direkt an Nachbargrundstück
Anzahl Stellplatz: 2
Geschossigkeit: 1,5
Dachform: Satteldach, 35° - 38°
Anforderungen der Bauherren
Stilrichtung, Dachform, Gebäudetyp: Modern, Satteldach
Keller, Geschosse: Kein Keller, 1,5 Geschosse
Größe: 190m2
Anzahl der Personen, Alter: 2 Personen, 31 Jahre
Büro: Familiennutzung oder Homeoffice? Familiennutzung
Schlafgäste pro Jahr: 2
offene oder geschlossene Architektur: offene Architektur!
konservativ oder moderne Bauweise: moderne Bauweise
offene Küche, Kochinsel: offene Küche mit Kochinsel
Anzahl Essplätze: 4-6
Kamin: Ja, Tunnelkamin als Raumtrenner zwischen Wohn- und Essbereich
Musik/Stereowand: Ja im Wohnzimmer
Balkon, Dachterrasse: Nein
Garage, Carport: Carport
Nutzgarten, Treibhaus: Nein
Hausentwurf
Von wem stammt die Planung: Architekt
Was gefällt besonders? Offene und moderne Bauweise, Galerie, Kamin
Was gefällt nicht? Evt. zu groß ???
Preisschätzung lt Architekt/Planer: 270.000 €
Persönliches Preislimit fürs Haus, inkl Ausstattung: 300.000
favorisierte Heiztechnik: noch nicht geklärt
Wenn Ihr verzichten müsst, auf welche Details/Ausbauten
-könnt Ihr verzichten:
-könnt Ihr nicht verzichten: Kamin, offen gestaltete Bauweise, Galerie, viele Fenster
Noch etwas: wir haben die gleichen qm und ja es ist eine gewisse Belastung den Laden sauber zu halten 😀
Grad die Fenster würde ich nicht putzen wollen.
270 T€ sehe ich auch eher als nicht realistisch.
Deine Fensterfront sieht auch eher kostspielig aus... 2 Zwerchhäuser (?)... nee ich würde auch eher von 330 T€ + Baunebenkosten + Carport ausgehen.
Grad die Fenster würde ich nicht putzen wollen.
270 T€ sehe ich auch eher als nicht realistisch.
Deine Fensterfront sieht auch eher kostspielig aus... 2 Zwerchhäuser (?)... nee ich würde auch eher von 330 T€ + Baunebenkosten + Carport ausgehen.
B
Bauexperte29.10.16 09:47Curly schrieb:
bei uns hier im Rhein-Main-Gebiet würde man dieses Haus definitiv nicht für 270000 Euro bekommen. Ich würde noch mal prüfen, ob das bei Euch zu diesem Preis machbar wäre oder ob sich der Architekt nicht total verschätzt.Das kommt in BI schon hin; allerdings möchte ich meinen, daß die Kosten Architektur, wie alle typischen Baunebenkosten noch on top zu rechnen sind.Grüße, Bauexperte
Danke für eure Meinungen! Ihr gehe auch von etwas höheren Kosten aus. Derzeit warte ich auf Angebote der einzelnen Gewerke und dann schauen wir mal was dabei raus kommt. Gerade schaue ich auch gemeinsam mit dem Architekten wo man noch etwas Wohnfläche einsparen kann. 190 m2 finde ich schon sehr viel. Mein Wunsch wäre so ca. 160 m2. Der Architekt ist sehr aktiv in unserer Umgebung und baut vornehmlich größere Häuser für mehrere Familien. Er sagte mir, dass er mit vielen Partnern zusammen arbeitet und daher mit einer attraktiven Preis-/Leistungsgestaltung seitens seiner Partner rechnet. In wie weit sich dass nachher bewahrheitet, lasse ich vorerst mal dahingestellt....
Ähnliche Themen