Servus Hausbau-Forum,
nach einigen Monaten und Iterationen haben wir einen Entwurf für unser Einfamilienhaus und sind eigentlich ganz zufrieden. Aber jetzt sind wir sehr gespannt auf Eure konstruktiven Rückmeldungen! Vielen Dank im Voraus.
Bebauungsplan/Einschränkungen
Größe des Grundstücks | 540qm, relativ quadratisch
Eckgrundstück, kein Hang
Anzahl Stellplatz | 1
Dachform | alle klassischen Dachformen möglich
Maximale Höhen/Begrenzungen| nicht relevant, diverse Mehrfamilienhäuser in Nachbarschaft (Nachbarschaftsbebauung)
Anforderungen der Bauherren
Stilrichtung, Dachform, Gebäudetyp | Satteldach, ggf. Dreigiebel (nicht abgebildet)
Keller, Geschosse | EG, ausgebautes DG, Wohnkeller
Anzahl der Personen, Alter| Zielgröße: 2 Eltern, 2 Kinder (derzeit ein Einjähriger)
Raumbedarf im EG, OG | Ca. 80-90qm für jeweils EG und OG
Büro | 1,5 Büros notwendig für Homeoffice
Schlafgäste pro Jahr | Einige Familie im Ausland, daher relevant
offene oder geschlossene Architektur | eher offen, jedoch mit entsprechendem Schallschutz in die Schlafräume (abends Kammermusik unten, während Kinder oben schlafen)
konservativ oder moderne Bauweise | dazwischen, ein bisschen besonders soll es sein
offene Küche, Kochinsel | große offene Küche mit Frühstücksbar
Anzahl Essplätze | 2x3m Tisch ist vorhanden, ausziehbar auf 2x4m
Kamin | in Diskussion, eher nein
Musik/Stereowand | nein
Balkon, Dachterrasse | nein
Garage, Carport | Carport
Nutzgarten, Treibhaus | Garten, Nussbaum, Fichte und Esche vorhanden
Hausentwurf
Von wem stammt die Planung? | Architektenentwurf in der n-ten Iteration mit vielen eigenen Ideen
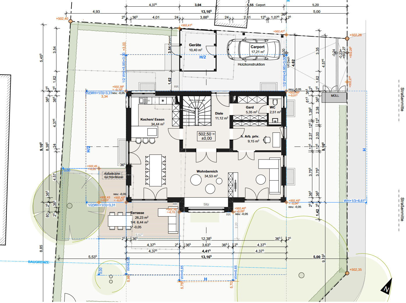
Was gefällt besonders? Warum? | Treppe getrennt vom Wohnraum (Akustik), großer Wohnraum mit Sitzfenster (party-tauglich), Terrasse als Verlängerung des Essbereichs (für warme Sommerabende), Elternbereich im OG, keine Wärmepumpe außen (aus Respekt)
Was gefällt nicht? Warum? | Außenansicht Haus noch nicht aus jedem Winkel "attraktiv" - Ideen?, Alle Schlafzimmer nebeneinander
Preisschätzung lt Architekt/Planer: reine Hauskosten ab 0,8 Mio nach oben offen
Preislimit Haus, inkl Ausstattung.: 1,2 Mio von Abriss bis Küche/Einbaumöbel/Gartenanlage
favorisierte Heiztechnik: Luft-Wasser-Wärmepumpe, Erdkörbe (?)
Wenn Ihr verzichten müsst, auf welche Details/Ausbauten
-könnt Ihr verzichten: Viel wurde bereits wegrationalisiert (Kamin, Außenküche, DG)
-könnt Ihr nicht verzichten: Fokus Gartengröße
Warum ist der Entwurf so geworden, wie er jetzt ist?
Ein großzügiges Familiendomizil mit Privatsphäre, also großen Kinderzimmern und Rückzugsraum für Eltern, große Bedeutung des Gartens mit Bestandsbäumen, eine Abendterrasse im Nordwesten, ansonsten Fokus auf Südostgarten. Falls man sich innen aufhält, viel Fensterfläche in Richtung Südost. Dieser wird mit blickdichten Hecken eingefasst, die Straßen im Süden/Osten sind extrem wenig befahren, daher wird das ein schöner, privater und ruhiger Garten im Südosten.
Was ist die wichtigste/grundlegende Frage zum Grundriss in 130 Zeichen zusammengefasst?







Viele Grüße
fabreit
nach einigen Monaten und Iterationen haben wir einen Entwurf für unser Einfamilienhaus und sind eigentlich ganz zufrieden. Aber jetzt sind wir sehr gespannt auf Eure konstruktiven Rückmeldungen! Vielen Dank im Voraus.
Bebauungsplan/Einschränkungen
Größe des Grundstücks | 540qm, relativ quadratisch
Eckgrundstück, kein Hang
Anzahl Stellplatz | 1
Dachform | alle klassischen Dachformen möglich
Maximale Höhen/Begrenzungen| nicht relevant, diverse Mehrfamilienhäuser in Nachbarschaft (Nachbarschaftsbebauung)
Anforderungen der Bauherren
Stilrichtung, Dachform, Gebäudetyp | Satteldach, ggf. Dreigiebel (nicht abgebildet)
Keller, Geschosse | EG, ausgebautes DG, Wohnkeller
Anzahl der Personen, Alter| Zielgröße: 2 Eltern, 2 Kinder (derzeit ein Einjähriger)
Raumbedarf im EG, OG | Ca. 80-90qm für jeweils EG und OG
Büro | 1,5 Büros notwendig für Homeoffice
Schlafgäste pro Jahr | Einige Familie im Ausland, daher relevant
offene oder geschlossene Architektur | eher offen, jedoch mit entsprechendem Schallschutz in die Schlafräume (abends Kammermusik unten, während Kinder oben schlafen)
konservativ oder moderne Bauweise | dazwischen, ein bisschen besonders soll es sein
offene Küche, Kochinsel | große offene Küche mit Frühstücksbar
Anzahl Essplätze | 2x3m Tisch ist vorhanden, ausziehbar auf 2x4m
Kamin | in Diskussion, eher nein
Musik/Stereowand | nein
Balkon, Dachterrasse | nein
Garage, Carport | Carport
Nutzgarten, Treibhaus | Garten, Nussbaum, Fichte und Esche vorhanden
Hausentwurf
Von wem stammt die Planung? | Architektenentwurf in der n-ten Iteration mit vielen eigenen Ideen
Was gefällt besonders? Warum? | Treppe getrennt vom Wohnraum (Akustik), großer Wohnraum mit Sitzfenster (party-tauglich), Terrasse als Verlängerung des Essbereichs (für warme Sommerabende), Elternbereich im OG, keine Wärmepumpe außen (aus Respekt)
Was gefällt nicht? Warum? | Außenansicht Haus noch nicht aus jedem Winkel "attraktiv" - Ideen?, Alle Schlafzimmer nebeneinander
Preisschätzung lt Architekt/Planer: reine Hauskosten ab 0,8 Mio nach oben offen
Preislimit Haus, inkl Ausstattung.: 1,2 Mio von Abriss bis Küche/Einbaumöbel/Gartenanlage
favorisierte Heiztechnik: Luft-Wasser-Wärmepumpe, Erdkörbe (?)
Wenn Ihr verzichten müsst, auf welche Details/Ausbauten
-könnt Ihr verzichten: Viel wurde bereits wegrationalisiert (Kamin, Außenküche, DG)
-könnt Ihr nicht verzichten: Fokus Gartengröße
Warum ist der Entwurf so geworden, wie er jetzt ist?
Ein großzügiges Familiendomizil mit Privatsphäre, also großen Kinderzimmern und Rückzugsraum für Eltern, große Bedeutung des Gartens mit Bestandsbäumen, eine Abendterrasse im Nordwesten, ansonsten Fokus auf Südostgarten. Falls man sich innen aufhält, viel Fensterfläche in Richtung Südost. Dieser wird mit blickdichten Hecken eingefasst, die Straßen im Süden/Osten sind extrem wenig befahren, daher wird das ein schöner, privater und ruhiger Garten im Südosten.
Was ist die wichtigste/grundlegende Frage zum Grundriss in 130 Zeichen zusammengefasst?
- Insbesondere Ideen zur Außenansicht: Wir wollen von außen ein "schönes Haus" bauen, nicht nur ein funktionales.
- Wie kann man am besten den Sonnenstand/Schattenwurf der Nachbarhäuser berechnen?
- Seht Ihr No-Gos incl. Begründung und Ideen?
Viele Grüße
fabreit
fabreit schrieb:
Insbesondere Ideen zur Außenansicht: Wir wollen von außen ein "schönes Haus" bauen, nicht nur ein funktionales.Es ist ein schönes Haus!fabreit schrieb:
Seht Ihr No-Gos incl. Begründung und Ideen?Nein, meinen Segen hast Du… habe ich in 10 Jahren Forumsaktivität vielleicht 5 mal gesagt. 😎Es ist alles schön durchdacht. Einiges wäre nicht meins, aber das ist egal: es ist gut so, wie es ist. Außen und innen. Meckern ist hier einfach nicht angebracht.
Bei der Allraumgröße im EG vielleicht überlegen, ob man die geplante Raumhöhe von 2,53m noch etwas erhöht. Man muss dabei natürlich die Treppe im Blick haben.
Die beiden Festverglasungen jeweils am Hauseck hinter der Couch und neben den Esstisch würde ich mir evtl. sparen.
Wenn ich die großen Fensterflächen vor allem richtig Süden sehe, dann stelle ich die Frage wir ihr die Verschattung geplant habt?
Die beiden Festverglasungen jeweils am Hauseck hinter der Couch und neben den Esstisch würde ich mir evtl. sparen.
Wenn ich die großen Fensterflächen vor allem richtig Süden sehe, dann stelle ich die Frage wir ihr die Verschattung geplant habt?
fabreit schrieb:
nach einigen Monaten und Iterationen haben wir einen Entwurf für unser Einfamilienhaus und sind eigentlich ganz zufrieden. Aber jetzt sind wir sehr gespannt auf Eure konstruktiven Rückmeldungen!Ich denke, das "eigentlich" kann man auch streichen. Mich hätte der Werdegang ebenso interessiert, nicht nur das Ergebnis.https://www.instagram.com/11antgmxde/
https://www.linkedin.com/company/bauen-jetzt/
fabreit schrieb:
keine Wärmepumpe außen (aus Respekt)Magna cum laude !fabreit schrieb:
Satteldach, ggf. Dreigiebel (nicht abgebildet)Ich würde es so lassen, also ohne Wiederkehr / "Kapitänsgiebel".https://www.instagram.com/11antgmxde/
https://www.linkedin.com/company/bauen-jetzt/
B
Bertram10016.06.23 01:03Ich finde den Eingang + Garderobe nicht so praktisch für eine Familie. Wenn ihr beide Seiten der Garderobe mit Schränken bestückt, dann ist ungefähr 100cm Platz dazwischen. Das ist eng für zwei Erwachsene, aber nicht unmöglich. Mit Kindern wird es nervig, Jacken und Schuhe da rein zu puzzeln.
Ich weiss auf die Schnelle auch nicht wie, aber ich würde auf jeden Fall mehr Bewegungsfläche vor der Abstellfläfache schaffen. Eventuell WC Raum drehen?
Ich weiss auf die Schnelle auch nicht wie, aber ich würde auf jeden Fall mehr Bewegungsfläche vor der Abstellfläfache schaffen. Eventuell WC Raum drehen?
Ähnliche Themen