Grundrissplanung: Badezimmer Dusche

4,40 Stern(e) 9 Votes
Zuletzt aktualisiert 27.12.2025
Sie befinden sich auf der Seite 2 der Diskussion zum Thema: Grundrissplanung: Badezimmer Dusche
>> Zum 1. Beitrag <<

4

464!RDO

Hallo Zusammen,
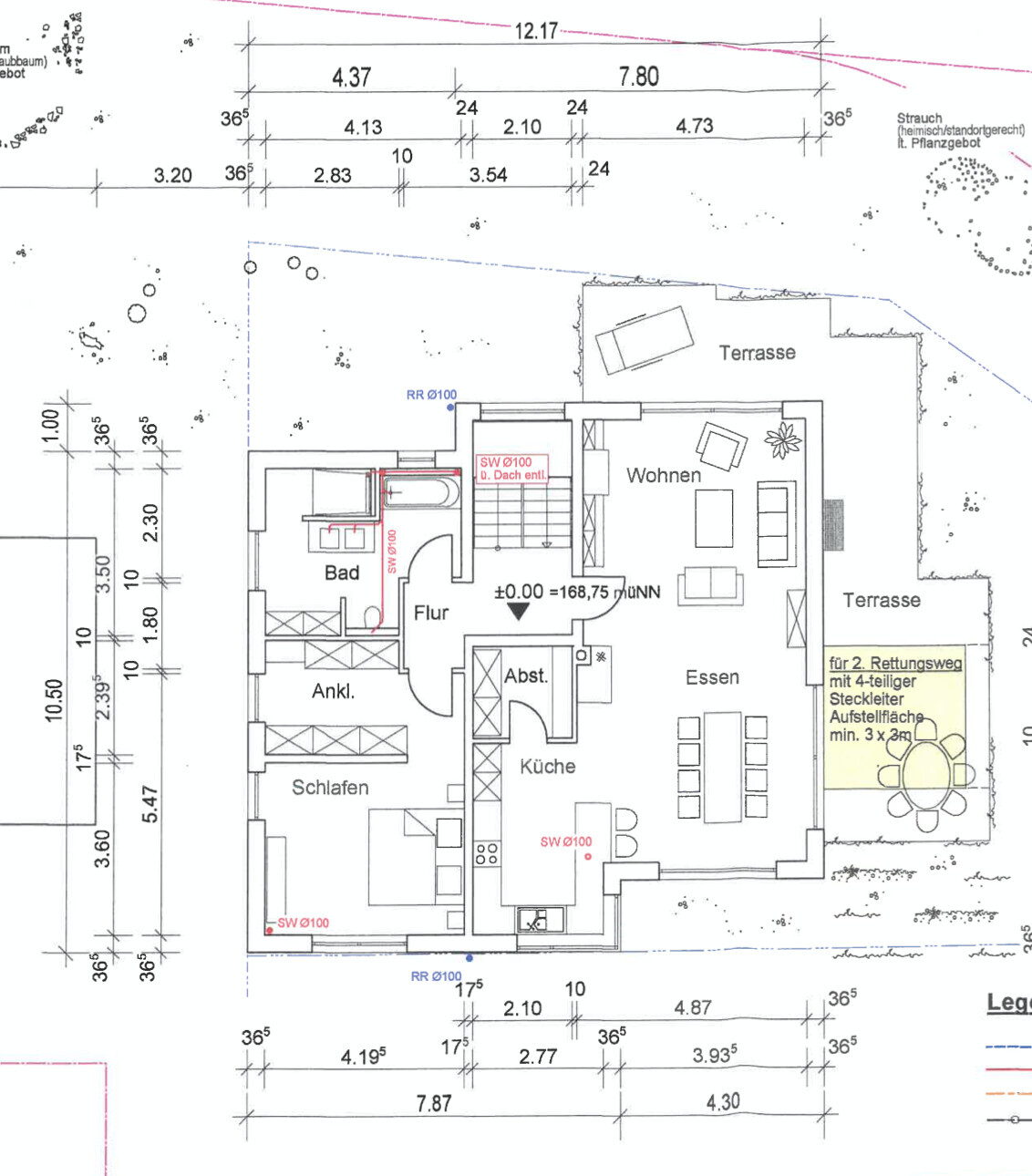
ich hole de Thread nach längerer Zeit wieder nach oben und liefere die aktualisierten Grundrisse nach, dieses mal mit Maße
Wir haben für das Badezimmer eine Lösung gefunden, würde mich über Feedback freuen bzw. natürlich auch über Änderungsvorschläge.

Grundriss eines Wohn- und Essbereichs mit Küche, Flur, Bad, Schlaf- und Ankleidezimmer.


Grundriss eines Hauses mit Wohnen, Essen, Küche, Bad, Schlafen und Terrasse.
 
J

j.bautsch

finde ich gar nicht mal schlecht, aber ne 1,7m Badewanne käme mir nie und nimmer in nen Neubau. wir haben jetzt die gleiche Länge und ich muss mich immer entschieden, entweder oberkörper im Wasser oder Beine. viel zu kurz und ich bin "nur" 178cm lang, mein Mann mit 195cm sieht aus als würde er in nem bottich für Kinder hocken....
 
4

464!RDO

Na dann helfe ich mal auf die Sprünge, auch wenn ich (wie zu Beginn erläutert) in diesem Ausnahmefall darauf verzichtet habe, sämtliche Details dazu zu schreiben. Ich brauchte einen Tipp fürs Badezimmer und wollte Euch unsere derzeitige Lösung nicht vorenthalten, die wir durch ein paar Bilder auf Instagram gefunden hatten. Hierfür wären die folgenden Daten nicht notwendig gewesen:

- Grundstück 825 m2
- Hanglage (von unten: Eingang KG, EG zur Straße/Eingang Schlafzimmer/Küche)
- Grundflächenzahl = 206 m2
- Geschossflächenzahl = 330 m2
- Baufenster (s. Anhang)
- Dachform = Satteldach
- Geschosse = Keller, EG, 1.OG --> 2 Vollgeschosse gestattet
- Personen = 4 Personen (31, 30, 3 ,1)
- Raumbedarf = 2 Keller(Hobby/Büro)-Räume, 2 Kinderzimmer, 1 Gästezimmer
- offene Küche
- Essplätze 8-10
- Kamin = ja
- kein Balkon, keine Dachterrasse
- Großraumgarage
- weitere Wünsche: Speisekammer, Ankleide, kleines Kinderbad DG
- Planung stammt vom Architekten
- Preis = 610.000 € (Einzugsfertig, mit Garage, ohne Grundstück und Außenanlagen) Ein paar Aufpreise werden noch dazu kommen (Einbauspots im gesamten Haus, Klima DG / Wohnbereich, diverse Kleinigkeiten. Daher final mit 650.000 am Limit).
- Preislimit nur Haus = 650.000 €. Gesamt (ohne Grundstück) = 750.000 €*
*Anmerkung: 100.000 für Terrasse, Hof, Befestigung Hanglage/Begradigung, Pool
- Heiztechnik: Luft-Wasser-Wärmepumpe
- Verzicht nicht möglich (das was in den Plänen derzeit ist muss mit dabei sein)
- Entwurf wurde in Zusammenarbeit mit dem Architekten erarbeitet. Es dauerte ca. 6 Monate bis wir ein für uns wünschenswertes Ergebnis hatten. Es flossen auch Meinungen / Ideen von Fertighausanbietern mit ein, unsere eigene Vorstellungen vor Beginn der Angebote usw. Auch unsere derzeitige Wohnsituation floss hier natürlich mit ein.

Die grundlegende Frage (s. Post Nr. 1) war, wie wir die gewünschte Dusche realisieren können. Ich bin auch dankbar, wenn die Sache mit dem Schlafzimmer noch einmal aufgegriffen werden würde. Wir haben derzeit ein sehr kleines Schlafzimmer, bei dem auch sofort der Blick aufs Bett fällt, wenn man in en Raum kommt. Daher verstehe ich den Kritikpunkt nicht ganz. Mehr Kontext ist erwünscht und gerne auch den passenden Lösungsvorschlag dazu.

Viele Grüße
 
kbt09

kbt09

Es geht nicht um den Blick aufs Bett, wenn man reinkommt, sondern darum, dass man quasi im Bett mit dem Kopf neben der Tür liegt. Und das ist immer viel ungemütlicher als wenn man im Bett liegt und von dort Richtung Tür blickt.
Und daher das Kopfteil vom Bett nach planlinks oder sogar nach planunten und dann auf der Wand mit dem Kopfteil entweder kein Fenster oder 2 eher schmale Fenster rechts und links vom Bett. Planunten hat auch den Vorteil, dass rechts und links vom Bett jeweils wirklich ausreichend Platz ist. Planlinks könnte dann auch ein breiteres Fenster. Möglichst mit mind. 60/70 cm Abstand von der Trennwand zur Ankleide.

Wenn Wanne, dann würde ich da auch mehr Platz einplanen, dafür Dusche etwas kürzer. Sehr eng erscheint der Durchgang am Waschtisch.
WC und Schrankstauraum würde ich tauschen und keine große Trennwand dazwischen setzen.

Brüstungshöhe über der Badewanne würde ich anpassen. 150 cm ist doch Mist, wenn man schon an der Wanne ein Fenster hat, dann vielleicht sogar so, dass man aus der Wanne raussehen kann. Lästig fürs Fensterputzen ist die Position so oder so.
 
kaho674

kaho674

Sieht für mich nach Krampf aus.
Diese Engstelle ist doch bescheiden:


Grundriss eines Badezimmers mit Badewanne, Waschbecken und Tür zum Flur.


Zudem betritt man das Bad und landet in der Badewanne. Um dies zu vermeiden, muss man nahezu eine 180° Wende hinlegen und sich durch die Engstelle quetschen.
Raummaße stehen ja hier auch nicht dran. Oder kann irgend jemand den Raum nachzeichnen anhand der Brüstungshöhe und der Badewannenbreite?

Das Bett ist so völlig indiskutabel. Ich hoffe, Ihr legt auch Steckdosen auf die andere Seite, damit ihr es umstellen könnt, wenn Ihr es seht und die Einsicht kommt.

Außerdem würde ich die WZ-Tür anders herum aufschlagen lassen - nur so nebenbei.
 
Zuletzt aktualisiert 27.12.2025
Im Forum Grundrissplanung / Grundstücksplanung gibt es 2557 Themen mit insgesamt 88609 Beiträgen


Ähnliche Themen zu Grundrissplanung: Badezimmer Dusche
Nr.ErgebnisBeiträge
1Grundriss Neubau Einfamilienhaus: Fenster/Türen/Innenwände Größe/Anordnung ok? - Seite 220
2Eingang Grundriss welche Treppenvariante - Seite 231
3Schmales Grundstück Max. Möglichkeiten Einfamilienhaus mit niedrigen Drempel 41
4Idee Schlafzimmer - Bett / Schrank Anordnung 32
5Beratung: Neues Badezimmer, 5,9qm mit Badewanne 48
6Grundstück mit Hanglage - Neubaugebiet 18
7Gestaltung Schlafzimmer 35
8Grundriss Stadtvilla / Anordnung Fenster, Feedback erwünscht - Seite 216
9200m2 Einfamilienhaus für 4-5 Personen ohne Keller auf schmalem Grundstück - Seite 467
10Badezimmer Planung / Feedback erwünscht !!! 17
11Grundriss Haus / Grundstück 28
12Schmales Grundstück mit Grenzbebauung - Diverse Fragen / Probleme 26
13Bungalow 135qm: Grundriss + Fenster - Seite 10104
14OG Stadtville optimieren. Fenster Bodentief - Seite 16104
15Einfamilienhaus 160m2 mit Keller, 500m2 Grundstück - Seite 8108
16Grundriss-Review Einfamilienhaus mit Keller auf leichter Hanglage 35
17Optimierung 150m² Einfamilienhaus @ 470m² & 19m schmalem Grundstück - Seite 320
18Kaufberatung Grundstück - Nachbarschaft von Tagespflege - Seite 447
19Einfamilienhaus (10x8,8qm²) auf 437qm² Grundstück in München 48
20Grundstück Einfamilienhaus C630 Heinz von Heiden am Standort Sachsen 64

Oben