ᐅ Grundriss und Ansichten zu Einfamilienhaus mit ca. 160 m² in Hanglage
Erstellt am: 06.12.22 21:01
K
Karl-JuppK
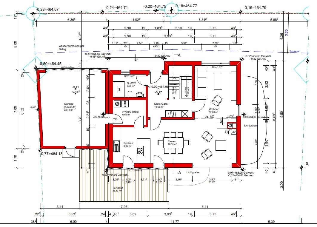
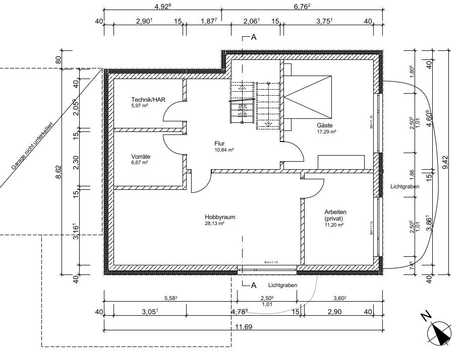
Karl-Jupp06.12.22 21:01Liebe Forumsmitglieder wir möchten heute unseren Grundriss vorstellen und hoffen auf positive Rückmeldungen und Anregungen, was man noch verbessern könnte. Wir wünschen uns grundsätzlich ein helles Haus mit 4 Schlafzimmern im Obergeschoss und einem Wohnraumkeller, der 2 Büroräume beherbergen soll. Den Keller sehen wir allein schon wegen der Hanglage. Im Erdgeschoss ergibt sich dann ein großzügiger Wohn- und Kochbereich. Wir haben nun die ersten Pläne des Architekten erhalten und möchten diese mit Eurer Hilfe möglichst noch optimieren. Die Möblierungen sind nur beispielhaft. Diese gilt es noch zu klären. Hinweis: Das als Büro bezeichnete Zimmer im OG soll Kind 3 werden. Das Gästezimmer im Keller soll kombiniert werden zu Gäste/Büro. Die Gestaltung der Außenbereiche wie Terrasse und Verlauf der Grundstücksoberkante neu muss noch detaillierter geplant werden.
Bebauungsplan/Einschränkungen
Größe des Grundstücks: 702 qm
Hang: ja, an Straße ca. 1,7 m höher als an Grundstückrückseite
Grundflächenzahl: 0,35
Geschossflächenzahl: keine
Baufenster, Baulinie und -grenze: Garage mind. 5 Meter zur Straße, Wohnhaus mind. 3,5 m
Anzahl Stellplatz: keine Vorgabe
Geschossigkeit: 2
Dachform: Sattel-, Walm-, Zeltdach 22° - 43°
Ausrichtung: Südwest
Anforderungen der Bauherren
Dachform: möglichst Satteldach
Keller, Geschosse: Keller ja, möglichst 2 Vollgeschosse
Anzahl der Personen, Alter: 4 (35, 33, 4,2)
Raumbedarf im EG, OG: im OG möglichst 3 Kinderzimmer
Büro: 2 Homeoffice-Plätze sind gewünscht.
Schlafgäste pro Jahr: ca. 10x pro Jahr Großeltern => daher Gästezimmer
konservativ oder moderne Bauweise: eher modern würde ich sagen
offene Küche, Kochinsel: Kochinsel
Kamin: wäre wünschenswert
Balkon, Dachterrasse: evtl. begehbare Garage nachträglich als „Balkon“ ausbauen
Garage, Carport: Garage für 1 Auto und mit ausreichend Abstellmöglichkeiten für Fahrräder
weitere Wünsche/Besonderheiten/Tagesablauf, gern auch Begründungen, warum dieses oder das nicht sein soll:
Wir wollten die 3 Kinderzimmer und das Eltern-Schlafzimmer im OG haben. Zusätzlich dort auch noch ein kleines Bad für die Eltern. Den Keller fanden wir aufgrund der Hanglage sinnvoll. Dort sollte sich ein reines Büro und ein kombiniertes Büro/Gästezimmer ergeben. Beides mit Tageslichtfenster. Dazu gerne noch einen großen Hobbyraum für vielfältige Nutzung. Im EG war ein Vorrats- und Waschraum mit Verbindung zur Garage gewünscht. Später sollte evtl. die Möglichkeit vorhanden sein die Garage als Terrasse zu verwenden.
Hausentwurf
Von wem stammt die Planung: Architekt auf Basis engerer Vorgaben (s.o.) von uns.
Was gefällt besonders? Warum?: Unsere Wünsche zur Raumaufteilung wurden umgesetzt.
Was gefällt nicht? Warum? Die Badezimmer im OG und der Wohnbereich im EG sind evtl. zu klein.
Preisschätzung lt Architekt/Planer: liegt noch nicht vor. Vermutlich ca. 650.000 - 700.000 € (inkl. Baunebenkosten)
favorisierte Heiztechnik: Luft- oder Erd-Wasserwärmepumpe
Wenn Ihr verzichten müsst, auf welche Details/Ausbauten
-könnt Ihr verzichten: Kamin, evtl. 2. Bad im OG, begehbare Garage
-könnt Ihr nicht verzichten: 4 Schlafzimmer im OG, Keller mit 2 Büros
Warum ist der Entwurf so geworden, wie er jetzt ist?
Grundsätzliche Überlegen von uns wurden konkret an den Architekten weiter gegeben. Dieser hat unsere Vorgaben i.W. umgesetzt und hat kleinere Akzente gesetzt.
Was ist die wichtigste/grundlegende Frage zum Grundriss in 130 Zeichen zusammengefasst?
Wir finden den vorhandenen Grundriss im Großen und Ganzen gut gelungen und hoffen, dass von Euch noch konstruktive Kritik und weitere Anregungen kommen, um den Grundriss weiter zu optimieren.







Bebauungsplan/Einschränkungen
Größe des Grundstücks: 702 qm
Hang: ja, an Straße ca. 1,7 m höher als an Grundstückrückseite
Grundflächenzahl: 0,35
Geschossflächenzahl: keine
Baufenster, Baulinie und -grenze: Garage mind. 5 Meter zur Straße, Wohnhaus mind. 3,5 m
Anzahl Stellplatz: keine Vorgabe
Geschossigkeit: 2
Dachform: Sattel-, Walm-, Zeltdach 22° - 43°
Ausrichtung: Südwest
Anforderungen der Bauherren
Dachform: möglichst Satteldach
Keller, Geschosse: Keller ja, möglichst 2 Vollgeschosse
Anzahl der Personen, Alter: 4 (35, 33, 4,2)
Raumbedarf im EG, OG: im OG möglichst 3 Kinderzimmer
Büro: 2 Homeoffice-Plätze sind gewünscht.
Schlafgäste pro Jahr: ca. 10x pro Jahr Großeltern => daher Gästezimmer
konservativ oder moderne Bauweise: eher modern würde ich sagen
offene Küche, Kochinsel: Kochinsel
Kamin: wäre wünschenswert
Balkon, Dachterrasse: evtl. begehbare Garage nachträglich als „Balkon“ ausbauen
Garage, Carport: Garage für 1 Auto und mit ausreichend Abstellmöglichkeiten für Fahrräder
weitere Wünsche/Besonderheiten/Tagesablauf, gern auch Begründungen, warum dieses oder das nicht sein soll:
Wir wollten die 3 Kinderzimmer und das Eltern-Schlafzimmer im OG haben. Zusätzlich dort auch noch ein kleines Bad für die Eltern. Den Keller fanden wir aufgrund der Hanglage sinnvoll. Dort sollte sich ein reines Büro und ein kombiniertes Büro/Gästezimmer ergeben. Beides mit Tageslichtfenster. Dazu gerne noch einen großen Hobbyraum für vielfältige Nutzung. Im EG war ein Vorrats- und Waschraum mit Verbindung zur Garage gewünscht. Später sollte evtl. die Möglichkeit vorhanden sein die Garage als Terrasse zu verwenden.
Hausentwurf
Von wem stammt die Planung: Architekt auf Basis engerer Vorgaben (s.o.) von uns.
Was gefällt besonders? Warum?: Unsere Wünsche zur Raumaufteilung wurden umgesetzt.
Was gefällt nicht? Warum? Die Badezimmer im OG und der Wohnbereich im EG sind evtl. zu klein.
Preisschätzung lt Architekt/Planer: liegt noch nicht vor. Vermutlich ca. 650.000 - 700.000 € (inkl. Baunebenkosten)
favorisierte Heiztechnik: Luft- oder Erd-Wasserwärmepumpe
Wenn Ihr verzichten müsst, auf welche Details/Ausbauten
-könnt Ihr verzichten: Kamin, evtl. 2. Bad im OG, begehbare Garage
-könnt Ihr nicht verzichten: 4 Schlafzimmer im OG, Keller mit 2 Büros
Warum ist der Entwurf so geworden, wie er jetzt ist?
Grundsätzliche Überlegen von uns wurden konkret an den Architekten weiter gegeben. Dieser hat unsere Vorgaben i.W. umgesetzt und hat kleinere Akzente gesetzt.
Was ist die wichtigste/grundlegende Frage zum Grundriss in 130 Zeichen zusammengefasst?
Wir finden den vorhandenen Grundriss im Großen und Ganzen gut gelungen und hoffen, dass von Euch noch konstruktive Kritik und weitere Anregungen kommen, um den Grundriss weiter zu optimieren.
S
Sunshine38706.12.22 21:12Ich persönlich würde Kinderbad und Elternbad tauschen und beide vom Flur aus zugänglich machen. Auch würde ich die Garage auf die maximal möglichen 9m verlängern, um genug Stellfläche für alle Gartengeräte/Lebensmittel etc. zu haben, da der Hauswirtschaftsraum doch sehr klein ist. Auch ist es sinnvoll, dass man den Couch-Bereich auf mindestens 4m Breite macht, um ein besseres Raumgefühl zu kriegen.
M
Myrna_Loy06.12.22 21:14Wie kommst Du auf 160 qm? Wenn das ein Wohnkeller mit entsprechender Höhe werden soll, dann zählt der doch in die qm mit rein?
S
Sunshine38706.12.22 21:21Hängt ja auch davon ab, ob man nach DIN oder Wohnflächenberechnung schaut.
K
Karl-Jupp06.12.22 21:49Danke für die bisherigen Rückmeldungen. Das Thema der Bäder diskutieren wir intern nun auch schon. Da sind meine Frau und ich uns noch nicht ganz sicher und uns ist klar, dass wir aktuell eine etwas spezielle Variante vorliegen haben.
Couch-Bereich mindestens 3,75 m war unser Wunsch an den Architekten. Ich stimme zu, dass 4,0 m komfortabler wären...
Ich dachte, dass man den Keller nie mitzählt zur Wohnfläche. Raumhöhe sollte dort 2,40 m werden.
Couch-Bereich mindestens 3,75 m war unser Wunsch an den Architekten. Ich stimme zu, dass 4,0 m komfortabler wären...
Ich dachte, dass man den Keller nie mitzählt zur Wohnfläche. Raumhöhe sollte dort 2,40 m werden.
S
Sunshine38706.12.22 22:27Und zur Außenansicht noch etwas: Diese vielen unterschiedlichen schmalen Fenster wären garnichts für mich. Mal horizontal und mal vertikal ausgerichtet sorgen die Meiner Meinung nach für viel Unruhe. Ich würde viel größere Fenster nehmen und auch beim Treppenhaus ein 3m hohes. Durch viel Licht fühlt man sich im Haus gleich wohler und guckt nicht nur durch Schießscharten.


Ähnliche Themen