Grundriss und Ansichten zu Einfamilienhaus mit ca. 160 m² in Hanglage

4,80 Stern(e) 8 Votes
Zuletzt aktualisiert 11.01.2026
Sie befinden sich auf der Seite 13 der Diskussion zum Thema: Grundriss und Ansichten zu Einfamilienhaus mit ca. 160 m² in Hanglage
>> Zum 1. Beitrag <<

K

Karl-Jupp

So liebe Leute, krankheitsbedingt komme ich erst jetzt dazu noch einmal zu antworten. Wir setzen uns nächste Woche mit dem Architekten zusammen und nehmen die verschiedenen Anregungen vom Geländeverlauf über Keller-Weglassen bis hin zu anderer Raumanordnung im OG mit. Ich bin gespannt, was er dazu sagt.

Bis hierhin möchte ich mich daher schon einmal für die konstruktiven Kommentare bedanken.
 
H

hanghaus2023

Falls Du meinen Vorschlag weiter verfolgen willst, dann kann man auch das WZ verbreitern und dafür die Podesttreppe streichen. Die kostet dich 4-6m2 Wohnfläche.
 
H

hanghaus2023

Hier mal noch der Vorschlag fürs OG.


Grundriss eines Hauses: Schlafzimmer, Büro, Kind 1, Kind 2, Bad, Ankleide, Flur



Grundriss eines Hauses: Schlafzimmer, Ankleide, Elternbad, Kinderbad, Buero, Flur, Kind 1, Kind 2.

Büro und Kind 2 könnten noch getauscht werden, wenn die KZ gleich groß sein müssen.

Wäscheabwurf hinter der Tür vom Elternbad mit Andienung vom Kinderbad.

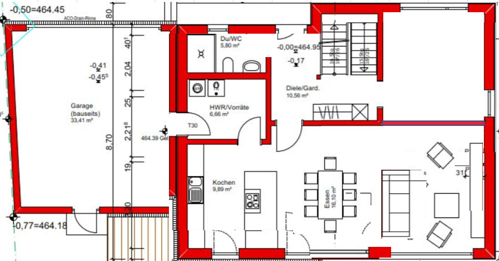
Hier noch die Variante vom EG mit breiten WZ.


Grundriss eines Hauses: Garage links, Küche, Essen, Wohnzimmer, Diele, Treppe, HWR.
 
Zuletzt aktualisiert 11.01.2026
Im Forum Grundrissplanung / Grundstücksplanung gibt es 2565 Themen mit insgesamt 88793 Beiträgen
Oben