Grundriss-Umbau Teil einer Scheune zu Einfamilienhaus mit Option zu Zweifamilienhaus

4,70 Stern(e) 6 Votes
Zuletzt aktualisiert 20.11.2025
Sie befinden sich auf der Seite 5 der Diskussion zum Thema: Grundriss-Umbau Teil einer Scheune zu Einfamilienhaus mit Option zu Zweifamilienhaus
>> Zum 1. Beitrag <<

M

Myrna_Loy

Als erste Spielereien sind solche Skizzen prima - am Gebäude kann man dann abklopfen, ob das überhaupt so funktioniert - und mit wieviel Aufwand das Funktionieren verbunden ist - uns haben die Kanalanschlüsse im Boden z.B. aufgrund ihrer Lage auf dem Grundstück richtig Probleme bereitet. Die Heizung war auch knifflig und hat einen Teil der Planung über den Haufen geworfen.
Auch müsst Ihr Euch klar werden, ob Ihr innen oder außen dämmen wollt. Scheunen energetisch zu ertüchtigen ist nicht ganz ohne. Besonders Scheuen mit Fachwerk.
Wir sind jetzt seit fast 3 Jahren an unserem Bau dran und es macht uns immer noch Spaß. Auch wenn viele Dinge nicht so einfach - und schnell! - sind, wie gedacht. :)
 
S

Scheune20

Schön, dass man hier auf solche Erfahrungsberichte stößt! Genau das habe ich mir erhofft. Auch wir gehen nicht davon aus, dass wir das Projekt Umbau schnell abschließen werden. Ganz im Gegenteil wir möchtet eins nach dem anderen angehen und schauen wohin uns der Weg führt. Wir haben da ja auch Gott sei Dank keine zeitlichen Begrenzungen (Miete o.ä.) auf die wir Rücksicht nehmen müssen. Aber wie gesagt, der erste Weg führt nun zur Architektin und dann schauen wir weiter. Bis dahin, schon einmal vielen Dank!
 
11ant

11ant

Hintergrund meines jetzt nicht wie gewohnt mit dem Link zu einem zwillingsähnlichen Fall um die Ecke Kommens ist allein die aktuelle Uhrzeit. Aber man müßte hier weniger als ein Jahr zurückblättern.
Ich habe gerade nachgeschaut und noch nicht recht gefunden, was ich meinte, trosthalber sei hier der Beifang der Suche genannt:
 
S

Scheune20

Hallo zusammen,

ich melde mich nachdem wir nochmals mit unserer Architektin Rücksprache gehalten haben bezüglich des geschicktesten Vorgehens. Nach wie vor ist eine Bauvoranfrage aktuell nicht der geeignete Weg aufgrund des derzeitigen baulichen Zustandes der Scheune. Diese befindet sich aktuell nicht "in einem erhaltenswerten Bauzustand" und würde dementsprechend nicht für einen Umbau in Frage kommen. Zitat unserer Architektin ist "keine schlafenden Hunde beim Bauamt wecken bevor ihr die Scheune nicht in einen passenden Zustand gebracht habt". Deswegen ist der Plan nach wie vor Scheune Sanieren (genehmigungsfrei) - einen erhaltenswerten Bauzustand erreichen - dann eine Bauvoranfrage/ Bauantrag stellen. Die Chance dann auch einen Bauantrag zu erhalten sieht unsere Architektin als sehr hoch an, aufgrund ihrer Erfahrung mit anderen ähnlichen Projekten bei dem örtlichen Bauamt.

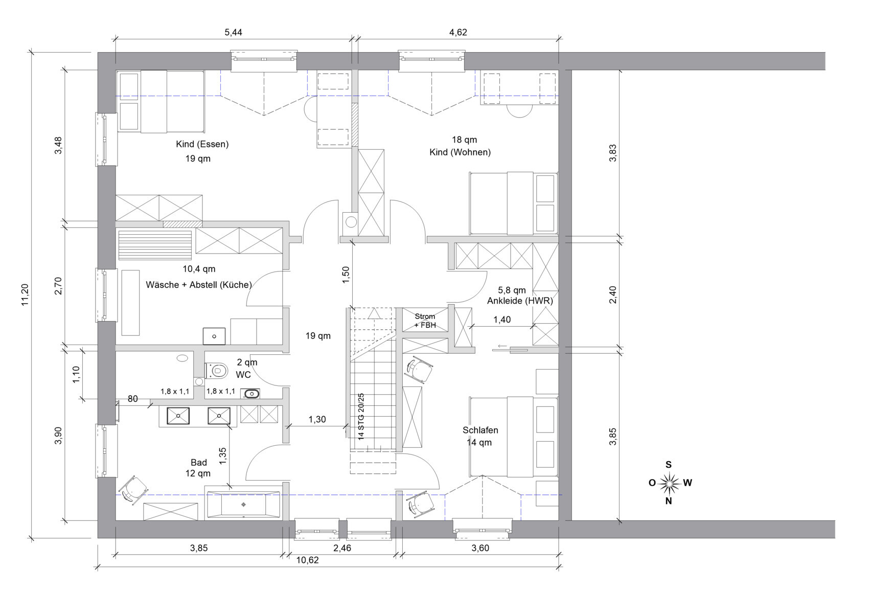
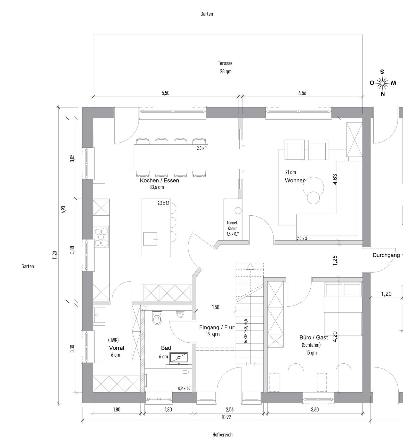
Deswegen planen wir momentan die Sanierung der Scheune und wollen uns diesbezüglich jedoch natürlich die spätere Umnutzung und Renovierung möglichst einfach halten. Deswegen haben wir unseren Grundriss weiter ausgearbeitet und möchten diesen hier zur Diskussion stellen. Der Grundriss orientiert sich dabei weitestgehend an der bestehenden Struktur der Scheune was Fenster, Öffnungen, Wände etc. im EG angeht. Das OG hat bisher nichtsdergleichen und wurde somit relativ frei geplant. Dinge wie bspw. die Gaubengröße im OG sind natürlich noch offen und müsste mit dem Bauamt besprochen werden. Gauben generell sollten jedoch möglich sein laut unserer Architektin, ggf. würden wir die Größe falls notwendig entsprechend verringern.

Wir sind uns bewusst, dass dieses Vorgehen gewisse Risiken birgt und vermutlich viele Kompromisse im Bauprozess nötig werden. Jedoch ist dieses Vorgehen unter Berücksichtigung der Ausgangssituation und in Rücksprache mit der fachkundigen Architektin das Beste. Ich würde euch also darum bitten euch wenn möglich auf den Grundriss zu konzentrieren und nicht auf die Baugenehmigungsaspekte.

Fotos der aktuellen Situation kann ich leider keine einstellen, da mein Partner aus Gründen der Privatsphäre diese nicht im Internet wünscht, auch im Hinblick auf die Sanierung mit dem "geheimen" Ziel der späteren Umnutzung. Entschuldigt bitte.

Also genug gequatscht - hier ist der bisherige Grundriss und ich freue mich über jeden, der mir Tipps, Anregungen und Hinweise diesbezüglich gibt!

Grundriss eines Hauses: Küche/Essen, Wohnen, Büro, Bad, Vorrat, Flur, Terrasse 28 qm, Garten.


Grundriss eines Hauses mit Küche/Wäsche, Bad, WC, Schlafen und Kindräume.


Dachgeschoss-Grundriss: drei Räume (Kind/Spielzimmer, Hobby/Abstell, Abstellfläche) und Treppenhaus.
 
hanghaus2000

hanghaus2000

Das schaut doch schon mal ganz gut aus.

Gibt es im OG auch eine 2 m Linie?

Dachneigung? Oder einen Schnitt?
 
S

Scheune20

Die 2 m Linie im OG ist auch ungefähr die blaue Linie. Wir haben einen Kniestock von 1,50m und eine Dachneigung von ziemlich genau 40 Grad. Einen Schnitt werde ich nachliefern.
 
Zuletzt aktualisiert 20.11.2025
Im Forum Grundrissplanung / Grundstücksplanung gibt es 2535 Themen mit insgesamt 87978 Beiträgen


Ähnliche Themen zu Grundriss-Umbau Teil einer Scheune zu Einfamilienhaus mit Option zu Zweifamilienhaus
Nr.ErgebnisBeiträge
1Grundriss Mehrgenerationenhaus Umbau alte Scheune - Seite 27202
2Bauamt lehnt Bauantrag ab da Haus zu weit hinten geplant 86
3Unsaniertes Einfamilienhaus von 1973 - Sanierung oder Neubau? 32
4Grundriss Reiheneckhaus in Planung - Änderungsvorschläge? - Seite 20176
5Grundriss und Platzfragen Einfamilienhaus - Seite 230
6Grundriss / Planung eines Einfamilienhaus mit Einliegerwohnung im OG 75
7Bauvorbescheid positiv, Bauantrag bemängelt Position - Seite 229
8Grundriss Einfamilienhaus, ca. 200qm ohne Keller - Einschätzung - Seite 13172
9Meinungen zu unserem Grundriss? 19
10Quadratischer Grundriss für ein Doppelhaus gesucht - Ideen? - Seite 1187
11Grundriss Stadtvilla mit Walmdach ca. 170 qm 61
12Bauvoranfrage / Schreiben Landratsamt 12
13Grundriss-Entwurf Erfahrungen - Kritik? - Seite 13166
14Grundriss L-Form - Was ist eure Meinung? - Seite 2113
15Grundriss Winkelbungalow 150m² mit Erweiterungsmöglichkeiten - Seite 898
16Grundriss ca. 170 m² Einfamilienhaus, ohne Keller mit Carport - Seite 389
17Türen in unserem EG nötig? Grundriss angehängt - Seite 436
18Grundriss Bungalow mit 140 qm - passt der Stauraum? - Seite 7175
19Grundriss Einfamilienhaus - wohin mit der Matschschleuse? - Seite 528
20Jurahaus Grundriss - Frühe Projektphase - Seite 17129

Oben