Grundriss-Planung und Platzierung - Einfamilienhaus ca. 200qm auf 900qm Grundstück

4,90 Stern(e) 12 Votes
Zuletzt aktualisiert 24.11.2025
Sie befinden sich auf der Seite 9 der Diskussion zum Thema: Grundriss-Planung und Platzierung - Einfamilienhaus ca. 200qm auf 900qm Grundstück
>> Zum 1. Beitrag <<

Y

ypg

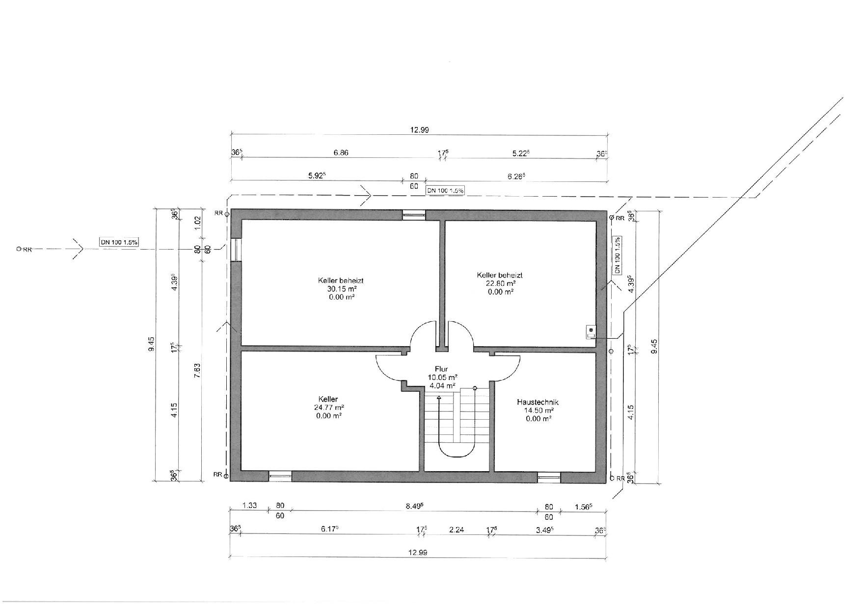
Da bzgl. Entwässerung nichts mehr kam, fasse ich das mal so auf das die von euch als potenziell kritischen Punkte damit gelöst wurden.
Ich hatte glaube ich etwas dazu geschrieben (Zeichnung zeigt Rohre IN den Wänden) - dazu muss man dann auch nichts weiter schreiben, denn Du solltest darauf achten. Wir können ja jetzt nicht Dein Sachverständiger sein und jeden Satz kommentieren.

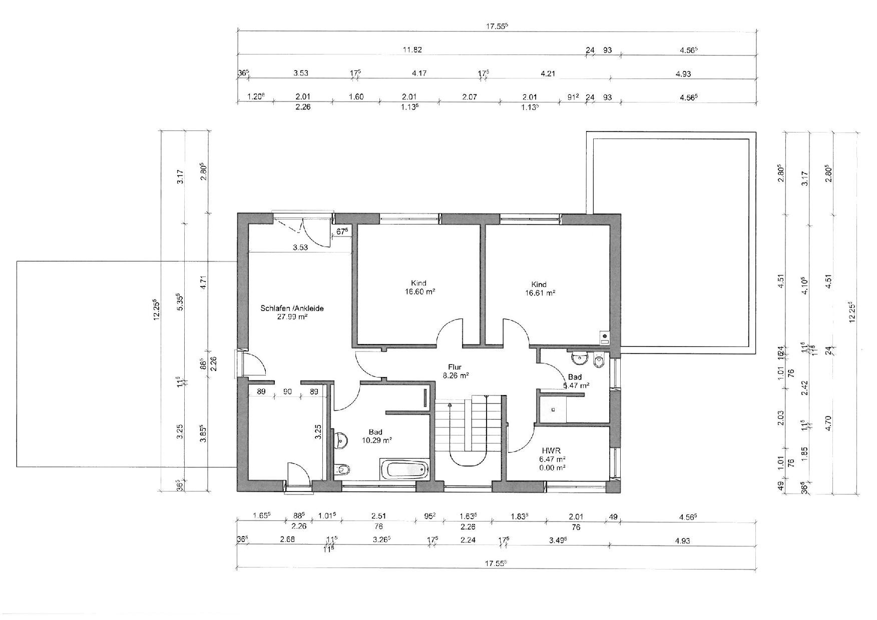
zur Treppe: hatte ich vorher besser gefunden, wenn man vom Eingang in den Essraum schauen kann.
Ich hätte es wohl auch besser gefunden, wenn man die Treppe dann links Elternbad, rechts Kinderbad, die Ankleide zw Bad und Schlafzimmer als Durchgang zum Schlafzimmer nutzt.
 
face26

face26

Da bzgl. Entwässerung nichts mehr kam, fasse ich das mal so auf das die von euch als potenziell kritischen Punkte damit gelöst wurden.
Bist Du denn mit der Badaufteilung so zufrieden?
Das Klo im Elternbad ist dann da festgenagelt. Das kannst später nicht mehr groß hin und her schieben. Und ist ja jetzt wie schon prophezeit auf die andere Seite gewandert. Mit Vormauerungskasten im Büro, oder?

Hab gerade zu wenig Zeit mir das im Detail anzuschauen.

Bleibt dann auch bei einem kleinen Waschtisch im Elternbad?

Finde die Platzierung der Badewanne etwas komisch. Vielleicht aber wieder nur mein Geschmack.

Edit: Jetzt hab ich's erst kapiert. Abwasser vom WC macht einen 90Grad-Bogen. Joa...elegant ist es nicht.
 
hanghaus2000

hanghaus2000

Im ersten Beitrag sind doch keine Baugrenzen eingezeichnet. Es gab doch nur die Vorgabe 5 m zur Strasse. MMn war es doch noch unklar ob es ueberhaupt laut Bebauungsplan genehmigungsfaehig ist.

Gibt es denn vom Bauamt schon eine Antwort zur Bauvoranfrage?
 
S

Samantheus

Vielen Dank für eure Antworten.

Wir haben uns jetzt für die ursprüngliche Variante mit der freien Blickachse vom Eingangsbereich bis in den Garten entschieden. Danke vielmals für eure Beratung und Meinungen.

Mit Vormauerungskasten im Büro, oder?
Es wurden zwei Varianten skizziert, eine mit Vormauerungskasten im Büro und eine Alternative mit einer Vormauerung im Bad.
Bleibt dann auch bei einem kleinen Waschtisch im Elternbad?
Wir wollen kein riesigen Doppelwaschtisch oder so. Ggf. etwas größer als Standard, aber nicht so das der Platz potenziell eng wäre.
Wieso ist in Deinen Erdgeschossen eigentlich ständig ein grob verletztes Baufenster eingezeichnet ?
Der Bebauungsplan ist sehr alt. Das direkte Nachbargrundstück hat ein ähnliches Baufenster aber das Haus ist parallel zur Straße mit ca. 5m Abstand gebaut (also auch nicht im Baufenster), also genauso wie wir unseres geplant haben. Eine unverbindliche Voranfrage hat ergeben dass die Orientierung an den Nachbarn bezüglich einheitliches Straßenbild und nicht am Bebauungsplan durchaus befürwortet wird.
 
M

Myrna_Loy

Da bzgl. Entwässerung nichts mehr kam, fasse ich das mal so auf das die von euch als potenziell kritischen Punkte damit gelöst wurden.

Heute habe ich auch die Zeichnung für die Alternative 2 bekommen mit dem Tausch von Elterntrakt und Kindertrakt sowie Tausch von Treppe und Eingang. Ich sehe jetzt auf den ersten Blick bei beiden Varianten keine großen Stärken und Schwächen. Wahrscheinlich wird es darauf hinauslaufen offener Eingangsbereich mit Blickachser vs geschlossener Eingangsbereich mit Privatsphäre, was wohl individuell Geschmackssache ist.

Ich habe die Bilder mal angehängt, falls ihr noch was entdeckt.

Ansichten
Anhang anzeigen 63070 Anhang anzeigen 63071 Anhang anzeigen 63072

Grundrisse
Anhang anzeigen 63073 Anhang anzeigen 63074 Anhang anzeigen 63075
Dieses Monstervordach sieht einfach nur überdimensioniert und klotzig aus. Mit dem bodentiefen Fenster und der Absturzsicherung über den WC Fenster wird diese unnütze Konstruktion und das Verhackstückte der Fassade noch einmal betont. Erinnert mich doch an die Säulen, die man in den 80er und 90er Jahren so gerne vor die Eingänge geklebt hat, um die Häuser aufzuwerten.
 
Zuletzt aktualisiert 24.11.2025
Im Forum Grundrissplanung / Grundstücksplanung gibt es 2536 Themen mit insgesamt 88010 Beiträgen


Ähnliche Themen zu Grundriss-Planung und Platzierung - Einfamilienhaus ca. 200qm auf 900qm Grundstück
Nr.ErgebnisBeiträge
1Grundriss Einfamilienhaus ohne Keller/Schlafzimmer und Bad im EG 27
2Lage von Haus & Garage im Baufenster planen *Vorplanung* - Seite 8129
3Ankleide/Schlafzimmer Problem - Grundrissdiskussion 25
4Grundrissfrage, Treppe, Fenster, Ausrichtung - Seite 212
5Treppe Grundriss Planung, Auftritt und Unterzug - Seite 221
6Stadtvilla mit gerader Treppe, offene moderne Bauweise, 140m² - Seite 318
7Treppe im Wohnzimmer als Hype - Pro & Contra? - Seite 426
8Idee Schlafzimmer - Bett / Schrank Anordnung 32
9Grundriss Einfamilienhaus barrierefrei fürs Alter mit Eltern-Schlafzimmer im EG - Seite 744
10Grundriss Schlafzimmer, Ankleide und Bad en Suite 36
11Grundrissfrage: Tausch gerader Treppe durch L-Treppe 31
12Vorstellung Grundriss - Seite 233
13Feedback zu unserer Grundrissidee, kleines Baufenster - Seite 9127
14Bauland um Gartenland erweitern - Auswirkungen auf Baufenster 20
15Grundstück - Baufenster - Lage von Haus und Garage - Seite 244
16Keller ja oder nein bei großem Baufenster? - Seite 212
17Bauen ohne Baufenster NRW 13
18Baufenster auf der Flurkarte - Genehmigung 39
19Bebauungsplan: Garage auf Grenze außerhalb Baufenster - Seite 953
20Flächennutzungsplan verbindlich? Evtl Baufenster auf Waldgebiet?! 31

Oben