Grundriss-Planung und Platzierung - Einfamilienhaus ca. 200qm auf 900qm Grundstück

4,90 Stern(e) 12 Votes
Zuletzt aktualisiert 22.11.2025
Sie befinden sich auf der Seite 4 der Diskussion zum Thema: Grundriss-Planung und Platzierung - Einfamilienhaus ca. 200qm auf 900qm Grundstück
>> Zum 1. Beitrag <<

face26

face26

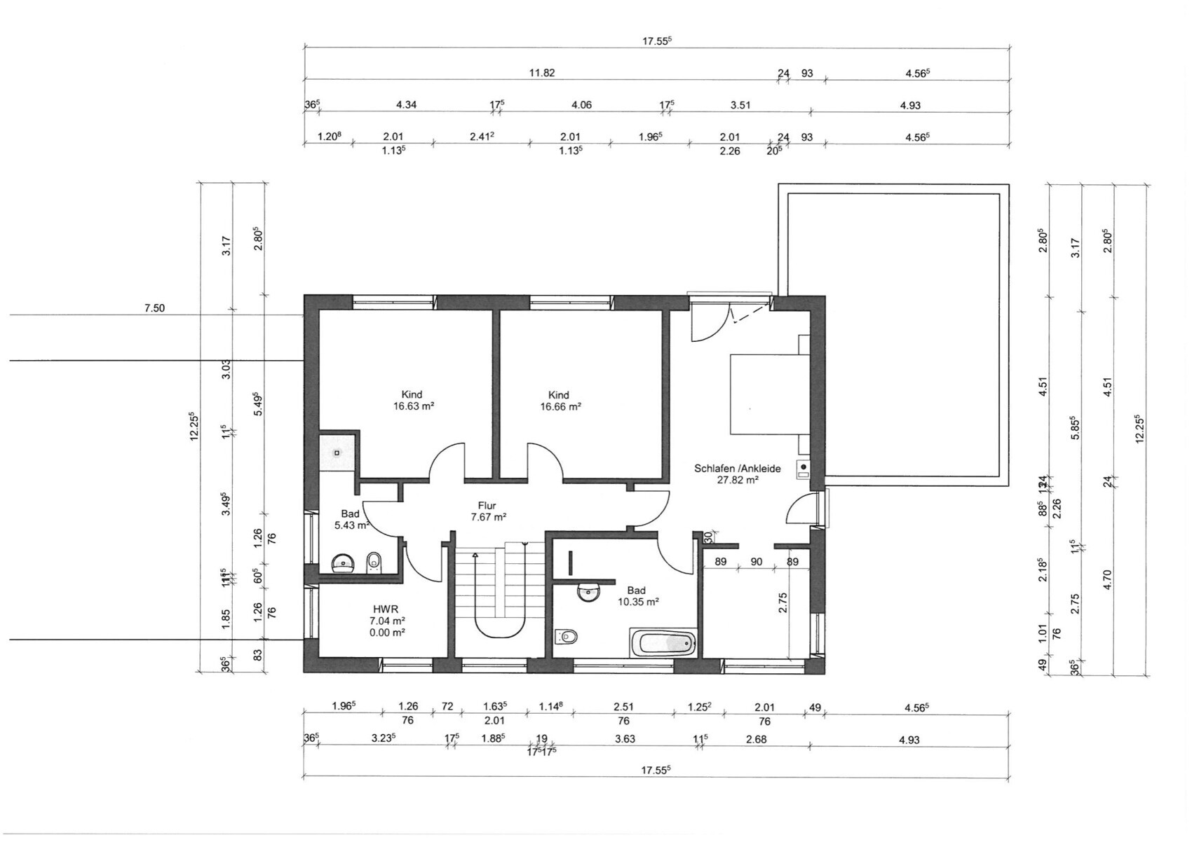
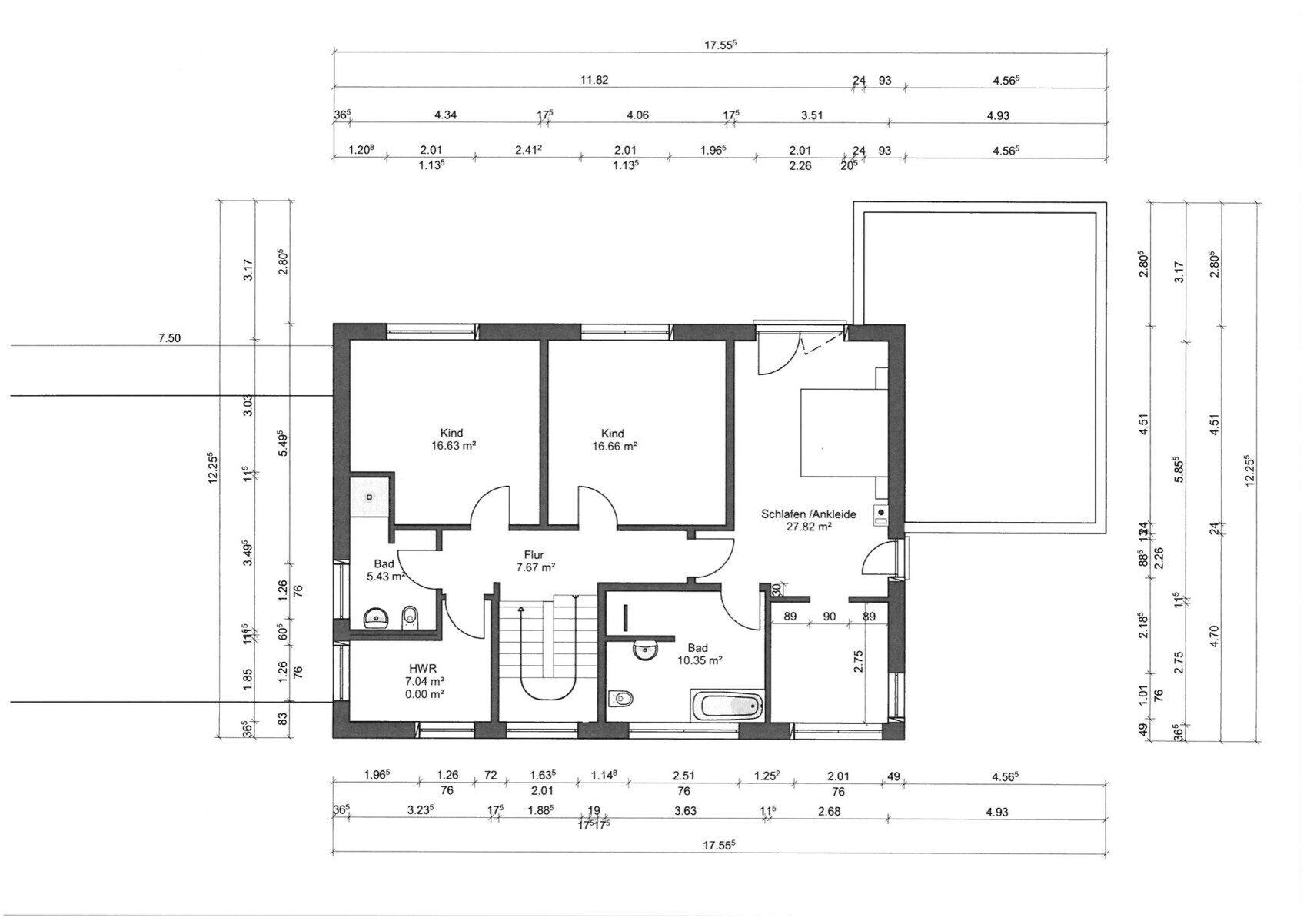
Die Ankleide ist tatsächlich so geplant für einen 3m Schrank. Vorher war die Länge 2,96 und wir haben sie jetzt erweitert. Laut Planer müssen je Seite ca. 1.5 cm ab, sodass 3m Schrank passen sollte. Meinst du da geht noch mehr ab?
Theorie und Praxis. Der Schlosser arbeitet nach Millimeter, der Putzer nach Zentimeter und der Maurer ist froh wenn er auf dem Grundstück bleibt. So oder so ähnlich hat mir das mal einer beschrieben. ;)

Ne, aber eine gemauerte Wand, ist selten exakt wie im Plan. 1-2 cm kann da schon mal vorkommen. Dann vielleicht nicht genau im rechten Winkel und schon muss der Stuckatuer 2cm mehr ausgleichen in der Ecke. Die Fehlen Dir aber nachher.
Viele schränke sind nicht nur 3m sondern paar Zentimeter mehr, weil noch Rahmen usw.
Dann musst das Teil ja noch aufbauen bzw. in die Lücke reinschieben. Sollte man auch bedenken.

Mh uns gefällt der Elterntrakt.. was wäre die Idee von dem Tausch?
Muss Euch gefallen. Ich glaube ich mag es nicht, dass es so wirkt als ob das Schlafzimmer einen Flur hat. Weiß auch nicht genau. Ich gucks an und mag es nicht. Aber mag subjektiv sein. Vorteil des Tauschs wäre mit etwas Kreativität den Flur eher in die Ankleide zu integrieren bzw. das Schlafzimmer abzugrenzen und hauptsächlich einen einfachere Leitungsführung weil Bad dann über Büro ergo über Haustechnik liegen würde. (Wenn ich es richtig im Kopf habe).
 
Y

ypg

Kann man sich bei dem Schnitt sparen. Meine Meinung tut es nicht Not.
Trennwand ist viel zu lang. Ich würde mich an die 1/3 2/3 Regel halten.
Kann man sich sparen, wenn man die Fenster entsprechend plant. Klimatisierung wird ja wohl anscheinend der KfW gegengerechnet…
Halte ich für das einzige vernünftigste.
WC: Das soll laut Planer kein Problem sein, die Überschneidung in der Zeichnung liegt wohl nur an dem Programm. In echt soll da einfach ganz normal die Wand verlaufen.
Entwässerung ist dann im Flur sichtbar. Wahrscheinlich rechts von der Eingangstür an der Bürowand. Geht auf jeden Fall besser, aber ehrlich gesagt finde ich das Bad eine kleine Katastrophe. Ich würde das nicht haben wollen.
Die Ankleide ist tatsächlich so geplant für einen 3m Schrank.
Mind. 3,15.. Wand nach dem mauern überall nachmessen. Putz und Fußleisten abgerechnet verbleiben wenige Möblierungs-Cm… Fußleisten können zur Not ab.
Mir gefällt aber auch der Elterntrakt nicht so.
 
hanghaus2000

hanghaus2000

Die Badwand unbedingt verschieben. Ich habe wie das Bild von @kbt09 dargestellt genau die Situation mit 2,61 m lichte Deckenhöhe. Es geht man gewaoehnt sich dran. Aber mit 13 cm weniger Hoehe und 5 cm mehr Koerpergroesse rennst gegen die Decke. Lass Dir da keine Fehler vom Programm einreden. So etwas plant ein Architekt nicht. Lass die L Treppe aber ohne Podest. Oder eben mind. Die Wand im Bad verschieben.
 
S

Samantheus

Ok, das Treppen/Badwand Thema wird auf alle Fälle noch mal angegangen. Die Größe der Ankleide nehme ich auch noch mal mit. Vielleicht gehen wir dann eher in die andere Richtung (ca. 2.70m), sodass genug Platz für den 2.50m Schrank ist.

Entwässerung Bad nehme ich auch mit.

Die Trennwand Wohnen/Essen ergibt sich von der Länge her dadurch das wir auf der Wohnseite gerne ein Lowboard (175m Breite) mit Fernseher hinstellen möchten und daneben eben noch der Kamin soll (lt. Ofenbauer braucht der ca. 75cm Platz). Der Rest ist einfach ein bisschen Puffer damit es nicht so "gequetscht" wirkt. Uns kommt der Durchgang aber auch eher etwas zu schmal vor. Von daher sind wir am überlegen die Trennwand etwas mehr in den Wohnbereich zu schieben, sodass der Übergang etwas offener wirkt weil er mehr in den Anbau rein ragt.

Schnitt:

Schnittzeichnung eines mehrstöckigen Hauses mit Treppenhaus, Dach und Fundamenten.
 
S

Samantheus

Hallo zusammen,

ich hatte heute noch ein Gespräch mit dem Planer, daher hier nun ein Update und das Feedback.

Treppe: Alles ist möglich, sowohl verschieben des Bades, als auch so lassen (Durchgangshöhe immer noch 2m), als auch U-Treppe. Wir haben uns nochmal eine U-Treppenvariante im Grundriss zeichnen lassen. Dadurch ist oben sogar etwas mehr Platz und das Bad wird ein Tick größer.

Entwässerung Bad: Wird erst nach der Platzierung und Planung des Bads geplant (die aktuell eingezeichneten Badobjekte dienen nur zur Einschätzung der Größe und stehen nicht für die Platzierung im finalen Bad), aber bzgl. Entwässerung wird es dann schon eine gute Lösung geben....

Elterntrakt: Wir haben die Tür etwas weiter zum Schlafbereich verschoben, sodass der Flur mehr im Flur bleibt und der Elternbereich nicht nach Flur wirkt. Weiterhin haben wir die Ankleide etwas verkleinert und akzeptieren das nur ein 2.50m Schrank passt. Dann wirkt auch das Fenster zwischen Ankleide und Kamin nicht so gedrängt. Wir haben uns auch noch ein paar Alternativen für das Ankleidenfenster zeichnen lassen.

Wirkt der Elterntrakt jetzt stimmiger für euch? Vertauschen von Bad und Ankleide würden wir eigentlich nur ungern, wenn es unbedingt sein muss.
Was sagt ihr zur U-Treppen Variante?

Vielen Dank!

Außenansicht Ankleide Fenster Varianten:

Moderne weiße Einfamilienhaus-Fassade mit Carport, großen Fenstern und Baumreihe im Grünen.

Modernes, weißes Einfamilienhaus mit Carport, großen Fenstern und grünem Garten.

Modernes, weißes, zweistöckiges Haus mit Carport, Rasenfläche und Baumreihe dahinter.


Grundriss U-Treppe / Anpassungen Elterntrakt:

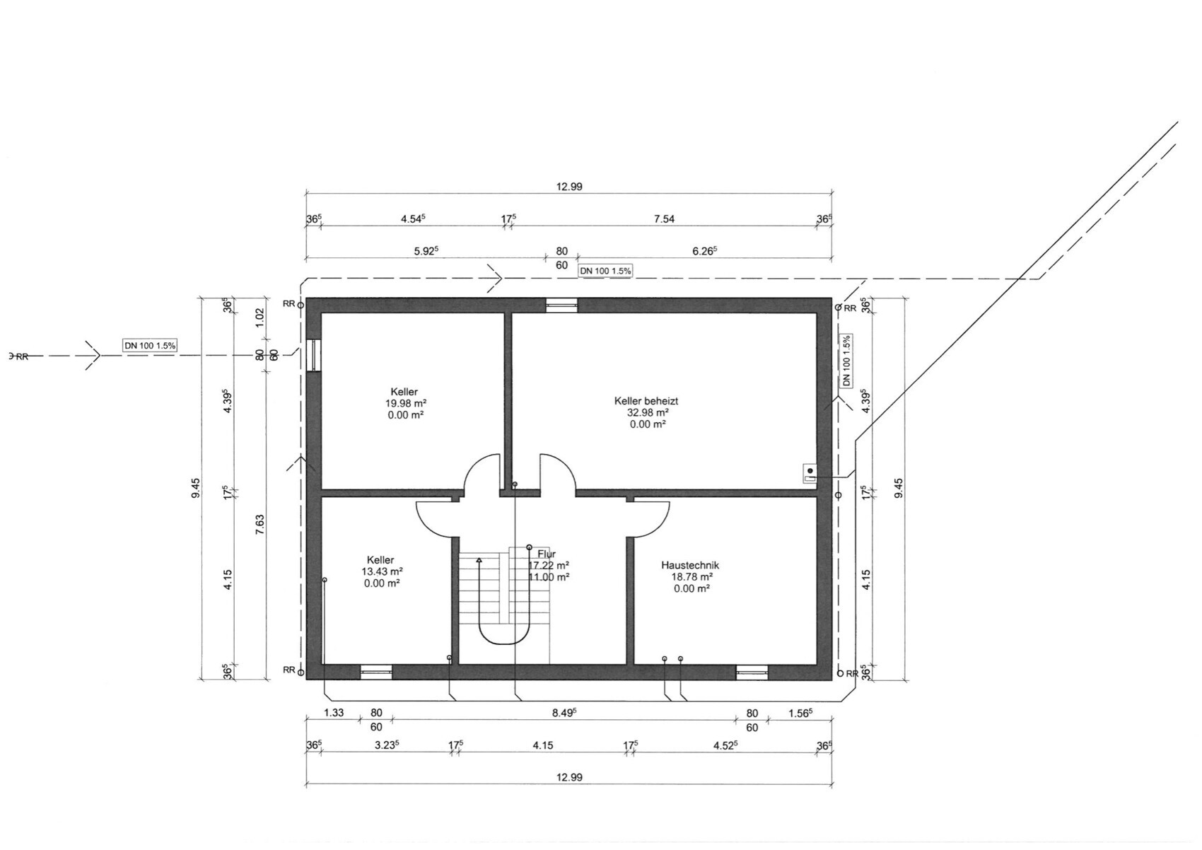
Grundriss Kellergeschoss mit Flur, Treppe und Räumen (Keller, Haustechnik) sowie Maßen.

Grundriss eines Einfamilienhauses mit Garage, Büro, Diele, Wohnen/Essen/Küche und Terrasse.

Grundriss: Zwei Kind-Zimmer, Schlafen/Ankleide, Flur, zwei Bäder, HWR, Treppenhaus, Terrasse.
 
Zuletzt aktualisiert 22.11.2025
Im Forum Grundrissplanung / Grundstücksplanung gibt es 2535 Themen mit insgesamt 87984 Beiträgen


Ähnliche Themen zu Grundriss-Planung und Platzierung - Einfamilienhaus ca. 200qm auf 900qm Grundstück
Nr.ErgebnisBeiträge
1Neubau einer ca. 8x11 Doppelhaushälfte, Einschätzung Grundriss und Fenster - Seite 635
2Pfiffige Schlafzimmer Idee mit Ankleide gesucht 19
3Grundriss Schlafzimmer, Ankleide und Bad en Suite - Seite 336
4Grundriss Schlafzimmer mit Bad und Ankleide 62
5Fenster Brüstungshöhe 130 im Schlafzimmer / Arbeitszimmer? - Seite 493
6Grundriss Einfamilienhaus geplant, Fenster gefallen uns - Seite 343
7Verbindung Schlafzimmer / Ankleidezimmer / Bad 16
8 Küchenplanung mit tiefen Fenster - Seite 643
9OG Stadtville optimieren. Fenster Bodentief - Seite 16104
10Durchbruch Bad und Ankleide ohne Türe? - Seite 212
11Grundriss Bungalow, sucht wertvolle Tipps / Bemerkungen - Seite 324
12Grundriss Elternbad und Durchgang zu Schlafzimmer 13
13Fenster / Türen / Garderobe 13
14Teppich im Schlafzimmer trotz Fußbodenheizung? - Seite 336
15Idee Schlafzimmer - Bett / Schrank Anordnung 32
16Grundrissplanung: Flur im EG breit genug? - Seite 357
17Badewanne im Schlafzimmer - was haltet ihr davon? - Seite 535
18Treppe "ragt" in Flur hinein: Problematisch? 12
19Kleinstmögliches Fenster für Lüftung Hauswirtschaftsraum 22
20Parkett von Flur in Zimmer durchlegen - Seite 217

Oben