Grundriss-Planung und Platzierung - Einfamilienhaus ca. 200qm auf 900qm Grundstück

4,90 Stern(e) 12 Votes
Zuletzt aktualisiert 20.11.2025
Sie befinden sich auf der Seite 6 der Diskussion zum Thema: Grundriss-Planung und Platzierung - Einfamilienhaus ca. 200qm auf 900qm Grundstück
>> Zum 1. Beitrag <<

Y

ypg

Wir planen rechts von der Eingangstür an der Wand einen Einbauschrank / Einbaugarderobe.
Eher nicht, weil Euer Bad ja breiter ist. Wenn man das Fallrohr rechts in die Ecke legt, kommt es im Büro neben dem Fenster raus. Musst Du mal selbst einzeichnen - auf Handy kann ich die Maße nicht vergleichen. Das Problem hast Du verstanden?
Wenn der Architekt mit der Idee von Ecken oder Schlingen ankommt, also eine S-Legung (ich weiß gar nicht, ob das erlaubt ist), dann würde ich das als Bauherr definitiv ablehnen.
 
S

Samantheus

Ah ok, verstehe. Ich dachte vielleicht kann das Rohr einfach irgendwo im Boden des Bads beginnen, aber es muss wohl an einer Wand des Bads beginnen und im EG gibt es nicht wirklich Wände die sich dafür anbieten die so platziert sind wie die Badwände im OG. Mit dem Background kann ich jetzt auch noch mal gezielter nachfragen. Vielen Dank!
 
RomeoZwo

RomeoZwo

Kinderbad: Was stört dich denn daran? Das man potenziell im Kinderzimmer Lärm vom duschen mitbekommt? Oder was anderes? Die Idee die Dusche eher in den Hauswirtschaftsraum mit reinzuziehen finde ich prinzipiell auch nicht schlecht. Eine Dusche mit Glastrennwand möchten wir nicht.

WC EG: Die Größe kommt daher zu Stande das wir uns die Möglichkeit offen halten wollen ggf. mal eine Dusche nachzurüsten. Solange das nicht der Fall, soll ein großer Putzschrank darein. Über die Tür kann man noch mal nachdenken... Du würdest sie dann direkt neben dem Kellerabgang machen? Sodass Richtung Garage maximale Schrankfläche ist?
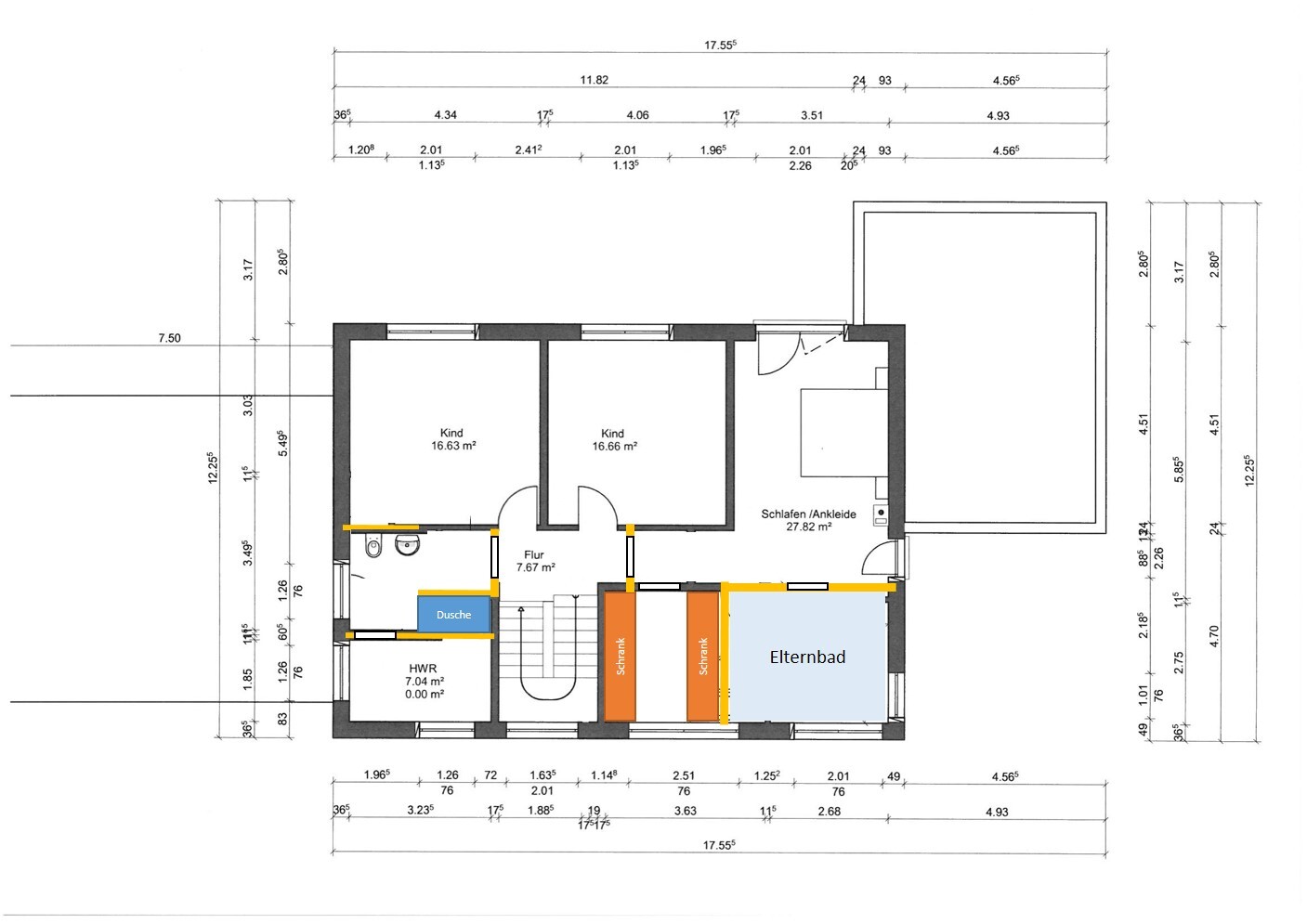
Dieses Eck im 2. Kinderzimmer finde ich einfach nicht schön. Wie heißt es so schön, einen guten Grundriss kann man in den Schnee pinkeln ;-) . Ich würde daher versuchen die Kinderzimmer Wand gerade zu halten. Die Kinderzimmer sind auch groß genug, dass hinter der Tür nicht unbedingt die 60cm Platz für den Schrank sein müssen, d.h. hier kann man evtl. noch mit der Wand/Tür zum Kinderbad/Hauswirtschaftsraum spielen (bzw. den Hauswirtschaftsraum vom Bad zugänglich machen).

Ja, die Tür direkt neben die Treppe. Ich würde die Dusche im EG Bad auch gleich mit bauen lassen. Nur die Armatur und den Abfluss, keine Trennwand. Da kannst immer noch einen Schrank davor stellen, aber später wird das schon ein größerer Umbau (neu Fließen, neue Leitungen). Und wie oft fließt man schon neu, vielleicht nach 40 Jahren?

P.S.: Wo soll in der Ankleide eigentlich ein Schrank hin? Da sind ja nur Fenster ...
 
Zuletzt bearbeitet:
Y

ypg

So 100% gefällt es mir auch noch nicht, aber mal als Anregung für das OG ...

Anhang anzeigen 62860
So würde ich es auch eher sehen.
Allerdings möchte ich aber auch mal erwähnen, dass eine Ankleide auch gern mal Platz für einen Hocker (besser 2) und einen Spiegel haben sollte. Ok, Spiegel könnte bei Romeos Bsp gut an die ggü liegender Wand machen. Ich hab die Ausrichtungen nicht im Auge, aber ich würde mal ausprobieren, die Kinderzimmer mit dem Elternbereich zu tauschen: Elternbad über Gäste-WC, Schlafzimmer planoben Links, rechts der Treppe das Kinderbad… das würde dann auch mit dem Fallrohr eher funktionieren.
 
Zuletzt aktualisiert 20.11.2025
Im Forum Grundrissplanung / Grundstücksplanung gibt es 2535 Themen mit insgesamt 87978 Beiträgen


Ähnliche Themen zu Grundriss-Planung und Platzierung - Einfamilienhaus ca. 200qm auf 900qm Grundstück
Nr.ErgebnisBeiträge
1Grundrissfrage, Garage, Treppe - Seite 533
2Grundriss 10x10 mit 2 Vollgeschossen 30
3Umbau Kinderzimmer - Fenster in zwei Fenster aufteilen? 20
4Grundrissfrage, Treppe, Fenster, Ausrichtung 12
5 2 Vollgeschosse, Durchgang Garage, Hauswirtschaftsraum unter Treppe 25
6Kleinstmögliches Fenster für Lüftung Hauswirtschaftsraum 22
7Grundrissplanung Hanghaus mit 5 Kinderzimmer - Seite 26370
8Einfamilienhaus ca. 150 qm Grundriss - Treppe wie planen? 65
9OG Stadtville optimieren. Fenster Bodentief - Seite 13104
10Badplanung in Neubau (Eltern+Kinderbad) - Seite 635
11Grundriss-Aufteilung OG - Elternbereich / 2 Kinderzimmer mit Bad 26
12Schalter für Rollläden am Fenster oder an der Tür? 38
13Schrank für Hauswirtschaftsraum 21
14Hauswirtschaftsraum Raum ohne Fenster - Lüftungsanlage ausreichend? 26
15 Küchenplanung mit tiefen Fenster - Seite 643
16Einrichtung Kinderzimmer - Wie sollen wir die gestalten? - Seite 215
17Grundrissplanung Einfamilienhaus (Stadtvilla) ca.140m² (3 Kinderzimmer) - Seite 742
18Grundrissplanung ca. 200qm (3 Kinderzimmer + Schlafen) - Seite 529
19Neubau Einfamilienhaus 160-170qm, 3 Kinderzimmer 39
20Entwurf Einfamilienhaus mit 3 Kinderzimmer, Keller und Grenzbebauung 32

Oben