ᐅ Grundriss-Planung, 2 Vollgeschosse, ca. 130-140 qm ohne Keller
Erstellt am: 29.07.21 16:45
P
prm2021Hallo zusammen,
Wir wollen ein Haus auf einem Grundstück von 600 m2 mit westlicher Annäherung bauen (eine Sackgasse).
Leider kann die Garage nur im Westen sein. (in dem Bild).
Ich sollte demnächst mit dem Architekten für den Vorentwurf sprechen.
Nach den Vorschriften in meinem Land kann das ursprüngliche Projekt später nicht mehr geändert werden.
Laut Bebauungsplan müssen wir eine geschlossene Garage bauen (2 Stellplätze pro Wohnung, davon 50% in einer geschlossenen Garage).
Das verteuert unsere Konstruktion und deshalb müssen wir von der "idealen" Größe von 150 qm mindestens ca. 10-15qm und natürlich ohne Keller abziehen.
Ich habe viele Foren gelesen und festgestellt, dass das Wichtigste ist, dass mein Wohn- und Esszimmer sind nicht schmaler als 4 Meter (mindestens 35 qm).
Dort und in der Küche werden wir 90% der Zeit verbringen.
Wir wollen eine offene Küche nach Osten mit möglichst viel Licht (vorzugsweise in zwei Zeile).
Wir möchten, dass Hauswirtschaftsraum mit mindestens 10 m2, Treppen so komfortabel wie möglich sind und nicht zu viel Platz einnehmen.
Auch eine Gästetoilette ohne Dusche davor wäre ein kleiderschrank (für Ikea Pax Tiefe 70 cm).
Oben hätten sie gerne Licht im Flur, 2 Kinderzimmer von ca. 13-14 qm nach Süden, ein Schlafzimmer nach Nordosten, wo wir den Ikea Pax-Schrank meiner Frau platzieren müssen 200x70cmx240cm.
Im Schlafzimmer sollte auch mein Kleiderschrank stehen, aber er kann kleiner sein als der meiner Frau.
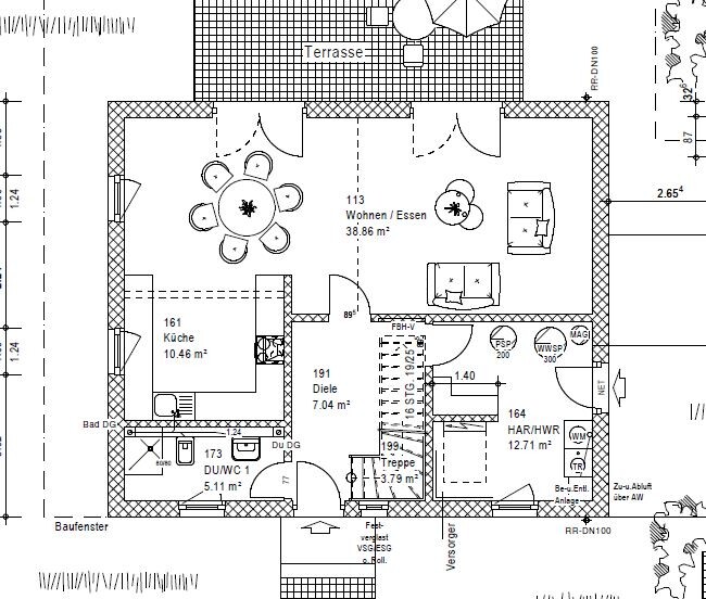
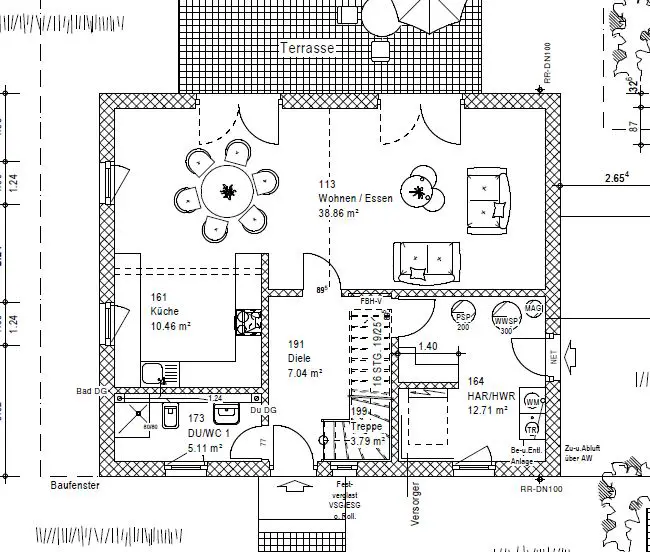
Ich würde gerne 2 Vollgeschosse und rechtekig bauen, mit Satteldach, ähnlich wie Jaydees Grundriss-im Anhang (von ähnlicher Breite und Länge), aber ihr Grundriss ist nicht 2 vollgeschossig.
Meine Frau hätte gerne 2 Badezimmer, oder ein Gäste-WC mit Dusche, ich versichere ihr, dass ein Badezimmer mit 2 Waschbecken ausreicht.
Ich entschuldige mich in schlechtem Deutsch, verfolge dein Forum seit Monaten und habe viel gelernt.
Danke für jede Hilfe.



Wir wollen ein Haus auf einem Grundstück von 600 m2 mit westlicher Annäherung bauen (eine Sackgasse).
Leider kann die Garage nur im Westen sein. (in dem Bild).
Ich sollte demnächst mit dem Architekten für den Vorentwurf sprechen.
Nach den Vorschriften in meinem Land kann das ursprüngliche Projekt später nicht mehr geändert werden.
Laut Bebauungsplan müssen wir eine geschlossene Garage bauen (2 Stellplätze pro Wohnung, davon 50% in einer geschlossenen Garage).
Das verteuert unsere Konstruktion und deshalb müssen wir von der "idealen" Größe von 150 qm mindestens ca. 10-15qm und natürlich ohne Keller abziehen.
Ich habe viele Foren gelesen und festgestellt, dass das Wichtigste ist, dass mein Wohn- und Esszimmer sind nicht schmaler als 4 Meter (mindestens 35 qm).
Dort und in der Küche werden wir 90% der Zeit verbringen.
Wir wollen eine offene Küche nach Osten mit möglichst viel Licht (vorzugsweise in zwei Zeile).
Wir möchten, dass Hauswirtschaftsraum mit mindestens 10 m2, Treppen so komfortabel wie möglich sind und nicht zu viel Platz einnehmen.
Auch eine Gästetoilette ohne Dusche davor wäre ein kleiderschrank (für Ikea Pax Tiefe 70 cm).
Oben hätten sie gerne Licht im Flur, 2 Kinderzimmer von ca. 13-14 qm nach Süden, ein Schlafzimmer nach Nordosten, wo wir den Ikea Pax-Schrank meiner Frau platzieren müssen 200x70cmx240cm.
Im Schlafzimmer sollte auch mein Kleiderschrank stehen, aber er kann kleiner sein als der meiner Frau.
Ich würde gerne 2 Vollgeschosse und rechtekig bauen, mit Satteldach, ähnlich wie Jaydees Grundriss-im Anhang (von ähnlicher Breite und Länge), aber ihr Grundriss ist nicht 2 vollgeschossig.
Meine Frau hätte gerne 2 Badezimmer, oder ein Gäste-WC mit Dusche, ich versichere ihr, dass ein Badezimmer mit 2 Waschbecken ausreicht.
Ich entschuldige mich in schlechtem Deutsch, verfolge dein Forum seit Monaten und habe viel gelernt.
Danke für jede Hilfe.
H
hanghaus200029.07.21 18:08Wer hat denn den Grundstücksplan gezeichnet?
Ist das Gruene das Grundstück? oder wo genau ist die Strasse?
Gibt es einen Bebauungsplan? Darf die Garage an die Grenze?
Ist das Gruene das Grundstück? oder wo genau ist die Strasse?
Gibt es einen Bebauungsplan? Darf die Garage an die Grenze?
H
hanghaus200029.07.21 19:34Die Grundrisse passen irgendwie gar nicht zum Grundstück.
Ähnliche Themen