T
topsurfer10.01.22 15:07Hallo,
wir haben nun ein 505 qm Grundstück gekauft.
Es liegt an einer ca. 2.50 hohen Böschung, danach ist das Grundstück fast eben (2m Steigung auf die 25m Grundstückslänge).
Siehe selbst erstellte GROBE Lageskizze: 3D-Lage_nur-grob.jpg
Breite des Grundstücks sind 20m, die aktuell geplante Hausbreite von 8.5m ist auch schon das mögliche maximum.
Bebauungsplan/Einschränkungen:
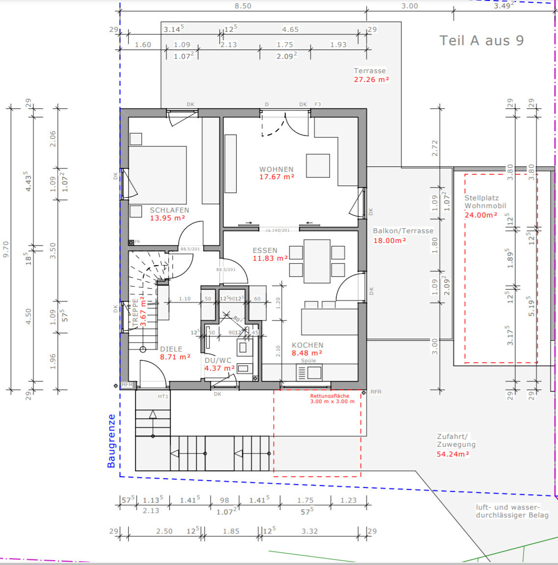
Größe des Grundstücks: 500 qm (20 x 25m)
Hang: Böschung am Eingangsbereich, danach fast eben.
Randbebauung: Nein
Anzahl Stellplatz: 2 (normale Garage und Carport (l=650cm) nebeneinander geplant)
Geschossigkeit: (Nutzraum-)Keller, EG und Obergeschoss (Kniestock 120cm)
Dachform: Satteldach 35°
Anforderungen der Bauherren
Anzahl der Personen, Alter: 2, Knapp 60
Raumbedarf im EG, OG:
Im EG Gästezimmer, WZ, Küche (Küche und WZ durch Schiebetür getrennt!), Gästebad mit Dusche.
Im OG sollen 2 (oder 3 Zimmer), plus Badezimmer.
Büro: Familiennutzung oder Homeoffice? Teilweise, im OG bei Empore geplant (oder im Gästezimmer im EG)
konservativ oder moderne Bauweise: wohl eher konservativ
offene Küche, Kochinsel: Keine offenen Küche, Kochinsel: ja!
Anzahl Essplätze: 6 (bei Feiern max. 10)
Kamin: Nein
Musik/Stereowand: eher nein, nichts grosses
Balkon, Dachterrasse: Nur Terrasse auf Garage neben der Essecke geplant
Garage, Carport: ja, ja
Nutzgarten, Treibhaus: Nein
Hinweis:
- Die Eingangstür muss etwa da liegen wo sie aktuell auch ist, wegen Überbücken der 250cm Höhe (Böschung)
- Der Keller hat eine ebenerdige Eingangstür (Waschküche, Werkstatt).
- Die Breite des Hauses ist auf die 8.50m begrenzt.
Hausentwurf
Von wem stammt die Planung:
-Architekt: Ja, Grundidee von uns
Was gefällt besonders?
Im EG alles auf 65 qm "untergbracht" (Bad, Küche, Treppenhaus, WZ, Essbereich
Diele mit Einbauschrank in Nische, auch Kühlschrnak und Herd in einer Nische etwas "versenkt" untergebracht.
Was gefällt nicht?
Sind genut "Wände" für schränke vorhanden?
Essbereich groß genug für auch mal 10 Personen (mit Ausziehtisch) ?
Preisschätzung lt Architekt/Planer:
...
favorisierte Heiztechnik:
Erdwärme
Wenn Ihr verzichten müsst, auf welche Details/Ausbauten könnt Ihr verzichten:
- "Schlafen" im EG könnte etwas kleiner (auf 12qm) werden
- "Schlafen" im OG könnte kleiner sein (akt. 18.7qm)
-könnt Ihr nicht verzichten:
- Wohnzimmer und Essbereich sollen durch Schiebetür getrennt sein!
- Gästezimmer im EG (auch als Notlösung wenn einer Probleme mit Treppen hat!),
-Kochinsel,
Warum ist der Entwurf so geworden, wie er jetzt ist?
- Unsere Wünsche wurden umgesetzt, z.B. Nischen für Garderobe in Diele und Küche (für Kühlschrnak und Hoch-Herd)
- Im OG zwei Wände mit 45° um es etwas "aufzulockern",
- offene EMpore im OG (welche aber mittels Trockenbau auch noch geschlossen werden könnte)
- Im Keller im Bereich der Kellertür Platz für 2 Räder
- Carport auch mit Camper gut erreichbar (650cm lang)
Was ist die wichtigste/grundlegende Frage zum Grundriss in 130 Zeichen zusammengefasst?
Sind die Räumlichkeiten (WZ, EZ, Kochen groß genug) oder zu "eng" ? Sind aber auch nur 2 Personen
Das Bad mit Dusche (90cm) ist ausreichend? Auch für später falls Pflege benötigt wird?






wir haben nun ein 505 qm Grundstück gekauft.
Es liegt an einer ca. 2.50 hohen Böschung, danach ist das Grundstück fast eben (2m Steigung auf die 25m Grundstückslänge).
Siehe selbst erstellte GROBE Lageskizze: 3D-Lage_nur-grob.jpg
Breite des Grundstücks sind 20m, die aktuell geplante Hausbreite von 8.5m ist auch schon das mögliche maximum.
Bebauungsplan/Einschränkungen:
Größe des Grundstücks: 500 qm (20 x 25m)
Hang: Böschung am Eingangsbereich, danach fast eben.
Randbebauung: Nein
Anzahl Stellplatz: 2 (normale Garage und Carport (l=650cm) nebeneinander geplant)
Geschossigkeit: (Nutzraum-)Keller, EG und Obergeschoss (Kniestock 120cm)
Dachform: Satteldach 35°
Anforderungen der Bauherren
Anzahl der Personen, Alter: 2, Knapp 60
Raumbedarf im EG, OG:
Im EG Gästezimmer, WZ, Küche (Küche und WZ durch Schiebetür getrennt!), Gästebad mit Dusche.
Im OG sollen 2 (oder 3 Zimmer), plus Badezimmer.
Büro: Familiennutzung oder Homeoffice? Teilweise, im OG bei Empore geplant (oder im Gästezimmer im EG)
konservativ oder moderne Bauweise: wohl eher konservativ
offene Küche, Kochinsel: Keine offenen Küche, Kochinsel: ja!
Anzahl Essplätze: 6 (bei Feiern max. 10)
Kamin: Nein
Musik/Stereowand: eher nein, nichts grosses
Balkon, Dachterrasse: Nur Terrasse auf Garage neben der Essecke geplant
Garage, Carport: ja, ja
Nutzgarten, Treibhaus: Nein
Hinweis:
- Die Eingangstür muss etwa da liegen wo sie aktuell auch ist, wegen Überbücken der 250cm Höhe (Böschung)
- Der Keller hat eine ebenerdige Eingangstür (Waschküche, Werkstatt).
- Die Breite des Hauses ist auf die 8.50m begrenzt.
Hausentwurf
Von wem stammt die Planung:
-Architekt: Ja, Grundidee von uns
Was gefällt besonders?
Im EG alles auf 65 qm "untergbracht" (Bad, Küche, Treppenhaus, WZ, Essbereich
Diele mit Einbauschrank in Nische, auch Kühlschrnak und Herd in einer Nische etwas "versenkt" untergebracht.
Was gefällt nicht?
Sind genut "Wände" für schränke vorhanden?
Essbereich groß genug für auch mal 10 Personen (mit Ausziehtisch) ?
Preisschätzung lt Architekt/Planer:
...
favorisierte Heiztechnik:
Erdwärme
Wenn Ihr verzichten müsst, auf welche Details/Ausbauten könnt Ihr verzichten:
- "Schlafen" im EG könnte etwas kleiner (auf 12qm) werden
- "Schlafen" im OG könnte kleiner sein (akt. 18.7qm)
-könnt Ihr nicht verzichten:
- Wohnzimmer und Essbereich sollen durch Schiebetür getrennt sein!
- Gästezimmer im EG (auch als Notlösung wenn einer Probleme mit Treppen hat!),
-Kochinsel,
Warum ist der Entwurf so geworden, wie er jetzt ist?
- Unsere Wünsche wurden umgesetzt, z.B. Nischen für Garderobe in Diele und Küche (für Kühlschrnak und Hoch-Herd)
- Im OG zwei Wände mit 45° um es etwas "aufzulockern",
- offene EMpore im OG (welche aber mittels Trockenbau auch noch geschlossen werden könnte)
- Im Keller im Bereich der Kellertür Platz für 2 Räder
- Carport auch mit Camper gut erreichbar (650cm lang)
Was ist die wichtigste/grundlegende Frage zum Grundriss in 130 Zeichen zusammengefasst?
Sind die Räumlichkeiten (WZ, EZ, Kochen groß genug) oder zu "eng" ? Sind aber auch nur 2 Personen
Das Bad mit Dusche (90cm) ist ausreichend? Auch für später falls Pflege benötigt wird?
Gibt es auch einen Nordpfeil (oder habe ich den übersehen)?
Warum macht ihr diesen aufwändigen Aufgang zum EG und gönnt euch nicht einen feudalen, ebenerdigen Eingangsbereich im "Kellergeschoss". So richtig schön großzügig verglast, mit Garderobe und allem pipapo. Hoch gehen müsst ihr doch so oder so, aber das wäre im Hausinneren doch einfacher/schöner, und ihr würdet im EG mehr Platz für Terrasse/Garten erhalten.
Warum macht ihr diesen aufwändigen Aufgang zum EG und gönnt euch nicht einen feudalen, ebenerdigen Eingangsbereich im "Kellergeschoss". So richtig schön großzügig verglast, mit Garderobe und allem pipapo. Hoch gehen müsst ihr doch so oder so, aber das wäre im Hausinneren doch einfacher/schöner, und ihr würdet im EG mehr Platz für Terrasse/Garten erhalten.
T
topsurfer10.01.22 16:38Zugang über Keller war auch diskutiert worden, aber da es ein Nutzraumkeller (ohne Isolierung) ist, wäre dies mit 5stelligen Mehrkosten verbunden.
Auch ist der Zugang über z.B. 5 Stufen, 1m eben, 5 Stufen, 1m eben, 5 Stufen, ... weniger Anstrengend.
Und viel Platz in der EG Diele würde man ja auch nicht gewinnen (OK der"Einbauschrank" von 120cm x 50cm würde wegfallen.)
Aber Haupteingang im Keller ist keine Option.
Und der "aufwändige" Zugang zum EG, dieser ist eh "verlorener" Platz, nimmt nichts von der nutzbaren Garten- oder Terrassenflächen (im SW) weg.
Nordpfeile, sorry, stimmt:
Norden ist grob "unten links" auf den Bilder, siehe hier zwei Bilder mit Nordppfeil


Auch ist der Zugang über z.B. 5 Stufen, 1m eben, 5 Stufen, 1m eben, 5 Stufen, ... weniger Anstrengend.
Und viel Platz in der EG Diele würde man ja auch nicht gewinnen (OK der"Einbauschrank" von 120cm x 50cm würde wegfallen.)
Aber Haupteingang im Keller ist keine Option.
Und der "aufwändige" Zugang zum EG, dieser ist eh "verlorener" Platz, nimmt nichts von der nutzbaren Garten- oder Terrassenflächen (im SW) weg.
Nordpfeile, sorry, stimmt:
Norden ist grob "unten links" auf den Bilder, siehe hier zwei Bilder mit Nordppfeil
P
Pitigliano10.01.22 17:16Weil du fragst ob auch mal 10 Personen im Esszimmer Platz finden. Dass wird ziemlich eng, bei gerademal 37qm Essen, Kochen, Wohnen. Da ihr mit aller Gewalt ein Schlafzimmer auf den kleinen Grundriss packt. Aufgrund des Alters und des gerechtfertigten Wunsches auf einer Ebene zu sein wäre es nicht besser auf den Keller einen Bungalow zu stellen?
T
topsurfer10.01.22 17:26Wegen der Böschung ist ein Keller notwendig bzw. kostenmäßig sinnvoll,
ansonsten ja: Wäre es was ohne Keller geworden.
ansonsten ja: Wäre es was ohne Keller geworden.
Ich würde mir diese „Wanderung“ von der (zu kleinen) Garage zur Haustüre aussenherum nicht antun wollen!
Einkäufe werden doch sicherlich dann durch Technik/Keller geschleppt.
Platz für „Essen“ ist ein schlechter Witz. Das sieht mir nach ner 49 qm-Wohnung aus. Und wenn mir ein Architekt diesen Schrank in Schlafen vor‘s Bett stellt, würde ich mir Gedanken machen.
Das würde ich für die vielen Euronen niemals so bauen (lassen)!
Da muss eine saubere, bessere Lösung her.
Einkäufe werden doch sicherlich dann durch Technik/Keller geschleppt.
Platz für „Essen“ ist ein schlechter Witz. Das sieht mir nach ner 49 qm-Wohnung aus. Und wenn mir ein Architekt diesen Schrank in Schlafen vor‘s Bett stellt, würde ich mir Gedanken machen.
Das würde ich für die vielen Euronen niemals so bauen (lassen)!
Da muss eine saubere, bessere Lösung her.
Ähnliche Themen