Grundriss für Haus am Hang (EG und Wohn-UG) mit Max. 150m²

4,80 Stern(e) 4 Votes
Zuletzt aktualisiert 20.11.2025
Sie befinden sich auf der Seite 5 der Diskussion zum Thema: Grundriss für Haus am Hang (EG und Wohn-UG) mit Max. 150m²
>> Zum 1. Beitrag <<

Y

ypg

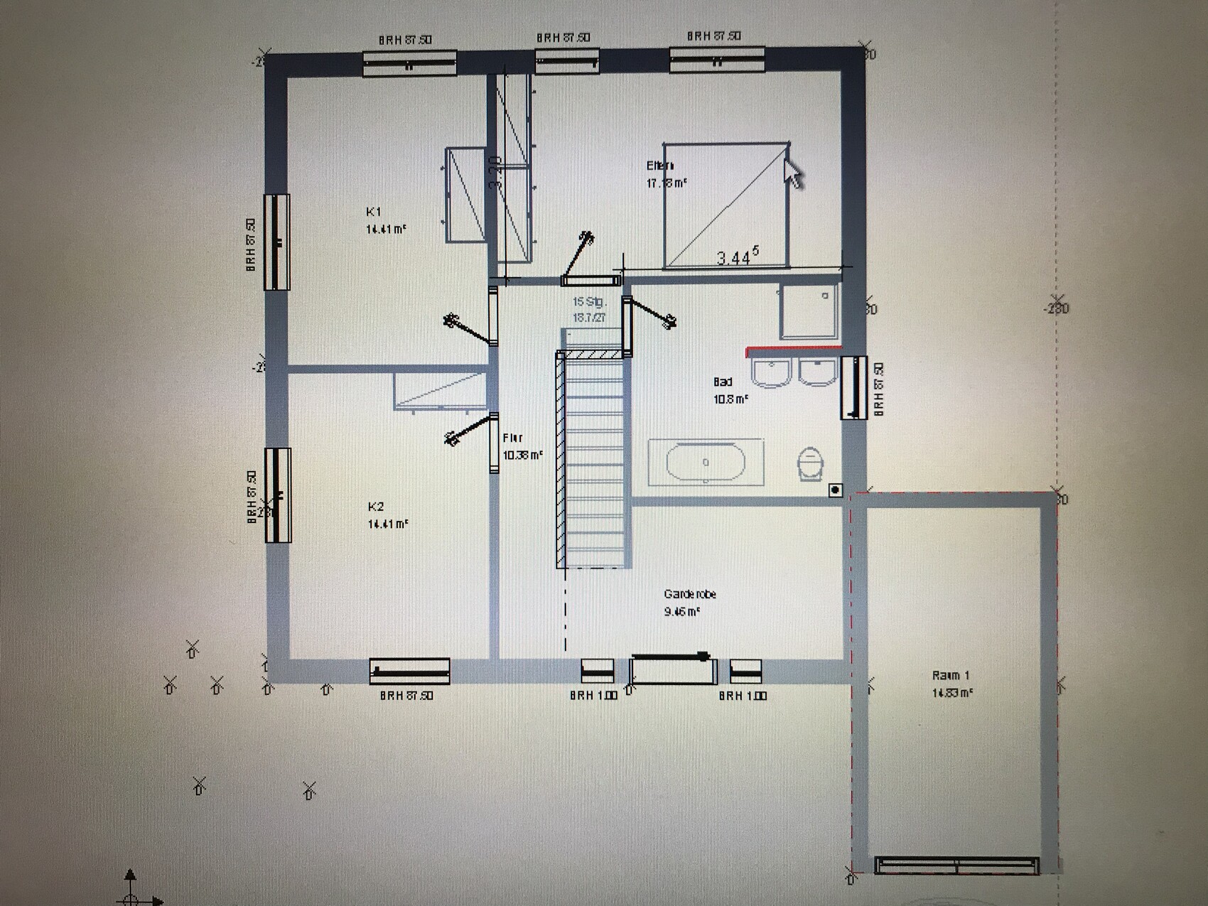
Immer noch die gerade Treppe, aber der Tausch von WZ mit Büro, dadurch Verzicht auf konservativen Flur, dadurch mehr Wohnraum.
Eingangsbereich, gleiche Kinderzimmern, ggf Ankleide, wenn man mag. Großer Hauswirtschaftsraum, Küche ist erweiterbar. Nun denn
Allerdings wurde das Haus etwas nach hinten verschoben bzw Garage nach vorn. Grundstück ist 20 X 35, wie angegeben, mehr wird hier nicht vom TE verraten.
Man sollte auch überlegen, ob nicht im Süden zumindest eine Sitzecke im Südgarten eingerichtet wird

Weißes Einfamilienhaus mit rotem Walmdach, Anbau-Garage und braunem Auto.


3D-Modell eines weißen, zweistöckigen Hauses mit rotem Dach und Fenstern.


Grundriss eines Hauses mit Treppe, Bad, K1, K2, Flur, Raum 1.


Grundriss eines Hauses: Treppe in Zentrum, Wohnzimmer mit runder Esstisch, Küche und mehrere Räume.
 
Y

ypg


Grundriss eines Gebäudeteils mit Außenwänden, rotem Treppenhaus und Ram 1/Ram 2.
Ich könnte mir auch solche Treppe vorstellen. Bei Max. Hausgröße von 150qm sollte man sich die Flurverschwendung reichlich überlegen
 
P

Pamiko

Danke für die Rückmeldungen.
Zum Grundstück habe ich aktuell keine Dateien vorliegen. Es gibt aber auch keine Besonderheiten. Die einzige Straße verläuft parallel. Der Hang ist gleichmäßig abfallend.
Ich befürchte, dass sich das Vorziehen der Garage (bzw. Haus nach hinten) sich bei den Baukosten deutlich bemerkbar macht. Aber das klär ich noch mal ab. So bekommt man auf jeden Fall mehr Möglichkeiten, weil ein Fenster in dem Raum an der Garage möglich wird.
 
P

Pamiko

Nein aber laut GU die günstigste Lösung.
Vom Material muss es entweder eine Betontreppe oder Granit-Bolzen-Treppe sein. Hier bei der geraden Treppe war es letzteres.
Und ja, wir wissen dass die teurer ist...
 
Zuletzt aktualisiert 20.11.2025
Im Forum Grundrissplanung / Grundstücksplanung gibt es 2535 Themen mit insgesamt 87978 Beiträgen


Ähnliche Themen zu Grundriss für Haus am Hang (EG und Wohn-UG) mit Max. 150m²
Nr.ErgebnisBeiträge
1 2 Vollgeschosse, Durchgang Garage, Hauswirtschaftsraum unter Treppe 25
2Grundriss mit Garage auf Grundstück realisierbar? 29
3Grundstück - Baufenster - Lage von Haus und Garage 44
4Haus, Garage / Carport auf dem Grundstück platzieren 93
5Ausrichtung Haus und Garage auf dem Grundstück - Seite 218
6Platzierung Haus und Garage auf Grundstück - Seite 212
7Position Garage auf Grundstück, Vorgabe im Bebauungsplan 22
8Ausrichtung Einfamilienhaus + Garage bei West-Ost Grundstück mit Strasse im Westen 18
9Suche nach Ideen für Grundstück mit Hanglage 28
10Grundriss Einfamilienhaus / Garage im EG? 10
11Grundrissplanung mit enger werdendem Grundstück - Seite 223
12Langes schmales Grundstück 170-190 qm 50
13200m2 Einfamilienhaus für 4-5 Personen ohne Keller auf schmalem Grundstück 67
14Grundstück mit Einschnitt Stromstation / L-Form- Ideensuche - Seite 444
15Einfamilienhaus 160m2 mit Keller, 500m2 Grundstück - Seite 8108
16Anspruch Grundstück von jedem Punkt der Straßenfront erreichbar? - Seite 213
17Grundriss Einfamilienhaus ca. 190m² und Platzierung auf Grundstück - Seite 222
18Grundriss Einfamilienhaus mit Flachdach auf 600m² Grundstück - Seite 419
19Ausrichtung Haus auf Grundstück 12
20Grundrissentwurf Einfamilienhaus165qm ohne Keller auf 400qm Grundstück - Seite 16180

Oben