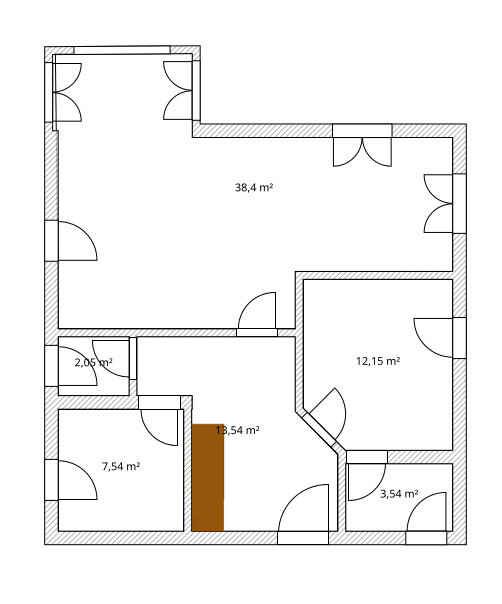
Basierend auf diesem Thread möchte ich unseren Grundrissentwurf einmal vorstellen.
Ich habe ihn selbst erstellt mit einer kostenlosen Software. Er ist also weder vom Architekten geprüft noch eine fertige Variante. Ich möchte nur zeigen, welche Raumaufteilung wir uns wünschen, wobei wir für Änderungsvorschläge jederzeit offen sind. Im Ursprungsthread steht die Frage im Raum, ob unsere Vorstellungen nur schwer umsetzbar sind bzw. nicht lukrativ genug für ein potenzielles Bauunternehmen.
Bebauungsplan/Einschränkungen
Größe des Grundstücks: 820m²
Hang: ganz leichte Hanglage
Grundflächenzahl: 0,4
Geschossigkeit: 1,5
Dachform: Dachneigung von 25° - 45°
Maximale Höhen/Begrenzungen: Traufhöhe max. 4,5m über höchstem Punkt des Baugeländes
Anforderungen der Bauherren
Stilrichtung, Dachform, Gebäudetyp: Holzrahmenbau mit Satteldach
Keller, Geschosse: Ohne Keller, 1,5 Geschosse
Anzahl der Personen, Alter: 2 Erwachsene, 1-2 Kinder.
Raumbedarf im EG: Küche, Wohnzimmer, Hauswirtschaftsraum, WC, Speisekammer
Raumbedarf im OG: Schlafzimmer, Kinderzimmer, Gäste-/Arbeitszimmer, Badezimmer
Büro: Familiennutzung
offene Küche: nein
Anzahl Essplätze: 6-8
Carport
Nutzgarten
weitere Wünsche: wir möchten gerne auf ca. 130 m² kommen
Hausentwurf
Von wem stammt die Planung: Von uns
Was gefällt besonders?: das große WZ, separate Speisekammer
favorisierte Heiztechnik: Wärmepumpe
Wenn Ihr verzichten müsst, auf welche Details/Ausbauten
-könnt Ihr verzichten: geschlossene Küche
Anhang:
-erster Entwurf mit Erker und schrägen Wänden.
-aktuelle Version ohne schräge Wände und Erker.
Die Räume im OG hätten natürlich noch Dachschrägen, so dass die m² sich hier ändern wird.




Ich habe ihn selbst erstellt mit einer kostenlosen Software. Er ist also weder vom Architekten geprüft noch eine fertige Variante. Ich möchte nur zeigen, welche Raumaufteilung wir uns wünschen, wobei wir für Änderungsvorschläge jederzeit offen sind. Im Ursprungsthread steht die Frage im Raum, ob unsere Vorstellungen nur schwer umsetzbar sind bzw. nicht lukrativ genug für ein potenzielles Bauunternehmen.
Bebauungsplan/Einschränkungen
Größe des Grundstücks: 820m²
Hang: ganz leichte Hanglage
Grundflächenzahl: 0,4
Geschossigkeit: 1,5
Dachform: Dachneigung von 25° - 45°
Maximale Höhen/Begrenzungen: Traufhöhe max. 4,5m über höchstem Punkt des Baugeländes
Anforderungen der Bauherren
Stilrichtung, Dachform, Gebäudetyp: Holzrahmenbau mit Satteldach
Keller, Geschosse: Ohne Keller, 1,5 Geschosse
Anzahl der Personen, Alter: 2 Erwachsene, 1-2 Kinder.
Raumbedarf im EG: Küche, Wohnzimmer, Hauswirtschaftsraum, WC, Speisekammer
Raumbedarf im OG: Schlafzimmer, Kinderzimmer, Gäste-/Arbeitszimmer, Badezimmer
Büro: Familiennutzung
offene Küche: nein
Anzahl Essplätze: 6-8
Carport
Nutzgarten
weitere Wünsche: wir möchten gerne auf ca. 130 m² kommen
Hausentwurf
Von wem stammt die Planung: Von uns
Was gefällt besonders?: das große WZ, separate Speisekammer
favorisierte Heiztechnik: Wärmepumpe
Wenn Ihr verzichten müsst, auf welche Details/Ausbauten
-könnt Ihr verzichten: geschlossene Küche
Anhang:
-erster Entwurf mit Erker und schrägen Wänden.
-aktuelle Version ohne schräge Wände und Erker.
Die Räume im OG hätten natürlich noch Dachschrägen, so dass die m² sich hier ändern wird.
S
Schneckham15.10.15 06:54Was für ein Kniestock soll es den werden?
Wie ist die Dachausrichtung? Garderobe würde mir im EG fehlen.
Würde einen direkten Durchgang von Küche in Wohnen/Essen machen, da sonst der Weg auf die Terrasse recht lang sein könnte.
Wie ist die Dachausrichtung? Garderobe würde mir im EG fehlen.
Würde einen direkten Durchgang von Küche in Wohnen/Essen machen, da sonst der Weg auf die Terrasse recht lang sein könnte.
Kisska86 schrieb:
Die Treppe ist wohl zu kurz und wird nicht funktionieren... Da muss nochmal neu ansetzen
das ist wahr. Das Programm hat nur keine passendere Treppe. Wie gesagt, hab ich mit einem kostenlosen Programm selbst gemacht.
Schneckham schrieb:
Was für ein Kniestock soll es den werden?
Wie ist die Dachausrichtung? Garderobe würde mir im EG fehlen.
Würde einen direkten Durchgang von Küche in Wohnen/Essen machen, da sonst der Weg auf die Terrasse recht lang sein könnte.Kniestock von 1m oder höher. Bei der Ausrichtung sind wir noch am überlegen. Wo würdest du die Garderobe unterbringen?Das mit dem Durchgang ist wahr. Danke für den Vorschlag. Werde ich mit aufnehmen.
S
Schneckham15.10.15 07:27Würde vielleicht tu allererst den Grundriss mit einer Treppe zeichnen die auch den Platzbedarf wirklich wieder spiegelt.
Mit Sweethome 3d geht das ja recht easy man kann die Maße ja entsprechend anpassen von Möbelstücken.
Habt ihr euch schon Gedanken über die Dachneigung gemacht? Spielt ja auch wesentlich in die Entscheidung über die Kniestockhöhe mit rein.
Mit Sweethome 3d geht das ja recht easy man kann die Maße ja entsprechend anpassen von Möbelstücken.
Habt ihr euch schon Gedanken über die Dachneigung gemacht? Spielt ja auch wesentlich in die Entscheidung über die Kniestockhöhe mit rein.
Ähnliche Themen