ᐅ Grundrissplanung Stadtvilla 180m² mit Keller
Erstellt am: 22.12.17 13:08
M
MIA_SAN_MIA__22.12.17 13:08Da der alte Thread ein reines Chaos ist, eröffne ich diesen hier neu:
Bebauungsplan/Einschränkungen: Kein Bebauungsplan, Erste Anfrage an Gemeinde mit positiver Rückmeldung.
Größe des Grundstücks: 884m²
Hang: Auf Gebäudebreite ca 1,5m gefälle von Nord nach Süd. Im Süden flach Richtung Straße auslaufend
Anzahl Stellplatz: 2 Garagenstellplätze
Geschossigkeit: 2
Ausrichtung: Essen/Kochen nach Süden
Anforderungen der Bauherren
Stilrichtung, Dachform, Gebäudetyp: Stadtvilla, Walmdach
Keller, Geschosse: Keller ja, 2 Geschossig
Anzahl der Personen, Alter: 2 27&24, geplant insgesamt 4
Büro: Familiennutzung oder Homeoffice? Homeoffice
Schlafgäste pro Jahr: wenige / Couch ausreichend
offene oder geschlossene Architektur: offen, Wohnzimmer durch Raumtrenner abgeteilt
konservativ oder moderne Bauweise: modern
offene Küche, Kochinsel: offen, Kochinsel absolut notwendig (optische Gründe)
Anzahl Essplätze: großer esstisch für 8-12 Personen
Kamin: ja,
Musik/Stereowand: 5.1 Anlage zum TV
Balkon, Dachterrasse: nein
Garage, Carport: Garage
Nutzgarten, Treibhaus: ja
weitere Wünsche/Besonderheiten/Tagesablauf, gern auch Begründungen, warum dieses oder das nicht sein soll
Wohnzimmer wird nur zum TV schauen genutzt, keine Südausrichtung notwendig
Hausentwurf
Von wem stammt die Planung:
-Planer
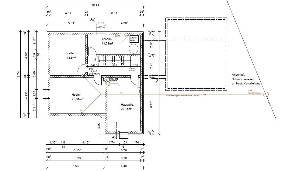
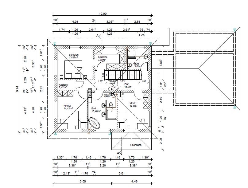
Was gefällt besonders? Warum? Alle Wünsche sind im Plan enthalten: Gerade Treppe, Wäscheabwurf, Garderobe neben der Haustüre, Speisekammer, Kochinsel
Was gefällt nicht? Warum?
Das mittlere Fenster auf der Südseite ist ziemlich nah am Erker.
Preisschätzung lt Architekt/Planer: 430k
favorisierte Heiztechnik: luftwärmepumpe
Wenn Ihr verzichten müsst, auf welche Details/Ausbauten
-könnt Ihr verzichten: Abwurfschacht
-könnt Ihr nicht verzichten: Speisekammer, Kochinsel, gerade Treppe
Warum ist der Entwurf so geworden, wie er jetzt ist? Unzählige Zeichnungen von uns, auf die der Planer aufgesetzt hat.
Entsprechende/Welche Wünsche wurden vom Architekten umgesetzt?
Ein Gemisch aus vielen Beispielen aus div. Magazinen, unseren Ideen und unserer Sturheit ;-) ,....
Was macht ihn in Euren Augen besonders gut oder schlecht?
Wir finden ihn sehr gelungen, sind aber um weitere Anregungen dankbar




Bebauungsplan/Einschränkungen: Kein Bebauungsplan, Erste Anfrage an Gemeinde mit positiver Rückmeldung.
Größe des Grundstücks: 884m²
Hang: Auf Gebäudebreite ca 1,5m gefälle von Nord nach Süd. Im Süden flach Richtung Straße auslaufend
Anzahl Stellplatz: 2 Garagenstellplätze
Geschossigkeit: 2
Ausrichtung: Essen/Kochen nach Süden
Anforderungen der Bauherren
Stilrichtung, Dachform, Gebäudetyp: Stadtvilla, Walmdach
Keller, Geschosse: Keller ja, 2 Geschossig
Anzahl der Personen, Alter: 2 27&24, geplant insgesamt 4
Büro: Familiennutzung oder Homeoffice? Homeoffice
Schlafgäste pro Jahr: wenige / Couch ausreichend
offene oder geschlossene Architektur: offen, Wohnzimmer durch Raumtrenner abgeteilt
konservativ oder moderne Bauweise: modern
offene Küche, Kochinsel: offen, Kochinsel absolut notwendig (optische Gründe)
Anzahl Essplätze: großer esstisch für 8-12 Personen
Kamin: ja,
Musik/Stereowand: 5.1 Anlage zum TV
Balkon, Dachterrasse: nein
Garage, Carport: Garage
Nutzgarten, Treibhaus: ja
weitere Wünsche/Besonderheiten/Tagesablauf, gern auch Begründungen, warum dieses oder das nicht sein soll
Wohnzimmer wird nur zum TV schauen genutzt, keine Südausrichtung notwendig
Hausentwurf
Von wem stammt die Planung:
-Planer
Was gefällt besonders? Warum? Alle Wünsche sind im Plan enthalten: Gerade Treppe, Wäscheabwurf, Garderobe neben der Haustüre, Speisekammer, Kochinsel
Was gefällt nicht? Warum?
Das mittlere Fenster auf der Südseite ist ziemlich nah am Erker.
Preisschätzung lt Architekt/Planer: 430k
favorisierte Heiztechnik: luftwärmepumpe
Wenn Ihr verzichten müsst, auf welche Details/Ausbauten
-könnt Ihr verzichten: Abwurfschacht
-könnt Ihr nicht verzichten: Speisekammer, Kochinsel, gerade Treppe
Warum ist der Entwurf so geworden, wie er jetzt ist? Unzählige Zeichnungen von uns, auf die der Planer aufgesetzt hat.
Entsprechende/Welche Wünsche wurden vom Architekten umgesetzt?
Ein Gemisch aus vielen Beispielen aus div. Magazinen, unseren Ideen und unserer Sturheit ;-) ,....
Was macht ihn in Euren Augen besonders gut oder schlecht?
Wir finden ihn sehr gelungen, sind aber um weitere Anregungen dankbar
M
MIA_SAN_MIA__22.12.17 13:38MIA_SAN_MIA__ schrieb:
Da der alte Thread ein reines Chaos ist,Das ist Ansichtssache. Damit niemand den Anschluss suchen muß: der letzte Entwurfsstand dort war in www.hausbau-forum.de/threads/allererster-entwurf-des-erdgeschosses.24502/page-41 Beitrag #245.Die Fassadenverkleidung und die Attika des Küchenerkers auch um die Ecke zu ziehen hätte ich bei der Angleichung der Fluchten beibehalten. Optisch war das ganz nett so, mir "mißfiel" lediglich der erhöhte Aufwand für Statik und Dämmung.
https://www.instagram.com/11antgmxde/
https://www.linkedin.com/company/bauen-jetzt/
M
MIA_SAN_MIA__22.12.17 17:1611ant schrieb:
Die Fassadenverkleidung und die Attika des Küchenerkers auch um die Ecke zu ziehen hätte ich bei der Angleichung der Fluchten beibehalten. Optisch war das ganz nett so, mir "mißfiel" lediglich der erhöhte Aufwand für Statik und Dämmung.Da ich mich beim betrachten des neuen Planes auf andere Sachen konzentriert habe ist mir das gar nicht aufgefallen. Das soll auch beibehalten werden. Muss ich ihn wieder einfügen lassen.
Curly schrieb:
Die Kinder haben zwar ein eigenes Bad, die Eltern kommen aber nicht ungestört in Ihres.Wieso - verlangen die Kids bei Dir Wegezoll ?Ich finde das gerade gut, daß es hier kein Eltern- und Kinderbad gibt, sondern einfach zwei Bäder.
https://www.instagram.com/11antgmxde/
https://www.linkedin.com/company/bauen-jetzt/
Ähnliche Themen