ᐅ Grundrissplanung Passivhaus Einfamilienhaus mit Keller 220m²
Erstellt am: 06.01.21 16:35
S
Sebastian_8306.01.21 16:35Hallo liebe Foren-Mitglieder,
ich hoffe, Ihr seid alle gut ins neue Jahr gestartet.
Ich möchte Euch gerne kurz unser Projekt vorstellen und ich würde mich sehr über Meinungen und Kritik am aktuellen Entwurf freuen.
Unsere Bauvoranfrage wurde noch im November 2020 bei der Gemeinde genehmigt und wir sind jetzt aktuell in der Grundrissplanung mit einem Architekten.
Sein erster Entwurf hat uns nicht überzeugt und deshalb haben wir in der freien Zeit selbst angefangen zu planen.
Hier sind die Infos, die man angeben sollte:
Bebauungsplan/Einschränkungen
Größe des Grundstücks ~ 400m²
Hang -
Grundflächenzahl 0,4
Geschossflächenzahl 0,8
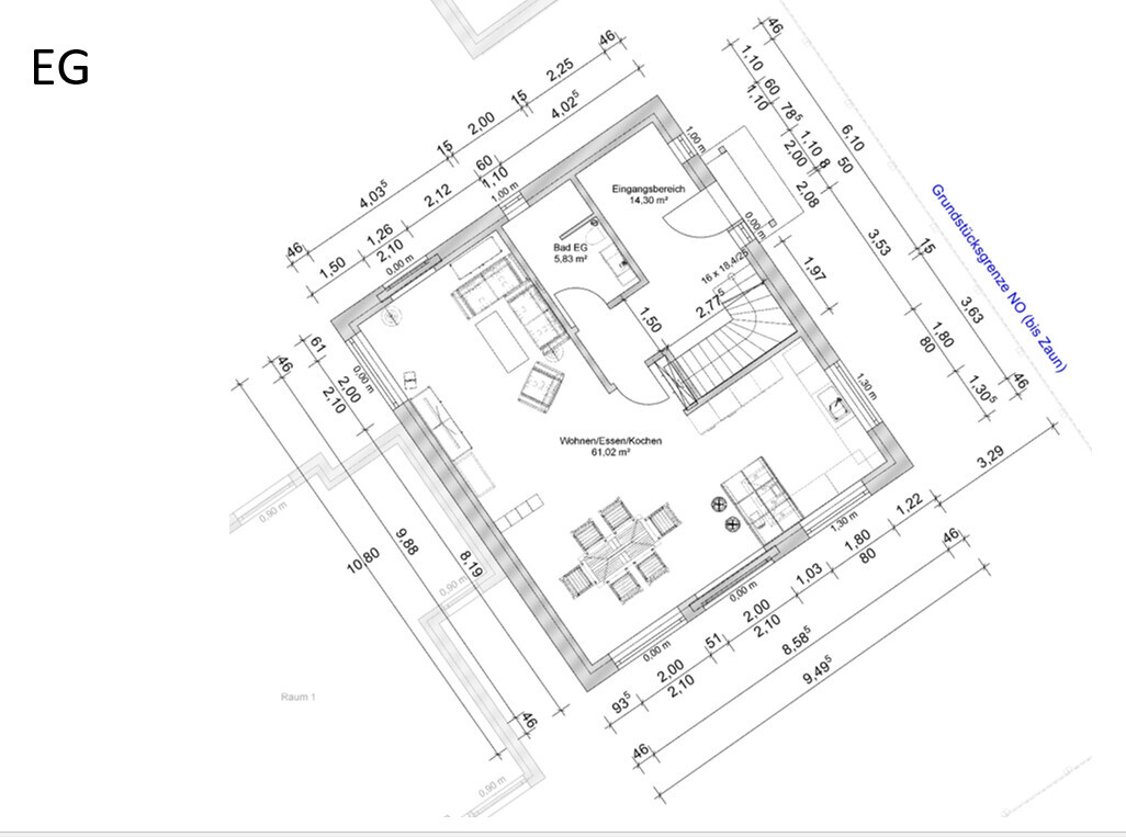
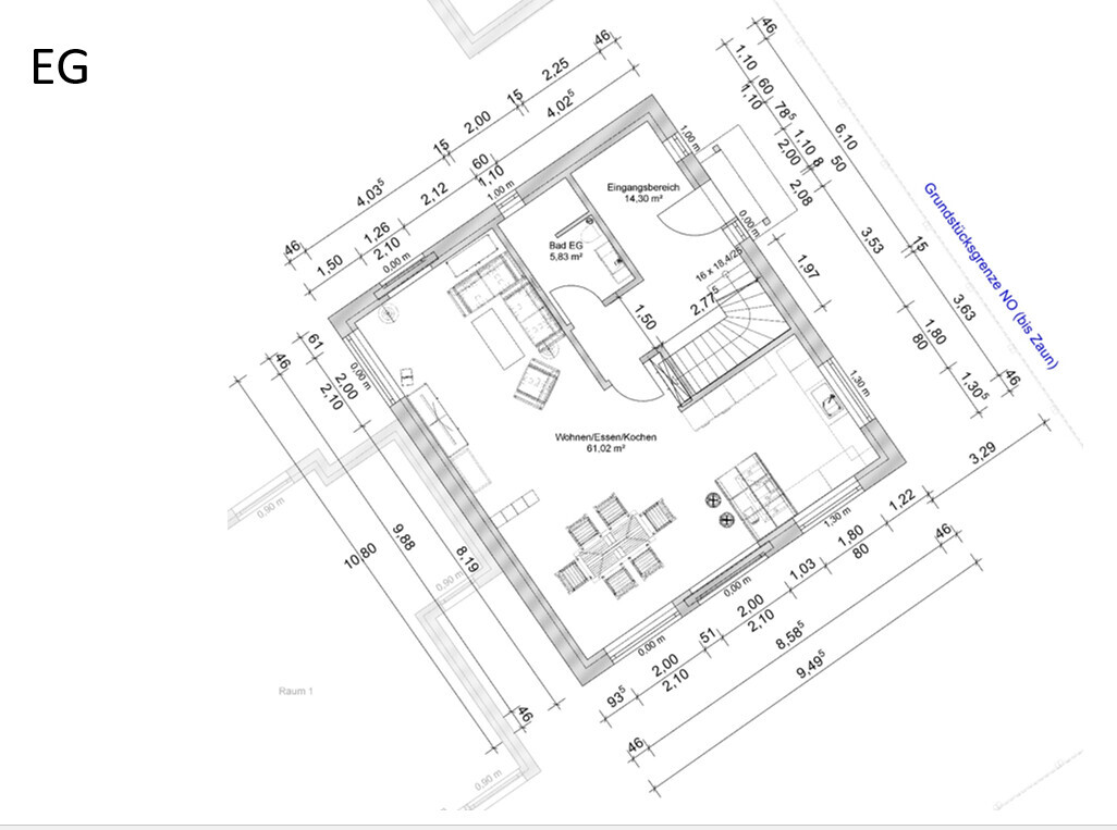
Baufenster 10m x 13m, siehe Anhang (in dunkelblau dargestellt)

Randbebauung: Direktanbau an Bestandsgebäude
Anzahl Stellplatz: 2
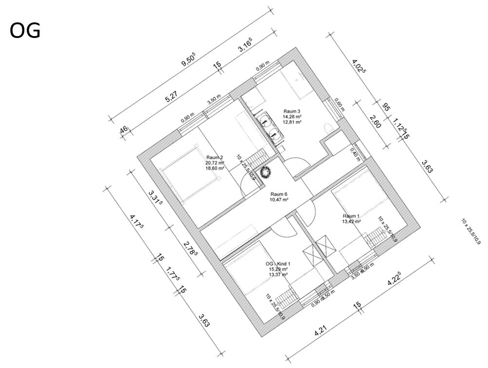
Geschossigkeit: 3 Geschosse -> UG, EG, OG mit 1,5m Kniestock innen (+offenes Dachgeschoss)
Dachform: Satteldach
Stilrichtung: Siedlerhaus / Passivhaus in Holzständerbauweise
Ausrichtung: siehe Bild
Maximale Höhen/Begrenzungen: 9,2m Firsthöhe, 4,8m Traufhöhe, 1,5m Kniestock innen
Anforderungen der Bauherren
Anzahl der Personen, Alter: 2x Erwachsene, 2x Kleinkinder
Raumbedarf im EG, OG: jeweils ca. 75m²
Büro: Familiennutzung oder Homeoffice? Homeoffice 2x wöchentlich
Schlafgäste pro Jahr: 2x2
offene oder geschlossene Architektur: siehe Entwurf
konservativ oder moderne Bauweise: siehe Entwurf
offene Küche, Kochinsel: Ja
Anzahl Essplätze: 6
Kamin: nein
Musik/Stereowand: ja, ist vorhanden
Balkon, Dachterrasse: nein
Garage, Carport: Garage Bestandsgebäude vorhanden
Nutzgarten, Treibhaus: kleines Beet ist geplant
Hausentwurf
Von wem stammt die Planung:
-Do-it-Yourself
Was gefällt besonders? Warum?
Position Wohnzimmer, viel Licht mit Abendsonne, direkter Zugang zum ruhigen Gartenbereich
offene Zwischendecken im OG für zusätzlichen Platz in Kinderzimmern und Büro über Schlafzimmer
Was gefällt nicht? Warum?
Position Homeoffice noch nicht 100% klar, ob das im DG taugt. Keller als Alternative aber evtl. zu dunkel auf Dauer trotz Lichtgraben...
Preisschätzung lt Architekt/Planer: -
Persönliches Preislimit fürs Haus, inkl Ausstattung: -
favorisierte Heiztechnik: Grundwasser-Wärmepumpe und Fußbodenheizung
Wenn Ihr verzichten müsst, auf welche Details/Ausbauten
-könnt Ihr verzichten: Sauna
-könnt Ihr nicht verzichten: große Küche
Warum ist der Entwurf so geworden, wie er jetzt ist?
Wenn die Kinder mal aus dem Haus sind ist die Abtrennbarkeit Treppenhaus für spätere Nutzung OG für Vermietung wichtig.
Daraus hat sich dann der Eingangsbereich ergeben und dann nach vielen Diskussionen mit meiner Frau ist es so geworden wie es ist.
Der erste Entwurf des Architekten war eher so ein Standard-Entwurf, der eig. nicht so ganz zu unserem Vorgespräch gepasst hat. Wohl eben in der Hektik vor Weihnachten hatte er keine Zeit mehr aber wollte wohl noch was abgeben. Zeitdruck von unserer Seite herrschte dabei eigentlich überhaupt nicht.
Offene Themen sind:
-Geschosshöhen / Deckendicken / Fußbodenaufbau allgemein
-Wie weit Haus nach hinten (für Tageslichteinfall SW Fenster Wohnzimmer)
-Feste / verschiebbare Trennwand Esszimmer zu Wohnzimmer?
-Ausführung Lichtgraben Keller
-Ausführung Galeriedecke / Raumhöhe Galerie
-Größe Kinderzimmer ausreichend?
-Fenster: Allgemein Fenstergrößen prüfen
OG:
-Dachfenster Kinderzimmer & Schlafzimmer: wie zu reinigen?
-Dachfenster Bad?
-Dachfenster Flur OG? Wo (beachte Anbau) und wie zu reinigen?
-Wo Fenster für Treppenhaus?
EG:
- Größe beider Fenster Wohnzimmer
Was ist die wichtigste/grundlegende Frage zum Grundriss in 130 Zeichen zusammengefasst?
Allgemeines Kritik und Anmerkungen würden mich sehr freuen, man kann ja immer noch etwas verbessern. Ich bin nicht zimperlich, also könnt Ihr Euch gerne voll auslassen aber bitte dabei sachlich bleiben, das würde ich freuen.
Persönliche Anmerkung zum Schluss:
Es steckt schon relativ viel Zeit und Gedanken drin. Aber nachdem es selbst konstruiert ist, mit Sicherheit auch ein paar Fehler in der Konstruktion. Ich bitte das nachzusehen, ich bin kein Profi und mit Familie hat man häufig auch nicht die Zeit alles oberkorrekt zu konstruieren. Aber ich hoffe, man kann damit was anfangen.
Danke Euch & viele Grüße








ich hoffe, Ihr seid alle gut ins neue Jahr gestartet.
Ich möchte Euch gerne kurz unser Projekt vorstellen und ich würde mich sehr über Meinungen und Kritik am aktuellen Entwurf freuen.
Unsere Bauvoranfrage wurde noch im November 2020 bei der Gemeinde genehmigt und wir sind jetzt aktuell in der Grundrissplanung mit einem Architekten.
Sein erster Entwurf hat uns nicht überzeugt und deshalb haben wir in der freien Zeit selbst angefangen zu planen.
Hier sind die Infos, die man angeben sollte:
Bebauungsplan/Einschränkungen
Größe des Grundstücks ~ 400m²
Hang -
Grundflächenzahl 0,4
Geschossflächenzahl 0,8
Baufenster 10m x 13m, siehe Anhang (in dunkelblau dargestellt)
Randbebauung: Direktanbau an Bestandsgebäude
Anzahl Stellplatz: 2
Geschossigkeit: 3 Geschosse -> UG, EG, OG mit 1,5m Kniestock innen (+offenes Dachgeschoss)
Dachform: Satteldach
Stilrichtung: Siedlerhaus / Passivhaus in Holzständerbauweise
Ausrichtung: siehe Bild
Maximale Höhen/Begrenzungen: 9,2m Firsthöhe, 4,8m Traufhöhe, 1,5m Kniestock innen
Anforderungen der Bauherren
Anzahl der Personen, Alter: 2x Erwachsene, 2x Kleinkinder
Raumbedarf im EG, OG: jeweils ca. 75m²
Büro: Familiennutzung oder Homeoffice? Homeoffice 2x wöchentlich
Schlafgäste pro Jahr: 2x2
offene oder geschlossene Architektur: siehe Entwurf
konservativ oder moderne Bauweise: siehe Entwurf
offene Küche, Kochinsel: Ja
Anzahl Essplätze: 6
Kamin: nein
Musik/Stereowand: ja, ist vorhanden
Balkon, Dachterrasse: nein
Garage, Carport: Garage Bestandsgebäude vorhanden
Nutzgarten, Treibhaus: kleines Beet ist geplant
Hausentwurf
Von wem stammt die Planung:
-Do-it-Yourself
Was gefällt besonders? Warum?
Position Wohnzimmer, viel Licht mit Abendsonne, direkter Zugang zum ruhigen Gartenbereich
offene Zwischendecken im OG für zusätzlichen Platz in Kinderzimmern und Büro über Schlafzimmer
Was gefällt nicht? Warum?
Position Homeoffice noch nicht 100% klar, ob das im DG taugt. Keller als Alternative aber evtl. zu dunkel auf Dauer trotz Lichtgraben...
Preisschätzung lt Architekt/Planer: -
Persönliches Preislimit fürs Haus, inkl Ausstattung: -
favorisierte Heiztechnik: Grundwasser-Wärmepumpe und Fußbodenheizung
Wenn Ihr verzichten müsst, auf welche Details/Ausbauten
-könnt Ihr verzichten: Sauna
-könnt Ihr nicht verzichten: große Küche
Warum ist der Entwurf so geworden, wie er jetzt ist?
Wenn die Kinder mal aus dem Haus sind ist die Abtrennbarkeit Treppenhaus für spätere Nutzung OG für Vermietung wichtig.
Daraus hat sich dann der Eingangsbereich ergeben und dann nach vielen Diskussionen mit meiner Frau ist es so geworden wie es ist.
Der erste Entwurf des Architekten war eher so ein Standard-Entwurf, der eig. nicht so ganz zu unserem Vorgespräch gepasst hat. Wohl eben in der Hektik vor Weihnachten hatte er keine Zeit mehr aber wollte wohl noch was abgeben. Zeitdruck von unserer Seite herrschte dabei eigentlich überhaupt nicht.
Offene Themen sind:
-Geschosshöhen / Deckendicken / Fußbodenaufbau allgemein
-Wie weit Haus nach hinten (für Tageslichteinfall SW Fenster Wohnzimmer)
-Feste / verschiebbare Trennwand Esszimmer zu Wohnzimmer?
-Ausführung Lichtgraben Keller
-Ausführung Galeriedecke / Raumhöhe Galerie
-Größe Kinderzimmer ausreichend?
-Fenster: Allgemein Fenstergrößen prüfen
OG:
-Dachfenster Kinderzimmer & Schlafzimmer: wie zu reinigen?
-Dachfenster Bad?
-Dachfenster Flur OG? Wo (beachte Anbau) und wie zu reinigen?
-Wo Fenster für Treppenhaus?
EG:
- Größe beider Fenster Wohnzimmer
Was ist die wichtigste/grundlegende Frage zum Grundriss in 130 Zeichen zusammengefasst?
Allgemeines Kritik und Anmerkungen würden mich sehr freuen, man kann ja immer noch etwas verbessern. Ich bin nicht zimperlich, also könnt Ihr Euch gerne voll auslassen aber bitte dabei sachlich bleiben, das würde ich freuen.
Persönliche Anmerkung zum Schluss:
Es steckt schon relativ viel Zeit und Gedanken drin. Aber nachdem es selbst konstruiert ist, mit Sicherheit auch ein paar Fehler in der Konstruktion. Ich bitte das nachzusehen, ich bin kein Profi und mit Familie hat man häufig auch nicht die Zeit alles oberkorrekt zu konstruieren. Aber ich hoffe, man kann damit was anfangen.
Danke Euch & viele Grüße
S
Sparfuchs7706.01.21 16:53EG und OG find ich persönlich schick. Einzig der Flur im OG zwischen den Kinderzimmern wäre für mich verschenkter Platz. Den könnte man auf die Kind und Raum2 aufteilen. Die Treppen in den Kinderzimmer werden aber so wohl nicht funktionieren ohne Kopfeinziehen, auch wenn ich die Idee ganz cool finde 🙂
S
Sparfuchs7706.01.21 17:06Bei der Decke im OG wirst mit 12cm wohl nicht hinkommen. Meine sind zb. bei Ähnlichen Hausmaßen 18cm dick. Dazu kommen 2,5cm Lattung (evtl Konterlattung +2,5cm) + 1,2cm Rigips + Belag (bei uns 1,5cm+2,2cm ESP + 1,0cm Laminat) im DG. Plane da lieber mal 25cm. Nicht das dir dann Deckenhöhe fehlt.
S
Sebastian_8306.01.21 19:22Einfahrt wie im 3D dargestellt im Südosten, die Garage muss leider hinten bleiben.
Über die Kosten bin ich gut im Bilder, die Wohnfläche von 220m² ist komplett innerhalb der thermischen Hülle.
Ich freue mich über weitere Fragen, Anmerkungen und sachliche Kritik zum Grundriss.
Danke & Grüße
Über die Kosten bin ich gut im Bilder, die Wohnfläche von 220m² ist komplett innerhalb der thermischen Hülle.
Ich freue mich über weitere Fragen, Anmerkungen und sachliche Kritik zum Grundriss.
Danke & Grüße
Sebastian_83 schrieb:
Einfahrt wie im 3D dargestellt im Südosten, die Garage muss leider hinten bleibenSorry, aber nirgendwo ist eine Ausrichtung gekennzeichnet.Wenn die blaue Schrift mit NO tatsächlich Nordost heißt, dann ist der Eingang auch NO, ok, die lange Einfahrt SO. Ja, so macht das Sinn.
ypg schrieb:
Und: wie hoch ist das Budget?Und diese Frage klammerst Du auch bewusst aus.Sebastian_83 schrieb:
Anmerkungen und sachliche Kritik zum Grundriss.Ohne Arme keine Kekse.Ähnliche Themen