ᐅ Stadtvilla mit ca. 200qm - ohne Keller. Bitte um Feedback
Erstellt am: 11.04.18 09:51
M
mrs_bauherrinM
mrs_bauherrin11.04.18 09:51Bebauungsplan/Einschränkungen
Größe des Grundstücks : 587 qm
Hang nein
Grundflächenzahl
Geschossflächenzahl
Baufenster, Baulinie und -grenze
Randbebauung
Anzahl Stellplatz 2 pro Wohneinheit
Geschossigkeit 2
Dachform keine Einschränkungen
Stilrichtung Stadtvilla
Ausrichtung
Maximale Höhen/Begrenzungen - Zum Nachbar 0,4 m x Traufhöhe
weitere Vorgaben : keine
Anforderungen der Bauherren
Stilrichtung, Dachform, Gebäudetyp: Stadtvilla mit Walmdach und 2 Vollgeschosse
Keller: nein, Geschosse: 2
Anzahl der Personen 3 , Alter (w31, m28, m2)
Raumbedarf im EG, OG: ca. ja 100 qm
Büro: Familiennutzung oder Homeoffice? Familiennutzung
Schlafgäste pro Jahr: 1
offene oder geschlossene Architektur: offen
konservativ oder moderne Bauweise: modern
offene Küche keine Türe zwischen Küche und Esszimmer , Kochinsel ja
Anzahl Essplätze 6-8
Kamin: ja, wasserführend
Musik/Stereowand: nein
Balkon ja , Dachterrasse nein
Garage ja 1 Stellplatz, Carport ja, 2 Stellplätze
Nutzgarten: gerne, aber noch nicht geplant , Treibhaus : evtl.
weitere Wünsche/Besonderheiten/Tagesablauf, gern auch Begründungen, warum dieses oder das nicht sein soll
Hauswirtschaftsraum Raum haben wir ins OG verlegt, da im EG kaum Platz ist und der Technikraum schon ohne Waschmaschine und Trockner sehr eng wird. Mir war wichtig die Wäsche direkt auf dem Balkon trocknen zu können, zumindest bei warmen Temperaturen.
Wir bekommen eine Kragarmtreppe und einen Luftraum. Der Zugang von der Garage zum Haus war mir wichtig. Mir fehlt etwas der Platzbedarf für Vorrat, aber evtl ist die Küche auch groß genug, da wir auch wieder einen Side by Side aufstellen werden. Konserven nutzen wir dann doch sehr selten.
Hausentwurf
Von wem stammt die Planung: Architekt, und viele eigene Entwürfe
-Planer eines Bauunternehmens
-Architekt
-Do-it-Yourself
Was gefällt besonders? Kragarmtreppe mit Glasgeländer (dafür ich putze gerne) , Balkon mit Glasgeländer, offener Wohn- Essbereich mit Kamin.
Was gefällt nicht? Warum? Technikraum benötigt soviel Platz und stört mich einfach, aber ein Keller war uns im Kosten /Nutzen Vergleich zu teuer.
Preisschätzung lt Architekt/Planer: 400.000 mit 60.000 Eigenleistung (Fensterbau- und Montage, Glasgeländer)
Persönliches Preislimit fürs Haus, inkl Ausstattung: s.o.
favorisierte Heiztechnik: Wärmepumpe,
Ansonsten noch eine Kontrollierte-Wohnraumlüftung und falls noch Geld da ist, etwas connected Home Technik
Wenn Ihr verzichten müsst, auf welche Details/Ausbauten
-könnt Ihr verzichten: Kind 1 ist etwas zu groß- das Bad wird evtl noch größer.
-könnt Ihr nicht verzichten: große Kinderzimmer >16qm, hohe Decke im EG 2,70m, große Küche, 2 Duschen im Haus
Warum ist der Entwurf so geworden, wie er jetzt ist? ZB
Standardentwurf vom Planer? Anfangs wollten wir eine zentrale T-Treppe, jedoch aus Platzmangel wurde es eine gerade Kragarmtreppe.
Entsprechende/Welche Wünsche wurden vom Architekten umgesetzt? alle
Ein Gemisch aus vielen Beispielen aus div. Magazinen: genau, speziell die mit dem roten V
Was macht ihn in Euren Augen besonders gut oder schlecht? Wir haben uns lange Zeit gelassen für die finale Planung ca. 1,5 Jahre
Was ist die wichtigste/grundlegende Frage zum Grundriss in 130 Zeichen zusammengefasst?
Wir möchten einfach noch mal die Meinung von 3. hören, oft fällt einem etwas nicht auf, was der andere sofort sieht.
Was ich noch erwähnen möchte: Abstellraum = Büro und Spielzimmer aber auch mit einer Möglichkeit Eimer, Staubsauger etc. abzustellen
Das Bad im OG wird noch vergrößert und Kind 1 etwas verkleinert.
Lageplan wird noch erstellt.





Größe des Grundstücks : 587 qm
Hang nein
Grundflächenzahl
Geschossflächenzahl
Baufenster, Baulinie und -grenze
Randbebauung
Anzahl Stellplatz 2 pro Wohneinheit
Geschossigkeit 2
Dachform keine Einschränkungen
Stilrichtung Stadtvilla
Ausrichtung
Maximale Höhen/Begrenzungen - Zum Nachbar 0,4 m x Traufhöhe
weitere Vorgaben : keine
Anforderungen der Bauherren
Stilrichtung, Dachform, Gebäudetyp: Stadtvilla mit Walmdach und 2 Vollgeschosse
Keller: nein, Geschosse: 2
Anzahl der Personen 3 , Alter (w31, m28, m2)
Raumbedarf im EG, OG: ca. ja 100 qm
Büro: Familiennutzung oder Homeoffice? Familiennutzung
Schlafgäste pro Jahr: 1
offene oder geschlossene Architektur: offen
konservativ oder moderne Bauweise: modern
offene Küche keine Türe zwischen Küche und Esszimmer , Kochinsel ja
Anzahl Essplätze 6-8
Kamin: ja, wasserführend
Musik/Stereowand: nein
Balkon ja , Dachterrasse nein
Garage ja 1 Stellplatz, Carport ja, 2 Stellplätze
Nutzgarten: gerne, aber noch nicht geplant , Treibhaus : evtl.
weitere Wünsche/Besonderheiten/Tagesablauf, gern auch Begründungen, warum dieses oder das nicht sein soll
Hauswirtschaftsraum Raum haben wir ins OG verlegt, da im EG kaum Platz ist und der Technikraum schon ohne Waschmaschine und Trockner sehr eng wird. Mir war wichtig die Wäsche direkt auf dem Balkon trocknen zu können, zumindest bei warmen Temperaturen.
Wir bekommen eine Kragarmtreppe und einen Luftraum. Der Zugang von der Garage zum Haus war mir wichtig. Mir fehlt etwas der Platzbedarf für Vorrat, aber evtl ist die Küche auch groß genug, da wir auch wieder einen Side by Side aufstellen werden. Konserven nutzen wir dann doch sehr selten.
Hausentwurf
Von wem stammt die Planung: Architekt, und viele eigene Entwürfe
-Planer eines Bauunternehmens
-Architekt
-Do-it-Yourself
Was gefällt besonders? Kragarmtreppe mit Glasgeländer (dafür ich putze gerne) , Balkon mit Glasgeländer, offener Wohn- Essbereich mit Kamin.
Was gefällt nicht? Warum? Technikraum benötigt soviel Platz und stört mich einfach, aber ein Keller war uns im Kosten /Nutzen Vergleich zu teuer.
Preisschätzung lt Architekt/Planer: 400.000 mit 60.000 Eigenleistung (Fensterbau- und Montage, Glasgeländer)
Persönliches Preislimit fürs Haus, inkl Ausstattung: s.o.
favorisierte Heiztechnik: Wärmepumpe,
Ansonsten noch eine Kontrollierte-Wohnraumlüftung und falls noch Geld da ist, etwas connected Home Technik
Wenn Ihr verzichten müsst, auf welche Details/Ausbauten
-könnt Ihr verzichten: Kind 1 ist etwas zu groß- das Bad wird evtl noch größer.
-könnt Ihr nicht verzichten: große Kinderzimmer >16qm, hohe Decke im EG 2,70m, große Küche, 2 Duschen im Haus
Warum ist der Entwurf so geworden, wie er jetzt ist? ZB
Standardentwurf vom Planer? Anfangs wollten wir eine zentrale T-Treppe, jedoch aus Platzmangel wurde es eine gerade Kragarmtreppe.
Entsprechende/Welche Wünsche wurden vom Architekten umgesetzt? alle
Ein Gemisch aus vielen Beispielen aus div. Magazinen: genau, speziell die mit dem roten V
Was macht ihn in Euren Augen besonders gut oder schlecht? Wir haben uns lange Zeit gelassen für die finale Planung ca. 1,5 Jahre
Was ist die wichtigste/grundlegende Frage zum Grundriss in 130 Zeichen zusammengefasst?
Wir möchten einfach noch mal die Meinung von 3. hören, oft fällt einem etwas nicht auf, was der andere sofort sieht.
Was ich noch erwähnen möchte: Abstellraum = Büro und Spielzimmer aber auch mit einer Möglichkeit Eimer, Staubsauger etc. abzustellen
Das Bad im OG wird noch vergrößert und Kind 1 etwas verkleinert.
Lageplan wird noch erstellt.
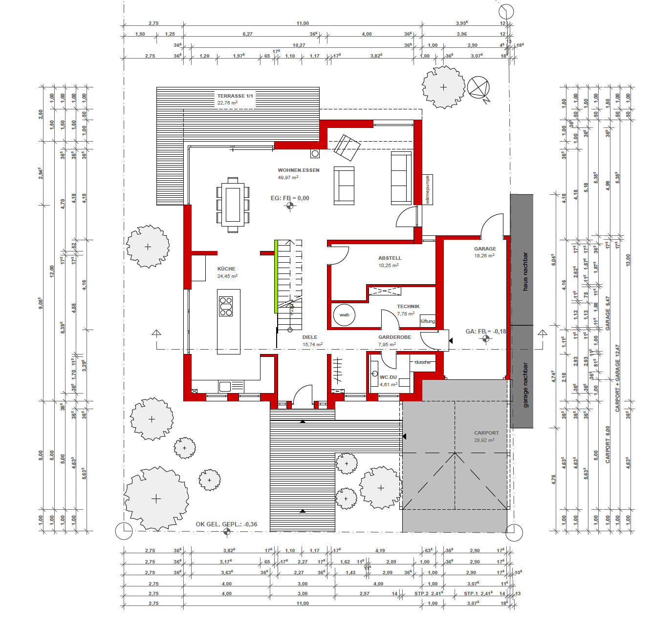
Guten Morgen!
Ich bin noch etwas erschlagen von den Dimensionen des Hauses.
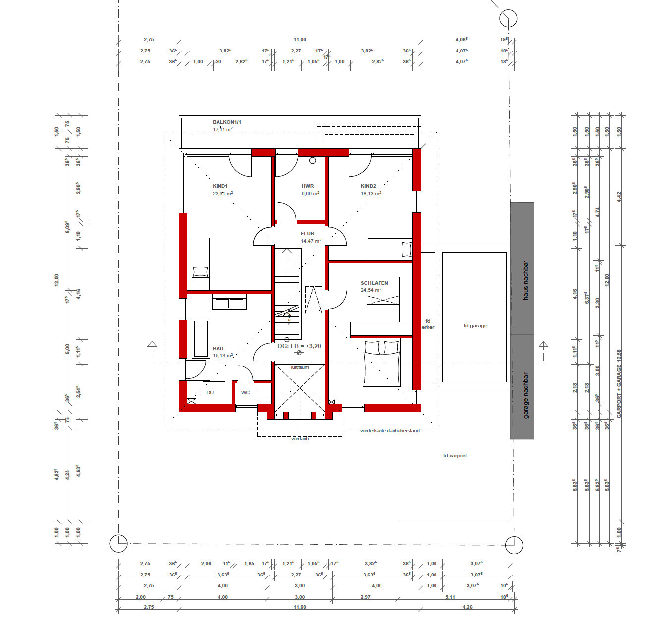
Der erste Eindruck war schön! Beim genaueren Betrachten schleicht sich aber an manchen Stellen das Gefühl ein, dass der viele Platz falsch verteilt ist. Im OG ist ja beispielsweise das Bad auch jetzt schon sehr groß!
Im EG kann ich mir die Küche nur schlecht vorstellen, was die Arbeitsabläufe angeht. Kann es sein, dass in dem Kücheneck der einzeln eingezeichnete Schrank zum Essplatz hin der Kühlschrank sein soll? Dann hält die Küche auf jeden Fall fit, bei ca. 6 m (!) Abstand zwischen Kühlschrank und Spüle. Oder soll die Küchenmöblierung noch anders werden. Mich würde auch interessieren, was das kleine Kreuzchen in der Arbeitsplatte, in der die Spüle ist, heißen soll. Läuft da ein Rohr runter und ihr müsst einen Schacht dafür bei der Küche aussparen?
Die 170 cm Rohbaumaß bei der Abkofferung zum Flur hin werden wohl für Hochschränke sein? Abgesehen davon dass es vermutlich noch ein paar CM weniger für Putz und Bauungenauingkeit werden, passt das Maß nicht gut für die Küchenplanung (2 Hochschränke mit 60 cm, Passleiste dazu und schon kann die Zeile mit der Spüle dort nur noch deutlich weniger als 60 cm tief sein).
Den Eingangs/Garderoben/ WC/Technik-Bereich finde ich hingegen zu verwinkelt und beengt im Vergleich zum restlichen Haus.
Bei der Ansicht würde ich gerne verstehen, warum die Fenster oft so ins Eck "gequetscht" sind (auffällig bei Kind 2 und Wohnen). Soll im OG alles Bodentief werden? Habt ihr schon mal versucht, die Kinderzimmer zu möblieren?
Ich bin noch etwas erschlagen von den Dimensionen des Hauses.
Der erste Eindruck war schön! Beim genaueren Betrachten schleicht sich aber an manchen Stellen das Gefühl ein, dass der viele Platz falsch verteilt ist. Im OG ist ja beispielsweise das Bad auch jetzt schon sehr groß!
Im EG kann ich mir die Küche nur schlecht vorstellen, was die Arbeitsabläufe angeht. Kann es sein, dass in dem Kücheneck der einzeln eingezeichnete Schrank zum Essplatz hin der Kühlschrank sein soll? Dann hält die Küche auf jeden Fall fit, bei ca. 6 m (!) Abstand zwischen Kühlschrank und Spüle. Oder soll die Küchenmöblierung noch anders werden. Mich würde auch interessieren, was das kleine Kreuzchen in der Arbeitsplatte, in der die Spüle ist, heißen soll. Läuft da ein Rohr runter und ihr müsst einen Schacht dafür bei der Küche aussparen?
Die 170 cm Rohbaumaß bei der Abkofferung zum Flur hin werden wohl für Hochschränke sein? Abgesehen davon dass es vermutlich noch ein paar CM weniger für Putz und Bauungenauingkeit werden, passt das Maß nicht gut für die Küchenplanung (2 Hochschränke mit 60 cm, Passleiste dazu und schon kann die Zeile mit der Spüle dort nur noch deutlich weniger als 60 cm tief sein).
Den Eingangs/Garderoben/ WC/Technik-Bereich finde ich hingegen zu verwinkelt und beengt im Vergleich zum restlichen Haus.
Bei der Ansicht würde ich gerne verstehen, warum die Fenster oft so ins Eck "gequetscht" sind (auffällig bei Kind 2 und Wohnen). Soll im OG alles Bodentief werden? Habt ihr schon mal versucht, die Kinderzimmer zu möblieren?
Ja, warum nicht. Kann man so bauen, obwohl es nicht 100%ig an allen Stellen ist.
Am meisten sticht mir das Bett ins Auge. Wie breit ist das und wie viel Platz ist da rechts noch zum laufen? Bei diesen Übermaß an m² erwarte ich hier mehr Großzügigkeit. Wenn ich die Zahlen recht deute, sind es gerade mal 40cm bei einem 2m Bett? Das ist schon fast frech vom Architekten.
Auch der Gang von der Garage ist nichts für Dicke mit 2 Einkaufstüten links und rechts. Ich sehe da 1m - nicht sehr einladend. Ebenso die Dusche im Gäste-WC sieht aus wie nur für schlanke Menschen. Steht da 80cm dran? Da hatte ich in meiner Studentenbude mehr Platz.
Bei 200m² ein wenig eng an diesen Stellen. Da würde ich nachbessern.
Das Bad ist groß und soll noch größer werden. Was soll da noch rein? So ein Riesenbad wird eher ungemütlich und nervig zu erlaufen. Waschbecken würde ich an die Wand planrechts legen, damit das Kind mehr Ruhe hat und die Lauferei weniger wird. Vielleicht gönnt man dem Kind auch lieber noch einen Kleiderraum als Schallschutz zum Bad.
Himmelsrichtung hab ich keine gesehen, daher keine Einschätzung hierzu.
Ansichten und Fenster sind jetzt auch nicht so der Brüller - sieht eher wahllos verteilt aus, bis auf den Eingangsbereich.
Am meisten sticht mir das Bett ins Auge. Wie breit ist das und wie viel Platz ist da rechts noch zum laufen? Bei diesen Übermaß an m² erwarte ich hier mehr Großzügigkeit. Wenn ich die Zahlen recht deute, sind es gerade mal 40cm bei einem 2m Bett? Das ist schon fast frech vom Architekten.
Auch der Gang von der Garage ist nichts für Dicke mit 2 Einkaufstüten links und rechts. Ich sehe da 1m - nicht sehr einladend. Ebenso die Dusche im Gäste-WC sieht aus wie nur für schlanke Menschen. Steht da 80cm dran? Da hatte ich in meiner Studentenbude mehr Platz.
Bei 200m² ein wenig eng an diesen Stellen. Da würde ich nachbessern.
Das Bad ist groß und soll noch größer werden. Was soll da noch rein? So ein Riesenbad wird eher ungemütlich und nervig zu erlaufen. Waschbecken würde ich an die Wand planrechts legen, damit das Kind mehr Ruhe hat und die Lauferei weniger wird. Vielleicht gönnt man dem Kind auch lieber noch einen Kleiderraum als Schallschutz zum Bad.
Himmelsrichtung hab ich keine gesehen, daher keine Einschätzung hierzu.
Ansichten und Fenster sind jetzt auch nicht so der Brüller - sieht eher wahllos verteilt aus, bis auf den Eingangsbereich.
Um auch mal kleine Änderungsvorschläge ins Spiel zu bringen:
Habt ihr schon mal probiert, im EG das WC dorthin zu legen, wo jetzt die Küchenzeile mit Spüle ist? Und dafür den Technikraum usw. zu vergrößern?
Abgesehen davon, dass dann in der Küche die Fenster geändert werden müssen, schadet es dem Raum mMn nicht, wenn er kürzer wird.
Im OG könnte man dort, wo im Bad bisher WC und Dusche sind, einen Hauswirtschaftsraum positionieren. Ist evtl. auch für die Entwässerung besser als oberhalb des Wohnzimmers?
Den bisherigen Hauswirtschaftsraum dann nur als Stauraum verwenden, Abstellfläche habt ihr im OG ja trotz der großen Zimmer nicht so viel.
Habt ihr schon mal probiert, im EG das WC dorthin zu legen, wo jetzt die Küchenzeile mit Spüle ist? Und dafür den Technikraum usw. zu vergrößern?
Abgesehen davon, dass dann in der Küche die Fenster geändert werden müssen, schadet es dem Raum mMn nicht, wenn er kürzer wird.
Im OG könnte man dort, wo im Bad bisher WC und Dusche sind, einen Hauswirtschaftsraum positionieren. Ist evtl. auch für die Entwässerung besser als oberhalb des Wohnzimmers?
Den bisherigen Hauswirtschaftsraum dann nur als Stauraum verwenden, Abstellfläche habt ihr im OG ja trotz der großen Zimmer nicht so viel.
M
mrs_bauherrin11.04.18 11:32Vielen Dank für Eure Beiträge,
ich versuche mal die Fragen zu beantworten.
Küche
Die Küche wird momentan noch in Zusammenarbeit mit einem Küchenstudio geplant. Die Anordnung wird sich daher noch ändern. Fest steht aber, dass wir eine Kücheninsel bekommen und die Spüle vor dem Fenster bleiben soll (Ausblick). Der Kühlschrank findet evtl. noch einen anderen Standort.
Für die 1.70m Wand waren 1x 60cm (Backofen) + 1x Apothekerschrank (gibts in ca. 30-45cm breite) vorgesehen. Aber evtl. kommen hier doch keine Hochschränke hin, sondern nur bei der Betonwand (Grün) - ist aber eben noch etwas in der Schwebe.
Das Kreuzchen hat irgendwas mit dem Bad (Rohr?) zu tun, ganz genau weiß ich das jetzt aber auch nicht? Muss ich noch mal mit dem Architekt abklären
Fenster
Die Fensteranordnung, besonders das im Essbereich (Wohnen), wurde so geplant, dass wir zur Ost/Süd Seite viel Sonne einfangen können.
Im OG wird das Eckfenster nicht bodentief, sodass man dort einen Schreibtisch o.ä. platzieren kann.
Eingangs/Garderoben/ WC/Technik
Ihr habt recht, der Eingangs/Garderoben/ WC/Technik-Bereich ist sehr verwinkelt und eng, was uns auch nicht gefällt, uns ist aber noch keine andere Lösung eingefallen. Um den Zugang zur Garage beizubehalten.
Schlafzimmer Eltern
Momentan haben wir ein Bett mit 160cm breite + ca. 15cm Rahmen = 175m. Das reicht uns. Im Alter können wir immer noch in die Kinderzimmer umziehen. Die sind dann (in ca. 40 Jahren) (hoffentlich) ausgezogen
Badezimmer OG
Da stimme ich euch zu, das Bad könnte vom Platz auch so bleiben und die Idee mit dem Kleiderraum für das Kind, ja das werden wir uns sehr stark überlegen.
Nordpfeil : Eckfenster Wohnen zeigt in etwas genau Süd Ost an wenn das weiterhilft
ich versuche mal die Fragen zu beantworten.
Küche
Die Küche wird momentan noch in Zusammenarbeit mit einem Küchenstudio geplant. Die Anordnung wird sich daher noch ändern. Fest steht aber, dass wir eine Kücheninsel bekommen und die Spüle vor dem Fenster bleiben soll (Ausblick). Der Kühlschrank findet evtl. noch einen anderen Standort.
Für die 1.70m Wand waren 1x 60cm (Backofen) + 1x Apothekerschrank (gibts in ca. 30-45cm breite) vorgesehen. Aber evtl. kommen hier doch keine Hochschränke hin, sondern nur bei der Betonwand (Grün) - ist aber eben noch etwas in der Schwebe.
Das Kreuzchen hat irgendwas mit dem Bad (Rohr?) zu tun, ganz genau weiß ich das jetzt aber auch nicht? Muss ich noch mal mit dem Architekt abklären
Fenster
Die Fensteranordnung, besonders das im Essbereich (Wohnen), wurde so geplant, dass wir zur Ost/Süd Seite viel Sonne einfangen können.
Im OG wird das Eckfenster nicht bodentief, sodass man dort einen Schreibtisch o.ä. platzieren kann.
Eingangs/Garderoben/ WC/Technik
Ihr habt recht, der Eingangs/Garderoben/ WC/Technik-Bereich ist sehr verwinkelt und eng, was uns auch nicht gefällt, uns ist aber noch keine andere Lösung eingefallen. Um den Zugang zur Garage beizubehalten.
Schlafzimmer Eltern
Momentan haben wir ein Bett mit 160cm breite + ca. 15cm Rahmen = 175m. Das reicht uns. Im Alter können wir immer noch in die Kinderzimmer umziehen. Die sind dann (in ca. 40 Jahren) (hoffentlich) ausgezogen
Badezimmer OG
Da stimme ich euch zu, das Bad könnte vom Platz auch so bleiben und die Idee mit dem Kleiderraum für das Kind, ja das werden wir uns sehr stark überlegen.
Nordpfeil : Eckfenster Wohnen zeigt in etwas genau Süd Ost an wenn das weiterhilft
Geht so, aber, mal abgesehen davon, daß ich eh kein Fan von diesen Stadtvillen bin, finde ich noch ein paar Verbesserungen möglich, dazu würde ich aber gerne etwas mehr von euch wissen:
Ist noch ein zweites Kind geplant? Dann würde mir bei einem Haus in der Dimension ein Raum für Gast/Arbeiten/etc. fehlen. Falls nicht, ok, hat man oben ein Kinderzimmer und ein weiteres Zimmer, das diese Funktion übernehmen kann. Aber wenn Kind 2 in Planung ist, selbst wenn ihr nur selten Gäste habt, sollen die wirklich auf der Couch schlafen? Bei einem Haus in dieser Dimension? Muß wirklich keiner von euch mal Schreibkram machen? Steuer? Rechnungen zahlen? Papierkram aufbewahren? Wo soll das passieren? Eine Ecke im Wohnzimmer?
Nachdem oben das Bad und das eine Kinderzimmer sehr groß sind, würde ich mir überlegen, hier ggf. noch einen kleineren Raum (10-12qm) abzuzwacken).
Ankleide/Schlafzimmer ist machbar, aber find ich auch suboptimal, weil, wie schon vorher angemerkt: viel Platz hat man nicht. Damit würde ich persönlich leben können, ich brauch keinen Catwalk ums Bett, aber vielleicht kann man hier was anders planen? Und wenn es nur die Position des Bettes ist (was ggf. zur Anpassung der Fensterverteilung führen könnte).
Küche sehe ich auch schwer zu möblieren. Wäre es hier nicht eine Option die bodentiefen Fenster zu Fenster in Arbeitsplatte-Höhe zu ändern? Dann könnte man damit was anfangen! Nachdem eh keine Symmetrie in der Außenansicht vorgesehen ist (was mir gefällt! Ich mag diese genormten Ansichten gar nicht), wäre hier noch Platz für Optimierung. Eine Tür in den Garten kann man ja trotzdem planen, z.B. Planoben an den Stummelwändchen zum Essbereich. Diese Stummelwändchen würde ich persönlich ganz weg lassen. Und dann geht erst mal zu einem guten Küchenplaner, entwerft mit dem die Küche und paßt die Fassade, die Anschlüsse etc. dann einer vernünftigen Küchenplanung an. Durch die freie Fassade habt ihr hier viele Möglichkeiten, die Küche so wie sie jetzt ist, würde mir nie ins Haus kommen.
Ich würde darüber hinaus Technik und Hauswirtschaftsraum (Abstell) im EG tauschen. Wenn schon der Zugang von der Garage, dann doch bitte auch nah am Hauswirtschaftsraum, wo doch die Einkäufe gelagert werden sollen, oder? Und von der Küche ist es dann auch nicht so weit. Der lange Gang gefällt mir auch nicht wirklich. Wäre es nicht auch eine Möglichkeit, den Gang zum Hauswirtschaftsraum/Technikraum zuzuschlagen, also Eingang direkt in Hauswirtschaftsraum/Technik (je nachdem wo dann was hinkommt), Klo zur Garderobe zu öffnen. Nachdem der Gang zu Technik/Hauswirtschaftsraum dazu kommt, könnte man den Durchgang zum Wohnzimmer etwas breiter und damit großzügiger gestalten, würde dem Ganzen auch etwas mehr "Luft" geben.
Abstell ist euer einziger Platz für allen Krempel??? Wäre mir zu wenig. Da würde ich mir echt überlegen, ob ich das Haus in der Dimension nicht etwas schrumpfe und dafür mir einen Keller gönne. Insbesondere, wenn es bei einem Kind bleiben sollte. 20qm weniger Bodenfläche ergibt schon fast den Preis für den Keller (und man braucht keine Bodenplatte, da ist der Keller dann ganz drin). Einsparpotenzial sehe ich bei Küche und Abstell (den man mit Keller nicht braucht), oben Bad und Kind1. Sollte also locker zu machen sein.
Falls es bei den Dimensionen bleibt und auch oben kein weiterer Raum geplant wird, würde ich mir ernsthaft überlegen, zum Bad noch eine Sauna zu bauen, damit das Bad und Kind1 nicht so derart überdimensioniert bleiben.
Ist noch ein zweites Kind geplant? Dann würde mir bei einem Haus in der Dimension ein Raum für Gast/Arbeiten/etc. fehlen. Falls nicht, ok, hat man oben ein Kinderzimmer und ein weiteres Zimmer, das diese Funktion übernehmen kann. Aber wenn Kind 2 in Planung ist, selbst wenn ihr nur selten Gäste habt, sollen die wirklich auf der Couch schlafen? Bei einem Haus in dieser Dimension? Muß wirklich keiner von euch mal Schreibkram machen? Steuer? Rechnungen zahlen? Papierkram aufbewahren? Wo soll das passieren? Eine Ecke im Wohnzimmer?
Nachdem oben das Bad und das eine Kinderzimmer sehr groß sind, würde ich mir überlegen, hier ggf. noch einen kleineren Raum (10-12qm) abzuzwacken).
Ankleide/Schlafzimmer ist machbar, aber find ich auch suboptimal, weil, wie schon vorher angemerkt: viel Platz hat man nicht. Damit würde ich persönlich leben können, ich brauch keinen Catwalk ums Bett, aber vielleicht kann man hier was anders planen? Und wenn es nur die Position des Bettes ist (was ggf. zur Anpassung der Fensterverteilung führen könnte).
Küche sehe ich auch schwer zu möblieren. Wäre es hier nicht eine Option die bodentiefen Fenster zu Fenster in Arbeitsplatte-Höhe zu ändern? Dann könnte man damit was anfangen! Nachdem eh keine Symmetrie in der Außenansicht vorgesehen ist (was mir gefällt! Ich mag diese genormten Ansichten gar nicht), wäre hier noch Platz für Optimierung. Eine Tür in den Garten kann man ja trotzdem planen, z.B. Planoben an den Stummelwändchen zum Essbereich. Diese Stummelwändchen würde ich persönlich ganz weg lassen. Und dann geht erst mal zu einem guten Küchenplaner, entwerft mit dem die Küche und paßt die Fassade, die Anschlüsse etc. dann einer vernünftigen Küchenplanung an. Durch die freie Fassade habt ihr hier viele Möglichkeiten, die Küche so wie sie jetzt ist, würde mir nie ins Haus kommen.
Ich würde darüber hinaus Technik und Hauswirtschaftsraum (Abstell) im EG tauschen. Wenn schon der Zugang von der Garage, dann doch bitte auch nah am Hauswirtschaftsraum, wo doch die Einkäufe gelagert werden sollen, oder? Und von der Küche ist es dann auch nicht so weit. Der lange Gang gefällt mir auch nicht wirklich. Wäre es nicht auch eine Möglichkeit, den Gang zum Hauswirtschaftsraum/Technikraum zuzuschlagen, also Eingang direkt in Hauswirtschaftsraum/Technik (je nachdem wo dann was hinkommt), Klo zur Garderobe zu öffnen. Nachdem der Gang zu Technik/Hauswirtschaftsraum dazu kommt, könnte man den Durchgang zum Wohnzimmer etwas breiter und damit großzügiger gestalten, würde dem Ganzen auch etwas mehr "Luft" geben.
Abstell ist euer einziger Platz für allen Krempel??? Wäre mir zu wenig. Da würde ich mir echt überlegen, ob ich das Haus in der Dimension nicht etwas schrumpfe und dafür mir einen Keller gönne. Insbesondere, wenn es bei einem Kind bleiben sollte. 20qm weniger Bodenfläche ergibt schon fast den Preis für den Keller (und man braucht keine Bodenplatte, da ist der Keller dann ganz drin). Einsparpotenzial sehe ich bei Küche und Abstell (den man mit Keller nicht braucht), oben Bad und Kind1. Sollte also locker zu machen sein.
Falls es bei den Dimensionen bleibt und auch oben kein weiterer Raum geplant wird, würde ich mir ernsthaft überlegen, zum Bad noch eine Sauna zu bauen, damit das Bad und Kind1 nicht so derart überdimensioniert bleiben.
Ähnliche Themen