Grundriss Einfamilienhaus in Hanglage

4,60 Stern(e) 8 Votes
Zuletzt aktualisiert 21.12.2025
Sie befinden sich auf der Seite 6 der Diskussion zum Thema: Grundriss Einfamilienhaus in Hanglage
>> Zum 1. Beitrag <<

H

hanghaus2023

@K a t j a und @ypg das sind max 8% Steigung. Das kann mann im Hausbereich leicht einebnen. Natürlich Alles ohne Stützmauern. Wenn man aber das Grundstück komplett einebnen will dann wird es richtig teuer. Das will der TE doch gar nicht.
 
K a t j a

K a t j a

@K a t j a und @ypg das sind max 8% Steigung. Das kann mann im Hausbereich leicht einebnen. Natürlich Alles ohne Stützmauern. Wenn man aber das Grundstück komplett einebnen will dann wird es richtig teuer. Das will der TE doch gar nicht.
Ja, ich habe die Steigung schon in meinem Programm modelliert. Es ist trotzdem zu viel, um 2 Terrassen (Norden / Süden) anzulegen, finde ich. Das Haus selbst muss neben der Garage schon recht stark in die Tiefe und damit in den Hang wachsen aufgrund der mangelnden Grundstücksbreite. Ansonsten bekommst Du die vielen Zimmer nicht unter. Also wenigstens 11m Tiefe + jeweils 3m Terrasse sind 17m abgraben, um auf eine Ebene zu kommen. Das ist ein Brett - finanziell. Da haben wir noch nicht über Treppen oder Lichtausbeute bei 3m Terrassen gesprochen.

Inwiefern man vielleicht das Dach noch ausbauen könnte, müsste man prüfen. Wenn dort z.B. Büro und Eltern unterkommen, kann man die Grundfläche verkleinern und hätte etwas weniger umzugraben. Aber 2 Terrassen ausgerechnet im Norden und Süden halte ich für ambitioniert.

PS: die Bilder dienen nur zur Verdeutlichung der Höhen.
Graues Flachdach-Gebäude mit zwei Holztüren, freistehend in grasgrünem Hof mit Zaun.

Modernes, flaches Haus mit Eingang links, Doppelgarage rechts, umzäuntes Grundstück auf grünem Hang.

Grundriss von oben: linkes Zimmer mit Tür unten, rechtes Anbauzimmer; lila Wände.
 
K a t j a

K a t j a

Der Entwurf aus #5 Bild 4 ist ja nicht schlecht aber eben auch extrem teuer, denke ich. Wie viel Kubikmeter Erde sind das? Hast Du das schon mal ausgerechnet?
 
K a t j a

K a t j a

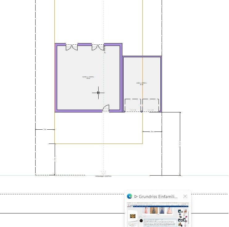
Haus 9*11m Garage 6*7m, Norden ist oben.

Anhang anzeigen 91517

Anhang anzeigen 91518

Auffahrt hat max. 10% Steigung.
Das ist ja so ähnlich wie in #5 vom TE. Er möchte die Garage jetzt nur noch direkt ans Haus. Aber wie soll die Abgrabung aussehen? Ich nehme an, über die gesamte Grundstücksbreite. Das ist schon ein ordentliches Hochbeet voll Erde. Außerdem müsste praktisch statt des Zaunes über einen Großteil der Tiefe eine Stützmauer hin. Regenwasser-Versickerung bzw. Ableitung über die ganze Fläche. Dazu die Anforderungen an das Haus. Ich bin da bei schätzungsweise 800K wenn nicht gar mehr.
 
H

hanghaus2023

Man kann auch das Haus und Garage noch etwas höher setzen, dann einen Massenausgleich herstellen. Dann wird aber die Auffahrt Richtung 15%.

Das Problem ist die bodengleiche Garage.

Ich habe 3 Stufen zur Garage die schaffe ich gerade noch. So etwas würde das extrem entspannen.
 
Zuletzt aktualisiert 21.12.2025
Im Forum Grundrissplanung / Grundstücksplanung gibt es 2552 Themen mit insgesamt 88541 Beiträgen


Ähnliche Themen zu Grundriss Einfamilienhaus in Hanglage
Nr.ErgebnisBeiträge
1Planung der Auffahrt für großes Hanggrundstück - 25% Steigung - Seite 443
2Auffahrt erstellen mit 25% Steigung? - Seite 223
3Steigung bei Hofeinfahrt? 16
4Bebaute Fläche: Gehören Garage / Carport zur bebauten Fläche? 19
5Haus und Garage - Wie am besten auf den Grundstücken platzieren? - Seite 267
6Steigung Hofeinfahrt / Höhenunterschied - Seite 220
7Ausrichtung Haus und Garage auf dem Grundstück - Seite 218
8Terrassen: Welche Anzahl und wohin? 18
9Grundriss für Einfamilienhaus mit 200m² mit Einliegerwohnung 75 +Keller 140m² +Garage 56m² - Seite 259
10Ausrichtung Einfamilienhaus + Garage bei West-Ost Grundstück mit Strasse im Westen 18
11Steigung Garageneinfahrt zu steil? 10
12Einfamilienhaus mit ebenerdiger Einliegerwohnung auf Hang - Seite 24297
13Garage direkt an Einfamilienhaus. Fundament ausreichend? 20
14Hausfinanzierung - Haus, Garage und Bodenplatte ca. 290.000 EUR 11
15Technikraum in Garage einbauen? Ist dies möglich? - Seite 335
16Beheizung Garage. Was ist die beste / günstigste Lösung? 10
17Wo stellen wir Haus und Garage hin? 10
18Kostenschätzung Einfamilienhaus mit Garage 11
19Erstes Angebot, 157m2 mit Keller, KFW 70, Garage 14
20Grundrissentwurf eines Passivhauses 170m² mit Garage - Seite 218

Oben