ᐅ Grundriss Einfamilienhaus als Stadtvilla
Erstellt am: 20.04.26 23:13
X
xDorixHallo zusammen,
bei uns geht es bald schon los. Bevor alles gemauert ist, würde ich mich über eure Einschätzungen freuen.
Wir haben den Grundriss mehr oder weniger selbst geplant nachdem wir uns verschiedene Häuser und Grundrisse angeschaut haben. Wir haben aus den verschiedenen Grundrissen das genommen, was uns gut gefallen hat und so unser Haus geplant und mit unserem Bauingenieur nach und nach verbessert.
Bebauungsplan/Einschränkungen
Größe des Grundstücks: ca. 2500m²
Hang: Nein
Grundflächenzahl: ?
Geschossflächenzahl: ?
Baufenster, Baulinie und -grenze: ?
Randbebauung: ?
Anzahl Stellplatz: 2
Geschossigkeit: 2
Dachform: Walmdach 24°
Stilrichtung: Modern
Ausrichtung: Wohn-/Essbereich Richtung Osten
Maximale Höhen/Begrenzungen: ?
weitere Vorgaben: nicht bekannt
Anforderungen der Bauherren
Stilrichtung, Dachform, Gebäudetyp: Moderne Stadtvilla mit Walmdach 24°
Keller, Geschosse: Kein Keller, 2 Vollgeschosse
Anzahl der Personen, Alter: Aktuell 2 Erwachsene (zwei Kinderzimmer sind geplant)
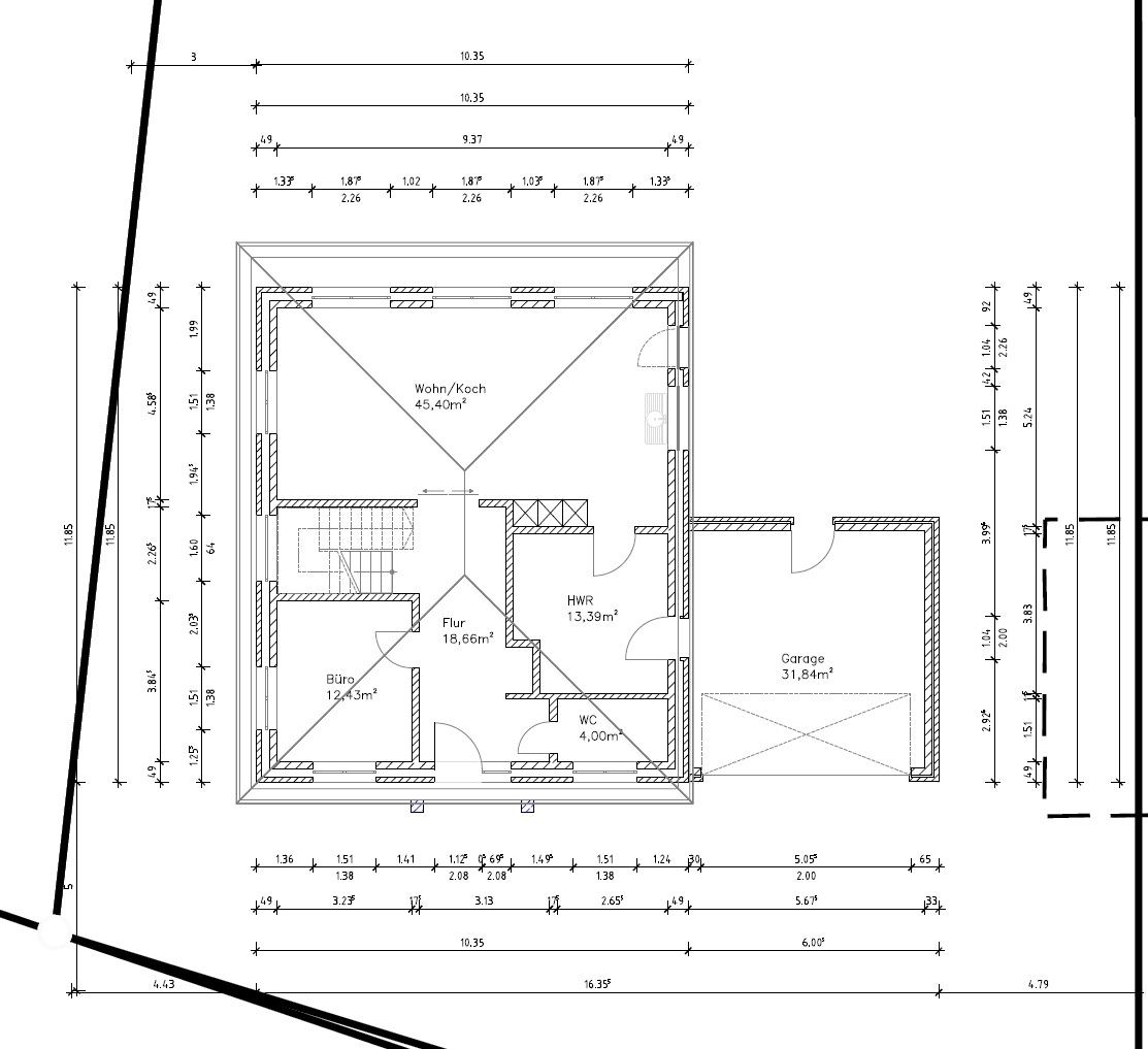
Raumbedarf im EG, OG: EG: Wohn-/Ess-/Kochbereich, HWR, Gäste-WC, Büro OG: Elternbadezimmer, Kinderbadezimmer, Schlafzimmer inkl. Ankleide, Kind 1, Kind 2
Büro: Familiennutzung oder Homeoffice?: Familiennutzung
Schlafgäste pro Jahr: ?
offene oder geschlossene Architektur: ?
konservativ oder moderne Bauweise: modern
offene Küche, Kochinsel: offene Küche mit Kochinsel
Anzahl Essplätze: 6
Kamin: Ja
Musik/Stereowand: Nein
Balkon, Dachterrasse: Terasse über Hebeschiebetür erreichbar
Garage, Carport: Doppelgarage
Nutzgarten, Treibhaus: Nein
weitere Wünsche/Besonderheiten/Tagesablauf, gern auch Begründungen, warum dieses oder das nicht sein soll: Wir wollten unbedingt einen Luftraum zentral über dem Wohn-/Ess-/Kochbereich haben. Dieser hat im OG ein feststehendes Fensterelement mit Blick auf unser großes Gründstück und unseren zukünftigen Garten. Im EG steht unter diesem Luftraum der Esstisch.
Hausentwurf
Von wem stammt die Planung:
-Eigener Entwurf basierend auf vielen verschiedenen Grundrissen
Was gefällt besonders? Warum?: Symmetrie des Haus in der Außenansicht, Der, durch die großen Fenster durchflutete Wohn-/Ess-/Kochbereich inkl. dem Luftraum, Die offene Treppe mit großem Fenster, Der, durch den Luftraum offene und lichtdurchflutete Flur im OG.
Was gefällt nicht? Warum?: /
Preisschätzung laut Architekt/Planer: /
Persönliches Preislimit fürs Haus, inkl. Ausstattung: /
favorisierte Heiztechnik: Luft-Wasser-Wärmepumpe
Wenn Ihr verzichten müsst, auf welche Details/Ausbauten
-könnt Ihr verzichten: /
-könnt Ihr nicht verzichten: - Luftraum, Treppe, Wohnzimmer inkl. Küche
Wir sind mit dem Grundriss eigentlich sehr zufrieden. Wir würden aber gerne wissen, ob wir irgendwo vielleicht etwas vergessen haben oder etwas verbessert werden kann.
Bei der Küche fällt die gezeichnete Tür weg. Die Küchenzeile erstreckt sich über die komplette Wand und das gezeichnete Fenster ist relativ groß zur Südseite ausgereichtet, um so auch noch Lichteinfall zum Nachmittag hin zu haben.
Wir haben leider keine 3D-Ansichten der Räume, so wie es manche hier zeigen können.
EG:

OG:

bei uns geht es bald schon los. Bevor alles gemauert ist, würde ich mich über eure Einschätzungen freuen.
Wir haben den Grundriss mehr oder weniger selbst geplant nachdem wir uns verschiedene Häuser und Grundrisse angeschaut haben. Wir haben aus den verschiedenen Grundrissen das genommen, was uns gut gefallen hat und so unser Haus geplant und mit unserem Bauingenieur nach und nach verbessert.
Bebauungsplan/Einschränkungen
Größe des Grundstücks: ca. 2500m²
Hang: Nein
Grundflächenzahl: ?
Geschossflächenzahl: ?
Baufenster, Baulinie und -grenze: ?
Randbebauung: ?
Anzahl Stellplatz: 2
Geschossigkeit: 2
Dachform: Walmdach 24°
Stilrichtung: Modern
Ausrichtung: Wohn-/Essbereich Richtung Osten
Maximale Höhen/Begrenzungen: ?
weitere Vorgaben: nicht bekannt
Anforderungen der Bauherren
Stilrichtung, Dachform, Gebäudetyp: Moderne Stadtvilla mit Walmdach 24°
Keller, Geschosse: Kein Keller, 2 Vollgeschosse
Anzahl der Personen, Alter: Aktuell 2 Erwachsene (zwei Kinderzimmer sind geplant)
Raumbedarf im EG, OG: EG: Wohn-/Ess-/Kochbereich, HWR, Gäste-WC, Büro OG: Elternbadezimmer, Kinderbadezimmer, Schlafzimmer inkl. Ankleide, Kind 1, Kind 2
Büro: Familiennutzung oder Homeoffice?: Familiennutzung
Schlafgäste pro Jahr: ?
offene oder geschlossene Architektur: ?
konservativ oder moderne Bauweise: modern
offene Küche, Kochinsel: offene Küche mit Kochinsel
Anzahl Essplätze: 6
Kamin: Ja
Musik/Stereowand: Nein
Balkon, Dachterrasse: Terasse über Hebeschiebetür erreichbar
Garage, Carport: Doppelgarage
Nutzgarten, Treibhaus: Nein
weitere Wünsche/Besonderheiten/Tagesablauf, gern auch Begründungen, warum dieses oder das nicht sein soll: Wir wollten unbedingt einen Luftraum zentral über dem Wohn-/Ess-/Kochbereich haben. Dieser hat im OG ein feststehendes Fensterelement mit Blick auf unser großes Gründstück und unseren zukünftigen Garten. Im EG steht unter diesem Luftraum der Esstisch.
Hausentwurf
Von wem stammt die Planung:
-Eigener Entwurf basierend auf vielen verschiedenen Grundrissen
Was gefällt besonders? Warum?: Symmetrie des Haus in der Außenansicht, Der, durch die großen Fenster durchflutete Wohn-/Ess-/Kochbereich inkl. dem Luftraum, Die offene Treppe mit großem Fenster, Der, durch den Luftraum offene und lichtdurchflutete Flur im OG.
Was gefällt nicht? Warum?: /
Preisschätzung laut Architekt/Planer: /
Persönliches Preislimit fürs Haus, inkl. Ausstattung: /
favorisierte Heiztechnik: Luft-Wasser-Wärmepumpe
Wenn Ihr verzichten müsst, auf welche Details/Ausbauten
-könnt Ihr verzichten: /
-könnt Ihr nicht verzichten: - Luftraum, Treppe, Wohnzimmer inkl. Küche
Wir sind mit dem Grundriss eigentlich sehr zufrieden. Wir würden aber gerne wissen, ob wir irgendwo vielleicht etwas vergessen haben oder etwas verbessert werden kann.
Bei der Küche fällt die gezeichnete Tür weg. Die Küchenzeile erstreckt sich über die komplette Wand und das gezeichnete Fenster ist relativ groß zur Südseite ausgereichtet, um so auch noch Lichteinfall zum Nachmittag hin zu haben.
Wir haben leider keine 3D-Ansichten der Räume, so wie es manche hier zeigen können.
EG:
OG:
Wenn planrechts Süden sein soll, dann ist die Nachmittagssonne dort, wo die Garage ist.
Füll doch mal bitte den ganzen Fragebogen aus und richte die Räume für Euch ein.
Bad über den Wohnbereich ist grundsätzlich zu vermeiden, Hausanschlüsse sollten nicht überbaut werden. Flure, die größer sind als Kinderzimmer, sollte man zudem hinterfragen und zu einer Neuplanung anregen.
Füll doch mal bitte den ganzen Fragebogen aus und richte die Räume für Euch ein.
Bad über den Wohnbereich ist grundsätzlich zu vermeiden, Hausanschlüsse sollten nicht überbaut werden. Flure, die größer sind als Kinderzimmer, sollte man zudem hinterfragen und zu einer Neuplanung anregen.
Den Fragebogen habe ich so gut es mir möglich war ausgefüllt. Welche Angaben fehlen denn?
Korrekt, die Nachmittagssonne ist dort, wo sich die Garage befindet. Allerdings befindet sich die Hausecke Ost/Süd auch noch im Bereich der Nachmittagssonne und sogar der Abendsonne, auch wenn die Garage dann einen Schatten wirft. So haben wir uns gedacht, dass unser Garten sich um diese Ecke des Hauses erstrecken soll. Hinter der Garage kann man Nachmittags/Abend sitzen. Morgens/Mittags hat man die Sonne auf der Ostseite.
Zuerst waren Schlaf- und Badezimmer miteinander getauscht. So hätten wir aber keine Chance gehabt, dass wir die Ankleide mit unserem Schlafzimmer verbinden. Deswegen haben wir es drehen lassen und unser Bauunternehmer hatte keine Einwände. Welche Problematik ist da zu erwarten oder was genau spricht dagegen? Ist das nicht erlaubt? Wir haben unsere Baugenehmigung bereits erhalten und da war dahingehend nichts erwähnt.
Die Größen der einzelnen Räume haben wir bewusst so gewählt und sind für uns so perfekt. Wir haben bei mehreren Besuchen von Fertighauswelten unsere, zu dem Zeitpunkt aktuelle, Planung mit den Größen der anzuschauenden Räume verglichen. Beim Kinderzimmer z.B. waren uns 10m² zu klein. 15m² war schon sehr geräumig, weswegen wir uns für 13m² entschieden haben.
Dass beide Flure sehr groß sind, ist uns bewusst. Aber dadurch, dass wir bei den anderen Räumen keine Einschränkungen machen müssen, ist das doch nicht dramatisch, oder?
Korrekt, die Nachmittagssonne ist dort, wo sich die Garage befindet. Allerdings befindet sich die Hausecke Ost/Süd auch noch im Bereich der Nachmittagssonne und sogar der Abendsonne, auch wenn die Garage dann einen Schatten wirft. So haben wir uns gedacht, dass unser Garten sich um diese Ecke des Hauses erstrecken soll. Hinter der Garage kann man Nachmittags/Abend sitzen. Morgens/Mittags hat man die Sonne auf der Ostseite.
Zuerst waren Schlaf- und Badezimmer miteinander getauscht. So hätten wir aber keine Chance gehabt, dass wir die Ankleide mit unserem Schlafzimmer verbinden. Deswegen haben wir es drehen lassen und unser Bauunternehmer hatte keine Einwände. Welche Problematik ist da zu erwarten oder was genau spricht dagegen? Ist das nicht erlaubt? Wir haben unsere Baugenehmigung bereits erhalten und da war dahingehend nichts erwähnt.
Die Größen der einzelnen Räume haben wir bewusst so gewählt und sind für uns so perfekt. Wir haben bei mehreren Besuchen von Fertighauswelten unsere, zu dem Zeitpunkt aktuelle, Planung mit den Größen der anzuschauenden Räume verglichen. Beim Kinderzimmer z.B. waren uns 10m² zu klein. 15m² war schon sehr geräumig, weswegen wir uns für 13m² entschieden haben.
Dass beide Flure sehr groß sind, ist uns bewusst. Aber dadurch, dass wir bei den anderen Räumen keine Einschränkungen machen müssen, ist das doch nicht dramatisch, oder?
xDorix schrieb:
Wir haben unsere Baugenehmigung bereits erhaltenDann ist der Drops so gelutscht.
Wenn Ihr Euch das so schön geredet habt und Kritikpunkte weiterhin schön redet, dann ist doch alles gut. Dann lasst Euch von Neutralen und ja, auch Wissenden um Ost und West nicht verärgern und lasst Euch den Hausbau nicht vermiesen. Ist natürlich doof jetzt, oder?
Zum Fragebogen: weißt und siehst Du doch selbst - ist so wie mit den Himmelsrichtungen. Ein ? ändert nichts an der Situation - genausowenig Erklärungen, warum etwas so wird, wie es soll. Es wird dadurch nicht gleich gut oder besser.
Euer Nebenbeitrag ist genauso irrsinnig. Denn gerade die Fassade ist bei einem Bauantrag nicht flexibel zu ändern.
H
hanghaus202321.04.26 06:55Die Frage zum Budget wurde nicht beantwortet. Zeichne doch bitte die Möblierung in die Pläne ein.
M
MachsSelbst21.04.26 09:51Für diese Hausgröße sind die beiden Kinderzimmer wirklich lächerlich klein. Das macht auch das 4,5m² große "Bad" nicht mehr wett, denn was soll da rein? Ne zweite Dusche passt schonmal nicht bzw. ich glaube nicht, dass eine pubertierende 15jährige direkt vor dem Fenster über der Haustür duschen möchte...
Den Gäste-WC Schlauch im EG kannst du in der Länge nicht vernünftig nutzen, weil er einfach zu schmal ist. Das ist letztlich ein langer Gang mit einer Toilette am Ende, wo man sich noch am Waschbecken vorbeiquetschen muss 😉
Insgesamt sind die Verkehrs- und unnützen Freiflächen (Flure, HWR, Luftraum, große Tanzfläche im Hauptbad OG) riesig, aber die Räume für die Größe des Hauses relativ klein...
Den Gäste-WC Schlauch im EG kannst du in der Länge nicht vernünftig nutzen, weil er einfach zu schmal ist. Das ist letztlich ein langer Gang mit einer Toilette am Ende, wo man sich noch am Waschbecken vorbeiquetschen muss 😉
Insgesamt sind die Verkehrs- und unnützen Freiflächen (Flure, HWR, Luftraum, große Tanzfläche im Hauptbad OG) riesig, aber die Räume für die Größe des Hauses relativ klein...
Ähnliche Themen