ᐅ Grundriss Einfamilienhaus 140qm, Erfahrungen
Erstellt am: 18.11.24 20:01
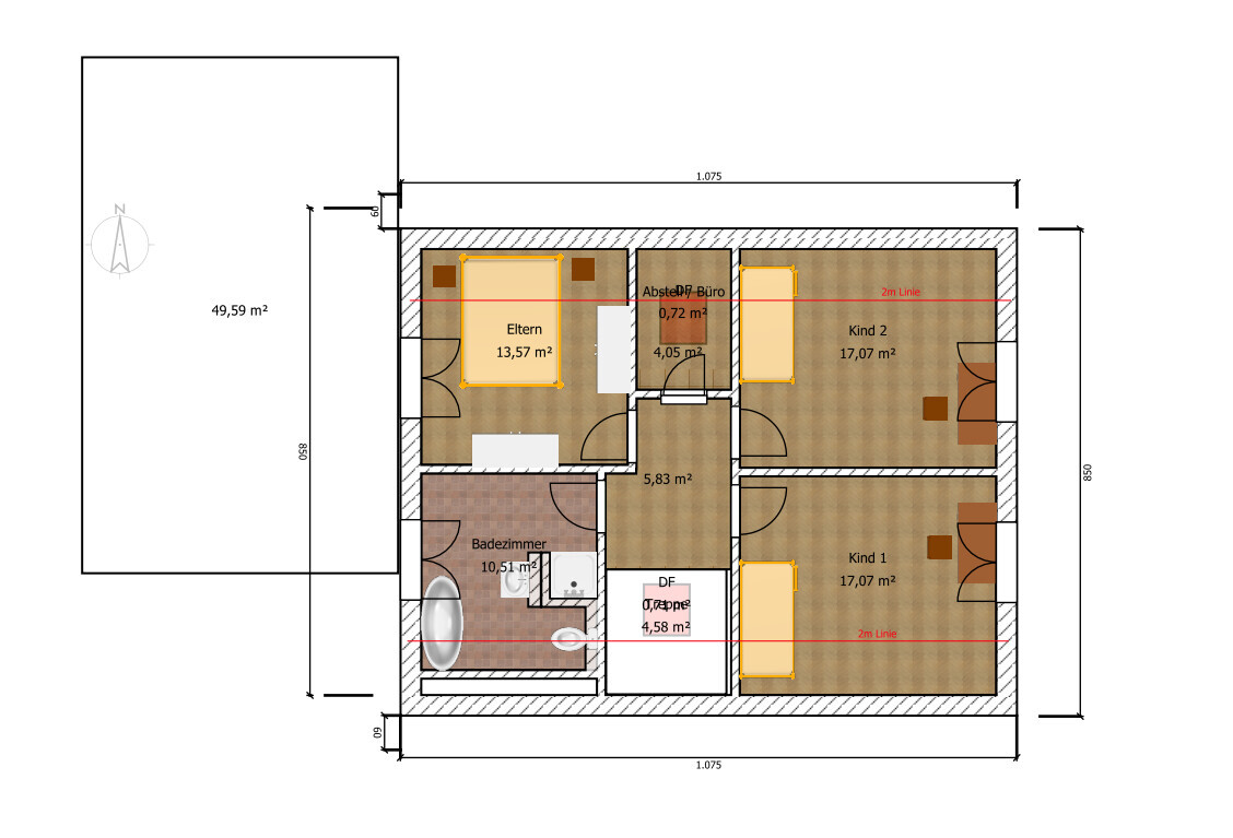
Hallo zusammen,
ich möchte gerne einmal unseren Grundriss mit euch teilen und gerne auch eure Einschätzungen dazu erhalten.
Der Grundriss ist von mir selbst auf dem geplanten Grundstück erstellt. Bisher hat da noch kein Architekt drüber geschaut.
Ich habe den Grundriss auch schon mal einem unserer favorisierten Bauträger geschickt, um mal eine grobe Hausnummer für den Preis zu bekommen.
Zum Grundstück (ca. 350qm): dies liegt in zweiter Reihe mit einer Durchfahrt zum Grundstück in dritter Reihe. In ca. 50m Luftlinie fahren DB Fernzüge sowie S-Bahnen.
Ich habe auch eine Flurkarte mit groben Einzeichnungen der zwei Grundstücke erstellt. Die grün markierte Fläche wäre das Grundstück, welches wir kaufen würden. Darauf sind die Ausmaße der Garage + Haus eingezeichnet sowie die Zufahrt (blau). Die orange Fläche ist das Grundstück in 3. Reihe. Die pinken Flächen sind aktuelle Gebäude, die in der Flurkarte noch nicht eingezeichnet waren.
Anforderungen der Bauherren
Stilrichtung, Dachform, Gebäudetyp: Satteldach
Keller, Geschosse: 1,5 Geschosse, kein Keller
Anzahl der Personen, Alter: 2 Erwachsene (37 / 40 Jahre alt), 2 Kinder (3 und 0 Jahre)
2 Kinderzimmer mit viel Licht, 1 bzw. 2 HomeOffice Arbeitsplätze, Offene Wohn- / Essküche mit Kochinsel
Hausentwurf
Von wem stammt die Planung: von mir selbst
Was gefällt besonders? Warum? recht große Kinderzimmer, extra Büro (arbeite viel im HO und meine Frau fast ausschließlich), versucht viel Stauraum einzubauen (z.B. Stauraum unter Treppe)
Was gefällt nicht? Warum? Eventuell zu kleine Fenster im Wohn / Essbereich in Südlage, allerdings wenn man das symmetrisch halten möchte, würde vor dem einen bodentiefen Fenster das Sofa stehen
Preisschätzung laut einem GU: ca 400.000 € (Haus + Garage + 10kW PC inkl. 10kWh Batterie)
favorisierte Heiztechnik: Luft-Wasser-Wärmepumpe
Ich bin auf eure Erfahrungen und Anregungen gespannt.









ich möchte gerne einmal unseren Grundriss mit euch teilen und gerne auch eure Einschätzungen dazu erhalten.
Der Grundriss ist von mir selbst auf dem geplanten Grundstück erstellt. Bisher hat da noch kein Architekt drüber geschaut.
Ich habe den Grundriss auch schon mal einem unserer favorisierten Bauträger geschickt, um mal eine grobe Hausnummer für den Preis zu bekommen.
Zum Grundstück (ca. 350qm): dies liegt in zweiter Reihe mit einer Durchfahrt zum Grundstück in dritter Reihe. In ca. 50m Luftlinie fahren DB Fernzüge sowie S-Bahnen.
Ich habe auch eine Flurkarte mit groben Einzeichnungen der zwei Grundstücke erstellt. Die grün markierte Fläche wäre das Grundstück, welches wir kaufen würden. Darauf sind die Ausmaße der Garage + Haus eingezeichnet sowie die Zufahrt (blau). Die orange Fläche ist das Grundstück in 3. Reihe. Die pinken Flächen sind aktuelle Gebäude, die in der Flurkarte noch nicht eingezeichnet waren.
Anforderungen der Bauherren
Stilrichtung, Dachform, Gebäudetyp: Satteldach
Keller, Geschosse: 1,5 Geschosse, kein Keller
Anzahl der Personen, Alter: 2 Erwachsene (37 / 40 Jahre alt), 2 Kinder (3 und 0 Jahre)
2 Kinderzimmer mit viel Licht, 1 bzw. 2 HomeOffice Arbeitsplätze, Offene Wohn- / Essküche mit Kochinsel
Hausentwurf
Von wem stammt die Planung: von mir selbst
Was gefällt besonders? Warum? recht große Kinderzimmer, extra Büro (arbeite viel im HO und meine Frau fast ausschließlich), versucht viel Stauraum einzubauen (z.B. Stauraum unter Treppe)
Was gefällt nicht? Warum? Eventuell zu kleine Fenster im Wohn / Essbereich in Südlage, allerdings wenn man das symmetrisch halten möchte, würde vor dem einen bodentiefen Fenster das Sofa stehen
Preisschätzung laut einem GU: ca 400.000 € (Haus + Garage + 10kW PC inkl. 10kWh Batterie)
favorisierte Heiztechnik: Luft-Wasser-Wärmepumpe
Ich bin auf eure Erfahrungen und Anregungen gespannt.
Mir scheint das Haus im Verhältnis zu den unversiegelt bleibenden Flächen zu groß.
https://www.instagram.com/11antgmxde/
https://www.linkedin.com/company/bauen-jetzt/
TobyMaBe schrieb:Welchen sittlichen Nährwert siehst Du in Symmetrie ?
allerdings wenn man das symmetrisch halten möchte, würde vor dem einen bodentiefen Fenster das Sofa stehen
https://www.instagram.com/11antgmxde/
https://www.linkedin.com/company/bauen-jetzt/
Das blaue Stück auf der Flurkarte darf eigentlich nicht durchgängig sein, sondern besteht aus zwei separaten Stücken. Nach Deinen Informationen hat Dein Grundstück 21,3m x 16,5m = 351,45qm. Das bedeutet, dass der Zuweg von der Straße nicht zu Deinem Grundstück gehört (die 3,3m * 6,5m = 21,45qm und die 3,3m * 17,3m = 57,09qm).
Die Zuwegung und Versorgung zu / von Orange hingegen wird über Dein (eh schon nicht großes) Grundstück realisiert. Ist das korrekt?
Dadurch verliert ihr mal schlappe 70qm (oder 20%) vom Grundstück. Aus meiner Sicht hat es einen guten Grund, dass das Grundstück noch auf dem Markt ist. Das ist das Gegenteil von dem, was ich als Sahnestück bezeichnen würde...
Zum Grundriss:
- Der Flur im EG ist im Vergleich zur Gesamtgröße riesig und nimmt 18% der EG Wohnfläche ein, ohne dass er überhaupt die Möglichkeit einer Garderobe bieten würde.
- Der Technikraum ist ebenfalls unpraktisch geplant. Durch den Zugang von der Garage entsteht eine Verkehrsfläche, die 1/3 des gesamten Raums einnimmt.
- Die 71cm Durchgangsbreite in der Küche wären für mich inakzeptabel, mit Kindern sowieso.
- Ecken findet man mehr als genug (45° Ecke Wohnzimmer, Büro, Schlafzimmer, ...), das wäre für mich zu unruhig.
- Im Badezimmer würde ich Klo und Dusche tauschen. Mit kleinen Kids immer um die unpraktische T-Wand laufen zu müssen, kann zu Malheuren führen. Ich vermute, an die Wand zum Schlafzimmer kommen Waschmaschine und Trockner?
- Es ehrt Euch, dass Ihr den Kindern so große Zimmer geben wollt. In diesem Haus würde ich die Kinderzimmer aber verkleinern (z.B. auf 15qm) und die gewonnene Fläche dem Zweitbüro zuweisen. 4qm sind ggf. für einen Aufenthaltsraum zu wenig, schaut in die entsprechende Landesbauordnung.
Erklärt doch mal bitte, warum Ihr einen Individualentwurf zu brauchen glaubt und nicht auf einen funktionierenden Kataloggrundriss zurückgreifen wollt.
Die Zuwegung und Versorgung zu / von Orange hingegen wird über Dein (eh schon nicht großes) Grundstück realisiert. Ist das korrekt?
Dadurch verliert ihr mal schlappe 70qm (oder 20%) vom Grundstück. Aus meiner Sicht hat es einen guten Grund, dass das Grundstück noch auf dem Markt ist. Das ist das Gegenteil von dem, was ich als Sahnestück bezeichnen würde...
Zum Grundriss:
- Der Flur im EG ist im Vergleich zur Gesamtgröße riesig und nimmt 18% der EG Wohnfläche ein, ohne dass er überhaupt die Möglichkeit einer Garderobe bieten würde.
- Der Technikraum ist ebenfalls unpraktisch geplant. Durch den Zugang von der Garage entsteht eine Verkehrsfläche, die 1/3 des gesamten Raums einnimmt.
- Die 71cm Durchgangsbreite in der Küche wären für mich inakzeptabel, mit Kindern sowieso.
- Ecken findet man mehr als genug (45° Ecke Wohnzimmer, Büro, Schlafzimmer, ...), das wäre für mich zu unruhig.
- Im Badezimmer würde ich Klo und Dusche tauschen. Mit kleinen Kids immer um die unpraktische T-Wand laufen zu müssen, kann zu Malheuren führen. Ich vermute, an die Wand zum Schlafzimmer kommen Waschmaschine und Trockner?
- Es ehrt Euch, dass Ihr den Kindern so große Zimmer geben wollt. In diesem Haus würde ich die Kinderzimmer aber verkleinern (z.B. auf 15qm) und die gewonnene Fläche dem Zweitbüro zuweisen. 4qm sind ggf. für einen Aufenthaltsraum zu wenig, schaut in die entsprechende Landesbauordnung.
Erklärt doch mal bitte, warum Ihr einen Individualentwurf zu brauchen glaubt und nicht auf einen funktionierenden Kataloggrundriss zurückgreifen wollt.
Erstelle euer Raumprogramm. Nicht Schlafzimmer, Kinderzimmer usw. Sondern Schlafzimmer Bett 210x200 (Bettrahmen nicht vergessen), 3 m Kleiderschrank, Kommode 1,5 m usw. Das für jedes Zimmer. Zeichne die Möbel mit richtigen Maßen im Maßstaab ein. Wisst ihr ihr kauft euch ein neues Sofa und wollt unbedingt so eine XXL Landschaft nehmt erstmal die und keine Platzhalter. Mehr Grundfläche schafft ihr damit auch nicht, es währe jedoch besch... wenn der Schrank nicht paßt nur weil die Türe 5cm mehr in die andere Richtung geschoben gehört hätte.
Ansonsten warum kein funktionierender Grundriss?
Ansonsten warum kein funktionierender Grundriss?
Ähnliche Themen