ᐅ Grundriss Doppelhaushälfte, 2,5 Geschosse + Nutzkeller
Erstellt am: 28.03.22 11:37
Hallo zusammen,
wir planen eine Doppelhaushälfte mit 2,5 Geschossen + Keller zu bauen. Wir haben einen ersten Entwurf des GU erhalten und möchten uns gerne darüber mit Euch austauschen.
Die Geschosse werden wie folgt aufgeteilt:
Keller = Nutzkeller
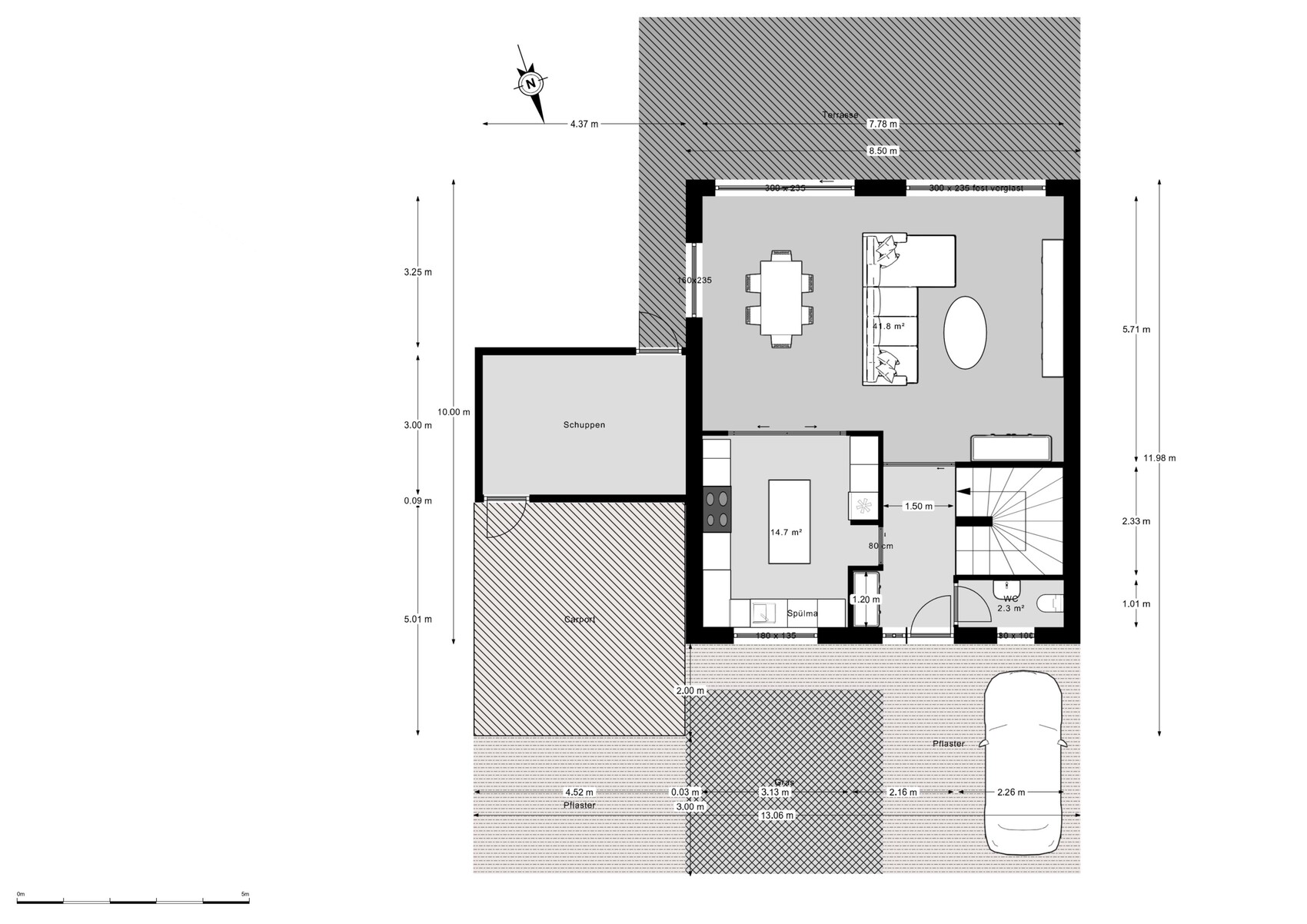
EG = Wohnen/Essen + Küche + WC + GARD
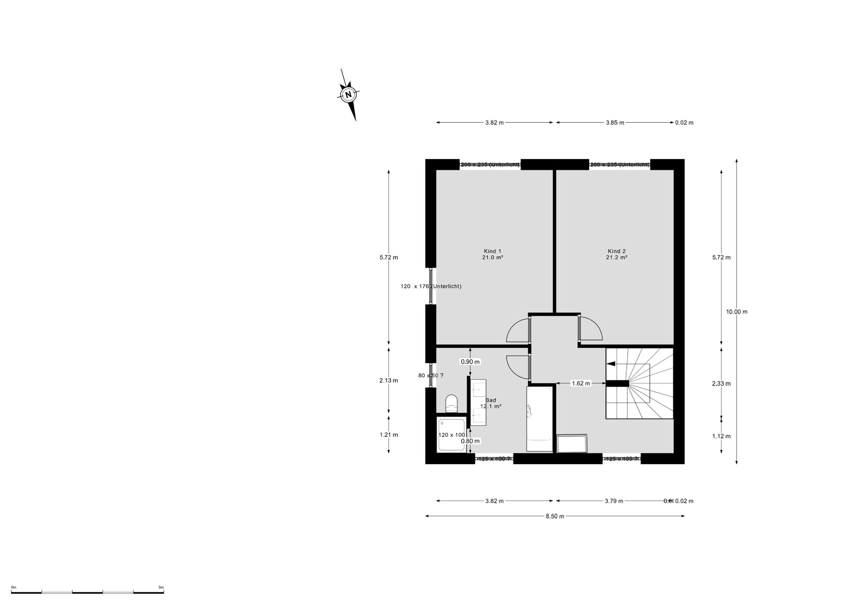
OG = 2 große Kinderzimmer + Familienbad
DG = Schlafzimmer + Büro + WC/BAD
Bebauungsplan/Einschränkungen
Größe des Grundstücks: 420 qm
Hang: nein
Grundflächenzahl: 0,4
Geschossflächenzahl: nicht angegeben
Anzahl Stellplatz: Carport + 1 Stellplatz
Geschossigkeit: 2,5
Dachform: Satteldach, 35 Grad
Stilrichtung: Doppelhaushälfte
Ausrichtung: SO
Maximale Höhen/Begrenzungen: WH = 6,5m GH = 10m, max. Breite = 9m. Durch die Beschränkung der GH und die Dachneigung von 35 Grad ist die max. Tiefe = 10m.
Anforderungen der Bauherren
Stilrichtung, Dachform, Gebäudetyp
Nutzkeller, 2.5 Geschosse
Anzahl der Personen: 2 Erwachsene + 2 Kinder (5 und 7 Jahre)
Schlafgäste pro Jahr: vernachlässigbar
große Küche, offen, aber dennoch mittels Schiebetüren verschließbar, Kochinsel zum Schnibbeln (Kochfeld ist erstmal nicht auf der Insel geplant)
Anzahl Essplätze: 6
Kamin: in die Wohnwand integrierter Ethanolkamin
Carport
eigenes Geschoss für die Kinder sowie große Kinderzimmer
Sauna im Dach
Zwerchhaus auf Nordseite
Deckenhöhe in EG und OG jeweils 2,50m
Arbeitszimmer/Gästezimmer im DG
Hausentwurf
Von wem stammt die Planung: GU (nachgezeichnet von mir in Sweet Home 3D + Möbel hinzugefügt)
Was gefällt besonders? Warum?: großes Wohnzimmer mit großen Fenstern, große Küche, große Kinderzimmer
favorisierte Heiztechnik: Luftwärmepumpe
Was ist die wichtigste/grundlegende Frage zum Grundriss in 130 Zeichen zusammengefasst?
- Wohnzimmer: sind die Fenster zu groß gewählt?
- Kinderzimmer: wie findet ihr den Schnitt, spezielles von Kind 2
- Familienbad: ist der Durchgang zur Toilette und Dusche zu eng?
- Arbeitszimmer: 2m sind nach Eingang ziemlich schnell erreicht, Zwerchhaus ist zwar vorhanden jedoch bin ich mir nicht sicher wie der Raum wirken wird. Was meint ihr?




wir planen eine Doppelhaushälfte mit 2,5 Geschossen + Keller zu bauen. Wir haben einen ersten Entwurf des GU erhalten und möchten uns gerne darüber mit Euch austauschen.
Die Geschosse werden wie folgt aufgeteilt:
Keller = Nutzkeller
EG = Wohnen/Essen + Küche + WC + GARD
OG = 2 große Kinderzimmer + Familienbad
DG = Schlafzimmer + Büro + WC/BAD
Bebauungsplan/Einschränkungen
Größe des Grundstücks: 420 qm
Hang: nein
Grundflächenzahl: 0,4
Geschossflächenzahl: nicht angegeben
Anzahl Stellplatz: Carport + 1 Stellplatz
Geschossigkeit: 2,5
Dachform: Satteldach, 35 Grad
Stilrichtung: Doppelhaushälfte
Ausrichtung: SO
Maximale Höhen/Begrenzungen: WH = 6,5m GH = 10m, max. Breite = 9m. Durch die Beschränkung der GH und die Dachneigung von 35 Grad ist die max. Tiefe = 10m.
Anforderungen der Bauherren
Stilrichtung, Dachform, Gebäudetyp
Nutzkeller, 2.5 Geschosse
Anzahl der Personen: 2 Erwachsene + 2 Kinder (5 und 7 Jahre)
Schlafgäste pro Jahr: vernachlässigbar
große Küche, offen, aber dennoch mittels Schiebetüren verschließbar, Kochinsel zum Schnibbeln (Kochfeld ist erstmal nicht auf der Insel geplant)
Anzahl Essplätze: 6
Kamin: in die Wohnwand integrierter Ethanolkamin
Carport
eigenes Geschoss für die Kinder sowie große Kinderzimmer
Sauna im Dach
Zwerchhaus auf Nordseite
Deckenhöhe in EG und OG jeweils 2,50m
Arbeitszimmer/Gästezimmer im DG
Hausentwurf
Von wem stammt die Planung: GU (nachgezeichnet von mir in Sweet Home 3D + Möbel hinzugefügt)
Was gefällt besonders? Warum?: großes Wohnzimmer mit großen Fenstern, große Küche, große Kinderzimmer
favorisierte Heiztechnik: Luftwärmepumpe
Was ist die wichtigste/grundlegende Frage zum Grundriss in 130 Zeichen zusammengefasst?
- Wohnzimmer: sind die Fenster zu groß gewählt?
- Kinderzimmer: wie findet ihr den Schnitt, spezielles von Kind 2
- Familienbad: ist der Durchgang zur Toilette und Dusche zu eng?
- Arbeitszimmer: 2m sind nach Eingang ziemlich schnell erreicht, Zwerchhaus ist zwar vorhanden jedoch bin ich mir nicht sicher wie der Raum wirken wird. Was meint ihr?
gutentag schrieb:
Mir drängt sich die Frage nach dem Budget auf.Preis ist im geplanten Rahmen, hierbei soll es nur um den Grundriss gehen.gutentag schrieb:
Steht die Andere Haelfte schon? Wenn ja wie schaut die aus?Nein, steht noch nicht. Die Hausmaße werden identisch sein, eventuell wird sich die Breite unterscheiden.Der Grundriss ist noch nicht bekannt.
Ich hoffe, Ihr baut kein halbes, sondern das ganze Doppelhaus mit demselben GU. Ich habe zuweilen das Gefühl, den Goalkeeperthread sollte man nicht hier im Forum, sondern überhaupt im Internet "anpinnen" (oder besser gleich in alle Schulbücher schreiben) ...
https://www.instagram.com/11antgmxde/
https://www.linkedin.com/company/bauen-jetzt/
corby_81 schrieb:Dann hätte ich bei einem vorhandenen professionellen Grundriss besser gefunden, den im Original zu zeigen statt als Laie nachzuzeichnen. Bei solcherlei "stiller Post" gehen regelmäßig relevante Details verloren.
hierbei soll es nur um den Grundriss gehen.
https://www.instagram.com/11antgmxde/
https://www.linkedin.com/company/bauen-jetzt/
Ähnliche Themen